查看完整案例

收藏

下载
当我们谈论“南洋复古风”,你脑海中会浮现哪些元素?是那些带有时间印记的木制家具、藤编篮子与坐垫、柔软透气的亚麻布料,还是那些图案精美的小花砖?在你了解这些设计元素后,如何巧妙地将这些复古韵味的元素融入家庭装饰,打造出既温馨又具有复古风情的居住空间呢?今天,分享一套复古风婚房设计。
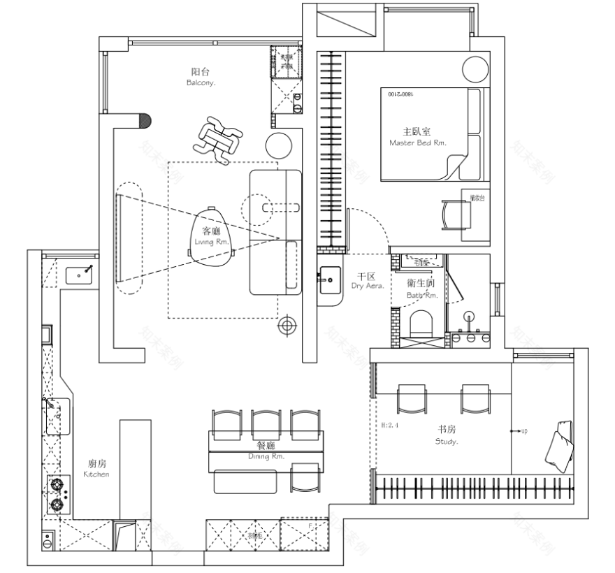
户型优化
/ Room type Optimization
如何解决空间痛点,实现理想新居
1,增强空间的储物能力;提升空间间的开放感与互动性
2,打破狭长厨房空间的闭塞感;让每个区域都能实现设计上的重新整合与连接
3,男主人酷爱电子游戏,而女主人则偏爱阅读书籍。他们都渴望在闲暇时光中能有彼此的陪伴和互动。因此,在新家的设计中,一个温馨舒适的多功能空间成为了他们的共同愿望。
针对夫妻二人的居住需求,平面空间改造聚焦于空间利用率与功能优化。
✅封闭式的狭长厨房通过采用L型布局与岛台相结合的开放式设计,有效提升了操作空间的效率,并通过墙面垂直收纳的方式,增强了储物能力;
✅卫生间采用干湿分离设计,能够提升使用效率并改善卫生状况;
✅卧室门移位实现顶天立地床尾衣柜,最大化收纳空间。
✅次卧做多功能房+独立书房,采用半开放设计,兼顾私密性与通透感。
✅冰箱和鞋帽柜的组合玄关柜设计,空间最大化利用。
✅公共区域优化为二人互动留出更多灵活空间,同时合理划分私密区与共享区,确保舒适性与实用性平衡。
玄 关
/ Entrance Hall
精巧的鞋柜与厨房区域连接和谐统一
家的进门处,首先映入眼帘的便是设计精巧的鞋柜,它不仅具备了收纳鞋子的基本功能,同时将鞋帽柜与厨房区域通过其顶板的延伸巧妙地连接起来,形成一个和谐统一的空间布局。
客 厅
/ Living Room
自然元素打造慵懒松弛的氛围
南洋风与中古风的结合,以自然元素营造出舒适温馨的居家氛围。客厅采用人字拼地板与复古家具的搭配,深棕色木质与低饱和度米白色相互映衬,点缀热带绿植与亮黄色,打造出慵懒松弛的空间基调。
中古风格组合柜成为客厅的视觉焦点,既满足储物需求,又以独特造型和精致质感提升空间格调。整体设计通过自然材质与复古元素的巧妙融合,呈现出精致而富有生活气息的家居环境。
黑色的皮质沙发与一束优雅浅粉色郁金香花束相搭配,形成了一种独特的视觉对比。这种对比不仅展现了柔和与干练的反差之美,而且营造出一种时光沉淀的美感。沙几个复古风格的抱枕随意散落,为空间注入几分慵懒惬意,让人在忙碌中寻得片刻宁静。
阳光透过纱帘洒落人字拼地板上,与复古木质家具交织出温暖的光影,深浅木色的碰撞既强化了空间层次,又凸显了中古风格的沉淀之美。
整个空间巧妙融合了现代质感与复古元素,皮质沙发、郁金香、纱帘与木质家具共同谱写出一曲静谧的生活乐章;中高柜的棕色系木门与浅色的人字拼地板形成了鲜明的对比,每一处对比设计都让空间更显立体,仿佛打造出一个远离喧嚣的治愈系居所。也让屋主在享受家居生活的同时,能够感受到设计带来的独特魅力。
厨 房
/ K
itc
hen
美食与美学的交融中感受生活的愉悦
在这个厨房设计中,大面积的奶油白色调营造出一种温馨而明亮的氛围,而胡桃木的深色纹理高柜设计则为整个空间增添了一丝温暖和质感。墨绿色手工砖墙面和局部点缀,与黑白木色调形成鲜明对比,注入生机与艺术感。金属把手等细节的运用,为空间增添现代轻奢气息。
柜体设计中大胆使用高级灰与木色组合,诠释南洋风的纯粹与温暖。为打破可能产生的沉闷感,墨绿色手工砖为厨房增添一抹生机,清新悦目的设计让日常烹饪成为一种享受,在美食与美学的交融中感受生活的愉悦。
餐 厅
/ Dining Room
摒弃传统,营造无拘无束的用餐环境
摒弃传统的空间布局理念,营造一个更加开放、自由和无拘无束的用餐环境,将原本独立的厨房区域与餐厅空间巧妙地融合在一起,实现宽敞明亮又具有极强互动性的用餐体验。在照明的选择上,灵动造型的海鸥形状的灯具与餐厅空间所追求的自由氛围完美契合。当夜幕缓缓降临,海鸥灯散发出柔和的光芒,让整个餐厅都被温暖与浪漫包围着!
书 房
/ Study
胡桃木、鱼骨拼营造复古氛围
书房空间被巧妙地设计成一个多功能区域,局部地面抬高12公分做地台,长2.1m*宽1.3m既可以作为临时客卧,也可以作为独立书房,同时还是一个休闲放松的区域,实现了三合一多功能房。中古法式玻璃吸顶、充满生机的花鸟壁纸为空间增添了一份自然的气息。
老钢窗框搭配钻石玻璃的移门,为书房注入复古美学的绝佳选择,既保留了历史韵味又兼顾了现代功能需求。胡桃木、鱼骨拼营造复古氛围,夜晚光线透过玻璃投射出朦胧光斑成为空间焦点。
卧 室
/ Bed Room
质朴和原始的放松空间
主卧木色和白色营造出温馨而自然的氛围,给人以宁静、舒适感。木色的家居和装饰品,都透露出一种质朴和原始的美感,而白色的墙面和床品则为整个空间增添了一抹明亮和清新,在这个空间中享受到真正的休息和放松。
卫 生 间
/ Bath Room
浅棕色复古砖,简单的洗漱空间充满舒适体验
在卫生间干区的设计上,设计师巧妙地运用了浅棕色复古砖与黑色镶边的组合配色,赋予了这面原本普通的墙面一种独特的韵味。 黑色圆弧形台盆以其优雅的弧线设计,巧妙地融合了现代美学与实用功能,使得整个区域不仅仅是一个简单的洗漱空间,而是一个充满设计感和舒适体验的区域。这种设计的运用,在日常使用中能够享受到更加精致和有品质的洗漱时光,同时也体现了设计师对于空间细节的深刻理解和精心打磨。
谁说小空间的卫生间不能拥有小而精的美感呢?运用瓷砖的色彩与纹理拼接,带来了意想不到的美感。墙面浅灰色瓷砖,这种色彩不仅显得干净利落,而且能够反射光线,较小卫生空间看起来更加明亮和宽敞。
这套南洋复古风设计,实现了空间功能与家居美学的完美平衡。通过解构南洋传统建筑语汇,设计师巧妙植入现代生活动线,在有限面积内创造出具有多维体验的居住空间。材质肌理的创新组合重构了传统与现代的对话关系,独具匠心的色彩调度,让理性与感性在设计中恒温共存。这种将复古元素转化为当代设计语言的能力,不仅提升了空间的使用效能,更创造了远超物理面积的精神场域;完美诠释了"用设计创造价值"的专业内核。
如需了解更多细节
硬装设计丨软装设计丨全案设计
鸿鹄设计(徐汇店)
地址:徐汇文定路200号盛源恒华大厦11层1108-1116室
荣誉 Honor
2025 第十二届筑巢奖公众类金奖
2025 第三届红墨斗奖十大年度公寓住宅设计奖
2025 Ariston国际室内设计大赛年度最佳空间设计金奖\卓越奖
第十三届国际空间设计大奖Idea-Tops居住空间设计 城市入围奖
2024 大金内装室内设计大赛全国铜奖
2024 居梦奖荣耀奖、金奖、银奖、铜奖
2024 金住奖上海(十大)居住空间设计师
2024 设计星城市设计星(2024-2025)东区50强
2024 ICS年度优秀色彩空间设计奖
2024 ID+G金创意国际空间设计专业奖银奖
2024 老宅新生设计奖年度优秀住宅空间设计
2024 40UNDER40当代设计杰出青年
2024 爱丁世界青年设计节 优胜奖
2024 IHIDA人居空间年度十佳公寓空间
2024 【猫星人和朋友们】入刊杂志《时尚家居》
2024 【猫星人和朋友们】荣登上海电视台东方卫视《筑家有道》节目
2024 中国台湾 TINTA金邸奖 居住空间/单层类提名奖
2024 中国台湾 TINTA金邸奖 居住空间/复层住宅类 提名奖
2024 第二届理想家IDEATXASKO入围奖
2024 【猫星人和朋友们】荣登ELLE家居廊、时尚家居、瑞丽家居、上海家具展
2024 第十三届国际空间设计大奖Idea-Tops居住空间设计 城市入围奖
2023 Hi-Design 第十届室内设计大赛“老房翻新奖”
2023 Hi-Design 第十届室内设计大赛“优秀奖”
2023 Hi-Design 第十届室内设计大赛“大区奖”
爱上美好生活家超级设计大赛 设计达人银奖
多乐士空间色彩设计大赛全国赛区 铜奖
2023 老宅新生设计奖·上海十大改造设计师
2022 营造家 FUTURE私宅坐标人物
2022 好好住年度推荐装修设计机构榜
2022 40UNDER40设计元中国(上海)设计杰出青年
2022 第九届设计本年度大赛-年度最具人气设计师奖
2022 第一届阿里巴巴每平每屋设计挑战赛TOP300
2022 Ariston Design Award 国际室内设计大赛180强
2022 Ariston Design Award 国际室内设计大赛温度设计机构奖
2022 Hi-Design 第十届室内设计大赛全国赛区“设计精英奖”
2022 Hi-Design 第十届室内设计大赛上海赛区“优秀奖”
2021 设计本年度最受业主喜爱设计师
2021 年度第八届日立室内设计大赛华东区新锐奖
2021 年度M+中国高端室内设计大赛TOP100
2021 年度“营造家奖”年度设计TOP500
2021 IHIDA国际人居空间设计-优秀住宅空间奖
2021 设计纪元40UNDER 40中国杰出青年奖
2021 年度HI-Design第九届室内设计大赛-上海设计精英奖
2021 年度HI-Design第九届室内设计大赛-优秀奖
2021 年度住小帮设计师大赛-华东赛区最佳改造奖
2020 国际空间设计'艾特奖'公寓设计优秀奖、入围奖
2020 设计本年度最受业主喜爱设计师
2020 年度“营造家奖”华东赛区TOP150
2019 年第九届'筑巢'别墅空间奖金奖
2019 年度“营造家奖”设计机构
2018 第二届中国室内设计新势力榜上海区TOP10
2018“营造家奖”年度设计师
2018 腾讯家居年度设计时尚盛典·金藤奖
2018 大众点评家居·最佳创意空间奖
2018 年度M+高端室内设计大赛年度优秀设计师
2018 大众点评新锐设计师·最佳软装搭配奖
2017 荣获 40 under 40 中国设计杰出青年
2016 篱笆网装修频道优质商户·鸿鹄设计
2016 第九届大金内装设计大赛上海区公寓组金奖、银奖
2015 央视《交换空间》栏目特邀企业
2013 第四届中国国际环境艺术设计大赛优秀奖
2012 年第二届国际环艺创新设计大赛一等奖
2011 第六届上海学院杯居住环境大赛别墅类金奖
2010 中国样板房大赛最佳规划奖
2009 上海鸿鹄设计成立
大众点评家居最佳创意空间奖
大众点评家居全国TOP4人气奖
大众点评新锐设计师最佳软装搭配奖
营造家 FUTURE私宅坐标人物
营造家奖年度人气设计师/机构
营造家奖华东赛区大户型设计TOP20
营造家奖华东赛区小户型设计TOP20
中国室内设计年度潜力设计师
腾讯家居年度设计时尚盛典·金藤奖
设计源·世界观丨华东赛区精英人物(梁志天颁发)
PCHOUSE AWARD私宅设计全国TOP100杰出设计机构
第8届国际空间设计大赛艾特奖金奖、铜奖
PChouse设计风尚奖、创新风格设计奖
M+中国高端室内设计大赛年度优秀设计师
家装‘匠筑美作’杯全国新锐设计师
第六届日立室内设计大赛全国二等奖(公寓组)
第十届大金内装设计大赛全国美宅设计公寓组铜奖
第十届大金内装设计大赛上海地区美宅设计金奖、银奖、别墅铜奖
第十届大金内装设计大赛上海赛区空间设计奖
第十二届大金内装设计大赛全国美宅设计(别墅)银奖 、公寓银奖、铜奖
第十二届大金内装设计大赛全国生活艺术公寓铜奖
第十二届大金内装设计大赛上海生活艺术(别墅)金奖 、公寓银奖
第十二届大金内装设计大赛上海美宅设计(别墅)银奖
△
可上下滑动查看更多
客服
消息
收藏
下载
最近
































