查看完整案例

收藏

下载
用最朴素的木与麻
造最耐看的景
以留白代替堆砌
让器物自带风骨
01
项目信息
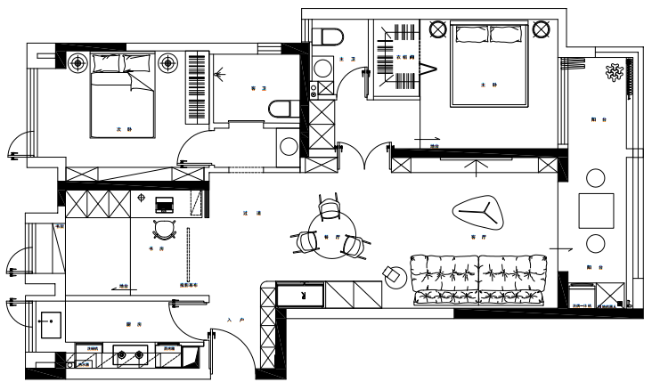
· 项目地址 | 融创临江府
· 项目风格 | 宋氏美学
· 项目面积 | 111㎡
· 项目设计 | 湖北上境设计
· 主案设计 | Biubiubiu~
· 设计时间 | 2024.12
02
设计需求
· 入户鞋柜位置较少,可向客厅墙面借用部分位置做鞋柜
· 电视摆放形式匹配风格为主,电视背景有收纳空间会更好
· 做开放式书房,以办公需求为主,可有部分展示区域和储物功能
· 次卫门正对大门,改门的方向或者其他的设计手法解决
· 主卧开间尺度比较小,扩充收纳空间;也可向阳台借用部分面积给到主卧
· 格上倾向宋式美学
· 有收藏手办,毛绒玩具的爱好,可作展示也可全部收纳起来
03
设计亮点
设计师以宋代美学为灵感,主打简洁雅致的氛围。墙面通铺的木色饰面板——从玄关到客厅,木饰面连贯延伸,既强化了空间的整体结构感,又像画框一样自然分割出不同区域。造价不高但效果出众,没有复杂的装饰,却让整个家透出安静温润的气质,既有古韵又不失现代生活的舒适感。
04
效果图展示
▼客餐厅
整个客餐厅以暖调为基底,墙面大面积的木色饰面板成为视觉焦点。为了突出这份温润感,顶面与地面特意选用浅色调,让空间显得轻盈不压抑。材料选择上,木饰面搭配素色墙面,花小钱就实现了层次感——既有宋代美学的克制,又保留了现代简约的基底,让家成为能“呼吸”的温暖容器。
The guest restaurant features a warm tone, with a large wood-colored decorative wall panel as the focal point. Light colors are used for the ceiling and floor to maintain a bright, airy feel. Wood finishes and plain walls create a layered, cost-effective aesthetic, blending Song Dynasty restraint with modern simplicity, turning the space into a warm, "breathable" environment.
▼厨房餐厅
考虑到业主不希望拆动过多的墙体,我们将冰箱外移至餐厅区域,餐边柜的层板造型灵感来自宋代榫卯结构,用极简的线条勾勒出传统韵味,搭配原木餐桌与藤编餐椅,既有宋式家具的筋骨感,又符合现代用餐习惯。厨房保留原始格局,仅通过木色柜门与餐厅形成视觉呼应,墙面沿用浅调避免拥挤感——无需大拆大改,用轻巧的设计语言,让传统美学自然融入一日三餐的烟火气中。
To avoid extensive wall removal, the refrigerator was moved to the restaurant. The side cabinet, inspired by Song Dynasty joinery, combines tradition with minimalism. Paired with log and rattan furniture, it suits modern dining. The kitchen echoes the restaurant through wood-colored doors and light walls, blending traditional aesthetics into daily life with minimal changes.
▼客厅阳台
电视背景墙
没有选择过多的收纳,而是适度留白,避免因开间较窄带来的压迫感。真正的巧思藏在阳台:左右两侧墙面向内收缩,形成自然“画框”,恰似宋画中的借景手法。原始阳台门拆除后,将地面局部抬高,以类似古建入户门的微仪式感划分区域。木饰面从客厅延伸至抬高的阳台地台,整体线条干净利落,既保留了空间的通透感,又让风景与室内形成虚实相映的美学意境。
The TV wall uses white space to avoid a cramped feel. The balcony’s inward-curving walls form a "picture frame," inspired by Song paintings. Elevating part of the floor and removing the door add subtle ceremony. Wood veneer unifies the living room and balcony, blending indoor-outdoor scenery seamlessly.
▼卫生间
针对次卫正对玄关的顾虑,我们在次卫门前增设了一道“缓冲穿堂”:入口处营造宋式门廊的仪式感,内侧设置独立洗手台,既化解直冲又增添实用功能。主卫则根据业主需求,舍弃淋浴功能,借用部分空间嵌入开放式衣帽区。
To address concerns about the secondary Wei Zheng porch, a "buffer hall" with a Song-style ceremonial entrance was added, featuring an independent wash basin for practicality. The main bathroom was reconfigured to remove the shower and incorporate an open coat and hat area, meeting the owner’s needs.
▼主卧
推开与客厅收纳柜造型一体的双开门,进入主卧的仪式感油然而生。为化解衣帽间里“过道浪费”的难题,我们以地台重塑格局——抬高的木质地台将床区与过道融为一体,既模糊了行走与休憩的边界,又让原本零碎的角落转化为可坐可卧的复合区域。
Opening the double doors integrated with the living room storage cabinet creates a ceremonial entrance to the master bedroom. To address "aisle waste" in the cloakroom, a raised wooden platform unifies the bed area and corridor, blurring the line between walking and resting, and converting fragmented corners into combined sitting and sleeping zones.
▼次卧
长辈房以实用与安宁为设计核心,墙面延续素雅基调,采用浅灰与米白营造舒缓氛围。顶天立地柜嵌入墙体,避免外凸压迫感;床头柜角做圆角处理防磕碰。地面通铺暖木色地板,搭配低饱和麻质窗帘。没有冗余装饰,却在每一处细节中藏入对长辈生活的温柔关照。
The elder room prioritizes practicality and tranquility, with elegant walls in light gray and rice white for a calming effect. A recessed ceiling cabinet and rounded bedside table corners enhance safety. Warm wood floors and low-saturation linen curtains add warmth, while minimal decor reflects thoughtful care for the elders' comfort in every detail.
客服
消息
收藏
下载
最近





















