查看完整案例

收藏

下载
01 / 概述
Abstract
本案位于杭州萧山区是一套面积为155㎡的住宅改造项目,原房型是四室两厅三卫适合多人家庭的常规布局。屋主是一对夫妻养了两只狗狗和一只猫咪。原始房型方正,两房朝南,但朝北两房间面积较小,且储物设计不足。
02
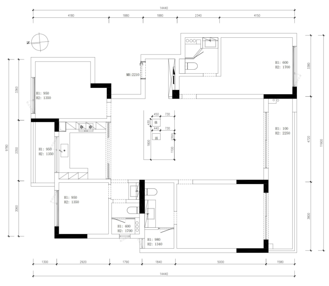
/ 平面规划
Interior Design Plan
△
原始平面图
△
平面布置图
玄关侧面我们设置了翻板换鞋凳、洞洞板置物,正面结合原始柜体做整墙鞋柜,放大玄关储物空间。公区我们拆除多余墙体,将阳台和客厅打通,延伸横向视觉面,并利用阳台凹角做猫柜减少空间浪费。
入户北面的01小房间我们拆除原始房门将次空间改造成宠物房,“小狗乐园”由小狗沙发和一面大收纳柜组成,满足将来两只小狗的物品收纳和活动空间,靠过道面使用玻璃材质,便于主人照看的同时,增加视觉通透感。另一个朝北小房间做多功能房02,将原始房间和公卫进行合并,扩大房间面积,进门一侧设置衣柜,靠墙设置墨菲床和毛毡板结合柜子,另一侧设置双人书桌,满足屋主独立办公与热爱手工需求。
03
/ 动线与功能分析
Movingline
and
Function
Analysis
△
功能分析图
我们将客餐厅与阳台打通,使横向公共空间更加开阔,利用阳台凹角做猫柜,对面则设置洗烘机与洗手台,减少空间浪费。沙发不规则摆放让整个公区更自由,靠近主卧一侧结合猫柜做一体式电视柜。U型厨房设计,结合岛台采用高低台设计,玻璃移门保证整个空间的通透和采光。
次卧做多功能房01,将原始次卫外置做公卫,设置折叠门,增加空间灵活性,靠窗做地台床,沿墙设置书桌,后期可变为儿童房,满足未来家庭人口变化的需求。
04
/ 收纳规划
Storage Planning
△
收纳三维分析图
我们在玄关侧面设置翻板换鞋凳与洞洞板置物,正面一组鞋柜。宠物房设置整墙超大收纳柜体,用于收纳三只毛孩子的日用品。主卧我们将阳台纳入房间拓展套内房间面积,并在床侧设置了一组衣柜,增添隐私性,床尾做整墙柜体,增减储物空间。在整屋收纳规划上,物品应满足就近收纳,任一空间都分布了收纳区域。
05
/ 主材&软装分析
Main material analysis
△
主材&软装分析图
全屋奶白色为主,地面选用低饱和度木纹砖,整体空间通透干净。家具柜体等全部选用天然原木材质,简洁不失质感。现代极简混搭包豪斯,黑白子母茶几搭配米白色prado沙发与togo毛毛虫,凸显空间质感。
06
/ 视觉展示
Visual Display
客餐厅
/
Living
room
厨房
/
kitchen
主卧
/ Master Bedroom
书房
/ B
ookroom
宠物房
/ Pet room
多功能房
/ Multifunctional Area
设计时间/Time
2025年
设计类型/Type
家庭住宅
主案设计/Case Design
罗京 Jing Luo
设计团队/Team
遇璟空间设计
关于遇璟:
遇,逢也。——《说文》
万物相识始于遇见,与人,与景,与心。遇璟空间设计在为业主提供高品质设计的同时,更注重物理空间中所流动着的情感。每一张图纸,每一次建构,都是相逢的开始,都是对于幸福的追求。设计师和业主之间通过空间相连,光影间尘埃落下与目光相接的瞬间,是人与景的初遇,更是心灵与心灵的相逢。
时光流转,与“璟”相遇。
好好住 | 遇璟空间设计
客服
消息
收藏
下载
最近




















