查看完整案例

收藏

下载
13067777114
Merci
2025
Design
Space & Art
···
项目名称/ 甚行办公室
设计机构/
魔戏空间设计 ® ABDdesign ®
项目地址/ 宁波
主要材质/
海洋板、艺术涂料、烤漆饰面、地胶
项目面积/ 478㎡
完成时间/ 2025
项目负责/ 张博 创意设计/ GeGe
设计团队/ 励威波,陈艳文
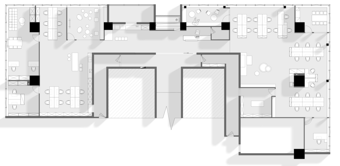
△
彩平示意图
△
施工前
△
施工中
空间色彩
在色彩上,以米白色为底色,干净而温和,营造轻松舒适的办公环境。
品牌专属的绿与橙作为点睛色,在明度对比中构建层次分明的视觉重心,既保持现代办公的专业调性,又传递出企业创新基因中的活力意象。
空间材质
在材质上,以细腻涂料铺陈基底,木饰面作为主体材质贯穿其中,以其自然温润肌理,
构筑
温和且
包容
的工作场所。
金属元素以框架、收边等形式适度介入,
冷色光泽与木质暖调碰撞出时尚感
。
01
前厅入口
入口前台区域简约而不失张力,冷峻的金属配合干净利落的线条与结构,呈现富有质感的现代工业风格。前台以鲜明的绿色柜体为核心,与金属形成强烈的视觉碰撞,同时呼应品牌logo,打造自由、大胆、活力的办公场景。
入口茶水吧以海洋板为核心材质,形似流动的天然纹理赋予空间温暖灵动的基调,搭配绿色背板,延续品牌元素的同时,营造出自然且富有人文气息的氛围。舒适的桌椅、地毯与生机盎然的绿植组合一起,如同家居客厅般舒适自在。
02
左侧办公区域
左侧办公区空间设计以简约为基调,通过有序布局与色彩点缀,打造高效且充满活力的工作环境。悬挂的绿色部门标识灯具,以鲜明色彩打破空间单调,注入活力元素,同时清晰划分功能区域,增强空间指引性。
会议洽谈区以绿色为主色调,构建出活力与自然交融的空间氛围。大面积窗户引入充足自然光,使区域明亮通透。打破传统会议室刻板印象,以自由灵活的布局,打造多元开放的互动讨论空间,尽显开放协作的年轻姿态。
创始人办公室
是一个
兼具专业感与创意氛围的空间。
开放式布局融合办公与休憩区域,大窗户引入充沛自然光,
配合几株绿植,打造通透有序的工作场所
。
海洋板的
融入增添自然温度,与简洁的线条、规整的柜体形成质感对话,传递出主理人沉稳而不失灵动的气质
。
03
右侧办公区域
右侧办公空间以鲜明的橙色为主色调进行点缀,搭配白色、木色等基础色调,营造出活泼且专业的氛围。开放式的办公区域内,利用绿植巧妙分隔空间,既保证工作的专注性,又增添自然生机。
办公区一侧是产品展示区,以半包围结构呈现,整体是专业且科技的。纯净的白色搭配原木色,给人安心且舒适的视觉感受,产品规整陈列于格子架与展台上,搭配灯光烘托,突出产品展示效果。
洽谈室地面采用橙色铺设,搭配白色桌椅与蓝色
玻璃
,营造出轻松且具设计感的交流环境。
另设有用餐区,
兼具实用性与休闲感,成为员工放松互动的温馨角落,尽显年轻活力与家居化的舒适体验。
- End -
.
MERCI DESIGN
客服
消息
收藏
下载
最近


























