查看完整案例

收藏

下载
用全新的时尚的中医医院设计新模式诠释深邃的、辩证的、抽象的中医科学内涵与文化精神。
邛崃市中医医院位于
古称临邛
的四川省邛崃市
,
建城
迄今
已有
2300多年历史,是四川最早的四大古城之一
。邛崃市中医医院是一个
800床位的、总建筑面积9.3万平方米的新建大型中医医院。
▲与周边城市环境完美融合
▲
天人合一、东方韵味
▲既传统又时尚的建筑语言
提起中医医院建筑,
“
新中式
”风格往往成为
必然选择
,似乎唯有传统建筑形式才能诠释中医的悠久历史与独特气质。传统建筑形式固然
能体现一些
中国文化的
历史感
,但却
与现代医疗建筑的实际发展需要不相吻合,也
不足以
准确恰当地
表达中医
的奇幻深邃
之美。
▲兼具东方韵味与时尚的中医医院
中医,不仅是中国传统文化
中
的瑰宝,更是一门
面向未来
、致力于
用独特的视角
解决现代人健康问题的
真正
科学,蕴含着
东方智慧
与深刻哲理。
因此,
中医医院的建筑设计不应仅仅停留在对历史
传统建筑
的回溯
和符号的堆砌
,更应
大胆地用现代和未来的方式
展现中医
的
科学
性和哲学性
,彰显中医接近生命本源的纯粹之美、无限至简的艺术之美,以及天人合一的哲学思辨
的
魅力。
同时
作为邛崃市重要的大型医疗设施,这座
中医
医院的建设对城市片区的振兴有着重大的拉动作用,其现代
时尚
、面向未来的建筑风格,也与城市崭新的建设进程完美呼应
。
设计团队希望探索一种全新的时尚的中医医院空间模式。
这种
中医医院的
新模式不仅聚焦于建筑
形态
的创新
表达
,更注重
中医医院
空间氛围的
现代
营造。设计中,摒弃传统中式建筑中过于强调轴线、符号与复古
的建筑
形式,转而以医疗建筑的科学性为核心,将空间的人性化与舒适度放在首位,精心
布局高效流畅宜人的就医
流线,让人们
在舒适的就医过程中自然领略
中医之美
与古老中医的现代魅力
。
▲暮色中的中医医院
▲与环境共生
▲虚实相生、阴阳转换的空间趣味
▲饱含生命力的空间形态
串接门诊、医技、住院三个板块的医疗街,通过中国园林的塑造手法,将超市、书报亭、景观扶梯等休闲类功能与景观相融合,融入虚实阴阳的空间转换之中,带来自然轻松的
现代医疗康养空间
体验。通过
以中医独有的医学性、科学性和哲学性作为设计的核心路径与目标,生动诠释中医
辩证
的思想与天人合一的智慧。
中医医院的设计不能一味复古,而可以有所创新和发展,也可以体现现代与时尚。
▲流畅简洁、对话天地的门诊入口大厅
▲舒适流畅的医疗街空间
▲流畅简洁的室内共享空间
在院落空间的设计上,巧妙融入中国文化的独特氛围与意境。阴阳相生、虚实相间、禅意流淌的空间,
带来
中医传统
文化
的趣味
、
韵味
和意味,探索
“既现代又中国” 的设计
手法
。
室内空间明快简洁、舒适流畅,体现着现代医院时尚性与中国传统文化性的结合,用全新的视角诠释中医的独特魅力。
▲中国文化意境的院落空间
希望邛崃市中医医院以未来的科学视角面对传统的中华医学,以时尚的优雅的流动空间舒缓现代人病痛的焦躁,以曲直虚实之间的抽象空间展现朦胧思辨的空间趣味,叩响深邃的中医哲学思想之门。
项目图纸
▼
▲总平面图
▲首层平面图
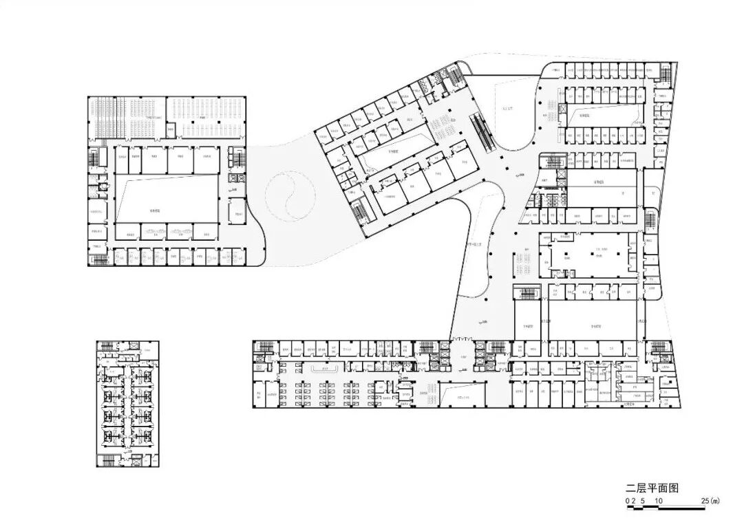
▲二层平面图
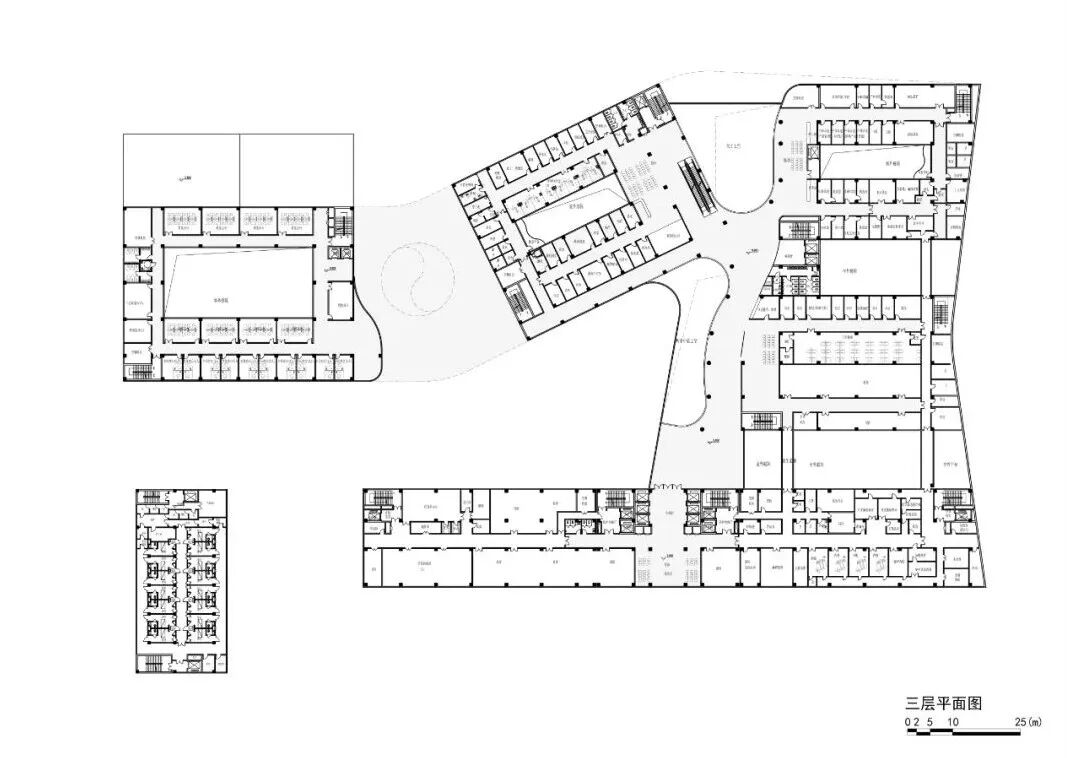
▲三层平面图
▲四层平面图
▲
5-12层平面图
项目信息
项目名称
丨邛崃市中医医院
项目类型
丨医疗建筑
项目设计&完成年份
丨
2020年-2023年
项目总负责人&
主创建筑师
丨顾志宏
工程主持人
丨刘毓杰
、宋军勇
方案设计团队
丨
顾志宏工作室
施工图设计团队
丨设计一院
项目地址
丨
四川省成都市
建筑面积
丨约9.3万
㎡
摄影版权丨
魏刚
供稿 顾志宏工作室
编辑 科技信息部
客服
消息
收藏
下载
最近































