查看完整案例

收藏

下载
2025年竣工项目
厦门大学翔安校区博士后公寓一期工程A地块
©AUAD厦大设计
厦门大学翔安校区位于厦门市翔安区东南部,即翔安南路以北,香山鹊鸟髻以南的区域内,以“山水校园”为主题和生长的态势与基地山水文脉相契合的校园规划,构筑了浪漫而富有创意的校园环境。
▲项目区位(厦门大学翔安校区)
本项目为博士后公寓一期工程,该地块位于厦门大学翔安校区西北角,东临校内道路,东面是西部学生公寓,东南面是信息学院,均为多层建筑,西侧为田地。场地地势南低北高,场地内部高差较大,周边植被丰富,景观优美,为建筑提供了良好的自然环境。
▲总平面图
厦门大学校园建筑为嘉庚风格,体现了中西建筑文化的融合,具有独特的建筑形态和空间特征。厦门大学始终扎根于
闽南文化
和
嘉庚文化
,力求为学子创造出舒适的学习和生活空间。
▲博士后公寓与校园环境
本设计以
生态环境
▲项目鸟瞰
厦门大学翔安校区博士后公寓一期东临校内道路,结合场地特点采用
一字型
的平面布局,通透灵活,公寓间形成横向景观轴。入口以景观大道为标的,便捷人流集散,丰富景观空间。各栋公寓由景观步道进入,既方便管理,又加强公寓间的联系。
▲布局分析
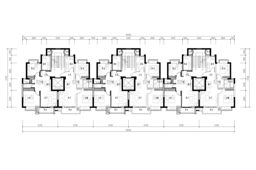
1
平面设计
一字型的平面布局使得公寓南北通透,在通风及采光方面具有优势。户型独立、建筑密度低,保证了公寓私密性的同时,也便于学校管理。
各行为空间专用性明确,根据不同要求,做到动静分离或干湿分离,符合居民生活行为特征。整个布局紧凑而完整,经济合理,形成适宜居住的公寓园区。
▲单体标准层平面图
2 立
面设计
厦大翔安校区与思明校区共属一校,新校区建设无疑应发扬厦大精神,传承嘉庚风格,然而从时空角度看,两个校区既隔海相望又跨越两个世纪,锐意创新,彰显时代精神更是翔安校区新建筑创作的重要层面。
“古今、中西合璧,兼容并蓄的开放理念”是嘉庚建筑风格的文化内涵,建筑设计中力图摆脱浅显的传承手法,以抽离的坡顶无素、简洁的建筑形体等细部符号,运用现代手法加以变异、重组,力求创造出具有开放精神的厦大校园建筑新风貌。
▲单体立面效果
设计以简练的色彩搭配,体现其清新明快的风格。虚与实,水平与垂直等的对比手法,体现新世纪的时代气息。
▲场地内部交通
厦门大学之所以被誉为“中国最美大学”,其魅力在于
人文与自然的统一
,在于
山水与建筑的和谐
,在于
环境和空间的融合
。
厦门大学翔安校区博士后公寓一期设计,是对厦门大学近百年来延续和传承的山水之美、人文之美、建筑之美以及建筑手法有更深入的认识和思考。
项目名称 |
厦门大学翔安校区博士后公寓一期工程A地块
项目地址 |
厦门大学翔安校区
项目类型 |
居住建筑
用地面积 |
11146㎡
建筑面积 |
25000㎡
项目时间 |
2022-2025年
建设单位 |
厦门大学
设计单位 |
厦门大学建筑设计研究院有限公司
设计总负责 |
黄章钦
建筑设计 |
刘哲权 张思文 李婧琪 黄心怡 林未秋
林子云 郑瀚逵
结构设计 |
连滨晔 曾韶崟 何用林 周丽 阙华荣
洪鑫鑫
电气设计 |
张晓山 丘杭燕 纪兆宁
给排水设计 |
李逸钦 游志敏 杨博
暖通设计 |
江树春 俞志翔
幕墙设计 |
陈伟球 伍锦娜
室内设计 |
林恬韵
翁晨烨 詹明月
景观设计 |
郑毅梅
建筑摄影 |
周白聪
EDITORS
李立新 /
主编
刘建元 /
责编
李武 /
校审
张思文 /
文稿
周白聪 /
编辑
厦门大学建筑设计研究院有限公司 /
版权
客服
消息
收藏
下载
最近














