查看完整案例

收藏

下载
山水人文
,起寮筑所
——
福安市畲族文化中心
©AUAD厦大设计
福安市畲族文化中心是一座
集会议、展示、公众活动于一体的大型文化综合体
,项目的选址位于福安市城区富春大道西侧坂中亭兜c11地块,总用地面积约5628㎡,总建筑面积约15000㎡。
▲总平面图
项目所在地位于福安市富春大道景阳大桥的西北侧,交通便利,毗邻富春溪,背山面水,具有优美的自然环境。
▲项目区位
福安市是我国畲族主要聚居地,总人口65万人,其中畲族人口7.2万人,占全市人口的11.8%。福安畲族历史源远流长,畲族人民在创造美丽家园的过程中,创造了丰富多彩的畲族文化,成为了中华民族文化瑰宝的重要组成部分。
▲理念分析
福安市畲族文化中心展现是和发扬畲族文化的重要场所。基地北靠山体,东临富春江水,观山赏江,地理位置得天独厚,设计从
总
平面布局、空间构成到环境设计、展厅流线
等方面不仅传承了传统风格,也体现了时代追求。
▲总平面设计
▲立面设计
1.总平面布局:从院落到场所
福安畲族文化中心的总平面设计体现了
整体构图的均衡性
——整体布局以畲族传统民居的院落式展开,基地北侧现有场地有两棵古榕树,在总体规划时将其作为重要的景观节点融入到建筑设计中。
▲南向鸟瞰
建筑的总体布局围绕着庭院打开,西侧三个小体量建筑依次错开,有节奏地重复形成叠落布局,和东侧的大体量形成对比,主次分明,既体现了构图的均衡性,又可以为中间庭院争取较大的使用面积。入口设置广场,为喜爱歌舞的畲族群众提供良好的室外活动和交流的场所,同时也给行人提供最佳角度来观赏整个建筑。
▲西南方向鸟瞰
2.建筑造型:基于传统的再现
福安市畲族文化中心的造型源于对畲族民居中住宅和
碉楼建筑
符号的抽象。碉楼是福安畲族居民为了防止外敌入侵建造的防御性建筑,通常与传统民居融合设置。屋顶形式采用畲族传统民居常用的
歇山顶
,青灰色屋顶与土黄色墙身体现了畲族民风的朴实和平和,同时也与青山绿水的自然环境相协调。
▲畲族古民居群
▲新建筑与周边环境
从外形上看,碉楼体量较高,竖向的形体与低矮的民居错落有致。高耸挺拔的楼身结合天然石材的砌体,统一于素雅、淳朴的色调当中。文化中心的塔楼位于整个建筑垂直交通的位置,兼具人流疏散等功能,对采光通风的要求较高。因此,建筑开窗较大,内部空间开敞。
▲西向立面
▲西南方向人视
廊桥
在畲族民居聚落中是较为重要的公共建筑。它既为居民的交流活动提供了空间,又是民俗文化、民间社会信仰的载体。在福安市畲族文化中心的设计中,建筑的主入口通高两层,底部以柱子架空,不仅有联系交通的功能,还和“廊桥”一样,预示着此地人杰地灵、福气满满。
▲廊桥与庭院
3.功能分区
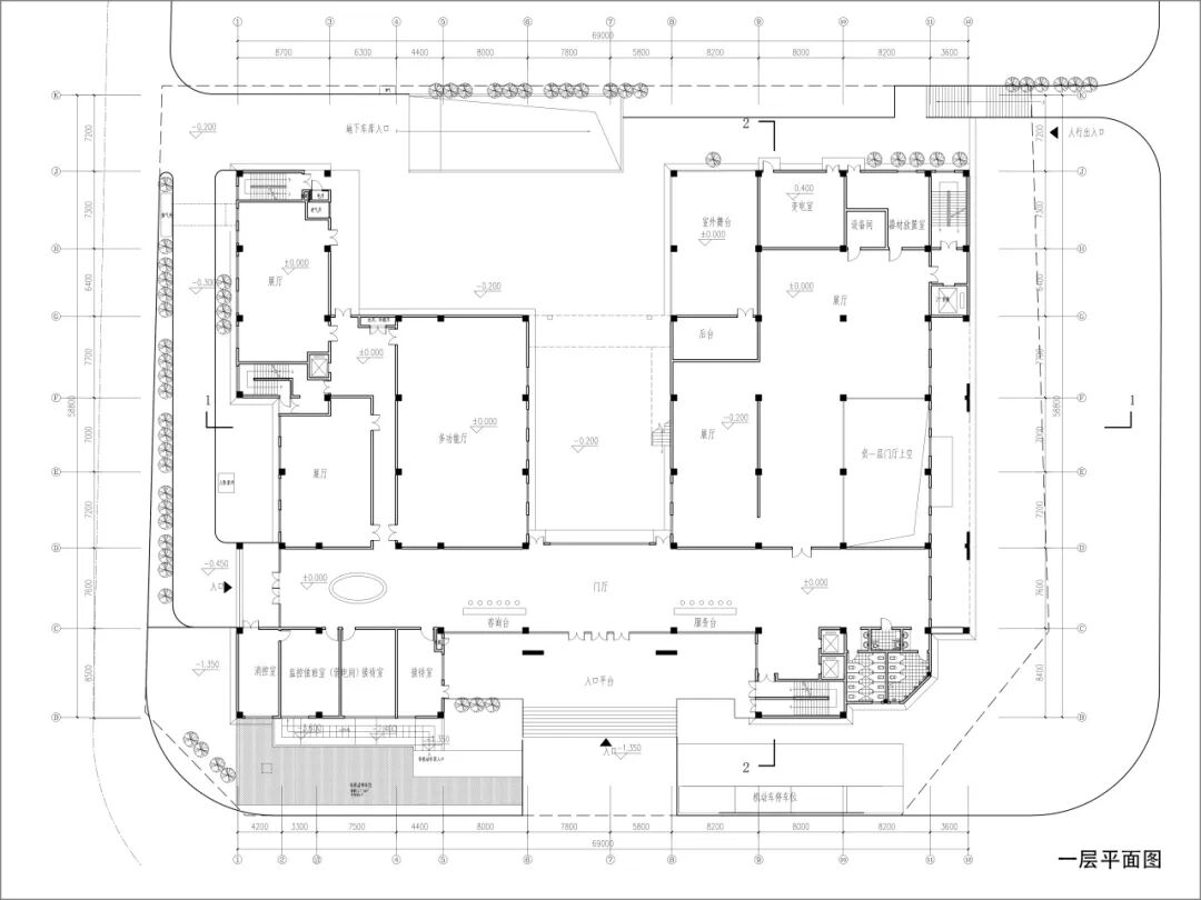
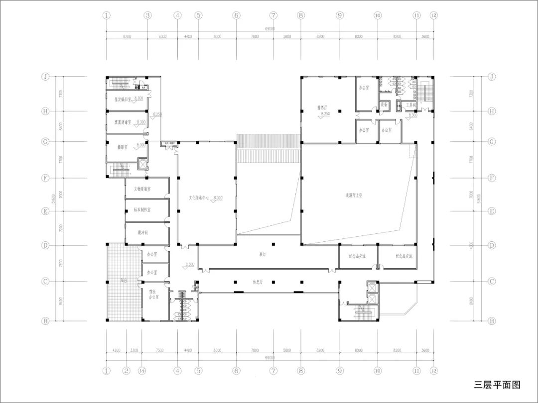
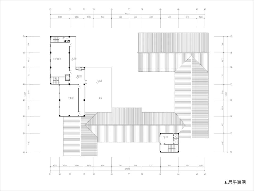
建筑主要分为两个部分,西侧设置为福安市博物馆,东侧为文化中心与表演厅。文化中心展厅位于负一、一层,分别以区域人口、经济生产、政治活动、福安畲话、风情民俗、文化生活等六个方面的主题展来展示畲族悠久的历史文化。表演厅位于二层,采用大跨度结构拓展室内活动空间,在设计时利用表演厅的高度在北侧作局部的夹层,以满足工作人员的房间使用需求。院落位于整个建筑的北侧,由建筑体块围合成半室外空间,为市民休闲娱乐提供场所。
▲内部排练厅
▲各层平面图
项目名称 |
福安市畲族文化中心
项目地点 |
福建宁德
项目类型 |
文化建筑
用地面积 |
5628.40㎡
建筑面积 |
14705.44㎡
项目时间 |
2019-2021年
项目总负责 |
李志刚
建筑设计 |
张燕来 李志刚 刘建元 王伟 黄章钦
林宏睿 于滨彬 蔡艺煌
结构设计 |
连滨晔 何用林 朱晓薇
电气设计 |
张晓山
给排水设计 |
游志敏 卓靖
暖通设计 |
张奕昌
詹克磊
工程造价 |
薛瑞清
建筑摄影 |
周白聪
获奖情况
| 2023年度教育部优秀勘察设计建筑设计三等奖
EDITORS
李立新 /
主编
刘建元 /
责编
李武 /
校审
周白聪 /
编辑
厦门大学建筑设计研究院有限公司 /
版权
客服
消息
收藏
下载
最近


























