查看完整案例

收藏

下载
Maxim Loscutov Nefa Architects
Yandex是一家大型俄罗斯IT公司,致力于开发创新产品和服务。公司在多个国家设有办公室,员工超过30,000人。
业务目标
新办公室的需求源于公司的扩展,以及创造更多工作空间的需要。设计要求的核心是打造一个功能性强、符合人体工学且视觉上具有统一感的环境,以促进员工之间的团队合作、专注和非正式互动。
▲空间概览 © Maxim Loscutov
空间布局
该办公室为155名员工设计。布局围绕一个玻璃立方体展开,这是空间的核心元素和视觉焦点。它组织了大厅、流线,并将关键功能区域围绕着它进行布局。立方体内部有三个非正式的会议室,保持视觉开放的同时,又能提供一定的隐私感。立方体的左侧是一个共享工作图书馆,右侧是相邻的开放式区域。总的来说,空间包括12个不同大小的开放式区域和10个会议室。
▲大厅 © Maxim Loscutov
在楼层的最远端,设有一个宽敞的咖啡点,内有厨房、沙发、长凳、放松区以及带有茧椅和凉亭的休息区。还专门提供了冥想室。
▲走廊 © Maxim Loscutov
▲咖啡点 © Maxim Loscutov
布局避免强调等级制度;所有工作空间都开放且平等,注重灵活性、可接近性和舒适性。
▲放松区 © Maxim Loscutov
▲共享工作区 © Maxim Loscutov
设计概念
办公室位于前“罗斯西亚”工厂建筑内。场所的工业记忆成为建筑概念的起点。室内设计融合了工业元素——金属支撑、凉棚、玻璃砖——与温暖包围感十足的材料。
舒适的图书馆
© Maxim Loscutov
中央的玻璃砖立方体参考了工业功能主义,但被转变为一个温暖的“服务器”,承载着思想和沟通,作为一个将过去与现代数字文化相连接的模块。共享工作区设计为一个舒适的图书馆,配有木桌、座位小隔间和柔和的灯光。开放式区域采用了毛毡面板、复古绿色或赤土色的墙面,并配有集成座位和绿植的储物柜。
▲集成座位和绿植的储物柜 © Maxim Loscutov
▲座位小隔间 © Maxim Loscutov
▲毛毡面板细部 © Maxim Loscutov
▲会议室 © Maxim Loscutov
▲黄色米色调的配色 © Maxim Loscutov
设计师语录
“我们希望在场所的工业记忆和触感舒适之间找到平衡,创造一个人们在远程工作时代愿意待更长时间的办公室。玻璃砖立方体中的非正式会议室,共享工作图书馆,类似凉亭的咖啡点,复古色彩和毛毡——这个项目关注的是个人、他们的日常节奏,以及在工作空间中感受到的内心舒适。” — Evgenia Bershtein,项目设计师
▲茧椅 © Maxim Loscutov
▲冥想室 © Maxim Loscutov
▲非正式会议室 © Maxim Loscutov
▲玻璃砖 © Maxim Loscutov
“今年,我们完成了最后一层,‘nefa’architects的设计成功地将两翼无缝连接起来。与Benua中心的其他Yandex空间相比,这一结果呈现了一个有趣的对比:严格的功能性和某种天真感让位于更微妙、更柔和的解决方案。进入新空间后,第一感觉是轻盈和通透——这是日常使用者和访客都一致注意到的印象。这种宽敞感并非偶然;它由宽大的开放式共享工作区和拥有吊床并能俯瞰涅瓦河的舒适咖啡点创造而成。当然,位于空间核心的半透明玻璃砖墙,柔和的曲线营造出独特的效果。它们打破了走廊的单调,与光线和透视相互作用,尤其在日出和日落时展现出特别有趣的变化。柔和的粉彩色调和宁静的形态将你带入一个安详的氛围。而与之形成对比的是,建筑金属骨架的元素在整个空间中展现:这种设计手法体现在走廊、微型会议室以及我们特别自豪的冥想室。这样的多样性对我们而言非常重要,因为它反映了员工的精神面貌以及他们工作的城市。” — Nikita Starostin,Yandex建筑与设计负责人
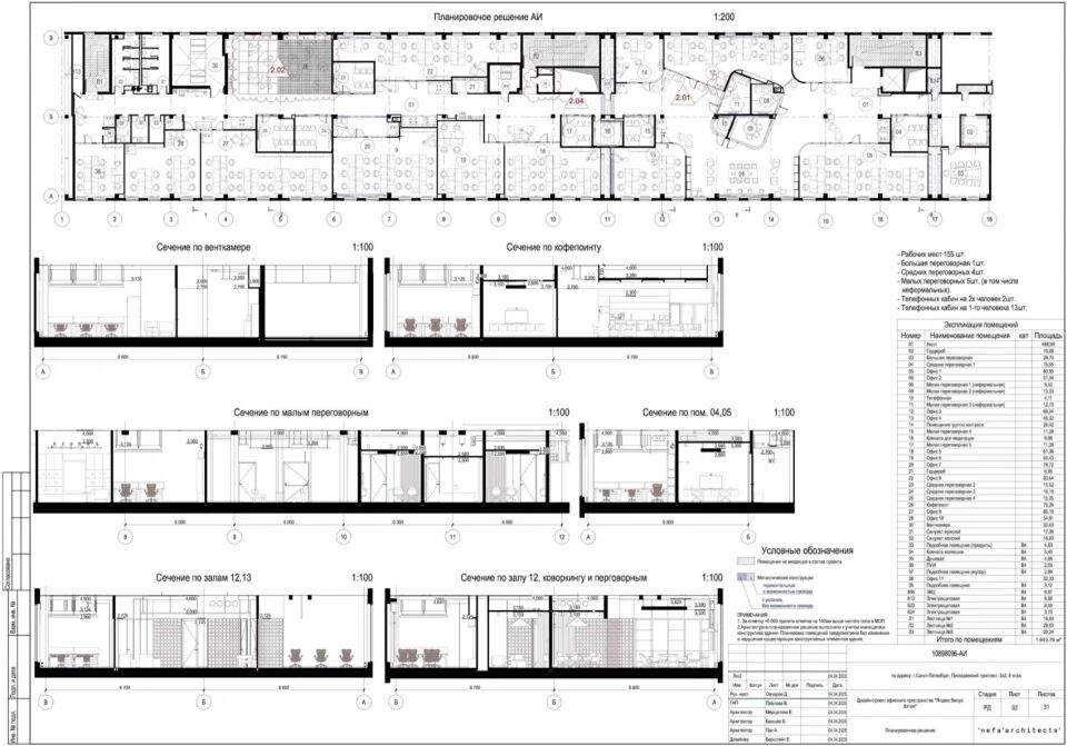
项目图纸
▲总平面和剖面 © Bulat Baishev
▲咖啡点平面和剖面 © Bulat Baishev
▲共享工作区平面和剖面 © Bulat Baishev
Project Overview
Client: Yandex
Location: Benua Business Center, 8th floor, 2k2 Piskarevsky Prospect, St. Petersburg, Russia
Design Period: 2023 – 2024
Construction Period: 2023 – 2024
Design - Construction
Architecture Firm: ‘nefa’architects’
Project Team: Dmitry Ovcharov, Elena Mertsalova, Evgenia Bershtein. Architects: Vasilina Pavlova, Bulat Baishev, Antonina Pak.
General Contractor: ARS
Manufacturers - Suppliers
Furniture: Herman Miller, Delodesign, divan.ru, Archipelago, Eburet, The Idea
Kitchen: K.S.Büro
Lighting: ZEON Lighting
Flooring: ESCOM, Forbo
Acoustics: Flyfelt, Feltouch
客服
消息
收藏
下载
最近























