查看完整案例

收藏

下载

翻译
Architects:Pineda Monedero
Area:150m²
Year:2024
Photographs:Del Rio Bani
Manufacturers:Viabizzuno
Lead Architects:Alex Pineda, Antón Monedero, Jaime Prous Architects
Category:Renovation,Apartment Interiors
City:Barcelona
Country:Spain
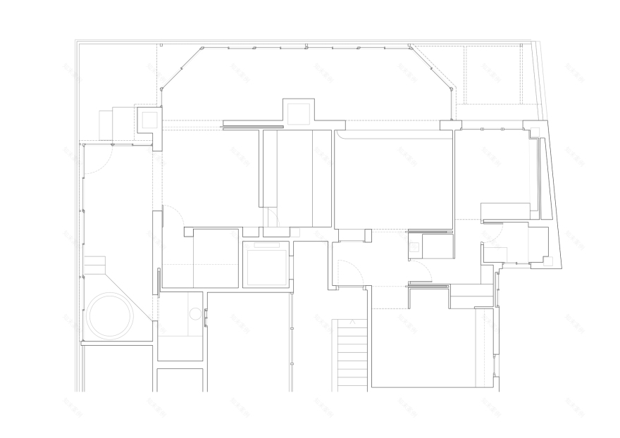
The housing is located on the top floor of a building from the 1970s. Like most penthouses in the city, it is a residual space despite being the most coveted apartment. By retracting the facade, the unit is positioned above the secondary spaces of the lower floors, with narrow frames and numerous obstacles such as downspouts or ventilation ducts. The goal is to camouflage these defects and through a process of subtraction, leave its structure exposed. Three main spaces are created beneath the original layout.
The first is a more open space resembling a hangar. The contrast between heavy and light elements creates the atmosphere: Thick brick pillars frame the windows, and in the center, a concrete altar serves as the kitchen. The rest of the furnishings configure the walls.
The demolition of an added gallery allows for the recovery of the terrace facing Tibidabo. Its elongated shape and brick materiality are inspired by cities where penthouses are part of the urban landscape such as the setbacks of New York or the green penthouses in Milan. The furniture is integrated into the architecture: a low garden wall wraps around the terrace and becomes a sofa or the bench of a concrete table.
The third space is the master bedroom: a gallery with views of El Prat. The facade consists of metal carpentry and a light solar protection. The bathroom, connected but without views, is illuminated by a latticed screen that mimics the intimacy of a confessional.
The materiality of concrete and brick is used to blur the existing elements from the added ones and reinforce the sensation of a space excavated within the building. Everything that is not stereotypical -windows, furniture- is resolved with dark wood carpentry and steel.
Project gallery
客服
消息
收藏
下载
最近



















