查看完整案例

收藏

下载
不用华丽的文字来表达项目,平白实在才是真理!!!我是KOL“勾勾手刘志广”,用“粤语”来写作!看不明白,请多看香港电视或多唱“粤语”歌。。。
Don't use fancy words to express the project, plain and honest is the truth!!! I am KOL "Gougou Hand Liu Zhiguang", writing in Cantonese! I don't understand, please watch more Hong Kong TV or sing more Cantonese songs...
勾勾手刘广智生活记录
HOOOOOKHADNS Liu Guangzhi's Life Record
从17年地产行业出来做移动房工厂,多年来我总结出一个发展模式,就是一个工厂一个团队一个品牌只做一个主题的移动房产品,市场上什么都做的个性订制工厂基本上不会赚到钱,因为个性订制花心思花人力花沟通成本,项目成交周期会很长!只有标准化走量产品才能赚大钱!
Coming out of the real estate industry since 2017 to do mobile home factories, over the years I have summarized a development model, that, a factory, a team, and a brand only do one theme of mobile home products. The custom factory that does everything in the market basically won't make money, becauseizing takes a lot of time, manpower, and communication costs, and the project closing cycle will be very long! Only standardized products can make a lot of money
该项目在花园、小径和不同楼层之间分布着22间客房,其非线性的布局邀请客人去探索,就像迷失Ceará沿海的一个海滨小镇的街道上。酒店可以描述为一个热带和隐蔽的避难所,位于杰里科阿克拉的中心
El proyecto distribuye 22 habitaciones entre jardines, senderos y diferentes niveles, en una implantación no lineal que invita al huésped al descubrimiento, como quien se pierde por las callejuelas de un pueblo costero en el litoral de Ceará. El hotel puede describirse, entre otras cosas, como un refugio tropical y discreto en el corazón del pueblo de Jericoacoara.
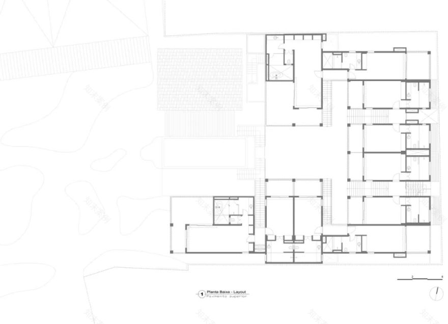
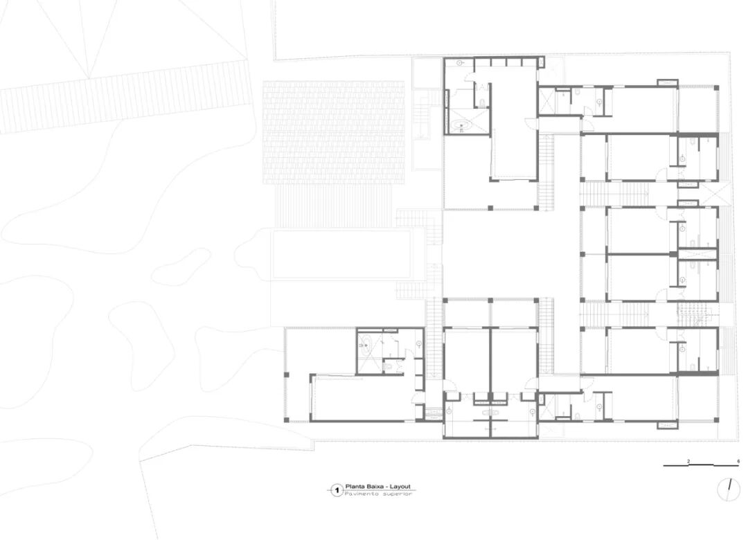
平面布置图
该地块位于Malhada海滩几米处,包含一系列独立的建筑群,这些建筑群通过外部楼梯和热带植被中的通道连接。主要概念——“一座热带别墅及其秘密花园”——指导了整个设计方案:在建筑和自然之间行走、探索和发现意想不到的视角的体验
El
terreno, situado a pocos metros de la Playa da Malhada, alberga un conjunto de volúmenes independientes que se conectan a través de escaleras externas y recorridos en medio de la vegetación tropical. El concepto principal —«una villa tropical y su jardín secreto»— guía toda la propuesta: la experiencia de caminar, explorar y encontrar perspectivas inesperadas entre la arquitectura y la naturaleza.
每间客房都可俯瞰Serrote山丘、海上日落或内花园,与景观形成了独特的联系。U形布局将休闲泳池安排在最低层,确保了上层客房的隐私,这些客房面向综合体中央的大花园。
Con vistas al Morro do Serrote, a la puesta de sol sobre el mar o al jardín interior, cada habitación ofrece una relación única con el paisaje. La disposición en forma de «U» organiza la zona de ocio y la piscina en el nivel más bajo, preservando la privacidad de las habitaciones superiores, que se abren al gran jardín central del complejo.
-关于我们-
业务联系人(移动房主号)
业务联系人(移动房产品主号)
商业运作方案
勾勾手|中国,是以移动房产业链为主要内容的自媒体,为中国“乡村振兴”项目提供配套的产品信息服务,为扩大中国的内需投资创业提供产品信息。帮助投资者在景区项目、商业街项目、营地项目、餐饮项目等等投资提供最全面的产品信息服务。
Gougoushou | China is a self media platform mainly focused on the mobile housing industry chain, providing supporting product information services for China's "rural revitalization" projects and product information for expanding domestic demand investment and entrepreneurship in China. Assist investors in providing the most comprehensive product information services for investment in scenic area projects, commercial street projects, campsite projects, catering projects, and more.
客服
消息
收藏
下载
最近































