查看完整案例

收藏

下载

翻译
Architects:Studio DERA
Area:994m²
Year:2025
Photographs:Lorenzo Zandri
Manufacturers:Cibes Lift,Eastside Timber,Lindum Turf,Planteria Group,Style Curtain,The Iron Age Metalworks,Velfac
Lead Architects:Max Dewdney
Category:Educational Architecture,Higher Education
Design Team:Studio DERA
City:London
Country:United Kingdom
Text description provided by the architects. Studio DERA has transformed a former school swimming pool into a sustainable multi-purpose learning and wellbeing space for Waltham Forest College. With the college rapidly expanding its student body, finding new ways to accommodate educational and extracurricular needs was a priority. Studio DERA had already run a sustainable materials workshop for WFC students while building a hempcrete and timber community center and nursery in nearby Higham Hill. College Principal & CEO Janet Gardner then invited Studio DERA directors Max Dewdney and Marcel Rahm to reimagine the long disused swimming pool site and do a feasibility study.
The architects decided that retrofitting the original structure and utilizing natural materials was the most sustainable and efficient way to transform the space into an attractive and inspiring hub for students and staff. A RIBA Stage 2 Report and a strong design narrative that aligned with the college's estate strategy resulted in a successful funding bid to the Department for Education.
From the outset, Studio DERA's work was shaped by ongoing consultations with educators, curriculum leaders, facilities managers, and students. The architects ran a series of workshops and engagement sessions to test spatial strategies, technical requirements, and user priorities. This informed key elements of the final design, including the subdivision of the Pool into zones, the use of biophilic and acoustic elements, and the inclusion of a stage and IT suite.
Balancing architectural ambition with operational need, Studio DERA worked closely with the college to coordinate infrastructure upgrades and ensure long-term adaptability and maintainability with the installation of a new renewable energy system. The project was completed in 48 weeks, but fine-tuning continues post-completion, based on real-time user feedback from students and staff.
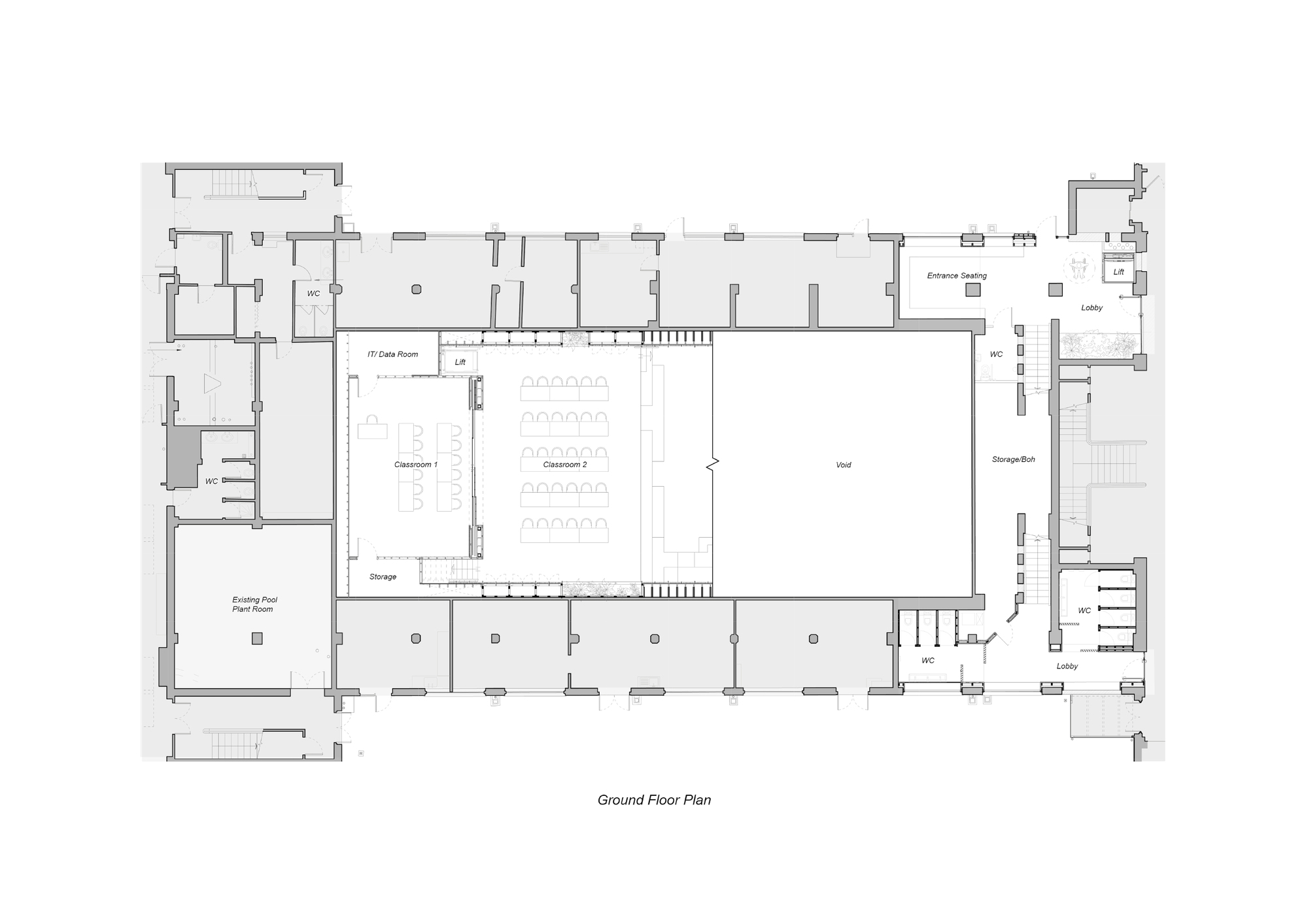
The result is a versatile, welcoming, and light-filled space of 994 m2. The Pool has five learning zones, each tailored to support a range of teaching styles and group sizes. A raised stage positioned at the former pool's deep end creates a focal point for lectures, performances, and assemblies. Beneath it, a new IT room cleverly uses the original pool depth to deliver a high-performance digital learning infrastructure. The original high-level windows were cut down to the external floor level, dramatically increasing the natural light. Studio DERA installed integrated window seating along the old pool concourse and fixed desks around the perimeter of the former pool tank for study and small group work.
To increase thermal performance to meet DfE standards, triple-glazed windows were installed, along with insulation of both external and internal walls, and new insulated pipework. Operational energy use is expected to fall significantly thanks to air source heat pumps, mixed-mode ventilation, and LED lighting. Material choices were guided by principles of low embodied carbon, durability, and circularity, and include FSC-certified timber, recycled acoustic panels, and low-VOC finishes.
Project gallery
客服
消息
收藏
下载
最近
























