查看完整案例


收藏

下载
以低调纯粹,重新定义奢华。
项目案名 |《喜 棠 》
项目地点 |龙湖丽丰西宸原著 别墅
项目信息 | 400㎡ 别墅
设计风格 | 静奢风
设计施工 | 尊道国际设计
将奢华解构为可触摸的温润、可凝视的深邃、可感知的从容,实现空间向精神场域的价值跃迁。
运用材料:木饰面、岩板、金属、老木头等。
*
DESIGN BACKGROUND&业主故事
与业主的相遇,源于一次朋友相聚的偶然引荐。夫妻二人工作忙碌却格外重视家庭陪伴。这套别墅不仅是改善型住宅,更是他们规划三代同堂生活的起点——未来与父母同住,既要满足孩子的成长需求,又要为长辈创造舒适便利的环境,同时保留夫妻二人的独处空间。既要规划老人房的无障碍细节,又要避免传统别墅的“冰冷感”,更关注功能与美学的平衡:“我们不想为了实用牺牲审美,但也不想让家变成样板间。”
*
DESIGN THOUGHT&设计思路
➊ 空间零散,楼梯间采光差,采光天井没有利用充分
❷ 修改入户门位置,让入户区得到自然光线,并做了挑高处理
❸ 拆除楼梯两侧墙体,让光线得到延伸
❹ 拆除南侧墙体增加采光面积
* 负二层入户区
入户的天窗设计,可以让大量自然光进入室内,增加空间的明亮感和通透感。
过道预留充足的收纳空间,挂起脱下的外套、首饰。隐形门设计,视觉上更开阔方便。
入户预留了洗手台,方便进门就能洗手,不用再绕去卫生间解决。悬浮式设计显得空间更通透,与鞋柜和储物柜之间做衔接,暗藏式的线性灯带,形成多层次的人工照明体系,晚上回家进门就有温馨的暖光帮助恢复视野。
地面的条形砖与空间中不同高度的柜体做呼应,既让不同功能区划分明确,但同时又保持了一定的连通性。
*
负二层会客厅
步入地下室空间,首先感受到的不是设计本身,而是一种“氛围”:安静、沉稳,但却极具存在感。
开放式布局串联起各个功能区,挑空设计,既模糊了空间界限,又营造出温馨的第二客厅氛围。
整体采用了浅色调,墙壁和天花板使用米色,营造出温馨且宽敞的视觉效果。木质元素在家具和楼梯中的运用,增添了自然和温暖的氛围,与浅色调形成和谐的对比。
将天井的光线充分引入,使整个会客厅光线明亮,营造出一种“天光云影共徘徊”的诗意氛围。夜晚,星光点灯的意境,天井之下,而是一场充满仪式感的心灵之旅。
电视墙的位置做了悬浮处理,下方的地台用了冷翡翠的奢石岩板作为点缀,极简手法与高品质材料的完美融合,与整体空间的中性色调呼应营造视觉的冲击感,兼具奢华与舒适的独特感官。
“空间的布局应如同音乐的旋律,既有节奏又富有变化。”通过高低错落的设计和不同区域的高度差异,创造了丰富的层次感,使空间更具动态和趣味性。
承重柱
方圆结合的设计,嵌入冷翡翠的奢石岩板,为整体增添了一抹灵动,赋予柱子独特的艺术气质。
*
负二层品茗区
会客厅与品茗区
形成气场舒适的社交场,沙发背后是品茗区,温润的木质柜体和石材岛台,柔和的灯光,光影的处理像是一种无声引导,让人不自觉地沉浸其中。
这里有一种感性的触觉体验,不是为了展示,而是为了居住。
* 负二层楼梯
木质叠级楼梯的设计犹如起伏的山峦,体现了“inside out, outside in”设计理念的真实性与功能性之美学语境。设计应源于自然,回归自然,通过自然的元素和形式,创造出具有真实性和功能性的空间。
*负二层健身区
家庭健身区域,通过设计巧妙地在私密性和开放性之间取得了平衡。大面积的窗户和开放式的布局让人感觉宽敞明亮,同时又能提供一定的隐私保护。
* DESIGN THOUGHT&设计思路
➊ 负一的空间与负二层相同,选择部分区域做了挑空设计
❷ 拆除楼梯侧墙,让光线得到延伸
❸ 卫生间的位置也落在了部分天井下方
❹ 保姆房也是充分利用了南北采光井
* 负一层保姆间
负一的卧室做了立体悬浮窗口化的设计,不仅保证了卧室的采光,斜面窗口的处理与右侧楼梯相呼应,也让空间更加具有立面感。
我们希望它给人一种轻盈、通风和飘逸的感觉。采用了极简主义的设计,两侧大面积的落地窗设计,使得自然光能够充分进入室内,增强了空间的通透感和明亮感,为居住者提供兼具私密性与开放感的独特体验。
*
DESIGN THOUGHT&设计思路
➊ 原始户型空间分散不规整
❷ 厨房空间较小收纳空间不足,楼梯间采光不好
❸ 拆除空间中心墙体,使之变得更为方正
❹ 餐厅增加西厨橱柜增强收纳功能
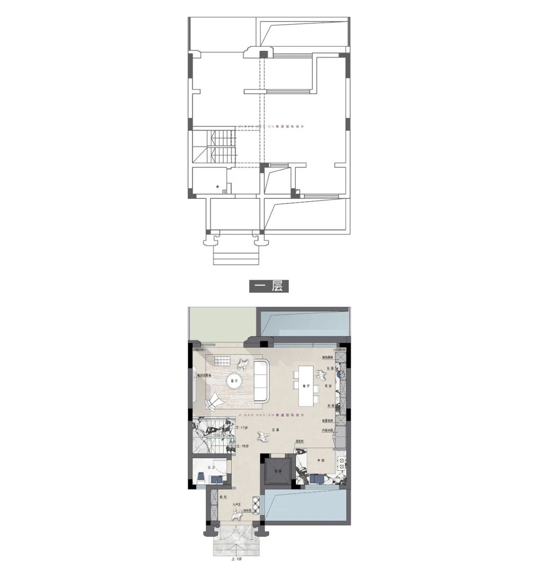
* 一层入户
入户区,整体色调以米色和浅棕色为主,使用不同材质,形成一种复合对比,右侧窗户和顶部的天光引入,保证了全天候的自然通风与采光。
通过错落的高差与家具的精妙布局,达到了“虚隔”空间的效果,开放通透的同时依然保持私密性。夕阳西下,业主归家,瞬间隔绝了外界的喧嚣与都市的繁华,进入这一片充满内在张力的宁静空间。
*一层客厅
客厅以一种低调的方式重新定义了“奢华”,没有金碧辉煌的吊灯,也没有复杂的装饰,而是一种深思熟虑的极简主义--柔软、舒适,甚至带着一丝感性的温度。大面积玻璃门窗的设计使得室内外空间彼此渗透,达到视觉与感知上的无缝交融。
“海蓝之谜”的岩板嵌入,使得背景墙成为视觉上的艺术呈现。
楼梯采用叠级设计,增加了现代感和视觉上的轻盈感。楼梯旁的玻璃护栏进一步增强了空间的通透感。
*
一层餐厨厅
以“通透感”为轴心,用材质、光影与动线编织出一张无形的网,让烹饪、用餐、会客在流动中达成微妙平衡。
避开了大胆的色彩和图案,选择了中性但有肌理的材质和色调,将自然肌理裹挟着艺术品的质感注入,干净利落地构建出一个沉静的、轻盈的充满艺术气息的用餐场所。
中厨空间毗邻餐厅,设计了可隐藏的三联动玻璃移门,赋予空间灵活可变的开合状态,适应不同场景需求。封闭时各自独立,开放后浑然一体。
* DESIGN THOUGHT&设计思路
➊ 整体空间比较方正,且南北通透
❷ 整层共设置了两个卧室空间
❸ 把原卧室卫生间改为衣帽间给父母房增加储物空间
❹ 父母房设计在电梯口方便老人上下楼
* 二层父母房
父母房的设计,有着“悠然见南山”的松弛感,左侧的超大窗户为房间带来了充足的自然光,并且提供了开阔的视野,增强了室内外的连接感。大量的木质元素,包括床头背景墙、地板、百叶门和床尾的长凳,这些元素为房间增添了温暖和自然的感觉。
在宽敞尺度中植入适老化设计的隐形关怀,让起居动线流畅如呼吸。
老人房内设计了衣帽间,衣柜采用了木质材料和玻璃柜及开放格的搭配,营造出一种温暖且现代的氛围,储物功能也更灵活多变。
*二层儿童房
儿童房设计延用浅色系的主色调,大面积的衣柜提供了充足的储物空间。
床尾设计了学习区,悬挂式书桌和开放式搁架,既节省了空间,又提供了实用的储物和展示功能。
*
二层卫生间
干湿分区的卫生间,以舒适性与实用性为核心。
* DESIGN THOUGHT&设计思路
➊ 楼梯间无采光,空间方正
❷ 整层共设计了两个卧室空间
❸ 给主卧室也预留了大的收纳空间
* 三层主卧
主卧的设计贯彻克制而深邃的美学,以静谧之力,引导人与空间产生连接。用“无主灯”理念营造睡眠氛围,床头使用解构主义设计手法,凹凸构成。
材质间形成微妙的对比,不对称设计,形成了动态和不平衡的美感。
主卧衣帽间
储物柜与展示格的巧妙结合,既满足了储物需求,又通过展示一些精美的包包饰品,增加赏心悦目感。
*
三层儿童房
床头背景做了几何形状的分割,“V”字设计增加了视觉上的艺术感和独特性,打破了墙面的单调。天花板的部分采用了弧形设计,增加了空间的层次感和视觉上的趣味性,同时也显得更加柔和。
*
DESIGN THOUGHT&设计思路
➊ 空间零散,过道狭长,采光很好
❷ 空间做了部分外扩
❸ 露台部分做了阳光房的处理
❹ 狭长过道做了空间的分割
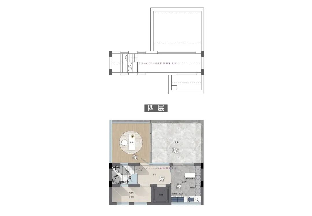
* 四层
书房是理性与感性的交界地,天窗设计允许大量自然光进入,增加了空间的明亮感和通透感,使房间更加舒适和节能。书桌的桌腿设计独特,使用了石材和木质材料,增加了视觉上的层次感和质感。
过道左侧的窗户让自然光充足地进入走廊,折射的光线投射在地板上和墙面上,仿佛置身时空隧道的交汇点。
独立洗衣房被设置在顶楼区域,在这里,洗衣、晾晒、折叠、收纳一气呵成,开放式收纳格预留清洁剂专区,让琐碎日常在极简设计中优雅隐身。其实:“真正的奢华,是让生活痕迹优雅隐身。”
客服
消息
收藏
下载
最近























































































