查看完整案例

收藏

下载

翻译
Architects:Natura Futura
Year:2025
Category:Houses
Collaborator:Kevin Araujo, Bamba Studio, Jhonatan Andrade, Edison Noboa, Roswell Suárez
Inhabitants:Wilmer Eleno, Victor Amaiquema, Teresa Mariscal, Grecia Vera, Pablo Carbo, Miller Vargas
Structure:REARC Institute Practice Lab
Drawings:Momento Movimiento
City:Babahoyo
Country:Ecuador
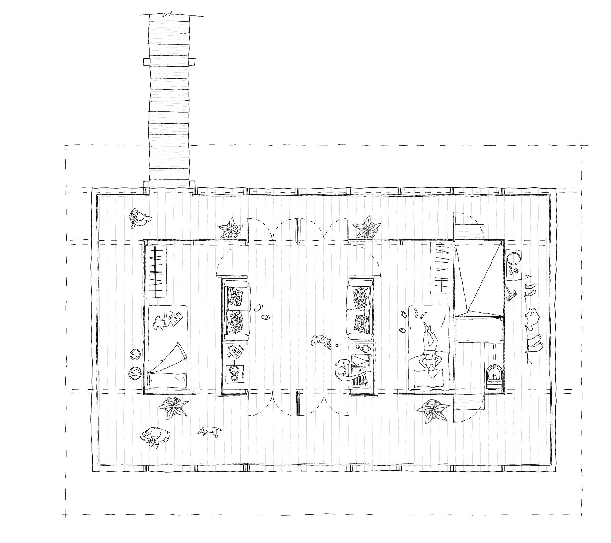
Text description provided by the architects. Developed along the banks of the Babahoyo River in Ecuador. Two hundred years ago, the river was home to more than 250 floating houses; by 2010, over 80 families had been displaced to municipal housing developments located six kilometers away, disconnecting them from their commercial, social, and cultural ties, as well as from their traditional ways of life. Today, barely twenty-five homes remain afloat on the river, under conditions inadequate for community development. Given this situation, the project proposes a public and private space (for local inhabitants) that revalues the floating ecosystem by recovering traditional building techniques for the preservation of the river’s social and natural habitat.
In cooperation with REARC Practice Lab and the local community, strategies were established for the rehabilitation of seven existing houses of various dimensions, the restoration of the riverbank with endemic vegetation, and the creation of floodable public spaces capable of adapting to the river’s seasonal changes. The system consists of floating platforms, replicable wooden truss modules that can be expanded or reduced according to each inhabitant’s specific needs, floodable walkways, dry toilets, and filtration systems that ensure permanent access to clean water. The platforms were built using local wood, lightweight metal structures, and recycled flotation tanks, prioritizing resistance to the intense winter seasons.
Throughout the participatory process, the community contributed to defining materials, spatial requirements, and construction techniques, sharing their empirical knowledge of the river’s dynamics and the essential needs of floating life. This process ensured that the final proposal remained coherent with the cultural identity of the place while addressing specific needs such as fishing, recycling, and universal accessibility for a disabled resident. The infrastructure includes seven mobile access points, 150 meters of floodable walkways, and a public platform that connects housing, commerce, and community gathering spaces. Additionally, the seven dry toilet and domestic filtration systems prevent approximately 350 m³ of wastewater from being discharged into the river each year, reducing pollution loads and improving the environmental health of the ecosystem.
The urban strategies include the restoration of 750 m² of riverbank, reforested with native species such as Pechiche and Matapalo, capable of withstanding up to three months of flooding and helping to control soil erosion. These actions encourage the recovery of native plant species, stabilization of slopes, and regeneration of the riparian ecosystem. In parallel, the management model ensures that property and usage rights remain in the hands of the families, while the municipality provides technical support for maintaining shared infrastructure.
El Barrio de las Balsas explores sustainable recovery strategies for floating communities, valuing traditional techniques, local labor, cooperative work among international entities, and collective decision-making processes. The project lays the groundwork for the creation of public policies that recognize the collective river habitat as an extension of public space and as part of the historical memory of the city.
La infraestructura comprende 7 accesos móviles, ciento cincuenta metros de senderos inundables y una plataforma pública que articula el hábitat, el comercio y el encuentro comunitario. Además, los siete sistemas de baños seco y filtración doméstica evitan anualmente el vertido de aproximadamente 350 m³ de aguas residuales al río, reduciendo la carga contaminante y mejorando la salud ambiental del entorno.
Las estrategias urbanas abarcan la restauración de 750 m² de ribera, reforestados con especies nativas como Pechiche y Matapalo, capaces de resistir tres meses de inundación y controlar la erosión del terreno. Estas acciones estimulan la restauración de especies vegetales nativas, control de la erosión de taludes y por ende, la regeneración del ecosistema ribereño. En paralelo, el modelo de gestión garantiza que la propiedad y el uso de los espacios permanezcan en manos de las familias, mientras el municipio brinda apoyo técnico para el mantenimiento de las infraestructuras comunes.
El barrio flotante de las balsas explora posibles soluciones para la recuperación sostenible de comunidades flotantes, valorizando las técnicas tradicionales, la mano de obra local, el trabajo cooperativo entre entidades internacionales y el consenso colectivo de toma de decisiones. Facilitando el camino para la generación de políticas públicas que valoricen el hábitat colectivo del río como una extensión del espacio público y de la memoria histórica de una ciudad.
Project gallery
客服
消息
收藏
下载
最近














































