查看完整案例

收藏

下载
△ 垂光宅
©是然建筑
摄影moss.architects
北京
建成时间:2025年
建筑面积:612平方米
本文文字由设计单位提供。
垂光宅位于北京北郊燕山脚下,周围环境优美。建筑师在应对典型地产住宅挑战——大进深与采光局限的同时,尝试将自然环境和光最大限度引入室内,重新定义室内外关系,增强空间流动性。通过精准的剖面设计与层级化光线策略,建筑师将传统住宅空间设计转化为一场贯穿垂直维度的光影实验。
01 光的分层渗透
自然光的布置是本项目的首要空间策略。室内空间以纵向轴线为脉络,功能空间划分为采光核心区、被动渗透区,餐厅、书房及主卧等高频使用空间沿南侧展开,与下沉庭院形成直接对话。位于二层的通高室内花园形成垂直采光井,成为串联空间“光之容器”。原封闭的顶层被彻底打开,与天窗共同形成光漏斗,自然光可逐级漫射至底层空间。
光之漏斗
姜薇
光之漏斗
姜薇
02 园林
空间的立体编织
位于二层的室内双层通高花园作为空间枢纽,以绿植为视觉焦点,与悬挑玻璃盒子以及连桥构成三维立体的移步易景
室内
两层通高花园 姜薇
三层工作室看向三层卧室和二层室内花园 姜薇
悬挑玻璃盒子
姜薇
工作室与卧室分置东西两端,由横跨花园上方的悬浮连桥衔接,行走体验强化了空间的戏剧性张力。三层卧室面对室内花园的通高玻璃隔断模糊了室内外界限,使其在视觉层面延伸为外部景观的室内投影。
连桥 姜薇
三层卧室 姜薇
二层 茶室
空间作为亭,三层工作室作为台,卧室作为楼,首层 客厅通过垂直视线 错位连通,形成东方 空间意向 与现代构造语言的叠合。
图解亭台楼廊的立体空间关系
moss.architects
“亭”:二层室内花园及茶室 姜薇
“楼”:三层卧室 姜薇
剖透视
moss.architects
03 材料的建构叙事
设计通过统一材料语言建立空间连续性:烟囱、悬挑、连桥、楼梯等受力结构体深绿色水磨石整体包裹,形成贯穿建筑的刚性骨骼。这种磨砂的矿物质感与粗糙的灰泥墙体形成微妙对话。三层弧形天花采用的白色灰泥材质,则成为光线的漫反射载体。材料对比既强化了建构逻辑,又暗示了不同空间的光环境特质。
图解材料建构
moss.architects
深绿色水磨石元素
姜薇
深绿色水磨石吧台 姜薇
深绿色水磨石连桥 姜薇
深绿色水磨石楼梯 姜薇
04 光的人工建构
作为空间定义者,灯光设计超越照明功能,成为空间形态的生成要素。三层弧形天花与倾斜墙面连为一体,在洗墙灯的作用下形成弥漫光幕,光线沿曲面渐次晕染向下漫射至花园空间;主卧的天花以"光帷幔"形态界定睡眠区域,形成洞穴式的静谧空间。太阳光通过天窗投射在室内,随着时间的推移,光斑在各层之间移动,为光的建构增加了另一层维度。
顶层弧形天花 姜薇
顶层弧形天花形成的弥漫光幕 姜薇
顶层天窗与弧形天花 姜薇
05 传统与创新的对话
垂光宅通过光的物质化转译,将传统地产商业规则的制约转化为空间生成的潜在契机。垂直采光系统的引入不仅回应了环境性能层面的需求,更在感知层面重构了居住者与空间、自然与建造之间的关系。在此过程中,建筑的西方形式外壳被重新注入东方空间理念,但并非借用传统美学样式,而是通过现代生活方式与当代审美观的融入,使传统的空间逻辑在当代情境中获得新的诠释与延展,从而实现住宅空间的创新性演绎。
入口门廊
姜薇
壁炉 姜薇
二层主卧
主卧卫生间
姜薇
二层
loft卧室
姜薇
庭院层活动室 姜薇
厨房
姜薇
卫生 姜薇
楼梯 姜薇
局部 姜薇
设计图纸 ▽
首层平面图
moss.architects
二层平面图
moss.architects
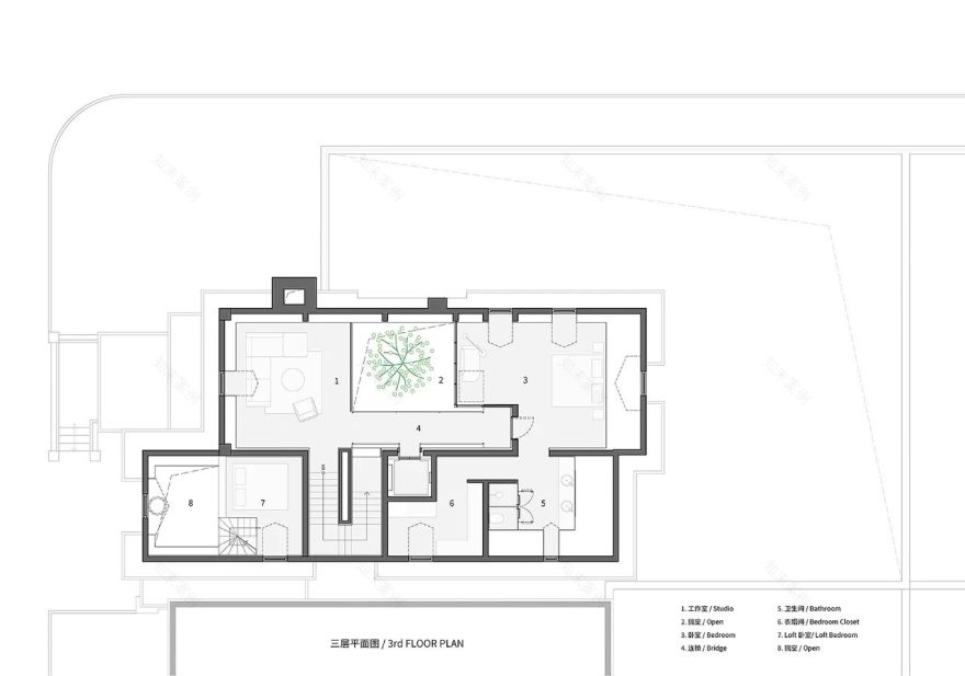
三层平面
moss.architects
△ 下沉庭院层平面图
moss.architects
剖透视图
moss.architects
完整项目信息
项目名称:垂光宅:光线叙事与空间重构的现代诠释
项目类型 室内
项目地点:北京
建成状态:建成
设计时间 2023年
建设时间 2023年—2025年
用地面积 450平方米
建筑面积 612平方米
设计单位 moss.architects
主创建筑师:夏梦
设计团队完整名单 夏梦、ince S. Ho、姜薇、张盈盈、周维
照明:库奥照明/ KA Lighting
艺术顾问:宛霞
摄影师 姜薇
视觉 / 陈汝婷
校对 / 王子怡
本文 moss.architects 授权发布。
以“在看”分享
客服
消息
收藏
下载
最近
























































