查看完整案例

收藏

下载
位于村庄之外,一条通往波希米亚森林深处的道路旁,屹立着一座19世纪末的小屋。我们提议进行一次翻新,强调生活在这座历经岁月变迁仍屹立不倒的房屋中的乐趣。这是一座尊重周围环境的房屋,而非喧嚣的邻居。
Beyond the village, along a road leading deeper into the majestic Bohemian Forest, stands a late 19th-century cottage. We propose a renovation that emphasises the joy of living in a house that has survived throughout and despite changing times. A house that is considerate of its surroundings rather than a loud neighbour.
▼小屋外观,exterior of the cottage©Tomáš Slavík
▼小屋外观,exterior of the cottage©Tomáš Slavík
▼小屋外观细部,facade detail of the cottage©Tomáš Slavík
这次翻新在处理建筑物的每一层面时都充满敬意,既考虑建筑材料,也考虑历史的层次。虽然结构需要清除一些不合适的干预和改动,这些改动曾导致后来的结构损坏,但我们将这些瑕疵视为一次机会。原本受损的结构转变为房屋的核心:生活区域,它既通向花园,又通向保留部分的厨房。如今,经过垂直扩建的谷仓可以作为一个多功能空间——或者作为秋季聚会的场所,位于室内与室外、温暖与寒冷之间。建筑的新布局允许多代人使用,两个单元和共享空间通过中央楼梯连接。
The renovation approaches the building with respect towards all of its layers, both in terms of building matter and history. While the structure required cleansing from a number of inappropriate interventions and modifications that had caused subsequent structural damage, we treated these flaws as an opportunity. The formerly damaged structure transforms into the beating heart of the house: the living area that opens both into the garden and into the kitchen in the preserved part of the building. The barn, now vertically extended, can serve as a utilitarian space – or a place for autumn gatherings, halfway between inside and outside, warmth and cold. The new layout of the building allows for multigenerational use, with both units and shared spaces connected via a central staircase.
▼入口,entrance©Tomáš Slavík
房屋的轮廓保持不变。新的大尺寸玻璃窗户将室内与自然光和周围景观相连接,而大百叶窗在需要时可以保护室内免受恶劣天气的侵袭,也能遮挡过路人的视线。百叶窗的轨道依然可见,裸露的混凝土也未被遮掩。融入历史景观并不意味着将翻新的新层次隐藏起来。
The silhouette of the house remains unchanged. New large-format glazing opens the interior to daylight and the surrounding landscape, while large shutters protect it from harsh weather as well as the eyes of passers-by when needed. The shutter rails remain visible, as does the exposed concrete. Blending into the historical landscape does not mean hiding the new layer brought by the renovation away.
▼玻璃窗户将室内与自然光和周围景观相连接,
large-format glazing opens the interior to daylight and the surrounding landscape©Tomáš Slavík
▼圆窗细部,round-shaped window detail©Tomáš Slavík
▼从厨房望向客厅,from kitchen to living room©Tomáš Slavík
三根巨大的钢筋混凝土柱子现在支撑着屋顶结构。这些柱子与谷仓的新基础一起浇筑,谷仓的基础由于80年代和90年代不适当的修复工作需要重新修建。原有的屋顶桁架被保留下来——沉重的混凝土瓦被铝瓦取代,部分屋架通过裸露的钢梁加固。此加固为新的生活空间创造了空间,并为屋顶外壳提供了热绝缘。▼原屋顶桁架,the original roof truss©Studio Plyš
Three massive reinforced concrete columns now support the roof structure. These were cast together with the new foundations of the barn, which had to be redone due to unsuitable repairs from the 80s and 90s. The original roof truss was salvaged – heavy concrete tiles were replaced with aluminium tiles, and some of the rafters were reinforced with exposed steel beams. This reinforcement created space for new living areas and allowed for thermal insulation of the roof envelope.
▼新浇筑的混凝土结构与木柱结合,
The newly poured concrete structure is combined with the wooden columns©Tomáš Slavík
▼圆窗引入自然光线,the circular window introduced natural lighting©Tomáš Slavík
插入的新体量——字面上说,就是用螺丝固定到建筑物上的——被置于阁楼和原先的牲畜区域内。它被设计为一个现代的木结构,外覆由天然和回收材料制成的纤维水泥板和胶合板。它包含了所有卫生设施,并与原有结构分隔,进行了隔热处理以防止潮气渗透,同时保持历史外壳的蒸汽透气性。
▼剖面图,section©Studio Plyš
The inserted volume – quite literally screwed into the building – is placed within the attic and the former stalls area. It is designed as a contemporary timber structure clad in fibre-cement boards made from natural and recycled materials, and plywood. It houses, among other things, all sanitary facilities and is separated from the original structure and insulated to prevent moisture penetration, while maintaining the vapour-open character of the historic envelope.
▼浴室空间,bathroom©Tomáš Slavík
部分原有的木地板也得以保留,包括瓷砖炉。尽管炉子使用起来非常愉快,但日常供暖由空气源热泵提供,通过智能家居系统管理,智能家居系统还控制着其他电气安装,包括电动外百叶窗。
Parts of the original wooden flooring on the ground floor were preserved, too, as was the tiled stove. Although the stove is a joy to use, everyday heating is provided by an air-to-water heat pump, managed via a smart home system that also controls the rest of the electrical installation, including the motorized exterior shutters.
▼厨房的部分原有木板得以保留,
Parts of the original wooden flooring on the ground floor were preserved©Tomáš Slavík
▼厨房空间,kitchen©Tomáš Slavík
新层次与原有房屋的特征之间的平衡,也通过一套定制的家具得以维持,这套家具以木匠的腊肠狗命名为“Bedřich”。这套家具包括一张折叠餐桌、一张床和一张实木橡木长椅,专为房屋保留部分的房间设计,补充了翻新后的家具,细节在木工方面经过了几乎是工程级的精确打磨。
The balance between the new layer and the character of the original house is also sustained by a custom-made furniture set named Bedřich after the carpenter’s dachshund. A folding dining table, bed, and bench in solid oak, designed for the rooms in the preserved part of the house, complement the refurbished pieces, their details refined with almost engineering precision in the joinery.
▼楼梯俯瞰,overlook the staircase©Tomáš Slavík
▼卧室空间,bedroom©Tomáš Slavík
▼书房空间,study room©Tomáš Slavík
▼隐藏的茶水间,hidden pantry©Tomáš Slavík
▼阁楼卧室,bedroom on the attic©Tomáš Slavík
尽管面临挑战,我们依然向度假屋现象致敬,正是由于有了这种度假屋,这座小屋才得以保存至今。屋顶的绝缘细节模仿了“zmijovka”(捷克传统的尖顶帽)边缘的形状,这顶帽子曾是几代捷克度假屋游客的标志性装饰。
Despite the challenges, we pay tribute to the phenomenon of vacation-housing, without which this cottage would likely not have survived to the present day. The roof is insulated with a detail that mimics the edge of a “zmijovka,” the classic cap worn by generations of Czech cottage-goers.
▼夜景,night view©Tomáš Slavík
▼一层平面图,ground floor plan©Studio Plyš
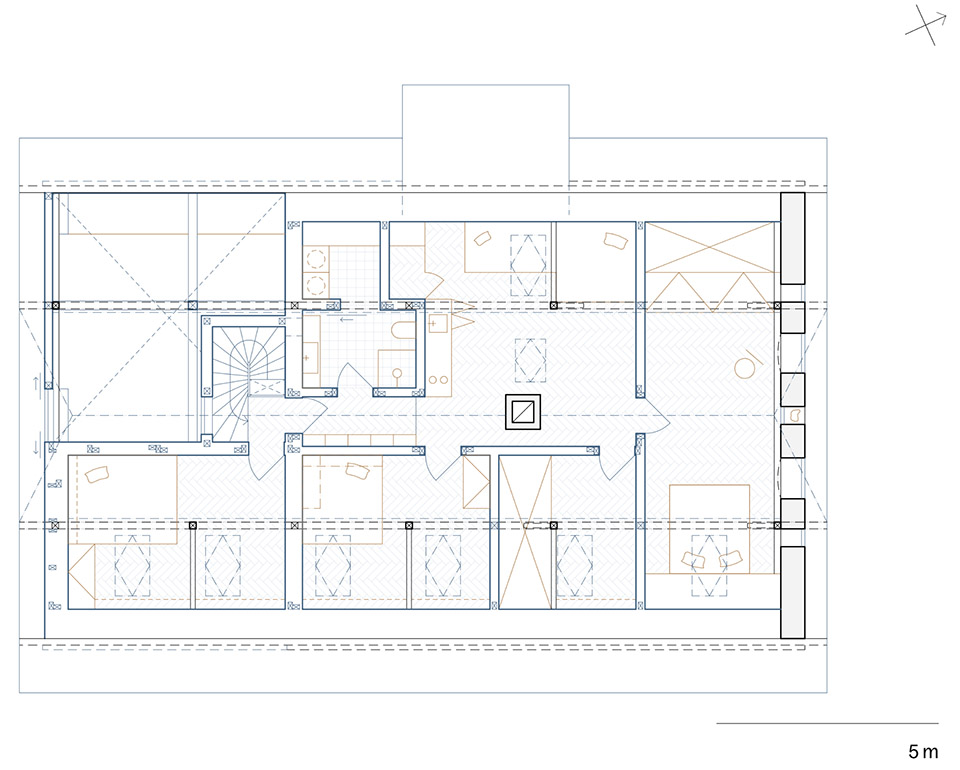
▼二层平面图,first floor plan©Studio Plyš
Studio Studio Plyš
Author Lenka Vávra, Petr Vávra
mail@studioplys.cz
Website
Studio address Na Bělidle 6, 150 00 Prague, Czech Republic
Co-author Kateřina Vávrová
Project location Borová Lada
Project country Czech Republic
Project year 2019
Completion year 2024
Built-up area 190 m²
Gross floor area 333 m²
Usable floor area 246 m²
Plot size 1750 m²
Photographer Tomáš Slavík, ,studio@tomasslavik.cz
客服
消息
收藏
下载
最近




















































