查看完整案例

收藏

下载

翻译
Architects:Nha Dan Architects
Area:440m²
Year:2024
Photographs:Hiroyuki Oki
Lead Architects:Nguyen Dinh Gioi
Category:Houses
Design Team:Pham Ba Duy
Engineering & Consulting > Structural:Do Thanh Tuan
Engineering & Consulting > Mep:Trinh Van Tam
Engineering & Consulting > Lighting:Cara
City:Nha Trang
Country:Vietnam
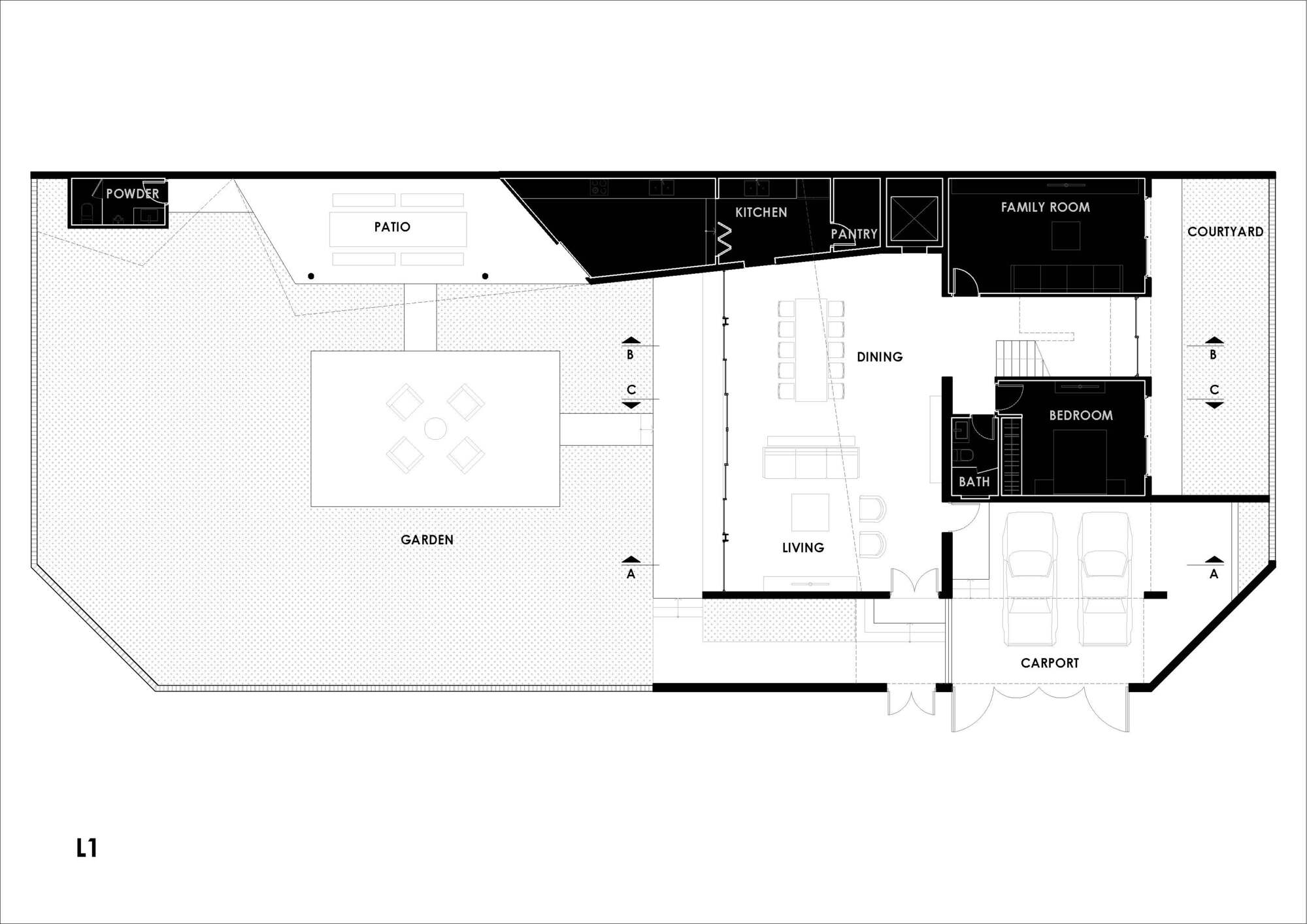
Text description provided by the architects. Our goal for this project is to have a fluid spatial experience that enables the family members to feel connected to each other and to nature right in the heart of a bustling city.
We proposed a series of roofs spanned between two primary walls, like a fabric stretched over a rigid frame. This strategy results in an almost column-free, open floor plan. These roofs cover both exterior and interior spaces, creating a single continuous living space stretching from the garden on the ground all the way to the study at the top. Family members essentially enter into this shared multi-story space the moment they leave the bedrooms.
The building orientation and roof form were optimized for natural ventilation and daylighting. The openings between the roofs offer views of the greenery and townscape beyond, and allow natural light to penetrate deep into the interior. Operable glass louvers let in cool breezes in the summer while keeping water out during monsoon rains.
These features accumulate into a heightened sense of togetherness for the family and connection to nature - a rarity that can only be found in rural Vietnam.
The completed form looks similar to a voluminous tent. We thought it was fitting to call this project Tent House.
Project gallery
客服
消息
收藏
下载
最近






































