查看完整案例

收藏

下载
2018年深冬凌晨大雪纷飞,我在中野,思绪漫漶:园林与人的一种关系状态应该是什么?不期然间,李白《独坐敬亭山》浮现心头。“众鸟高飞尽,孤云独去闲。相看两不厌,只有敬亭山。”云的自在悠闲恰是李白内心写照。如王国维说:“以我观物,故物皆着我之色彩”。第三句“相看两不厌”,意趣深长,万物有灵,并非是看与被看的关系,恰恰是和谐的平等互观关系。末句“只有敬亭山”这却让我疑惑。为何只剩山?李白又归于何处?
中国古来有“坐忘”、“忘我”这类词。庄子在《齐物论》中说“吾丧我”是也。太白在观山时经历了“以我观物”,到“以物观物”,再到“物我两忘,心神俱通”的状态。丧形骸之我,却将心神化入天地,故“相看两不厌,只有敬亭山”了。
回归到自己的心源之地,忘却时空。园林带来的美妙状态不也是如此么?后来在2022年初,因友人的机缘与悉昙酒店结缘,委托对酒店的部分庭院进行设计,带着这种构想,开启了断续四年间在悉昙酒店的造园实践。又因2024年初夏北京长达数天的暴雨引发门头沟区域的山洪与泥石流,导致酒店停业修葺一年,途中我们又进行了酒店公区的部分改造与方案提出,这次新做成的《梦庐》庭园亦在此列,很多地方思考的并不成熟亦或未尽善尽美,但在此亦一并与诸君分享。
——乙巳六月既望弘毅序於丈山造园南窗
Since ancient times, China has spoken of “zuò wàng” (sitting in forgetfulness) and “wàng wǒ” (forgetting the self). Zhuangzi, in the On Leveling All Things, said: “I have lost myself.” Li Bai, when beholding the mountains, moved from “seeing things through myself,” to “letting things be seen as themselves,” and finally to that realm where “self and things are both forgotten, and heart and spirit flow together.” He shed the “self” bound to form, yet let his spirit dissolve into heaven and earth. Hence—“We gaze at each other without weariness, only Jingting Mountain remains.”
To return to the wellspring of one’s own heart is to let go of time and space. Is this not also the wondrous state that gardens awaken within us?
—— Hongyi
既知是梦,何妨梦中起舞?虽云皆空,何不向空而生?
从浴室观庭园势脉层层递进
“梦庐”是酒店中一处独特的庭园,虽不足六十平米,却因园主对园林艺术的热忱与追求,呈现出超乎想象的丰富性。而“梦庐”的命名,正是因为我们聊到苏轼的“人生如梦”一句。既知是梦,何妨梦中起舞,虽云皆空,何不向空而生呢?
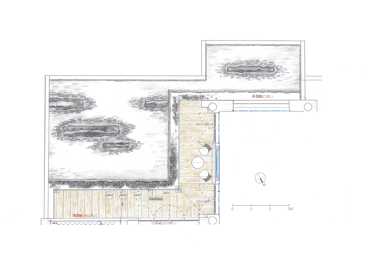
梦庐平面图手稿
庭园场地条件复杂,三面建筑围合,西侧折廊贯穿南北,折廊与建筑夹出三角形与长方形两个天井,原生皂荚树盘踞主庭一端,加剧了庭园的零碎感。加之三分之二庭园位于地下室楼板上。如何在如此局促的空间里,既遵循传统山水理法,又兼顾建筑功能需求;既要让古树和谐融入,又要确保四面皆有景可观;同时兼顾庭园的承重与美感,这一系列的矛盾共同构成了庭园的独特魅力与挑战。于是设计师将这个空间分为自山至水的大脉络。应和后山势脉的同时,将内部空间分为石壁洞天、夹角溪山、中庭洲岸、西部平台。
梦庐剖立面图手稿
石壁部分将原有廊道部分破除,借山墙之势入廊,限定檐枋的高度,在廊中仰之不见巅末,给观者以想象力。玻璃横插入石,让山体石壁进入廊道取“犯轩楹而不去”之势让自然进入室内。从而形成幽闭洞天之感,应和李白“洞天石扉,訇然中开”
仰之不见巅末
△石壁效果图手稿
△洞天石扉
廊道地面则用石壁加工的剩余石材取平面者稍加打磨做菱形铺装形成整体性。从而弱化了廊道的存在,使自然与建筑相融的同时作为庭中山势水脉的起点。
石皮铺装与山体形成有区别的统一
廊道与南北建筑夹角处是一组置石,透过玻璃与廊道后石壁势脉相连。水则仿佛从石壁沁出经廊道下穿过至此形成明水,流数尺复滲入地下,形成断续有致的动态。
山溪与廊道后的石壁呼应。围绕原生皂荚树与廊道之间的实土区域,依石壁与石组之势略整地形,成平岗小坂,用松、枫、杂木等组成层次丰富的林下空间,弱化原生皂荚树的压迫感。
会客厅窗景效果图手稿
山脚之势与景石一点
在会客厅中通过建筑墙壁的遮挡只现山脚,以象全山。松枫的倾倒线条继而补齐山体之势,加强观者对整个空间山水的想象。
梅枝与枫叶层叠掩映会客厅入口
树补山势
曲岸的势脉自石壁与石组出发,由自然逐渐过渡到人工,既作为树池挡土的同时又具洲岸意向,将山水之意融合的同时将建筑反梁与结构藏于其下,把石壁与后山的强大之势逐步弱化接引入园,又将地脉发散出来,最终通过平台的景石一点与雕塑的一线将力散去。
洲岸的曲面与雕塑一线景石一点。茶室窗景则以南房山墙为背景,栽植红梅一棵。红梅似从墙脚生出,与林下空间形成视觉平衡。
茶室窗景效果图手稿
茶室框景
洲岸平石上的雕塑则用六方石从自然高处摔落记录震断反弹向天的瞬间张力,将地形、洲岸、远山之力集于一点而发散。
雕塑与梅树相应成趣,将帘幔放下时,自茶室观地面的起伏与张弛形成了一幅抽象山水长卷。
山水长卷景观(滑动翻阅)
浴室前则用特制石板铺成平台作为室内空间的延伸。门窗尽展而室内外完全相通。
浴室视角效果图手稿
通过铺装将自然接引入室内
侵入平台的景石,内部的浴池墙壁由日本已故石雕艺术大师和泉正敏先生创作,廊中石壁与其遥相呼应,形成跨越室内外的艺术对话。
和泉正敏石壁浴池作品(正)
和泉正敏石壁浴池作品(侧)
丈山设计的自然石山壁最终在一个不到六十平米的碎片化空间里,展山水之脉络成此庐之丰富。庐虽小,却承载着我们对传统园林艺术的当代诠释探索,更寄托着园主“向空而生”的人生意境。
园景山色相映成趣
月到天心处,风来水面时。一般清意味,料得少人知。
天心庭正面视角
这是一处以为主题的客房庭园,由正面方庭与侧面小院共同构成,两者以渡月廊及月洞门相连。正对建筑的方庭命名为天心庭,庭名取自北宋邵雍“月到天心处,风来水面时”之句,意在表达清夜旷远、心境澄明的意境。
天心庭平面图手稿
方庭布局简洁,唯一台、一廊、一石、一井。庭前平台可供人休息静观这一方天空与安静的庭园。
山树岑叠与庭园之间的关系
中庭地面采用砚石铺装,在北方干燥的空气中也能泛出融融水意。井圈以现代手法雕琢,自顶端光洁渐次过渡至底层粗砺,与地相接。光在沿口处形成一圈光圈。井的势是向下的,而石的势向上,两者在方庭中形成了一种力的平衡,又通过砚石的铺装将这两者的力进一步消散。于是在一个小庭中形成了新、古,人工、自然,上,下、当代与传统的多重对比。
△“效果手稿”
每当月挂中天影映井中,碎石铺装在光的映照下如微风拂过水面,给人带来一抹清意。
夜露凝微光,如水如霜 周红亮
月洞门由六块弧形石板拼就,工艺上与井圈呼应,形成平面与纵向的两个圆,月洞门的踏步石则雕刻成水波纹。
月洞门的框景,门里门外
当观者经渡月廊,穿月洞门,行至石影庭时,空间序列营造出“穿云渡月”的意境转换。
渡月廊的指向性与圆形的端景
石影庭,是供客人温泉沐浴的小院。庭院的泡池由一整块巨石雕刻而成。院中松树正好覆盖庭院。树影斑驳撒在庭院中,青树翠蔓,蒙络摇缀。日光下澈,影布石上。这也正是小院庭名的由来。
石影庭泡池手稿
日光下澈 影布石上
落落疏松临断岸,涛声直与泉声乱。却如叔夜宿华亭,夤缘传得广陵散。
室内观听涛庭
如果说天心庭是天象与庭中物像关联的庭园的话,那么听涛庭便是庭内空间与庭外空间的一种意念关联。
听涛庭图纸手稿(滑动翻阅)
室内、涛声、远山
此庭位于高处,下方高松密植,风过之时,松声如海涛阵阵,绵延不绝。庭园中以抽象石刻表现海浪拍击礁石之态,石面经不同手法处理,形成丰富的肌理层次。当人静坐于廊下,园内海涛与园外松涛相互交融,形声合一,构成独特的“合相”意境,从而营造出深远的空间意蕴。
礁石的起涌之势
茶室的庭园框景
庭中五块原石经劈凿加工,各具势态,石与石之间互搏的同时在庭园中力求一种力的均衡,形成另外一种平静。整个庭园都以黑色表达,又如同水墨画中墨分五彩,各有不同又和于一。
势态的运动与平衡
24年丈山为悉昙酒店大堂照壁区域进行提升设计。该处石壁为日本石雕艺术大师和泉正敏先生在世的晚期作品之一,石壁部分选用庵治石,于日本制作完成后运至现场组装。这篇文章发布之时距和泉先生去世已四年有余。
大堂照壁景观
照壁效果图手稿
在景观设计上,为增强照壁与周边环境的融合度,我们以五块精选置石作为过渡元素,将照壁所呈现的平面山势延伸至平台,转化为立体山景,引入园境。同时植以姿态舒展的松树,松影投于壁上倒映水中,清明秀劲。一年四季的苍翠,时刻迎接着来客。
松与石壁的呼应
在景石挑选上,我们则通过选择在色、质、形、皴上都与石壁吻合的景石,最终将石、水、松、壁得宜的结合在一起形成照壁景观区域,呈现给每一位来到悉昙的人们。水中的石材边沿曲折柔和,似沙洲入水,形成和谐统一又有张力的酒店入口画面。
石与池岸的细腻交接
景石与石壁围合的树池与苍松
——石作细节——
——庭院建造与研究过程——
作品名称|
项目地点|
工作内容|
设计团队|
造园施工|
委托单位|
庭院面积|约600m²
整体设计|
室内设计|
照明设计|
艺术石刻|
施工周期|
项目状况|
项目摄影|
弘毅,丈山造园设计事务所创始人。毕业于日本多摩美术大学环境设计系,导师枡野俊明。
代表作品有五台山真容寺、黄山未晞园、北京悉昙酒店(部分)、宁波游仙寨宋式艺术酒店、北京小有天、岳阳自在平江野奢度假酒店等。
研究方向为园林中的传统文脉体系与当代性表达。出版专著及文章有《丘壑烟云—青珊瑚》,《城市山居、洞天福地、居游行望》、《江南园林风水观—以寄畅园为例》、《中日园林浅谈—日本净土式庭院流变》、《日本茶空间小论一此心安处是吾乡》等。
: 量也,既表尺寸亦表丈量,躬行之意。
: 有石而高者,能生万物,引申为在山水中可能性的探寻。
“丈山造园”便是秉承事必躬行的态度,去发掘空间山水可能性的一家园林设计事务所。
自创立以来,我们以“场域”、“时间”与“意”这三者为点,不断在东方现代园林设计领域中探索。试图在当下喧嚣的环境中,给观者带来一个安放身心的宁静场域。
“场域”是被限定的空间。园林的致趣则往往在于破除场域的界局,从而体味到小中见大、悠游无尽的弦外余音。相对“场域”的限定而言,“时间”则是无限的。古人云:“山静似太古,日长如小年”,园林从某种角度上能够让人感受“时”中之“间”,在体味四时晨昏流变的同时,感受时间的定格,达到坐忘的心灵状态。场域的破界与时间的停滞,都需要通过“意”去传达。
“意”为心音,是不可见而象者。通过探求园林中比直接看到的物像更大的“意”,让观者在有限的空间中感受到界限的虚化,于无限的时间中感受瞬息的定格。由此,为园主与观者营造出“离形去知,同于大通”的坐忘宁静场域。
——弘毅记於丈山南窗
过往作品
小有天|摄影 丈山团队
△ 黄山未晞园|摄影 潘杰、吴义举、丈山团队
客服
消息
收藏
下载
最近









































































