查看完整案例

收藏

下载
项目名称: 前海深港青年梦工厂北区
位置:广东深圳
设计单位:RSHP
图片数量:32张
由RSHP(罗杰斯建筑事务所)设计的前海深港青年梦工场北区,是一座象征前海整体发展重要里程碑的创新“城市绿洲”。项目坐落于新兴城市开发区林立的高楼之间,以“超低层”建筑形态构筑出科技创新的核心载体,成为连接本地社区与崭新天际线的活力纽带。
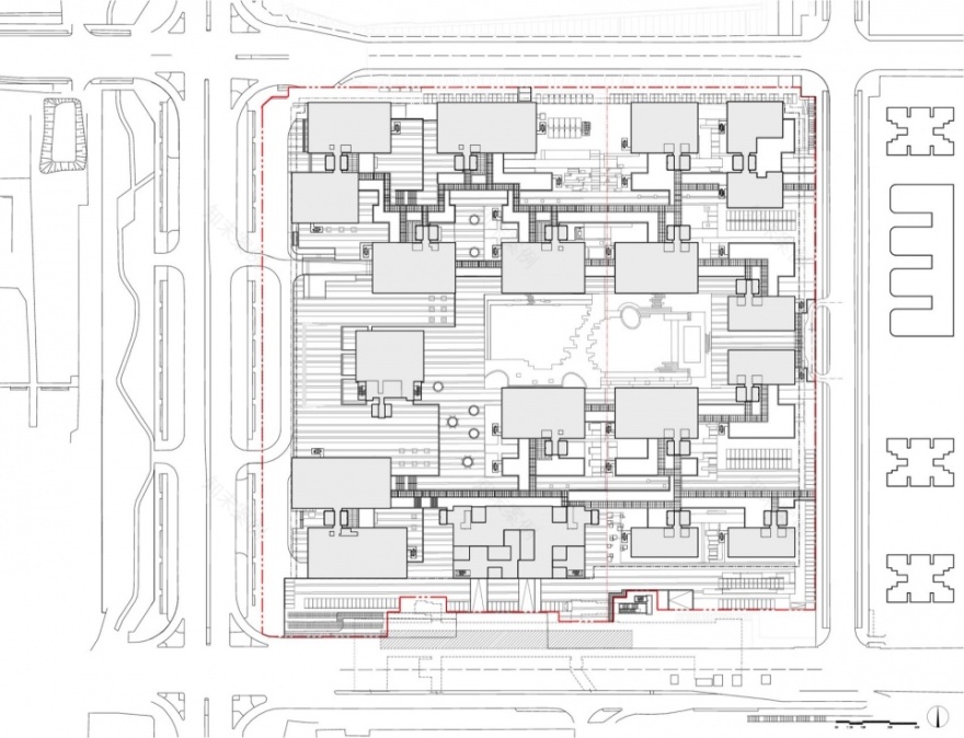
以“城市客厅”为核心理念,RSHP的总体规划在多层面促进协作与交流。项目由16座建筑组成,通过三层的高架连廊与空中花园相连,内部设置灵活的办公空间。商业空间可根据需求分为开放式、单元式或混合式布局。园区内还设有地铁与公交枢纽,实现与周边住宅片区的便捷联通。中央广场作为共享户外空间,兼容社交、运动、休闲等多种活动。大型景观公园融合休憩与商业配套,进一步激发社区互动与城市活力。
项目的亮点是一座地标性的文化艺术中心,位于公园主入口处,内含大型多功能厅、展览及办公空间。该高架地标建筑不仅展示本地创新科技成果,同时融入丰富的文化艺术活动。2023年,园区作为前海分会场成功承办了第九届深港城市建筑双城双年展,彰显其在前海深港现代服务业合作区中的重要地位。项目的落成进一步促进了前海、香港与澳门的深度融合与协同发展。
与RSHP一贯的设计理念一致,项目总体规划始终坚持“以人为本”。设计团队将一块约350米×350米的棕地成功转化为全步行化街区,四周环绕便捷的步行街道、绿色庭院、城市花园、林荫大道及水景空间。整个园区被形容为一座“会呼吸的有机体”,通过绿色建筑节能运营与管理体系,实现可持续发展,并荣获BEAM Plus在管理与能源使用方面的卓越级认证。项目采用色彩鲜明的建筑挑檐以强化导向识别,同时营造舒适的户外活动空间。
RSHP亚洲区董事总经理班·华纳(Ben Warner)表示:“RSHP成功打造了一个充满创新、创意、文化与交流活力的目的地。我们庆祝前海深港青年创新创业中心的成功,它不仅实现了城市中工作与生活的平衡,更成为凝聚人文联系的重要载体。”
RSHP高级协理袁嘉樑(Francis Yuen)表示:“文化、社区与创新密不可分。我们很自豪能打造这样一个空间,既服务于年轻的科技创业者,也吸引周边居民前来享受公园的广阔绿地。”
项目合伙人兼设计负责人斯蒂芬·斯宾塞(Stephen Spence)表示:“这组‘超低层’建筑最初构想为临时性建筑,旨在于前海核心区域营造一个以人为中心、灵活开放的‘城市绿洲’——真正意义上的‘城市客厅’。层次丰富的绿化公共空间直接连通相邻的大型住宅社区,使居民能够便捷抵达园区内的公共配套及地铁、公交枢纽。”
▼夜景外观 © EDWARD WEI@ins
前海科创投控股有限公司表示:“我们非常高兴能见证前海深港青年梦工场北区的圆满成功投入使用。RSHP打造的这一充满活力的创新与社区中心,获得了创业者及本地居民的高度认可,也充分证明了其在前海片区长期发挥的价值与意义。”
▼位置图 © RSHP
▼总平面图 © RSHP
▼立面和剖面 © RSHP
▼B5剖面透视 © RSHP
客服
消息
收藏
下载
最近

































