查看完整案例

收藏

下载

翻译
Architects:N2B Arquitetura
Area:1124m²
Year:2023
Photographs:Carolina Mossin
Lead Architects:Caio Yoshiaki Nagano, Rodolfo Biagi Becker e Natalie Fogagnoli
Category:Residential Architecture,Houses
Project Year:Ana Carolina Vicari, Leonardo Tomazeli, Larissa Fossalussa Lisse, Luiz Freire, Vitor Rodrigues
Engineering & Consulting > Structural:Ferriani
Engineering & Consulting > Lighting:Ferriani
Engineering & Consulting > Electrical:Corral Engenharia
General Construction:Breci Construtora
Interior Design:Breci Construtora
Landscape Architecture:Daniel Nunes
Engineering & Consulting > Others:Automundi, Engefrosty
City:Vila do Golfe
Country:Brazil
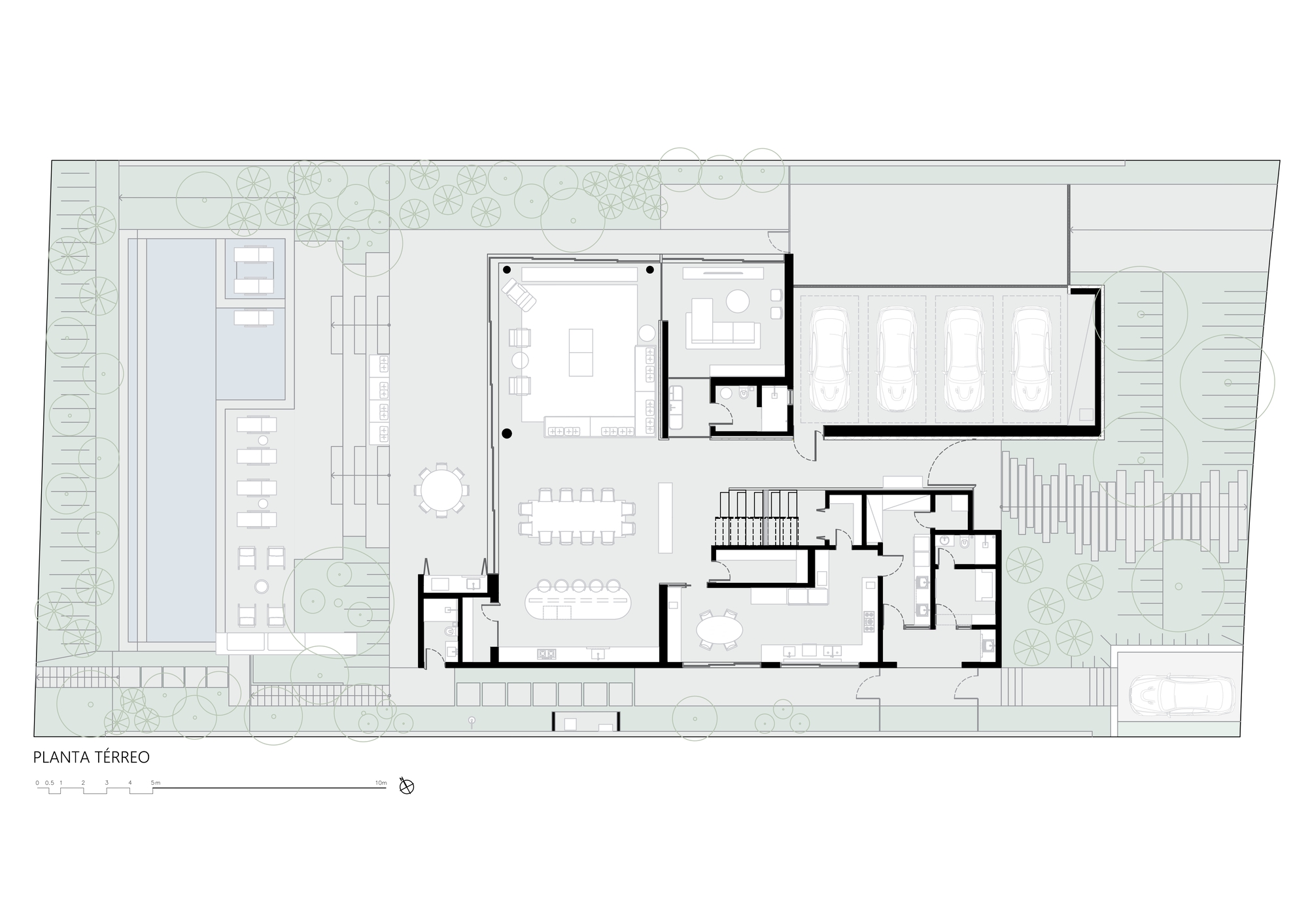
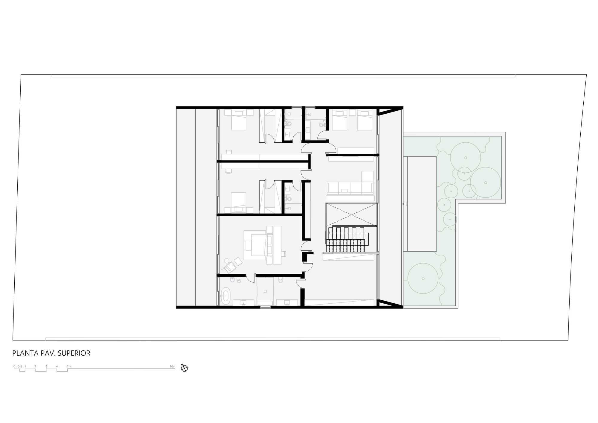
Text description provided by the architects. Located in the Vila do Golf area, House AL was designed to take advantage of the terrain's slope. Divided into three levels, the residence offers privileged views of the landscape, both above and below the treetops, integrating its outdoor area, situated on the lower level, with the local scenery.
The main living spaces were oriented to make the most of this view, using large windows that allow abundant natural light to enter the bedrooms and living area.
The landscaping, as a standout element, was designed to incorporate the construction with the surrounding vegetation, creating a harmonious connection with the environment.
In addition, the carefully selected finishes reinforce the unity of the residence with the greenery, using slatted concrete and light-toned modular stone.
Project gallery
客服
消息
收藏
下载
最近






























