查看完整案例

收藏

下载
©整个园区被形容为一座“会呼吸的有机体”,通过绿色建筑节能运营与管理体系,实现可持续发展,并荣获BEAM Plus在管理与能源使用方面的卓越级认证。项目采用色彩鲜明的建筑挑檐以强化导向识别,同时营造舒适的户外活动空间。
感谢RSHP
由RSHP(罗杰斯建筑事务所)设计的前海深港青年梦工场北区,是一座象征前海整体发展重要里程碑的创新“城市绿洲”。项目坐落于新兴城市开发区林立的高楼之间,以“超低层”建筑形态构筑出科技创新的核心载体,成为连接本地社区与崭新天际线的活力纽带。
▲鸟瞰
▲鸟瞰
▲立面©
▲沿街步行界面与塔楼立面
▲彩色立面体块
以“城市客厅”为核心理念,RSHP的总体规划在多层面促进协作与交流。项目由16座建筑组成,通过三层的高架连廊与空中花园相连,内部设置灵活的办公空间。商业空间可根据需求分为开放式、单元式或混合式布局。园区内还设有地铁与公交枢纽,实现与周边住宅片区的便捷联通。中央广场作为共享户外空间,兼容社交、运动、休闲等多种活动。大型景观公园融合休憩与商业配套,进一步激发社区互动与城市活力。
▲高架连廊
▲连桥系统
▲空中连廊及屋顶绿化步道
▲中央广场
项目的亮点是一座地标性的文化艺术中心,位于公园主入口处,内含大型多功能厅、展览及办公空间。该高架地标建筑不仅展示本地创新科技成果,同时融入丰富的文化艺术活动。2023年,园区作为前海分会场成功承办了第九届深港城市建筑双城双年展,彰显其在前海深港现代服务业合作区中的重要地位。项目的落成进一步促进了前海、香港与澳门的深度融合与协同发展。
▲文化艺术中心
▲大堂
▲办公空间
▲室内通往户外平台的出入口与RSHP一贯的设计理念一致,项目总体规划始终坚持“以人为本”。设计团队将一块约350米×350米的棕地成功转化为全步行化街区,四周环绕便捷的步行街道、绿色庭院、城市花园、林荫大道及水景空间。整个园区被形容为一座“会呼吸的有机体”,通过绿色建筑节能运营与管理体系,实现可持续发展,并荣获BEAM Plus在管理与能源使用方面的卓越级认证。项目采用色彩鲜明的建筑挑檐以强化导向识别,同时营造舒适的户外活动空间。
▲广场与开放草坪
▲休憩亭
RSHP亚洲区董事总经理班·华纳(Ben Warner)表示:“RSHP成功打造了一个充满创新、创意、文化与交流活力的目的地。我们庆祝前海深港青年创新创业中心的成功,它不仅实现了城市中工作与生活的平衡,更成为凝聚人文联系的重要载体。”
▲D区入口景观
▲D区公共空间
▲挑檐下的步行长廊
RSHP高级协理袁嘉樑(Francis Yuen)表示:“文化、社区与创新密不可分。我们很自豪能打造这样一个空间,既服务于年轻的科技创业者,也吸引周边居民前来享受公园的广阔绿地。”
▲大草坪
▲景观轴线与步行街区
项目合伙人兼设计负责人斯蒂芬·斯宾塞(Stephen Spence)表示:“这组‘超低层’建筑最初构想为临时性建筑,旨在于前海核心区域营造一个以人为中心、灵活开放的‘城市绿洲’——真正意义上的‘城市客厅’。层次丰富的绿化公共空间直接连通相邻的大型住宅社区,使居民能够便捷抵达园区内的公共配套及地铁、公交枢纽。”
▲垂直绿化
▲夜景外观 © EDWARD WEI@ins
前海科创投控股有限公司表示:“我们非常高兴能见证前海深港青年梦工场北区的圆满成功投入使用。RSHP打造的这一充满活力的创新与社区中心,获得了创业者及本地居民的高度认可,也充分证明了其在前海片区长期发挥的价值与意义。”
项目图纸
▲位置图 © RSHP
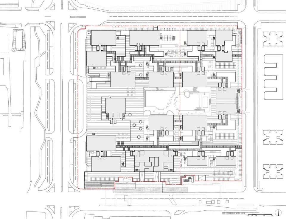
▲总平面图 © RSHP
▲立面和剖面 © RSHP
▲B5剖面透视 © RSHP
媒体垂询:RSHP 公关经理 Eleanor Hargreaves
项目信息
位置:中国深圳
日期:2018–2023
业主:深圳市前海产业发展集团有限公司
造价:£167,000,000
基地面积:90,000 平方米
建筑高度:7 米 / 23 英尺
层数:标准建筑 6 层;地标建筑 8 层
协同建筑师:香港华艺设计顾问
结构工程师:香港华艺设计顾问
设备工程师:香港华艺设计顾问
项目管理单位:中国海外集团有限公司
景观设计:奥雅设计
造价顾问:中建国际投资集团有限公司
总包商:中建国际投资集团有限公司
消防顾问:香港华艺设计顾问
客服
消息
收藏
下载
最近
















































