查看完整案例

收藏

下载
InstaDesign
极简公寓
|杜弗设计
极简不是贫瘠,而是对生活本质的深情凝视。它让物质退居其次,让精神丰盈成为主角,恰似月下独酌,不需满桌珍馐,只需一杯清酒,便能饮尽整夜清辉。
大家好,我是《InstaDesign》的主理人Coco,专为设计师提供家居美学灵感。我们致力于为设计师注入新的设计活力,提供前沿的设计灵感,让中国设计在国际舞台上大放异彩。
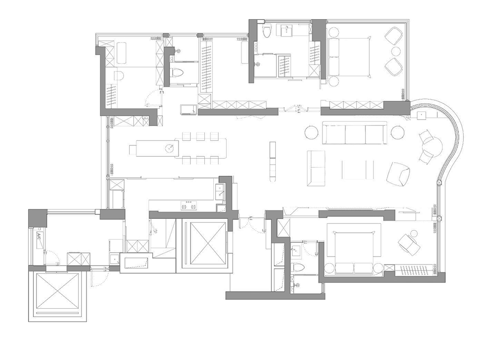
在这套公寓中,设计师把原有布局打破,进行新的区域划分,打造符合三口之家的功能组合。
玄关位置设计带来几何美学力量,翻开的书页记录着家的温馨和浪漫。归家的瞬间,就感受到生活的乐趣。
原有的景观阳台被拆开,卧室划分掉一部分,其余保留给客厅空间。落地窗有着曲面部分,增加观景视野。白色薄纱过滤出柔和光线,室内一片素色纯粹。
设计师利用不锈钢材质增加光泽感和硬朗感觉,梁体设计增加质感,几何美学力量被增强。
黑色壁灯衬托出墙面的素雅,几何美学形态也丰盈空间层次,边几充满惬意气息。
餐厅空间的梁体也有着不锈钢部分,光泽让室内更显明亮。大理石包裹着玻璃收纳架,让通透的形式充满优雅姿态。
亚克力底部极具轻盈感,大理石表面增加自然肌理。轻盈的风帆吊灯在空中洒下仪式感。
主卧室位于客厅后侧,拥有衣帽间、卫生间等功能区域。日常生活的功能体验足够丰富,大面积留白增加更多可能。
进入次卧空间,翻页设计和玄关位置呼应,打造出家的轻盈感觉。
内容策划 / Presented
策划 Producer :InstaDesign
撰文 Writ
er
:Xia
g 排版 Editor:Fin
设计Design-版权©:杜弗设计
项目摄影:ACE STUDIO
©原创内容,不支持任何形式的
,翻版必究!
客服
消息
收藏
下载
最近






























