查看完整案例

收藏

下载
2022年,昆山市政府前的地铁连同地上城市广场一同改造,地下增设了商业设施和停车库,地上景观顺应原城市广场十字轴结构,中轴放置水景和大草坡,场地被切分为四块。大舟建筑负责了地上的景观建筑的设计。
The square in front of the Kunshan Municipal Government, together with its subway station, has underwent a comprehensive transformation since 2022. With the new retail and parking facilities introduced to the underground, the landscape above ground followed the original cross-axis structure of the city square, placing a water feature and a large grass slope along the central axis, dividing the site into four sections. Dazhou and Associates was commissioned for the design of the landscape architecture above ground.
▼项目概览, Overview of the project© 刘章悦 Zhangyue Liu
▼场地鸟瞰(更新后),Aerial view of the renovated plaza©田方方 Fangfang Tian(上)刘章悦 Zhangyue Liu (下)
尺度:院与廊
Scale: Courtyards and Corridors
每个城市都有一个城市广场,它们大多硕大而空旷。我仍能记起站在原始场地中的那种空洞的失落感,在设计中,首先想做的是一条蜿蜒起伏的廊道,广场的尺度属于城市,廊道切割出属于人的亲切尺度。
Every city in China has its central square—often monumental in scale, yet frequently empty and uninviting. Standing on the site, we were struck by a profound sense of emptiness and desolation. Therefore, the first design response was to introduce a series of meandering and undulating corridors that are designed for human scale. While the scale of the square belongs to city, the corridors would establish approachable scaled spaces that invite daily engagement.
▼东北及东南侧广场, The Eastern plaza © 田方方 Fangfang Tian
▼交织的院落, The interlaced courtyards© 刘章悦 Zhangyue Liu
廊道的走势曲折,围合出多个亲切的院落场所,游乐、休憩、聚会、穿行等行为沿着院落与廊道展开。另一方面,设计充分考虑了地下空间出地面的风井、楼梯、电梯等基础设施,巧妙地将他们遮蔽,有效地规避了这些设施对活动的影响。
▼东侧广场轴测,Axonometric of the East Plaza ©大舟建筑 Dazhou and Associates
The meandering path frames a sequence of courtyards, accommodating activities such as play, rest, gathering, and circulation. The design also carefully integrates ventilation shafts, stairways, elevators, and other infrastructure emerging from the underground, discreetly concealing them to mitigate their visual and functional impact.
▼围合形成院落,Courtyard enclosed by corridors© 田方方 Fangfang Tian
▼漂浮的廊道,The floating corridors ©刘章悦 Zhangyue Liu
功能:红盒子与大屋顶
Program: Red Boxes and the Grand Roof
很多广场的失效,原因是功能的缺失。中轴两侧地下管线设施集中,我们利用电梯厅做成四个玻璃盒子,承载商业功能。盒子采用双层表皮,白里透红,晚上透亮发光,成为广场中的标志性构筑。大屋顶是没有功能的空间,廊子在末端放大,容纳下各式活动,为聚会、唱歌、跳舞、游戏等功能提供庇护。
The decline of many civic squares can be attributed to insufficient functional programming. With mechanical equipment concentrated underground along both sides of the central axis, we transformed the elevator halls into four glass boxes that accommodate retail functions. These structures with double-layered façade feature white with red undertone by day, glowing softly at night, which has become the landmarks within the square. The grand roofs appear when approaching the termination of the corridors. They serve as flexible and unprogrammed spaces, expanding the corridors to accommodate various activities, such as gatherings, singing, dancing, playing, etc., while offering shelter for them.
▼水池与红盒子,Water feature near the red box ©田方方 Fangfang Tian
▼安静地伫立,Standing still ©刘章悦 Zhangyue Liu
▼晨雾中的红盒子,Red box in the morning mist ©刘章悦 Zhangyue Liu
▼红绿掩映,Red box blurred into the greenery © 田方方 Fangfang Tian
▼华灯初上,Illuminated boxes for the evening © 田方方 Fangfang Tian
▼大屋顶与院,Grand roof and courtyards ©刘章悦 Zhangyue Liu
▼遮蔽的空间,The sheltered space © 田方方 Fangfang Tian
▼落日余晖,Sunset on the wall © 田方方 Fangfang Tian
结构:漂浮的屋面
Structure: The Floating Roof
结构设计上采用摇摆柱体系,纤细的柱网只承担垂直力,剪力墙用于抗震,营造出屋面如丝带般漂浮的景象。廊架由此轻盈灵动,视线通达,希望在树木更丰茂的未来,廊架穿行绿叶之中,忽隐忽现。
The project employs a swaying-column system: slender columns carry only vertical loads, while shear walls provide lateral and seismic resistance. This creates the vision of a roof floating like a ribbon. As a result, the corridor structure appears light and dynamic, enabling unobstructed views. We envision that as surrounding trees mature in the future, the corridor will weave through dense foliage, alternately revealing and concealing itself.
▼廊与亭,Corridor and pavilion ©刘章悦 Zhangyue Liu
▼双层表皮,Double-layered skin © 田方方 Fangfang Tian
▼帷幕般的屋顶,The curtain-like roof ©刘章悦 Zhangyue Liu
▼层叠的空间,Layered space © 田方方 Fangfang Tian
城市性
Urbanity
城市性是我们实践中的关键词,即建筑理应为城市做出贡献,试图创造或融入城市公共空间系统。我们反对为图形的象征意义而创造的景观,排斥在上帝视角中创造出的图画。城市毕竟是人的城市,景观也是人的景观。项目中我们同甲方一起,谋划实际能被人使用的功能,创造实际能被人使用的广场。
“Urbanity” has been the key to our practice—architecture should contribute to the city landscaping by creating or integrating into the urban space system. We oppose landscapes created with consideration for symbolic graphics only, and reject compositions drawn from an aerial, diagrammatic perspective. Cities ultimately belong to people, and so should their landscapes. In this project, we collaborated with the client to devise functions that genuinely serve the public to create a civic square that can be actively used by its citizens.
▼大草坡,The grass lawn © 田方方 Fangfang Tian
▼人头攒动的广场,The bustling plaza © 田方方 Fangfang Tian
项目完成后,广场上人头攒动,人们自发地戏水、唱歌、跳舞、散步休憩,热闹非凡,城市广场终于开始从形象工程转向了民生工程。
Since completion, Kunshan City Square has exhibited a significant increase in public engagement. People have been gathering spontaneously to play in the fountains, sing, dance, stroll, and rest. The square turns out to be bustling all the time. In the end, Kunshan City Square has successfully evolved from a symbolic showcase into a civic space that truly serves the public.
▼广场夜景,Plaza Night view©刘章悦 Zhangyue Liu
▼总平面图,Master Plan © 大舟建筑 Dazhou and Associates
▼东北侧平面,Northeast Plaza Plan © 大舟建筑 Dazhou and Associates
▼东南侧平面,Southeast Plaza Plan © 大舟建筑 Dazhou and Associates
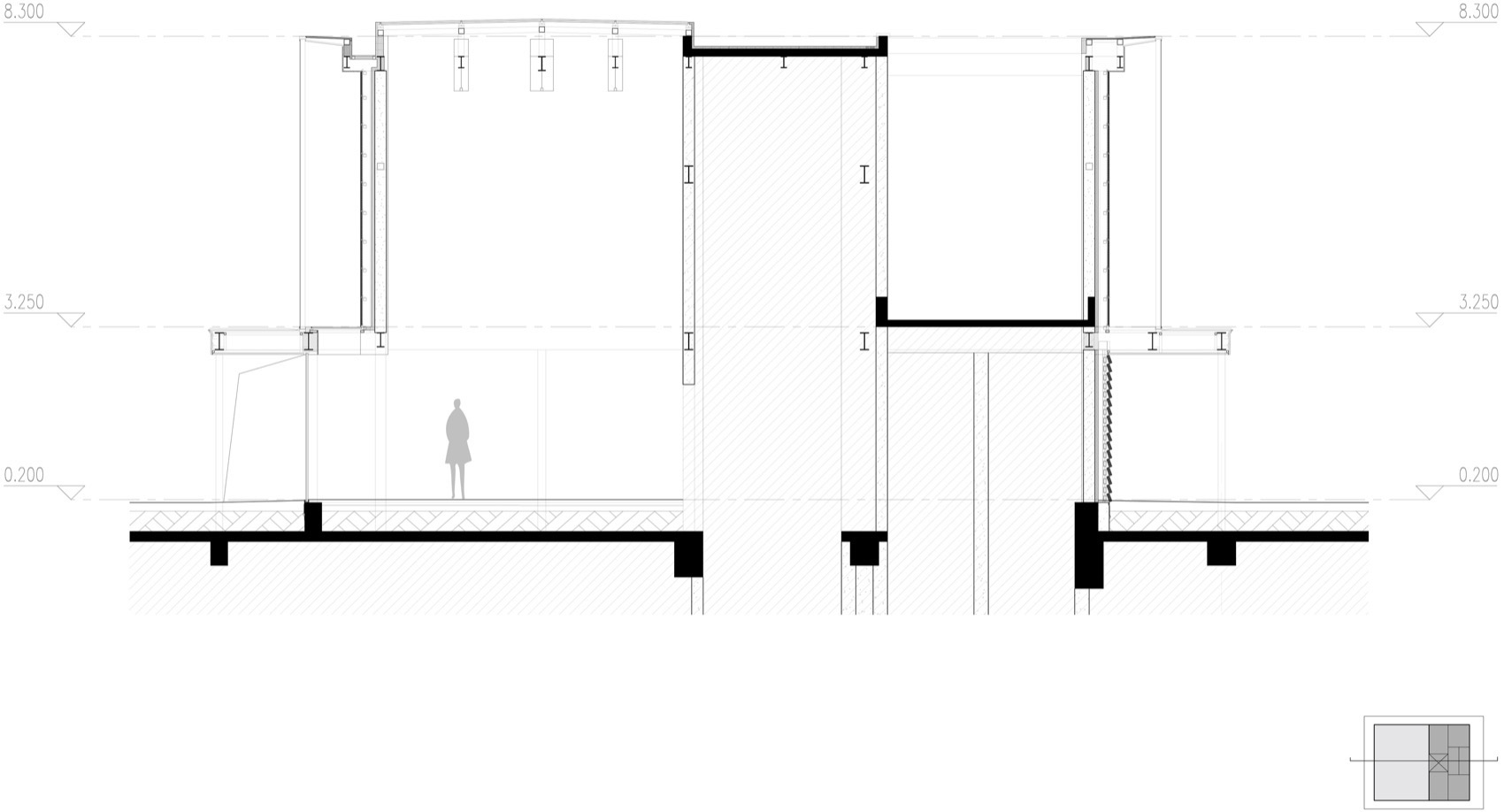
▼剖面D-D’,Section D-D’ ©大舟建筑 Dazhou and Associates
▼剖面E-E’,Section E-E’ ©大舟建筑 Dazhou and Associates
▼东北侧结构轴测, Structural Axonometric ©大舟建筑 Dazhou and Associates
项目信息
项目名称:昆山城市广场地上景观建筑
项目类型:景观建筑
项目设计:上海大舟建筑设计事务所
设计时间:2021.12-2022.12
完成时间:2025.05
设计团队:唐大舟、金怡蕾、吴铭筱
结构顾问:张冲冲
灯光顾问:汤楚荻
项目地址:江苏省昆山市前进中路城市广场(昆山市政府南侧)
建筑面积:531.2㎡
廊架面积:2508.1㎡
Project Information
Project name: Kunshan City Square: The Above-ground Landscape Architecture
Project type: Landscape Architecture
Design: Dazhou and Associates
Design year: 2021.12-2022.12
Year of completion: 2025.05
Design team: Dazhou Tang, Yilei Jin, Mingxiao Wu
Structural Consultant: Chongchong Zhang
Lighting Consultant: Chudi Tang
Project location: City Square, Middle Qianjin Road, Kunshan, Jiangsu Province, China
Gross built area: 531.2㎡
Outdoor corridor area: 2508.1㎡
客服
消息
收藏
下载
最近





































