查看完整案例

收藏

下载
地域
Region
这座占地239亩、建筑面积6.26万平方米的崭新校园静卧于准噶尔盆地西南缘的天北经济技术开发区,地处古尔班通古特沙漠边缘的绿洲新城,冬日风雪卷地、夏日烈日炙烤。
▼校园鸟瞰, Aerial View @ 存在建筑
▼初中部教学楼,Teaching Building @ 存在建筑
▼初中部中庭, Atrium @ 存在建筑
▼小学部中庭, Atrium @ 存在建筑
▼活动平台 ,Platform @ 存在建筑
This new campus, spanning 239 acres with a construction area of 62,600 square meters, is nestled in the Tianbei Economic and Technological Development Zone on the southwestern edge of the Junggar Basin. It lies in an oasis city at the fringe of the Gurbantünggüt Desert, where winter blizzards sweep the land and the summer sun scorches the earth.
▼安集海大峡谷, Anjihai Grand Canyon @ 荣朝晖工作室
▼城市肌理和区位 ,Site and Location @ 荣朝晖工作室
▼校园鸟瞰 ,Aerial View @ 存在建筑
▼校园鸟瞰,Aerial View @ 存在建筑
轴线
Axis
北疆广袤的大地和无尽绵延的远山是新疆天然水平延展力量的体现。故此本项目以开放舒展的水平轴线为主旋律。两条正交的十字轴线贯穿校园:东西向串联主入口、初中部、精神中心与食堂体育馆;南北向衔接剧场、报告厅、专业教室及活动平台,构筑成两条灵动的学习长轴,延伸出无限可能的教育场域。
The vast expanse of the Northern Xinjiang region and the endlessly stretching distant mountains embody the natural horizontal extension of Xinjiang’s landscape. Therefore, this project adopts an open and expansive horizontal axis as its main theme. Two orthogonal cross axes run through the campus: the east - west axis connects the main entrance, the junior high school section, the spiritual center, and the dining hall and gymnasium; the north - south axis links the theater, lecture hall, specialized classrooms, and activity platforms, forming two dynamic learning axes that extend into an educational space of infinite possibilities.
@荣朝晖工作室
▼平远的自然与人工, Flat and Vast @ 存在建筑
▼鸟瞰平面图, Aerial Top View @ 存在建筑
▼初中部教学楼 ,Teaching Building @ 存在建筑
▼小学部教学楼, Teaching Building @ 存在建筑
组团
Cluster
这是一个九年一贯制的学校,设计秉持“以城修学”理念,让建筑浸染城市气质,助力校园生活社会化。不同年级组团化布局兼顾管理便捷,“类城市”空间则催生各年龄段孩子的自然互动。
This is a nine-year coherent school system, and the design adheres to the philosophy of “city-as-education,” allowing the architecture to be imbued with urban qualities and facilitating the socialization of campus life. The grouped layout for different grade levels ensures convenient management, while the “city-like” spaces foster natural interaction among children of all ages.
▼类城市空间生成 ,Space Generation @ 荣朝晖工作室
▼初中部教学楼 ,Teaching Building @ 存在建筑
▼初中部教学楼 ,Teaching Building @ 存在建筑
▼连廊下灰空间,Grey Space @ 存在建筑
差异
Difference
小学部以简洁水平大空间搭配绿意庭院,让孩子在奔跑中拥抱阳光自然;初中部空间更显内秀,以中庭为核心的套叠空间,营造垂直维度的丰富变化,供年长学子领略建筑魅力。
The elementary school section features simple, expansive horizontal spaces paired with verdant courtyards, allowing children to run freely amidst sunlight and nature. The junior high section, with a more understated refinement, centers around an atrium that forms interlocking spaces, creating rich variations in the vertical dimension for older students to appreciate the charm of architecture.
▼年龄空间的差异 ,Age and Space Differences @ 荣朝晖工作室
▼小学部内院 ,Courtyard @ 存在建筑
▼小学部内院 ,Courtyard @ 存在建筑
▼小学部西侧 ,Primary School West View @ 存在建筑
▼初中部教学楼 ,Teaching Building @ 存在建筑
▼体育馆 ,Gymnasium @ 存在建筑
中庭
Atrium
中庭是校园交流核心。初中部中庭作为入校首个空间高潮,五层通高区域借锯齿形天窗引天光,兼具展示、集会等多元功能。端部大阶梯化身泛图书馆,让学子在课间15分钟随时随地沉浸阅读、交流感悟。不同学段如何体现差异性?符号化的表征肯定是最差的选择。尺度变化带来的空间模式暗示应该是更好的选择。
The atrium serves as the core of campus interaction. The junior high school atrium, as the first dramatic spatial experience upon entering the school, features a five-story-high area illuminated by zigzag skylights that draw in natural light. This multifunctional space accommodates exhibitions, gatherings, and other activities. A grand staircase at the end transforms into an informal library, enabling students to immerse themselves in reading and exchange ideas during 15-minute breaks. How should differences between educational stages be reflected? Symbolic representations are undoubtedly the poorest choice. Instead, spatial patterns suggested by variations in scale offer a far more effective approach.
▼初中部中庭 ,Atrium @ 存在建筑
▼室内中庭 ,Atrium @ 存在建筑
▼小学部中庭 ,Atrium @ 存在建筑
精神中心
Spiritual Center
特色精神中心的打造,为校园注入了驻足沉思的意蕴:圆锥形校史展览馆立于两轴交汇处,在暖阳中静静记录校园的成长轨迹;小学部内院的角锥形“星空室”,则邀约孩子们在课余抬眼仰望,在浩瀚宇宙中放飞无限遐想。
The creation of a distinctive spiritual center infuses the campus with spaces for pause and contemplation. A conical school history exhibition hall stands at the intersection of the two axes, quietly recording the campus’s growth under the warm sunlight. Meanwhile, the pyramidal “Starry Sky Room” in the elementary school courtyard invites children to gaze upward after class, letting their imaginations soar in the vast universe.
▼校史馆 ,School History Exhibition @ 存在建筑
▼校史馆 ,School History Exhibition @ 存在建筑
▼校史馆和活动平台, School History Exhibition and Platform @ 存在建筑
建造
Construction
北疆戈壁的建造,是一场与自然的对话博弈。严酷环境造就了新疆建筑独有的英雄主义美感——室外平台大量采用红色现浇混凝土,手扫而成的拉毛肌理尽显手工温度,以质朴质感诉说着建设者对教育事业的赤诚;建筑底层红砖材质的运用,又为这份粗犷增添了几分温润柔情,刚柔并济间彰显地域建筑特色。
Building in the Gobi Desert of Northern Xinjiang is a dialogue and contest with nature. The harsh environment gives rise to a unique heroic aesthetic in Xinjiang’s architecture—extensive use of red cast-in-place concrete for outdoor platforms, with hand-swept textured finishes that showcase the warmth of craftsmanship, speaking plainly of the builders’ sincere dedication to education. The incorporation of red brick materials at the base of the structures adds a touch of warmth and tenderness to this ruggedness, creating a blend of strength and softness that highlights the distinctive character of regional architecture.
▼制作红色混凝土,Casting Red Concrete @ 荣朝晖工作室
▼砖拱圆洞,Brick Wall @ 存在建筑
▼红色混凝土看台, Grandstand @ 存在建筑
平台
Platform
屋顶是触碰天空的独特课堂。突破严寒地区规避室外空间的传统设计,项目结合操场看台打造串联各建筑单体的室外活动平台,以丰富的地坪标高构建四通八达的校园漫游路径,鼓励孩子们走上屋面拥抱阳光自然。同时,针对北疆气候特点,专项设计室外地面防滑处理与扫雪措施,在保障安全的前提下,让室外空间成为成长的延伸舞台。
The rooftop serves as a unique classroom that touches the sky. Breaking away from traditional designs in cold regions that avoid outdoor spaces, the project integrates grandstand seating with the playground to create interconnected outdoor activity platforms across building units. By incorporating varied ground elevations, it forms an extensive network of campus wandering paths, encouraging children to ascend to the rooftops and embrace sunlight and nature. At the same time, tailored to the climatic characteristics of Northern Xinjiang, specialized designs include slip-resistant treatments for outdoor surfaces and snow removal measures, ensuring safety while transforming outdoor spaces into an extended stage for growth.
▼活动平台,Platform @ 存在建筑
阳光
Sunlight
阳光是大自然给新疆的馈赠,赋予了建筑设计以鲜明的光影舞台和浓郁的地域温度。从清晨绵长斜照的阳光穿过内院的拱廊,到正午阳光的倾泻直射入精神中心,再到傍晚金箔般的夕阳弥漫于小学中庭……阳光为建筑的每一处角落镀上瞬息万变的暖调,使之在昼夜交替间与自然共谱凝固的诗歌。
Sunlight is nature’s gift to Xinjiang, endowing architectural design with a vivid play of light and shadow and a profound regional warmth. From the early morning sun casting long, oblique rays through the courtyard arcades, to the noon light pouring directly into the spiritual center, and the golden, foil-like sunset permeating the elementary school atrium in the evening—sunlight bathes every corner of the architecture in ever-shifting warm tones, composing a frozen poetry in harmony with nature as day turns to night.
▼小学部次入口,Entrance @ 存在建筑
▼室外连廊,Corridor @ 存在建筑
▼室内中庭,Atrium @ 存在建筑
▼小学部天文中心,Astronomy Center @ 荣朝晖工作室
▼小报告厅,Auditorium @ 存在建筑
▼图书馆,Library @ 存在建筑
▼内院与阳光,Courtyard @ 存在建筑
结语
Epilogue
古人云:“蓬生麻中,不扶而直”,空间塑造人格。在这里,庭院欢腾与空间深邃相映,红砖混凝土镌刻真诚,屋顶平台承载梦想。这不仅是学校,更是微缩教育之城——让知识在交融中生长,让成长在共生中绽放。
An ancient proverb reminds us that rushes growing among hemp stand straight without support—a testament to how space shapes character. Here, vibrant courtyards harmonize with profound architectural spaces, where red brick and concrete echo sincerity, and soaring rooftops cradle dreams. More than a school, this is a microcosm of an educational ecosystem—a place where knowledge flourishes through integration, and growth blossoms in symbiotic discovery.
▼总平面图,Site plan@ 荣朝晖工作室
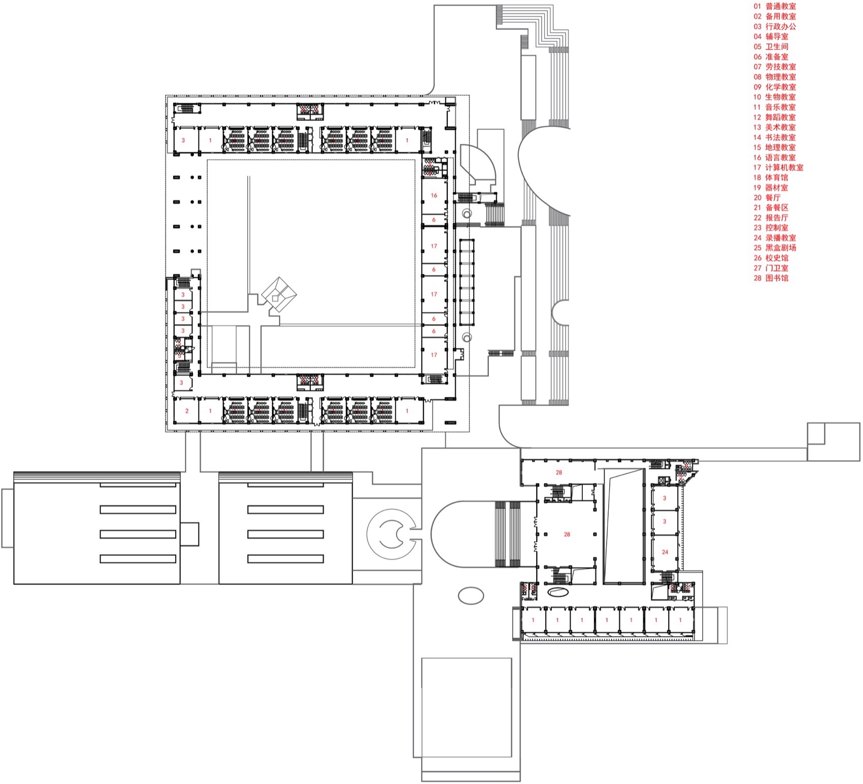
▼一层平面图,Firstfloor plan @荣朝晖工作室
▼二层平面图,Second floor plan@荣朝晖工作室
▼三层平面图,Third floor plan @荣朝晖工作室
▼食堂体育馆立剖,Elevation and section drawings of the cafeteria gymnasium @荣朝晖工作室
▼中学部立剖,Elevation and section views of the middle school section @荣朝晖工作室
▼小学部立剖,Elevation and section views of the primary school section @荣朝晖工作室
项目名称:胡杨河市天北实验中学
项目类型:教育建筑
设计方:江苏中锐华东建筑设计研究院有限公司荣朝晖工作室+趣锐(上海)建筑设计有限公司
项目设计:2023
完成年份:2025
方案设计团队:荣朝晖 顾爱天 田亚坤 崔天琦 陈杨帆 高超 赵书艺
施工图设计:江苏中锐华东建筑设计研究院有限公司:顾爱天 田亚坤 崔天琦 陈杨帆 王雪丰 刘永平 周霞萍 陈振伟 张震宇 钱威 王晨涛 朱奇汉 王新宇 谢伟 吴亦飞 孔娇 钱威 桓少鸣
施工图合作设计:新疆北疆建筑规划设计研究院有限公司 刘阳 郭美云 张丽 范凯 王鸿飞 苏广杰 赵辉 张仲生 陈永利 李昶希
项目地址:新疆胡杨河市天北新区
建筑面积:61000㎡
摄影版权:存在建筑
客户:第七师胡杨河市教育局
Project name: Tianbei Experimental Middle School
Project type: Education
Design: Jiangsu Provincial Zhongrui East China Institute of Architectural Design and Research Co.,Ltd. Qurui (Shanghai) Architectural Design Co.,Ltd.
Design year: 2023
Completion Year: 2025
Leader designer & Team: Zhaohui Rong; Aitian Gu; Yakun Tian; Tianqi Cui; Yangfan Chen; Chao Gao; Shuyi Zhao
Gross built area: 61000㎡
Photo credit: Arch Exist
Construction Drawing Design: Jiangsu Provincial Zhongrui East China Institute of Architectural Design and Research Co.,Ltd. :Gu Aitian; Tian Yakun; Cui Tianqi; Chen Yangfan; Wang Xuefeng; Liu Yongping; Zhou Xiaping; Chen Zhenwei; Zhang Zhenyu; Qian Wei; Wang Chentao; Zhu Qihan; Wang Xinyu; Xie Wei; Wu Yifei; Kong Jiao; Qian Wei; Huan Shaoming
Construction Drawing Collaborative Design: Xinjiang North Xinjiang Architectural Planning and Design Research Institute Co., Ltd.: Liu Yang; Guo Meiyun; Zhang Li; Fan Kai; Wang Hongfei; Su Guangjie; Zhao Hui; Zhang Zhongsheng; Chen Yongli; Li Changxi
Clients: 7th Division Huyanghe Municipal Education Bureau
客服
消息
收藏
下载
最近




























































