查看完整案例

收藏

下载
1 定位:非标的“行旅”空间
Positioning : Non-standard JourneySpace
行旅空间,不像中国人的家宅有着诸多风水朝向、等级尊卑的限制,它可以更加自由。不需要收纳世俗琐碎,也不需要精打细算每一寸面积。它的尺度比家宅小,但要比酒店大。是屏蔽了柴米油盐、世里行间后,将身体短暂隐于自然的近旁。真正体验的不是奢华昂贵的材料,不是精致稀有的陈设,而是我与此山,我与此地,我与此刻的诗意关联。当然也不可被标准化。可以说,行旅空间更接近中国人的理想栖居。这便是南山君柠酒店的设计任务书。
© 汪领
Unlike traditional Chinese homes, which are often constrained by feng shui principles and hierarchical rules, journeyspaces offer greater freedom. They don’t need to accommodate worldly concerns or meticulously calculate every inch of space. Their scale is smaller than a home, but larger than a hotel. It’s a space where, after escaping the mundane realities of daily life, one can briefly immerse oneself in nature’s embrace. The true experience isn’t about luxurious materials or exquisite furnishings, but rather the poetic connection between oneself and the mountain, the place, and the present moment. And of course, it cannot be standardized. In short, travel spaces are closer to the ideal dwelling for the Chinese. This is the design brief for the Nanshan Junning Resort.
▼项目鸟瞰,aerial view of the project © 苏圣亮
2
建筑布局:依山 面竹 驯水
Planning: nestled against the mountain, facing bamboo groves, and tamed by water
场地是皖中地区一处普通的低丘缓坡的山谷,一侧背山,一侧面竹,一侧临路。地形高差有十米左右。原状有一条小溪从山谷流下,在雨季时半山处汇聚成一个小水潭,枯水期形成一个天然的池塘。
▼总平面图 (1 叠木堂 2 环木亭 3 餐厅 4 编木舫 5 编木双舫 6 编木堂 7 日潭 8 交木阁 9 斜木林 10 斜木林 11 悬风楼 12 聚木亭 13 月池),master plan © 来建筑设计工作室
The site is an ordinary valley of low, gentle hills in Central Anhuiprovince. It is defined by a mountain slope on one side, a bamboo forest on the other, and an access road flanking the third. The site spans an elevation difference of about ten meters. A stream originally traversed the valley, manifesting as a mid-slope pool during high flow and receding to a pond in drought.
▼整体鸟瞰,overview aerial view © 苏圣亮
建筑的布局依山就势:背山一侧建筑一字排开,倚山而建;面竹一侧建筑以环抱姿态面向竹林;临路一侧三栋建筑松散间隔,是公共区域。“驯水”成为景观组织的线索:首先把山上溪流经过缓速后引入场地内部,自高向低形成不同形态的水面,层层跌落,或缓或急,或宽或细;其次再把园路穿插在水间,高地错落,跨临面跃,形成游园的趣味;然后将原来小水潭的位置,布置一座水潭形状的建筑,屋顶用水还原为原始地貌中的水相,同时形成一座独特的水下居所;最后,在山谷高处水的源头,高举一座月形水池,横跨在小溪之上,并形成跌水水帘景象,成为整个园子的水眼。让水顺应地势,铺满园子,静则有形,动则无形。水之形便是地之形,水之势便是气之势。
The buildings are positioned to conform to the terrain: structures backed by the mountain are arranged linearly, built into the slope; those facing the bamboo grove adopt an embracing orientation; and the three road-facing structures, dedicated to public programs, are loosely dispersed. The concept of “Taming the Water” guides the landscape strategy. This involves slowing and channeling the mountain stream into the site, where it descends to create various water bodies that cascade in terraces, shifting between broad, narrow, swift, and gentle flows. Paths are interwoven among these features, designed with staggered heights and varied crossings to enhance the visitor experience. A pool-shaped structure occupies the original stream pool location; its roof is a water surface, restoring the site’s original water element while housing a unique submerged residence. At the stream’s highest source, a crescent-shaped pool is elevated, spanning the brook to create a water curtain spectacle, serving as the garden’s focal “Water Eye.” Ultimately, water is allowed to follow the topography, permeating the entire garden. Its form is discernible when static, yet intangible when moving. The water’s form mirrors the land’s form; its momentum dictates the site’s spirit.
▼建筑的布局依山就势,positioned to conform to the terrain © 苏圣亮
▼“驯水”成为景观组织的线索,The concept of “Taming the Water” guides the landscape strategy © 苏圣亮
▼园路穿插在水间,Paths are interwoven among features © 苏圣亮
▼游园的趣味,enhance the visitor experience © 苏圣亮
▼让水顺应地势,water is allowed to follow the topography © 苏圣亮
3
与“古”为“新”
“Innovating” Through “Antiquity”
与古为新,并非对传统的复刻,而是以现代的建造体系对东方空间精神的再书写。南山君柠酒店的设计回溯传统营造中的秩序、审美,从构造技艺到文化意向,从结构原型到空间姿态,皆以当代的方式重新生成。“新”不在于形似,而在于神和:将传统极具智慧的构造逻辑转化为当下的空间生成逻辑,使文脉之中的智慧和精神在当下焕发出生命力。
“Innovating through Antiquity” is not about replicating tradition but about rewriting the Chinese spatial spirit using a contemporary construction system. The design for Nanshan Junning Resort traces the order and aesthetics of traditional craftsmanship. From construction techniques to cultural intent, and from structural prototypes to spatial gestures, all elements are regenerated through a contemporary lens. True innovation resides not in formal resemblance but in spiritual resonance: transforming the ingenious logic of traditional construction into a current spatial generation logic, thereby allowing the wisdom and spirit embedded in the cultural context to radiate vitality in the present.
▼叠木堂内部,interior of the GHall © 苏圣亮
3.1传统“藻井”的结构化升格
The Structural Elevation of the Traditional Caisson Ceiling
传统木构中“藻井”属于装饰性构件,通常出现在重要的礼仪性空间的顶部。但因为传统木材强度有限,藻井尽管只需承载装饰构件自身的重量,却也只能覆盖比较小的空间。而得益于现代木构技术对于材料强度的提升,藻井空间覆盖面积不仅能大幅度扩大,而且能够成为建筑结构系统,而不只是装饰构件。是一种更接近中国人宇宙观的结构形态。中国人认为,圆是天的形状,正方是地的形状。人只能接近于圆形,但不能建造出真正的圆形。因此在中国传统建筑中,中心对称式的精神性建筑(塔,亭、坛等),大多是将方形的木构梁柱进行抹角,更接近圆,从而离天道更近一步。藻井通常也是从四方形抹角为八角,再向圆形进一步升格,在方圆之间转变,介于天地之间。▼藻井,the caisson ceiling
In traditional timber architecture, the caisson ceiling functions as a decorative element, typically reserved for the apex of significant ceremonial spaces. However, due to the limited strength of traditional wood, the caisson ceiling—despite only bearing its own weight—could only span relatively small areas. Benefiting from advances in modern timber technology, its coverage area can be vastly increased, allowing it to transition from a mere decorative component to a functional structural system. This structural form is more aligned with the Chinese worldview of the cosmos: where the circle symbolizes Heaven and the square represents Earth. Humans can only approximate the circle, but cannot perfectly construct it. Consequently, in traditional Chinese spiritual architecture (such as pagodas, pavilions, and altars), centered, symmetrical timber structures often utilize corner-cutting techniques on square beams and columns to move closer to the circular form, thereby approaching the Dao. The caisson ceiling typically progresses from a square base, chamfered into an octagon, and then further stepped toward the circular shape, embodying the transition between the Square and the Round and mediating between Heaven and Earth.
▼叠木堂空间结构,the GHall space structur © 赵奕龙
▼悬风堂空间结构,the GTower space structur © 赵奕龙
▼叠木堂模型,model © 来建筑设计工作室
▼叠木堂&悬风堂结构模型,model © 来建筑设计工作室
▼叠木堂&悬风堂结构模型,model © 来建筑设计工作室
▼叠木堂 &悬风楼剖透视,sectional perspective © 来建筑设计工作室
The structural and spatial forms of two buildings, the GHalland theGTower, originate from a contemporary interpretation of the traditional Chinese caisson ceiling. GHall, which functions as the hotel lobby, draws its structural prototype from an octagonal caisson ceiling common in Northern China. GTower, dedicated to the hotel bar, takes its prototype from the spiral caisson ceilings of the South. Structurally, the two buildings are mutually inverted. GHallemploys a component-layering arrangement that ascends, creating a powerful sense of upward momentum. GTower, conversely, inverts the descending load-transfer system of GHall, transforming it into an inter-supported, suspended structure held together by ultra-thin metal tension rods. The load is transferred upwards from the base, with the entire roof weight ultimately supported by twelve slender external steel columns, achieving a posture of effortless strength. This structure is rooted in tradition yet represents a form never realized in historical timber construction, made possible only by modern materials.
▼悬风楼施工过程,G Tower construction process© 来建筑建筑设计工作室
▼悬风楼外立面,the G tower exterior © 赵奕龙
▼悬风楼外立面,the G tower interior space © 苏圣亮
叠木堂屋顶采用了双层构造:下层明袱为构,支撑并展现结构力量;上层草架为形,塑造四坡屋顶的简洁形式。层间形成空腔以容纳管线和隔绝热量。而悬风楼屋顶构架形成一个漏斗状。屋顶雨水汇集,在中间聚合溅落。从传统建筑的“四水归堂”升格为“万水归堂”。雨水从屋顶洞穿两层楼板,跌入中央水系。悬风楼是园内最高的建筑,同叠木堂高低对望,成为阴阳互补之态。
The roof of GHallutilizes a double-layer construction: the visible lower layer provides structural support and displays the inherent strength of the framework, while the upper layer shapes the simple profile of a hip roof. The resulting interstitial cavity accommodates utilities and provides thermal insulation. Conversely, the GTowerroof structure forms a funnel shape. Rainwater gathers and concentrates at the center, splashing down. This elevates the traditional concept of “Four Waters Returning to the Hall” to “Myriad Waters Returning to the Hall”. The rainwater penetrates the roof and two floor slabs before dropping into the central water system. GToweris the tallest structure on the site, standing in complementary contrast to GHallin a dialogue of height.
▼叠木堂施工过程,GHall construction process© 来建筑建筑设计工作室
▼叠木堂仰看木构,Looking Up at the Timber Structure © 赵奕龙
3.2 传统“木拱桥”的去结构化降格
The Structural Demotion of the Traditional Timber Arch Bridge
浙南地区的木拱桥,是对于“小料大作”的智慧巧作,木材作为自然材料,长度有限,若要完成大跨结构,将短料通过互承的方式形成整体来实现。这是一种务实的诗意结构。对于这种木拱结构的继承和发展已经在国内看到很多借鉴和创新的设计。
▼编木舫轴测图,Weave House axon diagram © 来建筑设计工作室
The timber arch bridges of Southern Zhejiang exemplify the wisdom of “small ingredients grand creation”. Given the limited length of natural timber, short pieces are combined through inter-support methods to form large-span structures—a pragmatic, poetic structural approach. While many domestic projects have innovatively adopted this arch structure.
▼编木舫远景,overview of Weave House © 苏圣亮
而在编木舫的单体建筑中,同样是狭长的空间,并没有将木拱的构形方式作为主体结构,而是将其降格成为覆盖屋顶的构造,编木成为一种从线到面的构形方式,将木构的线性杆件编织成屋面。更进一步,将原本的拱形翻转,变成下弧,承载在横梁之上,进一步做实这种去结构化。
▼编木舫剖面图,Weave House section © 来建筑设计工作室
The individual unit Weave House—also a narrow and elongated space—did not adopt the timber arch as its primary structural system. Instead, the arch was demoted to a roof covering element. Timber weaving transforms the linear members of the structure into a surface, thus achieving a line-to-surface construction. Furthermore, the arch shape is deliberately inverted into a downward curve, resting on transverse beams, effectively making the structure non-load-bearing.
▼编木舫立面,exterior of Weave House © 苏圣亮
▼编木舫内景,interior space of Weave House © 苏圣亮
▼编木舫室内,bedroom of Weave House © 赵奕龙
当现代技术已经能够实现“大料大作”,那么再将能够轻易获得的“大料”变成小作,是一种对于工业化效率优先的反叛,是对于传统尺度的回归,也是技术降维对自然情绪的迁就。
When modern technology easily permits “bigingredients grand creation “, deliberately using easily obtained large material for small-scale construction represents a rebellion against prioritizing industrial efficiency. It is a return to traditional scale and a technological demotion that yields to natural sensibility.
▼编木舫结构,Weave House structure
3.3 “溜金斗拱”的力形之变
LiujinDou Gong: Force-Form Transformation
溜金斗拱是明清时期出现的斗拱做法,介于结构和装饰之间。从结构效率来看,它是冗余的,但是这种冗余却通过一种层叠的秩序表达,达到一种结构表现性。环木亭继承了溜金斗拱这种暧昧的力与形的关系,外围一圈十字形檐柱环抱向内,通过短拱的层层延伸,在屋顶天窗间相互搭接,形成无柱空间。层叠的短拱和望板获得了犹如溜金斗拱,向内托举的力感,使得这种“环抱”更有线条的力量感,却不显得粗重,是一种恰如其分的庇护。
▼溜金斗拱 & 环木亭木构,The LiujinDou Gong & Overlap Pavilion wood structure© 来建筑设计工作室
▼环木亭剖面图,The Overlap Pavilion section © 来建筑设计工作室
▼环木亭模型,The Overlap Pavilion model © 来建筑设计工作室
The LiujinDou Gong, prevalent during the Ming and Qing dynasties, is a bracket set technique that exists in the ambiguity between structure and ornament. Structurally, it is considered redundant, yet this very redundancy achieves a profound structural expressiveness through an ordered layering. The Overlap Pavilion inherits this ambiguous relationship between force and form: an external ring of cruciform eave columns embraces the interior, utilizing layers of short bracket arms that extend inward, intersecting one another at the central roof lantern to create a column-free space. The layered short brackets and purlins possess a sense of upward load-bearing force reminiscent of the Glazed-Arch Dou Gong. This “embracing” structure gains a powerful linear dynamism without appearing cumbersome, offering a form of justifiable and effortless shelter.
▼环木亭内部,interior of The Overlap Pavilion © 苏圣亮
▼环木亭全景,overview of The Overlap Pavilion © 苏圣亮
▼环木亭内景,interior space of The Overlap Pavilion © 苏圣亮
▼环木亭木构细节,The Overlap Pavilion wood structure © 赵奕龙
▼环木亭木构细节,The Overlap Pavilion wood structure © 苏圣亮
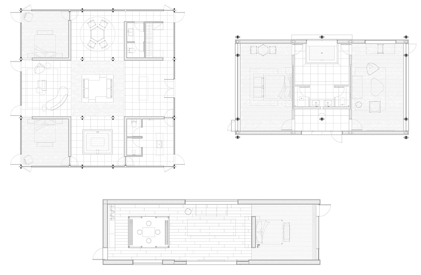
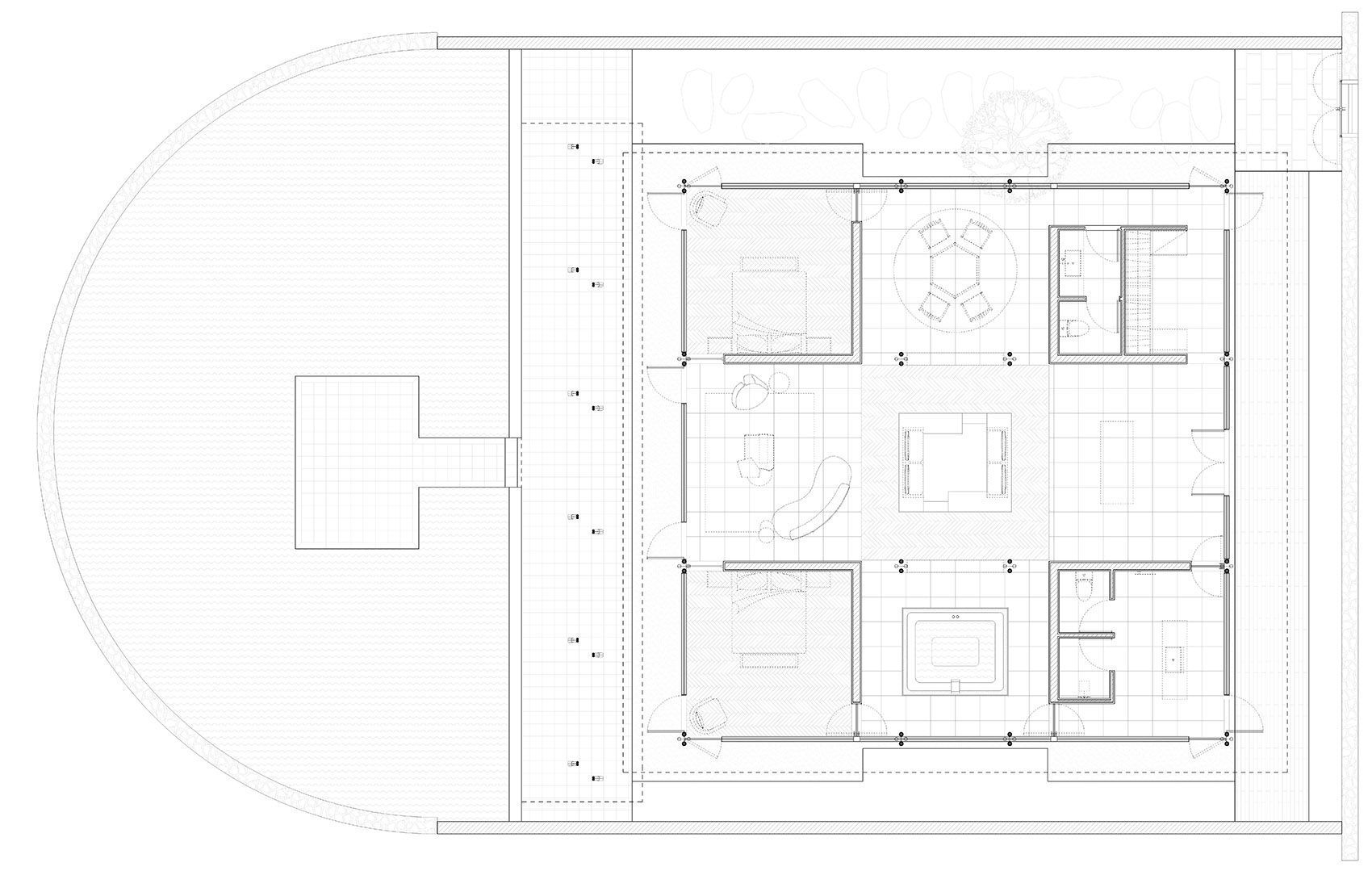
3.4九宫平面的“井”“回”之变
The changes of “#”Grid and the “@”Pattern in the nine-square plan
九宫格是中国人最本初的空间原型,从国土到城市,从宫殿到民居,从抽象的世界观到具体的分田制度。在九宫格的格局里,“井”不只是取水之所,更是秩序的骨架,是物理的划分。在南山君柠酒店的建筑单体平面布局中,也是从这一基本的空间骨架出发,用九宫格来进行拓扑变化。比如居所之中,九宫对应寝、食、浴、茶等不用功能,并且根据不同的功能面积变换其比例分配。而在公共空间中,将“井”字形骨架解构,顺应大堂、酒吧、书咖等功能,形成“回”字形动线。“井”为静,“回”为动,是气韵的流通。
▼明堂图,Diagram of the Mingtang
The Nine-Grid System is the primal Chinese spatial archetype, informing everything from national territory to civic and residential planning. Within this framework, the #Grid serves not merely as a reference to water but as the organizational backbone and physical division of order. The individual units of the Nanshan Junning Resort utilize this fundamental armature for their plan layouts, applying topological transformation. For residential units, the Nine-Grid maps to functions—sleeping, dining, bathing, tea—with their proportions adjusted according to area requirements. Conversely, public spaces deconstruct the #Grid. Adapting to programs like the lobby, bar, and bookstore, they form a dynamic @Circulation Pattern. The #Grid represents stasis and the@Circulation represents motion, signifying the free circulation of the site’s spirit.
▼平面之变,Change of plan© 来建筑设计工作室
4 与“骨”为“形” “Form”Through “Structure”
如果说“与古为新”关乎传统的接续,那么“以骨为形”则是现代技术下的审美倾向。结构是建筑之骨,并不是消极而需要被隐藏的工程问题,而可以成为空间的语言、建筑的文法和审美的源泉。正如谢赫六法中的“骨法用笔”, “骨法”是线条的形态美学,是描绘万物抽象的精神性概括,相对于皮肉筋骨血,“骨”是结构,是力量和动势,是核心,是气韵的形式法则。在建筑空间中,“骨”不只是作为承重受力的结构杆件,而是搅动空间气韵的线条。
If “Innovating through Antiquity” concerns the continuity of tradition, then “Form through Structure” represents a modern aesthetic inclination informed by contemporary technology. Structure is the skeleton of architecture—it is not a passive engineering issue to be concealed, but rather a potential source for spatial language, architectural grammar, and aesthetic resonance. This concept mirrors the “Bone Method” within Xie He’s Six Canons of Painting: Bone Method is the aesthetic of line and form, an abstract spiritual generalization of all things. Relative to the flesh, sinews, and blood, the “Bone” is the structure, the force, the momentum, the core, and the formal principle of Qì-rhyme. In architectural space, the “Bone” transcends its role as a mere load-bearing component; it becomes the line that stirs the site’s spirit.
▼“以骨为形”, “form through structure” © 苏圣亮
4.1编木为骨
Weave as structure
之前的编木舫完成了从线到面的屋顶构造,“编木堂”则是对“木拱桥”进行的结构巧变:木拱桥本身传递压力,若将木拱倒置,变成木索,则变成了受拉结构,编木而成的屋顶犹如一张木网,悬挂于两根纵向梁上,编木屋顶中间重力自然下沉而两头翘起,形成单跨的木索结构。若将两个单跨木索拼成编木堂,则需要四根大梁再通过十六根细柱传递向地面,这便是编木堂的骨法。不同材料、不同尺度、不同受力的结构构件“梁柱檩椽”都是采用统一直径的圆杆进行叠合变换,进一步加强了“小料”的手工感。梁与柱,梁与梁,三个空间方向上的力的转换通过一种“双托柱”的节点组织在一起,三向受力得以清晰简洁地完成传导。
▼编木堂轴测图,axon diagram of the WeaveHall © 来建筑设计工作室
▼编木堂模型,the WeaveHall model © 来建筑设计工作室
While the Weave House achieved a line-to-surface roof construction, the Weave Hall represents a structural transformation of the timber arch bridge. The arch bridge traditionally functions under compression; by inverting the arch into a timber cable, the structure shifts to tension. The woven wood roof becomes a timber net suspended between two longitudinal beams. Gravity causes the center of the woven roof to naturally sag while the ends lift, forming a single-span timber cable structure. To combine two such single-span cable structures to create Weave Hall, four main beams are required, transferring the load to the ground via sixteen slender columns—this constitutes the structure’s “Bone Method”. All load-bearing components—beams, columns, purlins, and rafters—despite differing in material, scale, and stress, are constructed using round rods of uniform diameter in a layered transformation, reinforcing the handmade quality of “meager material”. The complex, three-dimensional transfer of force between beams and columns is organized through a “Double-Corbel Column” node, which clearly and concisely manages the three-way load transmission.
▼编木堂户外交通空间,the WeaveHall transportation space © 苏圣亮
▼将两个单跨木索拼成编木堂,combine two such single-span cable structures © 赵奕龙
▼编木堂内部,interior space of the WeaveHall © 苏圣亮
▼编木堂施工过程,the WeaveHall construction process© 来建筑设计工作室
4.2 “交木”为骨
Xas structure
交木阁以标准化构件形成“双木相交”的稳定桁架结构,这是现代结构的理性思路。但在交木阁中,从材料处理到搭接方式都刻意避免现代工业化的方式,其构形原则还是用短线条交织,勾勒出弧形的屋顶线条。木材的温润与交叠的力学逻辑相得益彰,使屋顶弯曲成双弧面,既向外张望,又在中央聚水,凝成雨水内聚的空间内核。
▼交木阁剖面图,The Overlap Pavilion section © 来建筑设计工作室
The X Pavilionutilizes standardized components to form a stable “dual-timber intersection” truss structure—a rational approach typical of modern engineering. However, the design deliberately avoids industrial methods in both material treatment and joinery. Its formation principle relies on the interweaving of short linear components to trace the sweeping lines of the curved roof. The warmth of the timber complements the interlocked structural logic, causing the roof to curve into a double-arched surface that simultaneously opens outwards and gathers rainwater inwards, creating a spatial nucleus for collected rain.
▼“双木相交”的桁架结构, “dual-timber intersection” truss structure © 赵奕龙
交木阁居于山高之处,远可望山,近可戏园,前可赏松,后可观竹。空间体验如同山势般步步抬升,游走之间,木构的错落与空间的流动交织出动态的视觉效果。交木阁因而不仅是结构的交汇,更是骨法与山水意境的互文。
X Pavilionis situated at the highest point of the hill, offering distant views of the mountains, immediate access to the garden, a front view of pines, and a rear view of bamboo. The spatial experience rises sequentially, mirroring the mountain’s topography. The staggered arrangement of the timber structure and the flow of space interweave to generate dynamic visual effects as one wanders through. X Pavilionthus represents not only a structural intersection but also an intertextuality between the Bone Method and the spirit of the landscape.
▼木构的错落与空间的流动,he timber structure and the flow of space © 赵奕龙
▼交木阁施工过程,the X Pavilion construction process© 来建筑设计工作室
4.3 “聚木”为骨 * as structure
聚木亭位于园子边界,其形体顺应山体的弯曲而展开。屋顶因地势而采用扇形四坡顶结构,木梁自屋脊向屋檐直接伸展,形成聚合之势,带着方向性与力量感。梁端以金属构件包裹,避免雨水侵蚀。木梁的放射与汇聚,使屋顶如同一只张开的羽翼,既承载结构的稳定,也引导视线的展开。视线方向顺应着木构伸展的方向,将四周的景致收纳进来,以观者为中心,获得一种环向长卷的延伸感。
▼聚木亭轴测图,The Pavilion section © 来建筑设计工作室
The * Pavilion is located on the garden boundary, its form unfurling to conform to the mountain’s curvature. Due to the topography, the roof adopts a fan - shaped hip structure, where timber beams extend directly from the ridge to the eaves, creating a sense of convergence and directional force. The beam ends are clad in metal components to prevent rainwater erosion. The radiation and convergence of the timber beams make the roof resemble an outstretched wing, simultaneously providing structural stability and guiding the viewer’s gaze. The line of sight follows the extension of the timber structure, drawing in the surrounding scenery. This arrangement centers the observer, achieving a sense of extended, panoramic scroll.
▼聚木亭内部,interior of the Pavilion © 赵奕龙
5
与“形”为“意”
“Intent”Through “Form”
宋画《寒鸦图》描绘了一幅林间意象,林中雾霭弥漫,仅能看见不同斜度的树干,这种简单又自然的阵列,具有神秘感和力量感。这种线条的力量是建筑结构的天然原型。沿着宋画中这种对自然体验的定格描绘,还原为空间场景中的自然精神的抽象。不同形状和尺度的柱子,能展现出不同的意境。这是以下几栋建筑的形式来源以及意境之变。
The Song Dynasty painting,Hanya Painting, depicts an imagery of the woods: mist permeates the forest, revealing only tree trunks at various angles. This simple, natural array possesses both a sense of mystery and power. This linear force is a natural prototype for architectural structure. Following the fixed portrayal of natural experience found in the Song painting, the design abstracts this natural spirit into a tangible spatial scene. Columns of different shapes and scales are utilized to express varied artistic conceptions. This methodology serves as the formal origin and the source of aesthetic transformation for the buildings described below.
▼《寒鸦图》,Hanya Painting
5.1 斜木为林
Incline Hall
斜木林虽然用木构做柱,但不同于建筑木作的端正垂直,这里木柱四向微斜,交织成林。自然舒展的线条支撑起结构,触地的节点纤细轻巧,仿佛风中枝桠,营造出动态的韵律。纤细的斜柱举重若轻地托起浑厚梁体,在“肥梁瘦柱”的对比中平衡了传统的韵味与现代的张力。地面高低起伏,以退阶式平台打破规整布局,营造松弛的山林漫游感。人在林间,或坐或卧,或倚或靠,空间由此呈现出“屋中有山,屋中有林,林间又藏屋”的栖居意境。
▼斜木林轴测图,The InclineHall axon diagram © 来建筑设计工作室
▼斜木林剖面四联,4 type of The InclineHall section© 来建筑设计工作室
The InclineHall, although built with timber columns, eschews the upright verticality of traditional timber work. Here, the columns subtly incline in four directions, weaving into a forest. Naturally sprawling lines support the structure; the nodes touching the ground are slender and light, like branches in the wind, creating a dynamic rhythm. The slender, leaning columns support the massive beams with effortless strength, and the contrast of “fat beam, thin column” balances traditional aesthetic charm with modern aesthetic tension. The ground surface undulates, and stepped platforms break the regular layout, fostering a relaxed sense of wandering through the mountain forest. As people interact with the grove—sitting, lying down, leaning, or resting against—the space presents a dwelling conception of “mountains within the house, a forest within the house, and a house hidden within the forest.”
▼斜木林楼空间,interior of The InclineHall © 苏圣亮
▼斜木林楼木构,The InclineHall wood structure © 苏圣亮
5.2 筷腿举棚
The Chopstick-Leg Shelters
园子里几处挡雨棚,并未采用木构,而是采用更加纤细的钢柱,产生更强的力感:或倚墙而扶,或双腿交叉,比木柱更加细长的比例,接近筷子的长细比,并且都是成对出现,仿佛可用手夹取,产生尺度差的趣味感。
▼筷腿举棚节点,The chopstick-leg shelters detail drawing © 来建筑设计工作室
Several rain shelters within the garden do not employ timber but use much slimmer steel columns to generate a stronger sense of force: some lean against a wall, while others utilize a cross-legged configuration. Their proportions are significantly more slender than the timber columns, approaching the slenderness ratio of chopsticks, which creates an amusing contrast in scale, as if they could be grasped by hand.
▼筷腿棚立面,The chopstick-leg shelters exterior © 赵奕龙
▼筷腿棚细节,zoom in The chopstick-leg shelters © 苏圣亮
5.3 曲柱的日潭
Sun Pond: Curved Columns
日潭位于原有水潭,将主体建筑隐于屋顶水下,仅以编木亭为入口,旋转步入其中。柱体采用混凝土材料,以其可塑性区别于木构。厚重而弯曲的柱子支撑起空间,不同曲度展现着不同的力度,而力度又与光度相互呼应。与曲柱交织的家具,共同营造出一种身体与结构互动的力学趣味。
TheSun Pondoccupies the original pond location, concealing its main structure beneath the roof’s water plane, accessible only via the Weave Pavilion entrance, through which visitors rotate downwards. The columns here are realized in concrete, their plasticity distinguishing them from the timber structures. Heavy and curving columns support the space; their varying degrees of curvature express different intensities of force, which in turn correspond with the quality of light. Integrated furnishings, interwoven with the curved columns, collectively generate a dynamic interplay between body and structure.
▼日潭鸟瞰,aerial view of TheSun Pond © 赵奕龙
▼日潭中庭,TheSun Pond courtyard © 赵奕龙
水下空间如岩穴般清凉幽隐,弯曲的柱体与水光交织,形成独特的氛围。不同的曲度不仅塑造了空间的张力,也赋予其一种近乎自然生长的姿态。日潭因此成为园中最为隐逸的所在:在水下的静谧与光影的流动之间,建筑以曲骨之形,构筑出一处独立而深邃的栖居之境。▼日潭施工过程,TheSun Pond construction process
The submerged space is cool and deeply secluded, like a grotto, where the curving columns and shimmering water light interlace to form a unique atmosphere. The varying curvatures not only sculpt the spatial tension but also lend the structure a posture of being almost naturally grown. The Sun Pondthus becomes the most secluded place in the garden: in the stillness beneath the water and the flow of light and shadow, the architecture constructs a self-contained and profound realm of dwelling through the form of the curved bone.
▼日潭室内,TheSun Pond interior space © 苏圣亮
5.4 筒柱的月池
Moon Pool: Tubular Columns
月池静卧于山腰高处,横跨原有溪涧。水面在二层被高高举起,水势跌落形成水帘。下层空间中,斜向筒柱与斜向树枝在水中交相辉映。自然与人工以一种似是而非、文质并序的姿态进行对话。筒柱本身充满稳定感,但微微倾斜之后,造成动势。
TheMoon Poolrests serenely high on the mountainside, spanning the original stream bed. The water plane is elevated to the second level, where the descending flow creates a water curtain. In the lower space, slanting tubular columns and slanting tree branches reflect one another in the water. Nature and artifice engage in a dialogue that is at once plausible and implausible, juxtaposing raw simplicity with refinement. While the tubular columns inherently possess stability, their slight inclination generates a dynamic momentum.
▼月池鸟瞰,aerial view of TheMoon Pool © 赵奕龙
▼月池入口,entrance of TheMoon Pool © 苏圣亮
月池与日潭因水相而彼此呼应,形成负阴抱阳、日月同辉的形式关联。一个隐于水下,柱子在高度方向弯曲;一个高举水面,柱子在水平方向弯曲。二者相互映照,在动与静、阴与阳之间,在挺立与曲服、庇护与紧张之间,呈现出不同的意趣。
The Moon Pooland the Sun Pondcorrespond through their water presence, forming a formal relationship of embracing Yin and holding Yang and achieving the co-illumination of the Sun and Moon. One is concealed beneath the water, with columns curved along the vertical axis; the other is elevated above the water, with columns curved along the horizontal axis. They reflect each other, presenting different artistic conceptions across the dichotomy of motion and stasis, Yin and Yang, uprightness and curvature, shelter and tension.
▼月池室内,TheMoon Pool interior space © 赵奕龙
6
节点的“显”与“藏”
Details : Concealment and Revelation
在南山君柠的营造逻辑中,细部并非附属,而是“骨法”精神在微观层面的延续。整个建筑体系以现代木构为主,钢构件作为隐性支撑介入其中。以木为骨,以铁为筋。在北美为代表的现代木构系统中,节点通常是粗鄙的螺栓和钢板连接件,充满工业感。而我们希望在保证传力强度足够的前提下,让连接件“半显露”,一种“犹抱琵琶半遮面”的含蓄感,仅露出细微的构件传力的线索,而藏起粗重的功能结构,表达一种对现代技术的约束。
In the construction logic of Nanshan Junning Resort, details are not subsidiary but represent the continuation of the “Bone Method” spirit at the micro-level. The entire architectural system is predominantly modern timber, with steel components intervening as hidden support: Wood acts as the bone, and steel as the sinew. In modern timber construction, often exemplified by North America, nodes typically utilize crude bolts and steel plates, creating a strong industrial aesthetic. We aimed for the opposite: while ensuring sufficient load-transfer strength, we allowed the connectors to be “semi-exposed,” conveying a subtle restraint—”like a half-veiled Pipa player.” This technique reveals only minimal clues to the transmission of force, concealing the heavier functional structures, thereby expressing a restraint of modern technology.
▼叠木堂细部,the GHall structure detail © 来建筑设计工作室
以叠木堂为例,双层屋顶的受力节点采用嵌入式钢件,所有金属构造仅露出极小部分,光线下若隐若现,使连接关系“可视而不可见”。这种隐匿的处理,并非对技术的遮掩,而是一种选择性的露出,含蓄而留有想象空间。
Taking GHallas an example, the load-bearing nodes in the double-layer roof utilize embedded steel components. All metal structures are only minimally exposed, subtly appearing and disappearing in the light, rendering the connection “visible yet invisible.” This act of concealment is not a disguise of technology but a form of selective exposure, creating an aesthetic that is reserved yet leaves room for imagination.
▼悬风楼细部,the GTower structure detail © 来建筑设计工作室
悬风楼的木梁通过极细的金属拉杆层层悬挂,形成内力的连续传递。钢杆与木梁的尺度被设计得对比悬殊,使人感知到的是空间的轻盈,而非结构的重量;节点处的金属光泽与木材纹理在光线中交织,显出力的传导的线索。
The timber beams of the GTowerare suspended layer by layer using ultra-thin metal tension rods, creating a continuous transfer of internal forces. The scale contrast between the steel rods and the timber beams is deliberately stark, causing one to perceive the lightness of the space rather than the weight of the structure. At the nodes, the metallic sheen and the wood grain interweave in the light, revealing clues to the transmission of force.
▼编木舫细部,the Weave House structure detail © 来建筑设计工作室
在编木做法中,用金属片和螺杆将短的木杆拉结成网,藏起螺栓和铁片,使其在人视角度不可见,这是“藏”;在两个不同方向的大梁的搭接处,却用钢托来转化力的传导方向,丝毫不加掩饰,这是“显”。此处,金属不再是连接件,而是结构要素——柱子。
In the weaveconstruction method, short timber rods are tied into a net using metal plates and bolts. These bolts and steel plates are concealed, rendering them invisible from the viewer’s perspective—this is “Concealment”. Conversely, at the junction where two main beams meet in different directions, a steel bracket is used to explicitly convert the direction of force, without any disguise—this is “Revelation”. In this instance, metal is no longer merely a connector but is transformed into a structural element: the column.
▼编木堂细部,the Weave Hall structure detail © 来建筑设计工作室
▼编木堂细部,the Weave Hall structure detail © 来建筑设计工作室
斜木林的细节则更显诗意。四向微斜的木柱节点以球形金属接头连接,允许角度微调,从而让整个“林”呈现自然舒展的姿态。节点在此不再是技术的痕迹,而成为结构生长的“关节”,让木作具备了自然的韵律。
The details of the InclineHallare even more poetic. The nodes connecting the subtly four-way slanting timber columns use spherical metal joints, allowing for micro-adjustments in angle, which enables the entire “forest” to achieve a naturally sprawling posture. The node here is no longer a trace of technology but becomes the “joint” for structural growth, endowing the timber construction with a natural rhythm.
▼斜木林细部,the InclineHall structure detail © 来建筑设计工作室
▼斜木林细部,the InclineHall structure detail © 来建筑设计工作室
7
后记
Postscript
南山君柠酒店的设计,并不在于复刻一种传统形式,而在于以当代的建造方式回应中国人的造物观。从“古”与“新”的转译,到“骨”与“形”的审美,从“形”与“意”的演变,再到“显”与“藏”的思辨,形成一套中国的意与匠的现代建造系统。
The design of the Nanshan Junning Resort is not about replicating a traditional form but about responding to the Chinese philosophy of creation through contemporary construction methods. A cohesive system of Chinese Intent and Craft is established through the translation of “Antiquity and Innovation” the aesthetics of “Structure and Form,” the evolution of “Form and Intent,” and the dialectic of “Concealment and Revelation.”
▼建筑鸟瞰,aerial view of the project© 苏圣亮
▼建筑场景精选,selection view of the project© 苏圣亮
▼建筑场景精选,selection view of the project© 苏圣亮
▼建筑场景精选,selection view of the project© 赵奕龙
▼建筑场景精选,selection view of the project© 赵奕龙
同西方一样,在工业化发展到一定程度后,都开始怀旧,怀念跟自然互融共生的那个“旧”从前。但其实现代人的身体已经不可能适应那个原生自然的状态了,所以怀旧只能是一种情绪价值,以反效率的方式表达对于商业的反叛。但其实很难逃出商业的规则和影响。所以基于这种矛盾,本设计倡导一种平衡:是对工业化的拥抱,对现代技术的驯养,但底色仍然是我们深厚的哲学观念,而不是被西方文化夺舍。
Similar to the West, industrialization eventually fosters a sense of nostalgia—a longing for the “old days” of natural coexistence. However, the contemporary human body can no longer adapt to that pristine natural state, making this nostalgia merely an emotional value, which expresses rebellion against commerce through anti-efficiency—though it is difficult to escape commercial rules. Based on this paradox, the design advocates for a balance: it is an embrace of industrialization and a taming of modern technology, where the underlying foundation remains our deep-seated philosophical concepts, ensuring that our cultural identity is not displaced by Western paradigms.
▼夜览,nightview © 苏圣亮
▼编木舫平面图,plan © 来建筑设计工作室
▼编木双舫平面图,plan © 来建筑设计工作室
▼编木堂平面图,plan © 来建筑设计工作室
▼叠木堂平面图,plan © 来建筑设计工作室
▼环木亭平面图,plan © 来建筑设计工作室
▼交木阁平面图,plan © 来建筑设计工作室
▼聚木亭平面图,plan © 来建筑设计工作室
▼日潭平面图,plan © 来建筑设计工作室
▼日潭屋顶平面图,plan © 来建筑设计工作室
▼斜木林平面图,plan © 来建筑设计工作室
▼悬风楼平面图,plan © 来建筑设计工作室
▼月池平面图,plan © 来建筑设计工作室
▼编木舫立面图,elevation© 来建筑设计工作室
▼编木堂立面图,elevation© 来建筑设计工作室
▼交木阁立面图,elevation© 来建筑设计工作室
▼斜木林立面图,elevation© 来建筑设计工作室
▼悬风楼立面图,elevation© 来建筑设计工作室
▼叠木堂立面图,elevation© 来建筑设计工作室
▼环木堂立面图,elevation© 来建筑设计工作室
▼聚木堂立面图,elevation© 来建筑设计工作室
项目名称:南山君柠酒店
Project Name:NanshanJunning Resort
项目地点:安徽省合肥市庐江县
Location: Lujiang, Hefei, Anhui, China
项目类型:酒店
Categor: Resort
用地面积:23720m²
Site Area:23720m²
建筑面积:6713m²
Floor Area:6713m²
设计时间:2018.3-2024.3
Design Period:2018.3-2024.3
建设时间:2019.10-2024.5
Construction Period:2019.10-2024.5
结构系统:木结构,钢结构,混凝土结构
Structural System: wood structure, Steel Structure, Concrete structure
主要材料:金属屋面,胶合木,毛石
Main materials: metal roof, glued wood, rough stone
建设单位:合肥南山云起生态旅游开发有限公司
Client:Hefei Nanshan Yunqi Ecological Tourism Development Co., Ltd.
设计单位:来建筑设计工作室
Architects: Atelier LAI
主持建筑师:马岛
Lead Architect: Ma Dao
项目建筑师:陈运、严安
Project Architects: Chen Yun, Yan An
设计人员:马岛,陈运,王聿宁,刘同强,严安,廖启贤,张莹,郭晓红,魏铮,陈康,林均翰,谢佳辰,袁其安
Design Team: MaDao, Chen Yun, Wang Yuning, Liu Tongqiang, Yan An, Liao Qixian, Zhang Ying, Guo Xiaohong, Wei Zheng, Chen Kang, Lin Junhan, Xie Jiachen, Yuan Qian
软装设计:上海则问设计咨询有限公司
FF&E Consultant: The One Studio
结构咨询:曾学为
Structural Consultant: Zen Xuewei
机电设计:陈增伟,郑渊贾,李均生,杨银中
MEP Design:Chen Zenwei, Zheng Yuanjia, Li Junsheng, Yang Yinzhong
景观深化:朱志诚,金群英,董杰、方良灿,单群
Landscape Consultant: Zhu Zhicheng, Jin Qunying, Dongjie, Fang Liangcan, Shan Qun
照明咨询:陈思维
Illumination Consultant:Chen Siwei
摄影:苏圣亮,赵奕龙,汪领
Photographs: Su Shengliang, Zhao Yilong, Wang lin
施工总包:安徽宏犇建设工程有限公司
GeneralContractor: Anhui Hongben Construction Engineering co. Ltd.
木结构施工:上海木乐康木结构工程有限公司,南京匠言建筑科技有限公司
Wood Structure Construction: Shanghai Mulekang Timber Structure Engineering Co., Ltd. ; Nanjing Jiangyan Construction Technology Co., Ltd.
室内施工:上海迈昌建设工程有限公司
Interior Construction:Shanghai Maichang Construction co. Ltd.
水循环系统:杭州水如画环保科技有限公司
Water Circulation System Construction: Hangzhou Shuiruhua Environmental Protection Technology Co., Ltd.
暖通系统:合肥精通暖通工程有限公司
HVAC Construction: Hefei Jingtong HVAC Engineering Co., Ltd.
门窗系统:安徽众泰智能科技有限公司
Door and Window SystemConstruction: Anhui Zotye Intelligent Technology Co., Ltd.
照明系统:上海尔舍照明科技有限公司
Lighting Engineering: Shanghai Ershe Lighting Technology Co., Ltd.
客服
消息
收藏
下载
最近
























































































































































