查看完整案例

收藏

下载

翻译
Architects:PLAN Architects office
Area:197m²
Year:2024
Photographs:Yoon, joon hwan
Lead Architects:Lim Tae hyung
Site Manager:DM construction
Contractor:DM construction
Category:Houses
Team:Lim Tae hyung, Yun Bitna, Lee Beom jin, Son Sangyeon, Jo Yewon
City:Naju-si
Country:South Korea
Text description provided by the architects. Light Gallery House is located within a one-minute walk from the previous project, House of Boundary, and shares the same spatial context. The young couple requested a home large enough to accommodate the grandmother and two young children. The project started from their determination to make a better environment for their children, after suffering from the repeated stress of inter-floor noise in their apartment.
The young couple built up a sense of beauty with their academic backgrounds and careers in professional fields, such as fashion, design, and dining space design, and they had detailed and specific requests. Still, the young couple expressed their willingness to fully trust the architect out of the concern that their strong engagement in taste, structural likes and dislikes, and lighting color temperature may otherwise limit various possibilities.
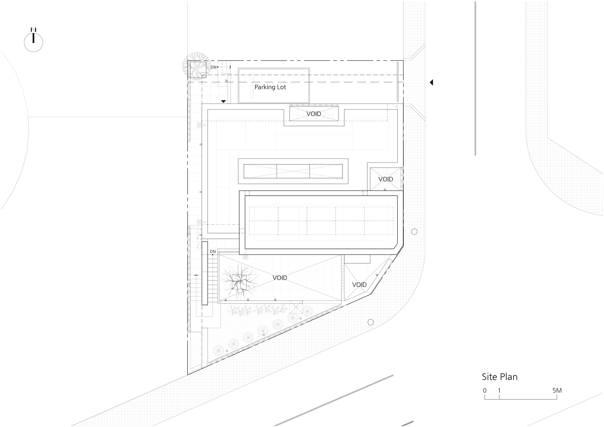
The exterior of the house reveals the spatial characteristics with its triangular front at the corner of the blocks and light-colored bricks stacked along the irregular boundaries. For residents who care about privacy, the front has a raised garden to serve as a visual screen, and slits were installed in different areas to offset the feeling of pressure from heightened boundary walls. The slits appear in different scales between masses of different heights, walls, internal corners, and building elements to function as a passage for light and air and as a tool for controlling the living environment.
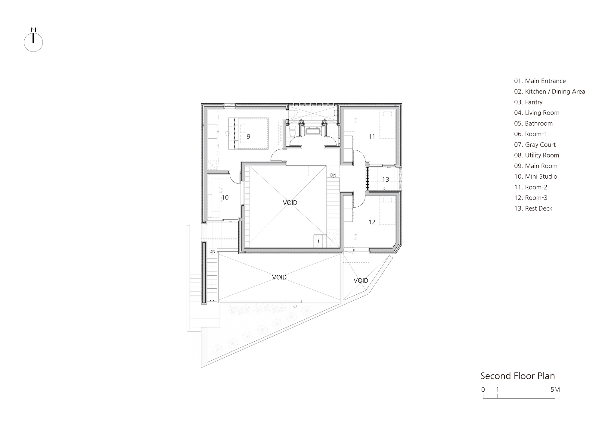
The house design focuses on the requirements of residents, such as simple form, internalization of extraordinary experience, and a stress-free house, and places the LDK (living room, dining, kitchen) at the center of the house. The LDK is enclosed by the front yard on the first floor, service areas on side and back, and bedrooms on the second floor to create the overall house atmosphere. The LDK occupies the largest spaces and serves as the gathering space for family members who enjoy conversations and reading. As the LDK opens visually to the yard, kitchen, dining area, and second floor, children can run and shout freely as their parents watch them. To do so, the house has no sofa or television, fills the walls with bookshelves, and lets in the natural light to create a bright and lively atmosphere.
The front outdoor areas are designed with three distinct features, and they are utilized as an extension of the living room, a garden, and a meditation space while maintaining a direct relationship with the adjoining internal rooms. To ensure privacy during outdoor activities, the walls are higher than eye level, and slits let in light and air to create an open space where the residents can move seamlessly between indoors and outdoors.
The house has an intimate design like a brick fortress embracing the soft, interwoven spaces of varying scales bathed in abundant natural light. Planned as an ensemble of solid and refined senses, the house aspires to remain a meaningful place where the family shares the warmest and brightest sunlit moments of their lives.
Project gallery
客服
消息
收藏
下载
最近

























