查看完整案例

收藏

下载

翻译
Architects:ater.architects
Area:300m²
Year:2025
Photographs:Yevhenii Avramenko
Category:Offices,Offices Interiors
Design Team:ater.architects
City:Kyiv
Country:Ukraine
Text description provided by the architects. The designers were tasked with creating a space for people whose work revolves around generating ideas. Known for its bold campaigns and progressive culture, Banda wanted an office that would serve not simply as a workplace but as a manifesto, a physical expression of its values. The project by ater.architects reflects openness, sincerity, craftsmanship, respect for history, and a balance of refined taste with intentional imperfections and self-irony. "The clients wanted a cozy space that felt more like a bright, spacious apartment than an office," says Yulia Tkachenko, architect and co-founder of ater.architects.
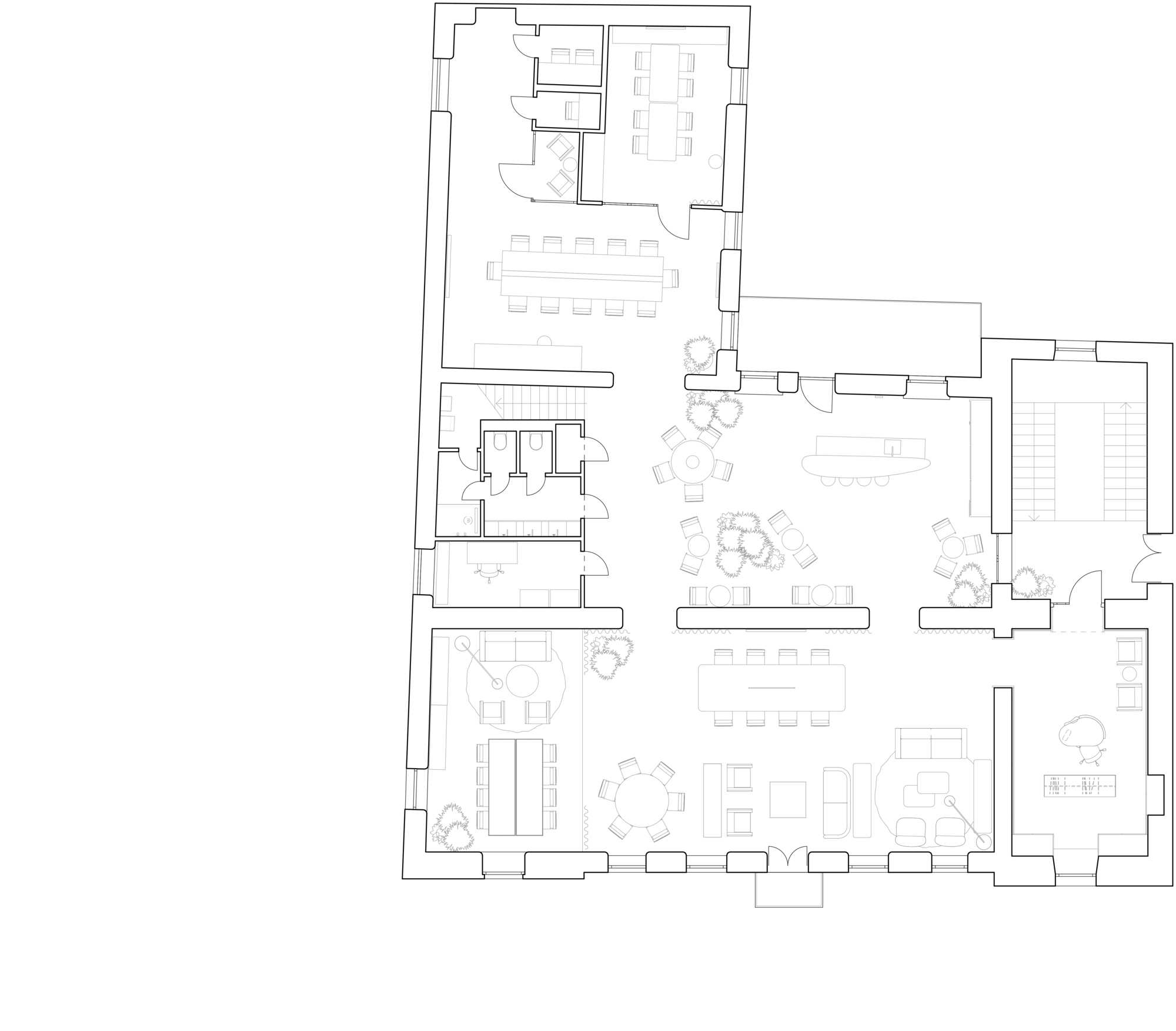
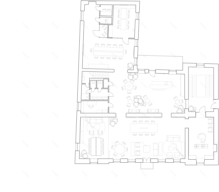
The office occupies the second floor of an early 20th-century building on Yaroslaviv Val Street in Kyiv's historic center. The architects were inspired by the high ceilings and historical textures, integrating two cubic volumes with mezzanines into the floor's original layout while keeping the rest of the plan open and adaptable. Visitors enter through a classic wooden door fitted with vintage glass chosen for its natural imperfections. Oak wall panels immediately set a restrained, traditional tone while hiding generous storage, and a glass-fronted cabinet brings natural light deeper into the interior. The waiting area combines red vintage Dietiker armchairs, a Kint coffee table, and a naive painting by contemporary artist Danik Manzhos.
Removing the suspended ceilings revealed original moldings and decorative friezes, which were carefully restored. Against this classical backdrop, the stainless-steel reception desk and minimalist Luceplan lamp introduce a contemporary contrast. The main hall is arranged like an eclectic studio apartment, with soft seating groups and custom communal tables that support both focused work and collaborative conversations. A raised podium transforms into a stage for events; mobile tables and lightweight folding chairs allow the layout to shift easily. Vintage armchairs, sofas, and a glass table create relaxed meeting areas. A twelve-seat communal table is paired with late-1980s bent plywood chairs, while a large painting by Ukrainian artist Serhii Dekaliuk anchors the space. Additional lounge areas, divided by low cabinetry and zonal lighting, feature restored European vintage furniture.
"Vintage pieces helped us create the lived-in atmosphere the client wanted," Tkachenko explains. "We sourced finds across Europe, from Soloform leather seating to Frag Canouan armchairs and classic folding chairs by Chairworks." Dedicated workstations with monitors are located on a mezzanine above one of the cubic blocks, which also houses bathrooms and technical rooms. The bathrooms feature ochre walls, round sconces, a quartzite sink, and a mirrored ceiling that amplifies natural light.
The second cubic volume contains meeting rooms and minimalist Zoom rooms with rounded glass doors inspired by Kyiv trams. Their upholstered interiors enhance acoustics and add warmth. Above them, a mezzanine lounge accessed by a pool-style steel ladder is lined with sky-printed mats — a playful retreat for staff to recharge.
The kitchen-dining area centers on a stainless-steel island, a sculptural wavy bar, and Magis stools. Wooden cabinetry conceals appliances, preserved paint swatches between windows recall the design process, and a work by Maksym Zabrodskyi adds a touch of irony. Small tables, vintage Castelli chairs, greenery, and a Nuvola lamp by Mario Bellini complete the space.
A dedicated workshop fulfills the team's need for hands-on experimentation. Brushed aluminum pegboards organize tools and materials, while the agency's awards displayed here reinforce the connection between process and result. Above the worktable, a long light fixture assembled from three Ikea lamps proves that simple solutions can be surprisingly effective.
Project gallery
客服
消息
收藏
下载
最近
































