查看完整案例

收藏

下载
项目地址:钢旅蓝郡
建筑面积:142㎡
设计风格:现代简约
软装搭配:艺境·陈设软装
项目地址:钢旅蓝郡
项目面积:142m²
设计风格:现代简约
主案设计:李晟
常住人口:夫妻俩+学龄前男宝
设计诉求:空间通透,颜色明亮拥有超大收纳空间,柜体要灵动简洁。
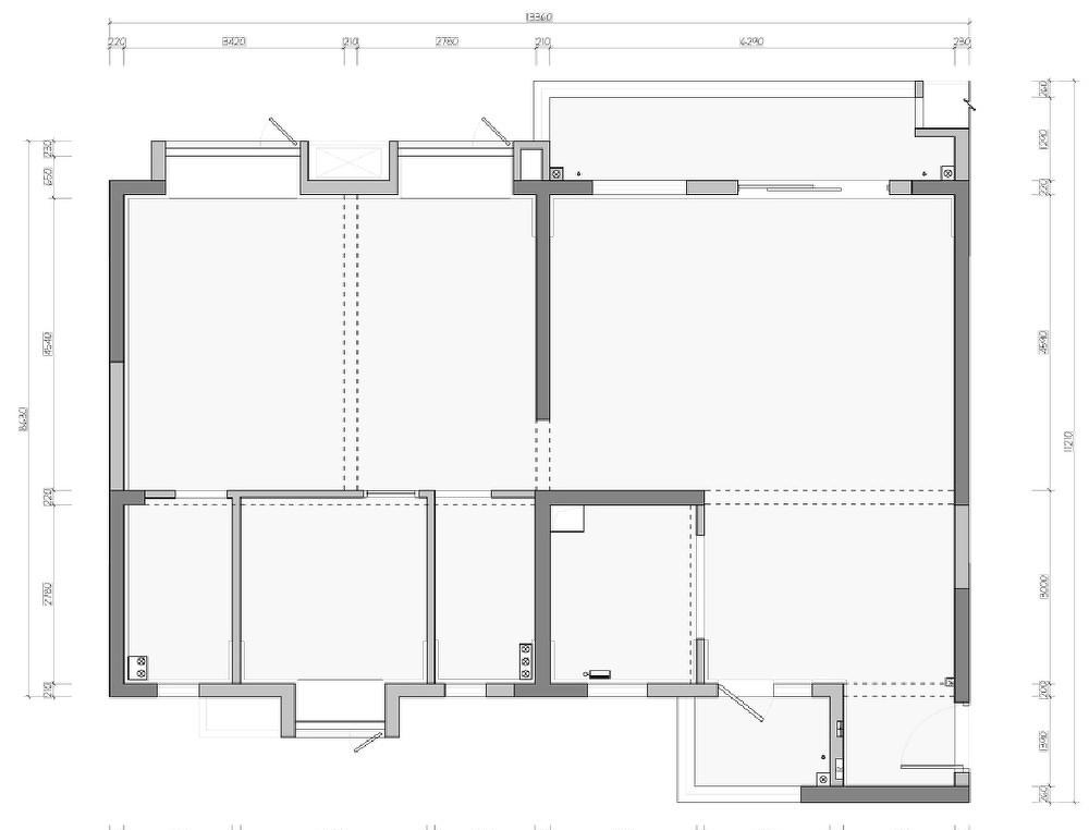
平面布置图
项目地址:钢旅蓝郡
项目面积:142m²
设计风格:现代简约
主案设计:李晟
常住人口:夫妻俩+学龄前男宝
设计诉求:空间通透,颜色明亮拥有超大收纳空间,柜体要灵动简洁。
平面布置图
推开家门,门厅定制鞋柜以 “极简线条 + 艺术嵌龛” 的设计,成为空间的温柔序章 —— 暖光勾勒开放格,把生活小物变成艺术点缀,归家的每一步都仪式感满满。
西厨水吧台与厨房的连续性柜体,以统一的极简设计语言,将收纳功能隐于无形,既实现了操作动线的流畅性,又让空间视觉浑然一体。
整面定制柜如艺术装置般定格视线 —— 极简门板与大理石嵌龛的碰撞,把收纳隐于美学肌理。
光影在柜体间轻轻跳跃,电视的黑与空间的白形成雅致对比,在现代简约的叙事里,打造“收纳智慧” 与 “视觉诗意” 的双向治愈。
奶油系家具与利落线条碰撞,圆形餐灯如艺术装置悬于上空;西厨水吧台与厨房的连续性柜体,以统一的极简设计语言,将收纳功能隐于无形,既实现了操作动线的流畅性,又让空间视觉浑然一体。
从餐厅望向厨房,整面白色柜体如雅致画布,把烹饪空间变成现代简约的艺术现场 —— 大理石墙面的天然纹路与极简门板对话,黑钢烟机在浅调里勾勒出利落线条。
玻璃移门的通透感,让烟火气与美学感悄然共生,每一次望向这里,都像在看一场 “把收纳藏进艺术,让烹饪成为享受” 的生活展演。
内嵌式洗碗机打开前后
玻璃隔断如空气般轻盈,让书房向公共区自然蔓延;整面定制柜既是视觉焦点,又暗藏 “阳台储物柜” 的巧妙遮挡设计,将收纳隐于无形。
书房秉持“功能与美学共生” 的设计理念,木质肌理在浅调里漾起质朴的温暖,每一次伏案,邂逅 “高效工作” 与 “视觉治愈” 的双向惊喜。
实景图展示-家庭私区
现代简约的基调里,把 “私密感” 与 “美学感” 揉成一处松弛角落 。
在这里,休憩是沉浸式的治愈,设计是藏在细节里的诗意,每一次停留都像在翻阅 “家的温柔剧本”。
定制柜体以极简线条勾勒出归家的温柔序章;而从次净衣柜望向主卧,暖棕系床品与极简柜体的组合,在浅调空间里铺陈出松弛的私域氛围。
PU镂空隔断如艺术装置,巧妙化解空间尴尬的同时,让光影在空格里跳起温柔舞蹈。
艺术挂画的纹理与中古壁灯的暖光交叠,让每一寸都浸着 “归家即疗愈” 的温柔。
床尾衣柜与梳妆台的穿插设计,把 “收纳力” 与 “仪式感” 揉成一处温柔角落。石纹板后藏着化妆镜与化妆品收纳,暖光勾勒的展示区,把美妆小物变成艺术点缀,搭配云朵般的座椅,把日常梳妆的仪式感拉满。
儿童房以 “清新蓝调 + 巧思收纳” 的设计,把孩子的成长天地酿成一处治愈角落。撞色柜体的圆弧嵌龛如童话城堡的窗口,把绘本玩具变成视觉惊喜。拆掉飘窗,设计成书桌,窗明几净,为小小世界的学习与想象预留了温柔空间。
把 “成长的快乐” 与 “空间的美学” 揉成一首活泼的诗 —— 在这里,每一次玩耍、每一次阅读,都是在童趣氛围感里,邂逅 “童年的纯粹” 与 “设计的温度”。
LAST
说在最后
当我们逛完这套 142㎡的现代简约风私宅,会发现设计从不是对风格的刻板复制,而是对 “家的美好向往” 的精准落地 —— 它可以是客厅玻璃隔断后书房的通透感,可以是主卧 PU 隔断藏着的设计巧思,还可以是儿童房蓝调里蹦跳的童趣……
我们相信,家是能装下所有热爱与松弛的容器。
客服
消息
收藏
下载
最近



































