查看完整案例

收藏

下载
▼从玄关向南看客厅
▼从玄关向北看餐厅
茧房的由来
The Genesis of the Cocoon
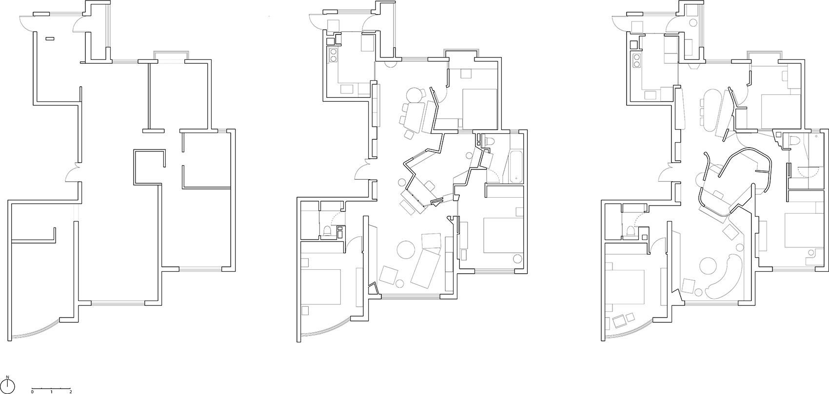
刚好原始户型在客餐厅之间塞了一个衣帽间,对主卧开门。也不知当初设计房子的人是怎么想的,这东西不仅是个黑房间,而且棱棱角角的,相当碍事,与正门之间的距离不远不近,成了垃圾空间。主人嫌它碍眼,必欲除之而后快。我想了下,不如干脆扩大成为女主人房,刚好在客餐厅间收拢视野,围出玄关。
▼从客厅看茧房
主人还说,不喜欢主卧和小朋友房间门对门,以及进入主卧的那条逼仄的L形走廊。她希望可以从客厅直接进主卧,这样沙发后那面墙因为有了一扇门,就不再是一道封闭的墙,而有了“深度”。这些想法,都被整合到“茧房”的构思中。▼从老人房走廊看茧房
其实第一版的“茧房”跟“茧”一点关系都没有,它只是借用了原来的衣帽间和短走廊形成的多边形房间,北边与儿童房的外墙相邻,南边对着客厅做成一扇大窗,里面正对女主人的书桌,窗台下放小朋友的钢琴,内部地坪因此抬高30cm。东侧与主卧相邻,门开在东南角,进去之后折一下让出卫生间过道。西侧为了围出玄关、收拢两侧视野,并嵌入玄关柜,形成了复杂的折线,延续这个动作,在北侧顺势划出餐厅范围,并让出60cm给小朋友房间做出入口。受这个初版茧房影响,客厅、餐厅、主卧和儿童房都有一条边变成折线,茧房内也分为两个区域——工作区和梳妆区。这个方案在客厅、女主人房、主卧结合处形成一个三角形的传送门,我反复设想它的形状和有趣的行走体验,直到方案提交给物业的那一天,得到否定的回复:不行,这道墙上不能开门。▼从卧室看茧房门和小走廊门
业主很恼火,物业早前口头承诺这里可以局部调整。据理力争一番,最终败下阵来。初稿中这个形状复杂的女主人房,对我来说颇难舍弃,它之所以长成这样,是种种条件制约下的必然结果,有逻辑又难揣摩,很“园林”。似乎空间已经被压缩到极致,无计可施了。业主说:“金老师,就看你的了!不过既然如此,我还有个新要求:新版方案,无论长啥样,希望进门不要看到墙角,最好圆润一点,哈哈”……说完就过春节去了。▼客厅东墙
节日期间一派风和日丽,北京城一下子安静下来。我对着图纸想,如果卧室朝北开口,女主人房必须南移,不仅压缩客厅空间,原来极力避免的L形走廊就又出现了,而且比原来还长。还有别的办法吗?没有。那就不做他想,尽量优化。一个是女主人房,它要缩小,满足要求的基础上最小化,避免侵占太多客厅空间;一个是通往主卧的走廊,它必须不讨人嫌。▼小走廊从玄关到进入卧室
于是女主人房南移,变得饱满圆润,不再是之前奇奇怪怪的样子,终于成了一个“茧”。说圆润,也并不是圆弧或椭圆,而是折线小圆角,方便施工定位。上下两半错动一下,出现两个入口,一个面对餐厅,一个通往主卧,这样就可以不经由外走廊而直接进入房间。主卧入口特别狭小,刚够一人通行,衣帽柜的侧墙充当了“影壁”;书桌依然俯瞰客厅,东墙上是通高的书架,西墙上开了一个圆形的洞窗,用植物加以遮掩,这样女主人可以看到外面进出的人,却不容易被看到。茧房虽小但五脏俱全,占据了中央位置,像个连通器,同时也是全家的制高点,为了获得更好的采光,朝客厅开了大窗,有点像个室外窗,可以上旋打开。坐在这里,很舒服,很局气,真有俯瞰全屋的气概。男主人有点不好意思地说:我的需求是——卧室里的小衣柜;餐厅里的咖啡台。就这些。以上就是茧房的由来。
▼茧房内部
房子里的小巷
The Lane inside the House
茧房的宽度是由两个条件决定:客厅东墙北侧顶点的位置,和周围通行的宽度。正是这些极限尺寸,塑造了从玄关和餐厅通往主卧的小走廊的形式。从起点到终点,要绕一个回头弯,超过180度,这在住宅中是不寻常的。之前说过,主人不喜欢普通户型中的L形黑走廊。既然无法解决这个矛盾,就反其道而行之,继续延伸它的长度、打磨它的造型,人为制造节奏感,让“通行”成为一件有趣的事。
▼小走廊从卧室到玄关
茧房面向主入口一侧的外墙朝西北撇了一下,是为了营造入口围合,从这里向东,就进入小走廊的第一个段落。一侧是茧房抬高的入口,一侧是餐厅卡座双折的背墙。这道墙的双折,也是为了餐厅形成内聚的空间形式,恰好在南侧留出了一个三角形体量,顺势做成双向连通的壁龛,正面朝着餐厅,侧面向小走廊打开。人在行进的时候,可以透过壁龛中的姿态美妙的植物瞥见餐厅。到这里,光线已经很暗了。昏暗本来是消极的,但在这道弯曲的走廊中,却恰好唤醒了探索的预期,通过打开的主卧室门,看到端头明亮的书架。书架被两个方向的光线照亮:一是从拱门里透进来的主卧的光,二是上方儿童房高窗的光。两边都是间接采光,从暗处看去,恰到好处的柔和。这里的照明是在吊顶上挖了一个穹,它发出的光也是淡淡的。▼从北向南看餐厅
▼从南向北看餐厅
卧室门选在这个位置,也是考虑到行进节奏,进了门就是小走廊的第二段,转90度弯后面对卧室。这道墨绿色的门上装了一个半球体高窗,既保护了隐私,也让高处的光弥漫到两边,透一口气。东北角墙体折了三下,呼应拐弯的走势,其实背后嵌着马桶和吊柜。转过弯来进入小走廊的最后一段,这里做了一个有深度的拱,压低了空间,也让视野更远。进入卧室回过头看,通往小走廊的拱门和茧房朝向卧室的狭窄入口紧紧挨在一起,像两个神秘的洞穴,通往未知的所在。从卧室往外走的途中可以更直接的看到儿童房高窗和餐厅双侧窗,为了保证私密,高窗内置了折叠木隔板,隔音玻璃形成一个透明盒子,收纳了窗扇。
▼通过双向窗从小走廊看餐厅
▼双向窗的小走廊一面
6米长的小走廊,给房间中的通行带来了颇多乐趣,这是之前无论如何也想不到的。多亏物业,逼我把方案改成更好的样子。女主人房现在从四周墙体中剥离出来,不仅成了一个真正的“茧”,也方便使用者从各个方向去感受它的圆润与温柔。明暗交替的行走体验,成了乏味日常的有益调剂。因为这条“房子里的小巷”,生活多了点小小风景。▼从小走廊看玄关
一点绿意,几处轩窗 A Touch of Green, Several Borrowed Views
使用需求驱动空间划分,空间划分造成限定,限定带来围合感,这时候需要适当透口气,让视线延伸出去。除了刚才提到的走廊门半球窗、儿童房玻璃盒子窗和餐厅背景墙双向窗,最特别的要数茧房面向入口处的花架镜窗。它其实是一个空间装置,一半漏空镶嵌玻璃,一半是镜面不锈钢和白色喷涂不锈钢交叉组成的“镜窗”,其中竖向不锈钢半圆托板有两片,呈锐角布置,避免正对入口。横板上放一盆蓬勃的日本雪莹,枝条从预留的扇形洞口悬垂下来。镜窗反射周围景物,圆窗透出茧房暖光,植物的叶子在镜中交叠,运动中看,成了一幅变幻迷离的小品册页。下面的三角形截面高脚花架上是一盆枝条舒张的密叶合欢,与镜窗顾盼相对,共同成为入口对景。餐桌是定制的,双折背景墙卡座靠背采用护墙板,竖向线条与对面餐边柜的绿色半圆截面瓷砖一起,烘托出家庭团聚的气息。双向窗中摆一盆姿态美丽的海岛春花,枝条舒展开来,撑满壁龛的宽度之后,又从侧面洞口向小走廊探出一枝。
▼半球窗,从玄关看卧室方向
▼盒子窗,从儿童房看小走廊拱门
▼镜窗
为了让这座“居室小园林”更显活泼生动,我们为每个角落精心选配了植物。客厅西南角,正对玄关是一株较大的海岛春花,枝叶扶苏。沙发后面放佛罗里达蔓绿绒和绿天鹅绒海芋,茧房下方的钢琴被业主取消了,放一株蓝花楹,搭配松染海芋,高处架子上垂下一盆三色锦画球兰,通过一面玻璃与茧房高处的灯龛相望。客厅东北角书架下面斜出一笔,设一双人卡座,与沙发遥遥对坐,更强化了茧房大窗的户外感。走廊转角处的仙羽蔓绿绒、儿童房门口的万年青、次卧的海葡萄和主卧的密叶猴耳环,在窗间、在门后、在转角不经意闪现,为居室平添一份盎然的绿意。
▼客厅西南角
▼客厅东南角
▼客厅东北角
每个人都是一座“园林”
Every Person a Garden
助手对我说:这么事无巨细的写,好像在给本科生上课,是不是习惯了老师这个角色,根本停不下来?其实这些细致琐碎的思考过程和设计心得,对建筑师来说属于入门常识,我把它记录下来,不是给专家看,而是给大众看的。每个人都有一个家,每个家都有一个样子。你的家该是什么样子?是售楼处的样板间,还是宜家家居的展示处?现代以来的技术理想主义者一直有一个预设,希望通过住宅的产品化,来实现居者有其屋的理想,于是有了预制化、产业化、装配式这些概念,说这些比较容易得到有关部门的支持,因为它的出发点是集体的、社会的、经济的,而不是个体的、生命的、体验的。但在社会性自我之外,另有一个更加本真、更加纯粹的存在性的自我,每个人的精神生活和生命体验的载体,正是在这个意义上,居室可以是人的存在之锚,是内在自我的外化,可以从居室的整洁美观程度看到一个人的精神水平,再进一步,居室空间的形式语言与主人的文化人格是联系在一起的。
▼从厨房看儿童房入口
▼从儿童房入口看厨房
我看春上村树早期小说中关于居室环境的细致描写,充满了对欧美文化的无限向往。从他写跑步那本书可以看出是非常自律的人,但在文化认同方面却谈不上高明。所有的形式语言都是文化性的,现代主义者主张的纯中性的“客观形式”并不存在。但我想暂时搁置这些讨论,谈谈功能与形式的关系。我把设计过程事无巨细的记录下来,是想告诉每一个人,你不是其他人而是你自己,随意选择一种“风格”来装饰你的空间,意味着对独一无二的个体性的不了解、不尊重、不认不负责。了解自己其实不难,就是把关于居住的想法和需求原原本本、不多不少地记录下来,然后与现实做一个比对。你会发现,几乎没有一个家庭的真实需求会在现有的居室格局中得到满足。这时候要让条件说话,认真面对,得到一两个有效的空间解答并不困难,这与艺术修养无关,纯属理性推演的范畴,有点像中学生解数学题,但不是为了考试,而是为了生活,值得每个人动动脑筋。
▼卧室门关闭时的餐厅背景墙
我特别反对随便选一种现成的“风格”,在四壁做平面化的涂抹。一位已经毕业的学生给我留言:“你为个体差异化的生活方式量身定做,但在设计上还是秉持理性功能逻辑……追求极致功能反而呈现出了感性的形式”。就像这个设计中的茧房,如果不是业主的个性化需求,如果不是物业的出尔反尔,是不可能想象的、更不可能长成这个样子,而它的存在又催生了小走廊、环抱的餐厅和独特的玄关镜窗。这一切都不必诉诸于高深的设计理论和系统的建筑史知识,只要充分倾听自己的心声就够了。说到底,无论什么尺度、什么类型的设计,“任意性”是最可怕的。我并不反对感性,但听凭感性的驱使,不仅是不成熟的,而且是一种认识误区,是对形式语言的滥用和误用。
▼细部合集
当我把居室比做园林,难免会有人觉得牵强,可是看看网上那些视频——夫妻俩辞了工作跑到山里盖50亩大园宅之类,难道不是为传播制造的幻觉吗?即使在古代,园林也与普通人关系甚微。如果园林不能普惠于每个人的生活,就注定无法摆脱奢侈品的定位。日常空间包括两个彼此关联的部分,对个体而言就是居室,对集体而言就是城市,只有当园林延伸到这两个范畴,古人的空间智慧才真正成为活的现实,让每个人从中受益。幸好,园林作为一种思想方法和设计语言并未局限在“古典园林”的狭义层面,它的方法论内核是“因借”,即理性处理杂多条件,“俗则屏之,嘉则收之”,最大化的展现层次和丰富性,小中见大,就是计成所说的“不分町疃,尽为烟景”。就像茧宅中的小走廊,不是故意追求曲折,也不是照搬某种风格,而是理性思考、耐心推敲,方案就自然呈现出“曲折尽致”的样子。“园林”在这里代表着顺势设计方法论及其自然达成的丰富多样,极致的功能追求引发了极致的审美体验,让居室成为主人愿望和追求的化身,也就是个体存在姿势的外显。所以,如果有人问我未来住宅该长什么样,我希望不是汽车、手机那种标准化产品,而是园林那样丰富又个性化的存在。当个体得到真正的尊重、当个性得到充分的表达,每个人都可以是一座园林的。
▼平面图
▼剖面
项目名称:茧宅:刘女士家
项目类型:室内
设计方:金秋野建筑工作室
项目设计:2023年12月-2024年3月
完成年份:2025年
设计团队:金秋野、刘力源、赵琦、许曦幻
项目地址:北京朝阳
建筑面积:159.7㎡
使用面积:116.6㎡
摄影版权:金秋野
合作方:基础施工:雷金杰团队 钢制品:李良勇团队 木作:张圣朝团队 植物:自丛OWNWOODS
客户:刘女士
设计美学与现代功能完美结合的典范。通过定制化设计、精挑细选的家具与软装陈设,打造成一处永恒的美学空间。设计美学与现代功能完美结合的典范。通过定制化设计、精挑细选的家具与软装陈设,打造成一处永恒的美学空间。空间氛围营造很棒,功能与美学很好的兼顾到了
设计美学与现代功能完美结合的典范。通过定制化设计、精挑细选的家具与软装陈设,打造成一处永恒的美学空间。设计美学与现代功能完美结合的典范。通过定制化设计、精挑细选的家具与软装陈设,打造成一处永恒的美学空间。空间氛围营造很棒,功能与美学很好的兼顾到了
勇气可嘉
客服
消息
收藏
下载
最近












































