查看完整案例

收藏

下载
工作室的设计源于对一间闲置厂房艺术家工作室的重新想象。当我们初次踏入场地时,室内显得闭塞且昏暗:一个带有夹层的通高空间,自然光仅能从朝东低矮的暗色的门窗透入室内。因此,创造新的开口并引入自然光便成了改造的重点之一。幸运的是,立面上原有的两处设备换气口的构造梁为此提供了结构基础,我们便顺势将其扩展成一对更大的窗洞以引入自然光和通风,并由此出发展开了项目的设计构思。
▼主办公空间
在不改变既有的夹层钢结构框架前提下,我们用一道弧形天花吊顶同时回应空间的多个需求:它平滑地过渡并连接了上下两层的空间,定义吊顶弧线段的圆形在夹层会议室的中心轴处达到顶点,使会议室的空间呈现出轴对称的稳定构图,并且让吊顶上部空腔得以容纳空调内机的同时使夹层获得最大的净高。透过高窗,弧形吊顶成为散射光的手段,柔和的自然光缓缓滑过整片弧面并充满室内空间。从首层望去,这道弧线的终点被隐藏,仿佛空间仍将继续延伸。在弧顶与界定内外墙体的交汇处,一条连续的磨砂玻璃灯箱轻柔地承接着天花的弧线,以一层朦胧的光晕消解了重量,使这面墙在感官上显得几乎可被穿透。
▼面向窗外的办公区全览
两侧高窗射入的自然光雕刻出弧顶的体积,高窗开口与弧线的碰撞塑造出一对兼具雕塑感和功能性的窗洞,深嵌的切口也与下方门窗一并通过空间对位和光线关系界定了办公桌的布局。而在室外,两侧高窗则以极简的方形窗洞呈现在白墙之上。有趣的是,类似的内外对比可以引申出某些巴洛克建筑的先例——如都灵的圣玛利亚广场教堂——其外部立面上的窗洞平直规整,却在室内呈现为饱满发光的体量。
▼右侧天窗
▼左侧天窗
▼自然采光
弧顶之下,三个不同尺度的玻璃窗户构成了夹层的室内立面。其中最大的窗直接对应着夹层的会议室空间,如舞台般展示着内部活动;最小的磨砂玻璃窗则暗示着一种熟悉的尺寸,却又被置于一个不寻常的位置,在夜间像灯笼一般被点亮。而最后那扇长方形横窗似乎又暗示了一个隐匿房间的存在。只有登上夹层时,它背后所隐蔽的楼梯空间方才显现给访客。三扇大小形态各异的窗户在室内立面上展现出不同尺度和属性的空间,激发意识对于想象维度的间接感知,和身体对真实维度的直接体验的双重乐趣。
▼有趣的内部开窗
设计的结果和空间的呈现,起始于将现有自然光条件的限制作为一种线索。而与之对应的,我们也选择用光线重勾空间过往的痕迹。因此,我们将空间两侧红砖墙被涂白,以光线凸显其细腻肌理,连同原有结构框架一并被“循环利用”到新的空间中。
▼会议室
▼夹层模型绘图空间
砖的肌理作为一种场地内外的印迹,从墙面一直蔓延到庭院,延续着场地外行步道的印记。这方庭院微微抬高,被若干具有不同通透性的界面所围合:临街一侧是轻盈透光的阳光板,展示出一层清澈的浮影;在上方,光线被树冠过滤后撒在室内,形成另一种浮影般的清澈。
▼光与树影的交织
▼院落
▼夹层平面图
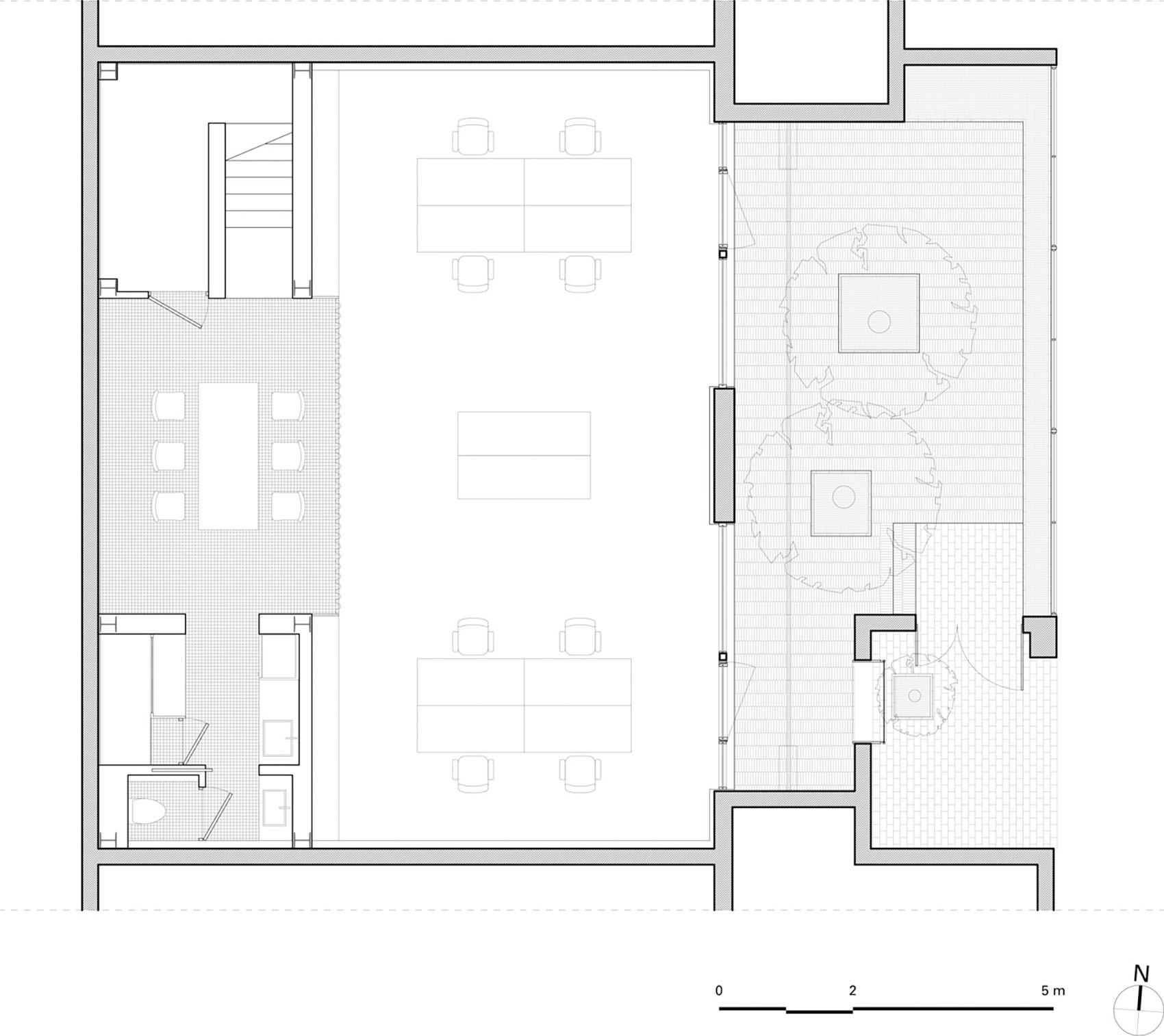
▼一层平面图
目名称:Loft工作室改造
项目类型:建筑
设计方:ARC Z
项目设计:2024年
完成年份:2025年
设计团队:孟子、刘杨洋、邱一诺、黄思遥、焦尹宣(实习)、于洪熙(实习)
项目地址:深圳市南山区华侨城创意文化园
建筑面积:145㎡
摄影版权:陈颢
合作方:庭院景观合作:O/I Object Imaginary
客户:
材料:玻璃、金属、钢、涂料、砖、木材
设计美学与现代功能完美结合的典范。通过定制化设计、精挑细选的家具与软装陈设,打造成一处永恒的美学空间。设计美学与现代功能完美结合的典范。通过定制化设计、精挑细选的家具与软装陈设,打造成一处永恒的美学空间。]空间氛围营造很棒,功能与美学很好的兼顾到了
客服
消息
收藏
下载
最近





















