查看完整案例


收藏

下载
在国家带头提倡“好房子”的语境下,今年成为住宅品质觉醒的元年,豪宅之间的竞争正在演变为一场产品力的比拼,产品力设计成为当下制胜市场的核心逻辑。
在这个阶段,设计更需要更清晰的标注,邱德光设计不断以前瞻性的设计观点回应现代生活方式的变化,用设计策略提升项目产品力。
不止于空间设计,而是全面思考,从空间骨骼到全龄呵护的生活方式,回应当代富裕阶层的生活需求,与开发商,建筑设计及客群共创新生活范式。
建筑共创 引光入室骨骼点题,光为索引
米开朗基罗曾说:“至美的雕塑,在我动手之前,就已经完整地存在于大理石块之中。它早已在那里,我需要做的,仅仅是凿去那些多余的、禁锢着它的石料。”
天津的生态资源与文化底蕴,如一幅被海河浸染的当代水墨,天生被寄予极致的人居想象,城投·东方玖玺占据天津城区最稀缺的水西板块,滨湖自然景观丰富。因此与室外光景的交互,成为项目产品力提升的第一层逻辑。
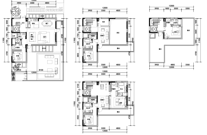
而在前期布局平面时,邱德光设计从过去的功能规划、材质规划,到现在的情绪规划,不断叠加式进阶,融合了新时代生活方式的变化和小众需求,使天津·城投·东方玖玺的空间感受得以具象化的呈现,让访客感受到设计在产品力的预埋。
原始建筑平面动线不明确,采光不充足,不合理的通道造成了空间的浪费,且各层布局及功能没有达到豪宅应有的体面配置,因此,我们从引光入室、自由动线以及开窗借景三个策略进行平面优化,在与城投的设计、营销团队多次研究调整后,形成最终的平面逻辑。
平面的最优方案,给雅奢生活带来了更丰富的想象,演绎出三台同堂的家庭享乐空间。
从水西公园途经小院踏入玄关,即进入了一个内外兼顾的全龄生活场域。
得益于开敞通透的独立建筑条件,空间序列有机会围绕滨湖生活淋漓铺陈。依据全家客群的精准定位,邱德光设计在此重新建立了生活关系秩序,开放的格局给全家共享的场域带来更完整的场景故事。
动线设计源于着对富裕阶层生活方式的洞察:楼梯与电梯的位置优越且采光良好,生活动线与家政动线双重设计,既满足归家仪式感,又适配日常所需。
这些 “看不见的设计”,是豪宅真正的底气 —— 就像人的骨骼若挺拔舒展,后续的 “妆容” 便有了根基。
景观面设置通高玻璃幕墙带来最佳采光,且优化了采光天井位置,向室内引入更多的光线,多重的采光带来更丰富的光线穿透,营造明亮通达的无界家庭空间。
实用功能区与生活空间自然衔接,巧妙设置吧台,成为早餐时或品酒时可自由享用的休闲空间,也方便了孩童快速享用归家小食。吧台上方区域可展示主人美好的餐具收藏品味。
随处可见的曲线与柔和边缘,使各个空间在视觉上自然连贯,空间过渡更加流畅。
这不仅是美学选择,更是全龄滨湖生活的完美映现 —— 天花的流动曲线消解了结构的生硬,让空间在流动中风生水起,用“不被直线切割” 的柔和感,唤醒着观览者内心的愉悦。
但曲线的代价是更高的工艺成本与审美门槛,它要求每一处弧度都精准呼应结构,既不能为曲而曲,也不能失之轻飘。石材的不同拼贴也增加了细节层次,在统一中制造故事感。
从天光的引入到每一处转角,都经过精准设计,既保证了空间的通透感,又不干扰功能。
地下空间的观览感受做了引导性设计,消解了人们对地下空间的偏见,每一景都在无声地与人互动,为观览者提供沙龙、宴会、会友、品酒、休闲的可能性。
会客厅设计了挑高空间,强化了仪式感,也建立了访客的视觉对空间的感知。
定制的壁炉成为空间中的视觉焦点,为居者的家人、朋友提供一处可以围炉共话的沙龙场所,公区木地板的铺设序列,则赋予了场域更温润的氛围,形成跳脱与秩序并存的装饰效果。
会客厅、宴会厅、影音室、卡座区、吧台区、多元功能区之间既相互渗透又彼此独立,动静两宜。丰富多彩的综合生活、社交场景均由主人所定义。
宴会厅以现代宴会功能需求为出发点,注重实用性与宾主双方的体验,采用奢石与皮革的材质,柔和了空间的尺度,营造出舒适、亲近的氛围。
定制的灯具即成为空间的视觉焦点,也承载着文化叙事,处处彰显居者的品味,曲线与展陈的设计,增强了空间的连贯性和文化氛围。
主卧采用套房设计,以流畅的洄游动线串联了套房的各个功能空间,当人走进时,便能长呼一口气,进入放松状态。感性与理性在此交融转乘,呈现出精英人群隐形的生活标准。
主卫的平和氛围,赋予功能更具质感的表达,色彩、块面之间的关系,让不同的生活场景之间可以更流畅地切换。
次卧空间解码其他家庭成员的具象生活,以温润的色调,妥帖的照料着每位家庭成员的生活需求。
三层定位青年的24小时生活,整层开放式的空间设计消弥了各区域功能的边界,构建出一个独立青年的私属空间。
当下的豪宅趋势,正从 “炫耀性消费” 转向 “内在舒适度”。当代别墅的设计探索,在于证明:真正的高端,是全方位的设计考量。
邱德光设计以梦幻东方为意向执笔,从天津城投东方玖玺的客群定位为起点,结合项目基因,在设计中广泛应用流动的设计语言,以东方美学营造居室精神。
水岸别墅的独特性,更在于 “自然与城市的共生”。作为天津罕见的临水项目,我们让空间成为 “天人合一的自然居所”:
居室的景观、首层的庭院、地下的天光,都在强化 “人在自然中” 的沉浸感。商业价值永远服务于人的需求:“用洞察与设计赋予项目极致的产品力。这或许是未来豪宅的核心竞争力 —— 当物质不再稀缺,能让人 “诗意栖居” 的空间,才是终极产品力。
项目名称: 天津·城投东方玖玺
甲方单位: 天津市城筑房地产开发有限公司
主创人员: 邱德光 袁欣
硬装设计:刘家麟 简睿 叶辉 史航 徐慧龙 李崇泰
软装设计: 武子浩 姚晴 何天瑶 周文静
项目管理: 张梦晨
艺术品设计: T.K HOME 德光居
空间摄影师:梵影空间-罗宁
撰文及排版: Leah Wang
空间性质: 滨水别墅样板间
坐落位置: 天津市
空间面积:377㎡
客服
消息
收藏
下载
最近


































