查看完整案例

收藏

下载
项目名称:烟台八角湾游客服务中心
位置:山东
设计单位:大椽设计
图片数量:42张
面朝大海,背靠会展中心,在两个巨型尺度的面前,任何形式化的表现都不是最合适的选择。我们将基地的正负零标高处理成一道“地平线”广场,承载着整个会展中心人流和市民休闲活动,让海极致舒展开来,直至无限。▼一道“地平线”,A Horizon© RudyKu
由上海大椽建筑设计事务所设计的烟台八角湾游客服务中心于2025年8月落成,同月20日正式对外开放。作为会展公园内的多功能文化建筑,项目为开发区提供关键的离岸配套服务:咖啡、活体昆虫博物馆、临展、市集、公共卫生间等。构筑城市与海洋的公共接口,并服务于所有市民。
▼建设现场,Construction site© 大椽设计
▼巨构下的服务中心,The service center under the huge structure© RudyKu
▼拾阶而上,Ascending the steps© RudyKu
▼正在运营的咖啡厅,MORE COFFEE© RudyKu
▼-1F 平台,-1F platform© RudyKu
折叠自然
交错的平台,是对场地的抽象化回应
游客服务中心位于会展公园的主要入口处,以其为中心,联同社区活动、皮划艇俱乐部、码头服务,共同构成会展公园的整体化设计。基地内的场地高差造成城海之间的空间断层,为延续会展公园原有的线性肌理,游客服务中心被处理成一个嵌入地表的单层体量,横向延展。升起的飘板提升昭示性,下沉区域设计多种灰空间,结合错动折叠的平台语言,形成城市向大海自然延伸的城市阳台。
▼会展公园整体性设计,Overall design of the exhibition park© 大椽设计+AECOM
▼清晨的服务中心,Morning Service Center© AUROR 视觉
从标识性的空间,到山、海、城市、空间的语言探讨,再到平实的几何建造,面对烟台与这片海,游客服务中心在用丰富的空间语言与极低调的空间状态,回应着本地市民的日常需求。▼会展公园现状(左)/场地高差形成的断层(右),Current site conditions© 大椽设计
▼市民活动日常,Daily activities of Citizens© RudyKu
服务中心的大部分功能“藏”在地下,屋顶与地面相连并覆上绿植,倾斜屋面、下沉庭院与多层标高构架出一套连贯的“折叠”空间系统,也带来极强适应性。抬升的平台成为落日观赏点与集会场所,其下方则形成遮阳休憩长廊。▼过程草图及空间模型,Process sketches and spatial models© 大椽设计
▼“折叠”空间系统,”Folded” spatial system© RudyKu
▼望向大海的通廊,A corridor facing the sea© AUROR 视觉
▼外挑看海平台,Overhanging sea-viewing platform© RudyKu
▼平台下的休憩空间,Rest area beneath the platform© AUROR 视觉
▼入口标识,Entrance signage© AUROR 视觉
▼展览/市集广场,Exhibition/fair square© AUROR 视觉
咨询中心位于平台的核心区,提供售票、咨询一站式服务,结合外广场是空间的焦点与人群集散地。平台外可融合市集、表演、休闲、观景等多种日常活动。
▼三重空间界面,Triple spatial interfaces© 大椽设计
▼滨海走廊,Coastal corridor© RudyKu
▼陆海之间的温柔过渡,Gentle transition between the sea© RudyKu
▼零标高处,At zero elevation© AUROR 视觉
空间强调的几何纯粹性更是赋予建筑足够的力度,让它具有明晰可辨的视觉特征,彰显其作为城市“主要元素”应有的公共性。▼公共界面,Public interface© RudyKu
▼向大海的延展,Extension towards the sea© AUROR 视觉
环境韧性
连续性的尺度层次,界限模糊、允许市民自由穿行
游客服务中心主张建立一种无层级差异的功能对应分区,各片区可以在未来根据需要自由调整。沿长轴展开的线性体量,最宽处约62米,最窄不足24米。设计中预留的大片开放式广场、草坪,是专门为人流高峰准备的“弹性空间”,满足其“活动模式”与“日常模式”的平滑切换。
▼活动模式弹性空间分析,Analysis of flexible spaces for activity patterns© 大椽设计
▼11 月 2 日任贤齐演唱会时期,服务中心的承压 ,Pressure on the service center© RudyKu
为优化平台开口形式对行为的影响,设计对比了全覆土、大峡谷及局部下沉庭院等策略。局部下沉庭院在扩大竖向交通核心的同时,保证功能空间享有中庭与海景的双重景观。游客中心则强化竖向连接与视野通达。▼平台不同开口方案比对,Comparison of different opening schemes for the platform© 大椽设计
▼入口处与会展中心的联系,The entrance and the exhibition center© RudyKu
▼快速引导和分散人流的路径系统,Path system© AUROR 视觉
▼提供采光的三角形洞口,Triangular skylights for natural lighting© AUROR 视觉
▼自由通达的交通,Free and accessible traffic© RudyKu
海岸诗意
镀锌板与混凝土并置的自然逻辑
建筑统一采用清水混凝土结构,但通过不同材质的细腻搭配来区分空间界面:镀锌板天花板、清水混凝土墙面与石材地面。这些材质彼此协调,共同营造出连贯质朴的空间氛围。
▼波光粼粼的镀锌板,Glistening galvanized steel plates© AUROR 视觉
在直面海洋的环境中,材料必须耐用,其质感也应与环境呼应。因此我们选择了镀锌板:它的金属光泽与冷灰色调,能与粗粝的混凝土形成鲜明又协调的对比。混凝土沉稳地锚固大地,镀锌板则轻巧地反射着天光与海影。这种材质的对比,既清晰地展现了构造逻辑,又暗喻了海岸地貌中礁石与水流并置的自然逻辑。
▼台阶次入口,Secondary entrance via steps© AUROR 视觉
镀锌板表面特意选用大花纹肌理,使其在不同时段的光线下呈现出波光粼粼的视觉效果,犹如将海面的波纹延伸至室内顶棚。随着一日之中光线的流转,天花板仿佛成为海洋的延续,令极简的几何现代性空间突然拥有了温度与叙事感。▼ 天花板成了海洋的延续,Ceiling as an extension of the ocean© RudyKu
空间重构
自然、文化与日常
项目于2023年6月启动,室内设计围绕三个核心展开:海边的自然性、城市的文化性与生活的日常性。为精准服务日常市民、会展游客与水上运动爱好者这三类客群,我们梳理出如厕、就餐、休憩、办公、展示六大核心功能,并重点强化“驿站”的公共服务与“展陈”板块。
▼功能调整,Functional adjustments© 大椽设计
▼室内望海,Indoor sea view© AUROR 视觉
通过更衣区与办公区的位置置换,优化内部流线。释放出的原办公区域被转为商业用途,有效提升了空间活力。同时,将行政管理功能整合进服务大厅,进一步集约了空间。
▼空间优化,Spatial optimization© 大椽设计
▼虫鸣探秘活体自然博物馆,Insect Chorus: Living Nature Museum© RudyKu
游客服务大厅以清水混凝土与水磨石为主材,中央区域通过艺术装置与色彩点缀打破单调,服务台结合电子屏与展陈功能,形成动态文化窗口。艺术餐厅以渐变色彩与曲面吊顶模拟海浪形态,鱼群灯具,小舞台与灯光共塑沉浸式用餐体验。
▼咨询中心/艺术餐厅室内效果图,Interior renderings© 大椽设计
▼咖啡厅,MORE COFFEE© 大椽设计
后记
滨海沿线日常活跃着骑行、运动、休闲的市民,却长期缺乏与之匹配的休憩与服务节点。“一道地平线”通过环境、空间的多重维度,创造人与大海接触的机会,塑造共享、开放、活跃的城市阳台,也是公共建筑对市民社会最深刻的回应。
▼傍晚海边活动的市民,
Citizens engaging in evening activities by the seaside© RudyKu
▼总图,Master plan© 大椽设计
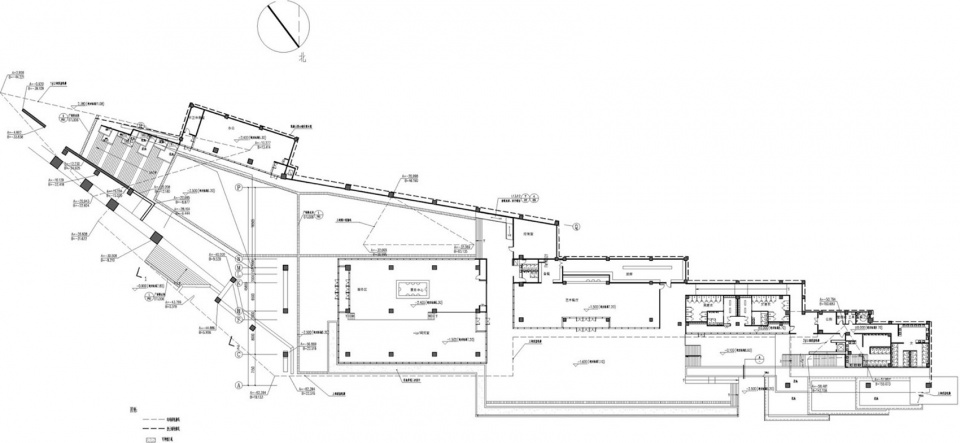
▼组合平面,Combined floor plan© 大椽设计
▼组合立面图,Combined elevation© 大椽设计
▼节点细部,Detailed nodes© 大椽设计
项目名称:烟台八角湾游客服务中心
项目类型:新建建筑
项目地点:山东烟台经济开发区(烟台黄渤海新区海滨路与贵阳大街交界处)
设计单位:上海大椽建筑设计事务所
主创建筑师:洪东涛
设计团队完整名单:洪东涛、唐坦、吴嘉玮、应涛、红华、喻华杰、王泰昊
业主:烟台黄渤海新区建设交通局
造价:4100万元(总);0.83万元/㎡(单位面积造价)
设计时间:2021年06月 - 2025年05月
建设时间:2025年9月竣工
建筑面积:4911.23㎡(计容建筑面积2224.50㎡)
用地面积:17500㎡
规划+景观:AECOM
客服
消息
收藏
下载
最近













































