查看完整案例

收藏

下载
单行线建筑空间
一个人的时候,可以到处漫步,坐在这里坐在那里。几个人的时候有些这边在喝茶聊天,有些那边在热闹玩桌游,空间随着人而改变。
Studio MOR
项目的业主,虽然生活在一个镇子上,但是和其他人生活还是非常不同。他经营着一家工厂,从产品到展览室,其实都有室内设计师、平面设计师的参与。所以这也不是他第一次雇设计师,和设计师接触久了,他对现代主义是很钟爱的,对表现出来的简洁和明快是觉得亲切的。业主喜欢发烧碟,他的朋友们都有自己的影音室来听碟,我们一方面惊讶于在这个小地方还有一个这样小众的圈子,另一方面也惊讶于他们愿意花几年时间,去不停打磨,去打造一个自己的空间。
▲项目鸟瞰 © 单行线建筑空间
▲建筑与邻里关系 © 单行线建筑空间
▲建筑立面 © 单行线建筑空间
夏叶村在我们镇子的上游,就在山脚下,和镇中心不一样,这边更有安静的氛围,气候也更加的舒服。村里的最出名的就是夏叶庙,庙不大,但逢到节日镇上人都会过来。场地就在庙的侧后方,大约为30米见方的正方形,有三栋房子,包括了一大家子的住宅和一个家庭工厂的作坊棚子。原来房子和邻里的关系很拥挤,但根据指标重建后,房子会小不少,院子会大很多,会变得比较空旷和舒适。
▲总平面图 © STUDIO MAR
▲西立面 © 单行线建筑空间
▲建筑立面细节 © 单行线建筑空间
▲弧形楼板 © 单行线建筑空间
由于庭院很大,处理它变成了我们的首要任务。传统的院子往往被围墙围起来,有很强的安全感,可以晒太阳乘阴凉,是居民最重要的生活场所。同时院子又提供了很舒服的开放性,坐在院内,观的景其实是墙外的村落、山林和天空。所以我们按照村里常见的院落的大小,将整个庭院一分为四,提出了“四季之庭”的概念,用花园、草坪、田地、枯山水四种不同的庭院来表达四季。同时四个不同的院子都与房子相接,玄关接入口的花园,客厅接休息的草坪,后勤空间接种地的田园,餐厅接观景的枯山水,让人能从不同的生活片段里步出到不同的自然中。同时我们也将墙外的景观切成了四段,分别和四个院子搭配,花园望出去的夏叶庙,草坪望出去的邻里,田园望出去的竹林,枯山水望出去的山林,使得原本杂乱的周遭得到有效的控制,并容纳进来。
▲轴测图 © STUDIO MAR
▲从庭院看建筑 © 单行线建筑空间
▲春之庭院 © 单行线建筑空间
▲夏之庭院 © 单行线建筑空间
▲冬之庭院 © 单行线建筑空间
▲冬之庭院
© 单行线建筑空间
由于一层的院墙已有很多横向展开的墙体,为了将主体建筑和整个场地仍保持融合,我们将二三层也横向切开,让整体的尺度保持相近。二楼的立面有四道封闭墙体构成,由于平面上都不处于正交体系内,我们将其变成高度上也是变化的斜墙,从村中走过,房子会处在一种不停变化的动态之中。
▲客厅 © 单行线建筑空间
▲客厅看庭院 © 单行线建筑空间
▲客厅看玄关 © 单行线建筑空间
▲客厅看餐厅厨房 © 单行线建筑空间
二楼斜墙较矮的那一角,三楼的楼板正好露出来,我们将楼板做了一个曲线的形状,让其和二楼完全脱开,有种漂浮感。而较高的那一角,变成了三层露台的栏杆。整个三楼加上了比较缓的单坡屋顶,呼应立面上的斜墙元素。特别在北立面上保持横向的完整性,而在南立面则断成两个小房子,尺度缩小,更有一种“家”的原型感。西侧做了一个很深的挑檐,一方面应对西晒,另一方面提供了舒适的檐下空间,在大露台上可以眺望远山。
▲餐厅 © 单行线建筑空间
▲厨房 © 单行线建筑空间
一层的室内,为了和庭院结合,四道分割院落的墙体会延伸进室内。我们将其摆成风车型让其互相错动,使得室内的空间在分割的基础上也有适当的联通和互望,甚至一直了联通进庭院,让整个的一层空间处在一种可以漫步的状态。从餐厅走到客厅,还是从客厅推开门进入庭院,接着绕着院墙,穿过几个庭院,再回到室内,都不会有特别的分界感。我们希望均匀的把生活感铺满了整个场地。
▲二楼小客厅 © 单行线建筑空间
▲二楼午睡室看茶室 © 单行线建筑空间
▲二楼卫生间 © 单行线建筑空间
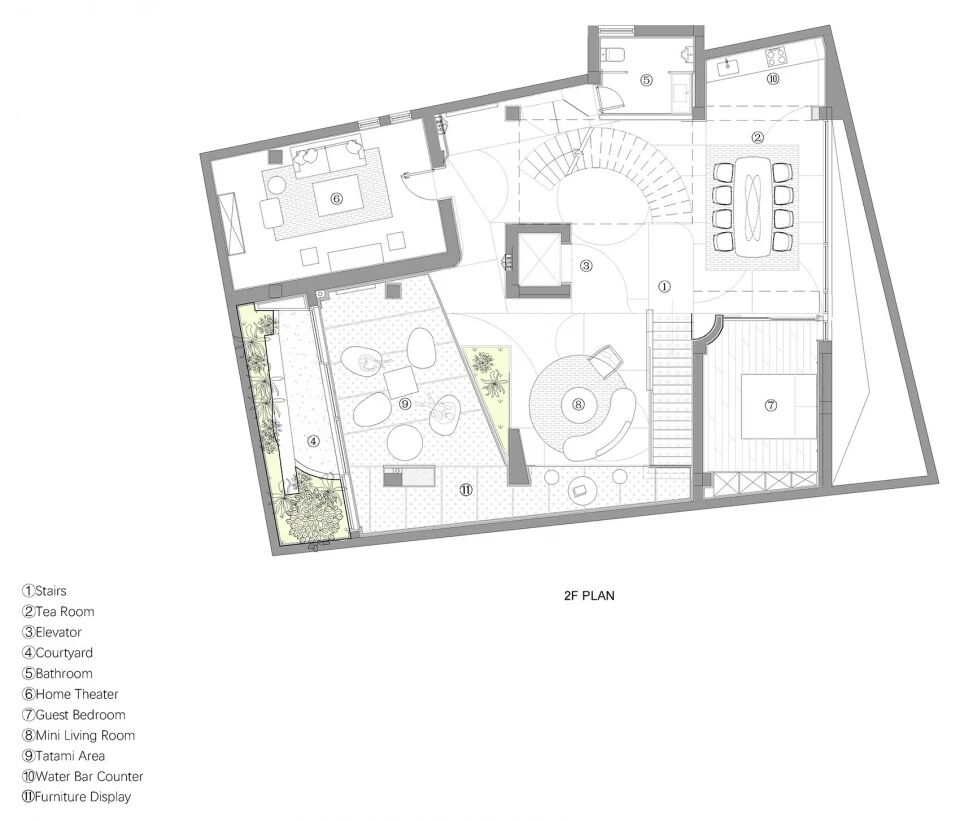
业主心心念念的影音室就放在二楼。不正交的墙体、封闭的氛围、褶皱的界面,是影音室的特点。我们将其放大,推广到了整个二层,用一圈封闭的墙体将其包围,几乎没有窗户。不论内部还是外部的墙体都无视了柱网的正交体系,几乎没有两道墙是平行的。这造就了二层自由的布局,同样的,在功能上,除了影音室,我们的功能也是相对松散的,有喝茶的地方、午睡的地方、看电视的地方、烤火的地方、唱歌的地方、休息的地方,有所定义但又比较模糊。二层就像是是“第五个庭院”,虽然在室内,但整个空间是联通而连续的。一个人的时候,可以到处漫步,坐在这里坐在那里。几个人的时候有些这边在喝茶聊天,有些那边在热闹玩桌游,空间随着人而改变。
▲二楼楼梯空间 © 单行线建筑空间
▲二楼茶室 © 单行线建筑空间
▲二楼茶室景色
© 单行线建筑空间
为了实现这个效果,我们将这些空间进行变形去模拟一种“庭院”的氛围,就像Paul Klee的画,通过秩序的几何拼贴,去表现一种有机和动态的感受。中心水磨石的地面就像是水池,我们用圆弧和直线的铜条,模拟水纹。其他空间,放置在这水池的周围,像亭台楼阁:午睡室有着平台和障子门,像临水的轩;卫生间单独抬高,需要踩着错落的石阶隐秘进入;上三楼的旋转楼梯,像半座石拱桥,配合圆形的镜面和吊灯组,有片段化的倒映;地毯上的茶室反而像一艘画舫,向外望出去有一层窗和一层墙,我们特意做了距离的变化,可以看到窗洞里的不变的屋檐画面和墙面上变化的光影;榻榻米区域,我们做了一个不规则的形状,像驳岸一样把水池的形状框定出来,踏着玻璃踏步上去,在火炉旁坐定,这个榻榻米又像在石林上的亭子,左侧是模拟的园林,右侧推开玻璃门,又是真实的植物景观,有风吹进来。我们又做了一个玻璃天井,一直从屋顶贯通而下,晴天有阳光落进来,雨天有雨水下进来,落在植物上,最自然的反而变成了一种最人工的精致景观。
▲Rocks cold-warm 1929 © Paul Klee
这时,围绕二楼的这组墙,变成了“庭院”的围墙,为了配合移步换景,我们将其变成了高低不齐的斜墙。斜度和楼板之间有个不均匀的渐变的狭缝,可以透进不同的光照。同时从这个长条的窗带望出去,框定的正好是周围的屋顶和远山的线条。
▲二楼条窗及天井 © 单行线建筑空间
▲二楼走廊 © 单行线建筑空间
▲二楼玻璃天井 © 单行线建筑空间
▲二楼榻榻米 © 单行线建筑空间
▲二层楼梯转角 © 单行线建筑空间
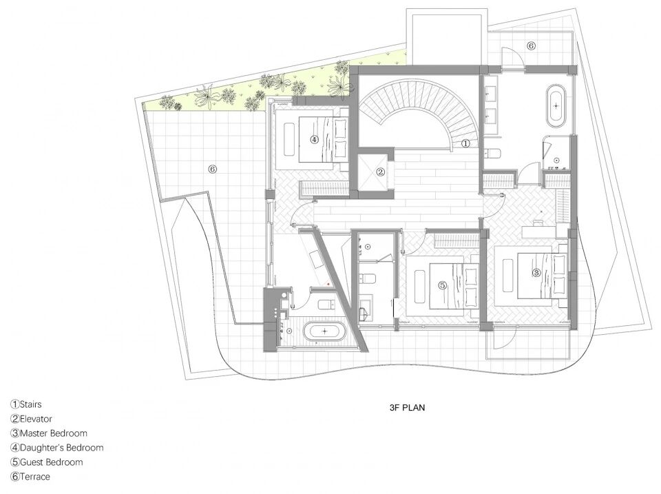
由于功能上楼层越往上,越偏向居住,所以对于室内的材料,越往上木饰面越多,石材越少,色调也是越往上越浅,到了三楼,基本是原木色的居家感。卧室并不大,更加凸显温馨的氛围,同时也想让人更加关注窗外。因为到了三层,已经越过了邻居的屋顶,不论是透过窗户还是步出到阳台,都能看到优美的风景。
▲三楼露台及景观 © 单行线建筑空间
▲三楼主卧 © 单行线建筑空间
▲三楼楼梯间
© 单行线建筑空间
在材料的选择中为了去融入村中的氛围,我们选择了三种色调的石材,灰色、暖白色、绿色,对应的是村中常见的屋顶、土墙、植物。在处理上,主要的灰色细点麻石,我们开了波浪槽口,让它在日光中是可以变化的,暖白色的莱姆石则做了自然喷砂面,让它在晴雨中是可以变化的,绿色大理石则显得稳定做了柔光处理,显得稳定。院墙我们也采用了两种不同材料。沿路的院墙是灰色线条纤维板,稳定不会变色。而内侧的院墙则是灰色水洗石,配合着植物景观,会随着时间变斑驳。
▲三楼衣帽间 © 单行线建筑空间
▲三楼主卧走廊 © 单行线建筑空间
▲三楼卫生间 © 单行线建筑空间
整体来说,这个房子在乡村是个“新”建筑,但过上舒适的现代生活契合了村民们最朴素的愿望,只是村民们在建造自己的居所的时候会不自觉隅于乡村的惯性,建造出方方正正和双坡瓦顶的新农村住宅。我们的供应商和施工方都是本地人,但是在建造过程中,提供的材料和技术,却是非常专业的。例如我们在布置庭院的叠石时,从山东收了荒料,清洗运送后,使用无人机拍摄,制作出精确的三维模型,设计完毕后,在现场放线校对,最后用吊机吊装调整。一层的深灰色酸洗大理石,也是在现场进行了反复推敲和比较才敲定,让其有较明显的凹凸,但是又很温润,踩上去很舒服。
▲夜览 © 单行线建筑空间
正是因为有品质的保证,最终实现的效果是符合甚至超出业主的想象的。最初的目标是其在乡村的度假之地,现在他的妻女也非常喜欢,周末在这里相聚变成了固定节日,因为总能找到一个舒服的角落,安静的呆一阵。同时,他们也经常在此举行朋友的聚会和公司的团建,热闹起来的房子又能化身精致的社交场所,这些都远远超出了他们原本对家的图景。
项目图纸
▲首层平面图 © STUDIO MAR
▲二层平面图 © STUDIO MAR
▲三层平面图
© STUDIO MAR
▲剖面图 © STUDIO MAR
▲二层展开图 © STUDIO MAR
项目名称:夏叶张宅
功能:住宅
地理位置:浙江省象山县夏叶村
建筑/室内/景观设计:STUDIO MOR
主持建筑师:李乐 李雪冰 倪聪儿 章晨晨
驻场建筑师:李雪冰
业主:宁波卓艺家纺有限公司
施工方: 张全
结构类型:混凝土框架结构
建筑面积:474平方米
占地面积:176平方米
设计周期:2020.12-2023.8
建设周期:2021.07-2025.01
摄影:单行线建筑空间摄影、STUDIO MOR
客服
消息
收藏
下载
最近






















































