查看完整案例

收藏

下载
项目位于北京昌平区雪山村,地处城市与村庄交接之处,驾车至城市二环仅需约30分钟,在八街九陌的“大北京”里已属近便。房主是我的校友,家中这块京郊宅基地闲置多年,2022年他萌生了将其利用起来的想法,而如何使用并不确定。记得在我们第一次沟通时,他说有三种可能性,分别是:(1)作为自住的第二居所,父母有可能偶尔会住;(2)三年后作为他的公司办公室;(3)没考虑好时则出租。因此,我们的设计便开始于分别梳理这三种不同的功能需求与空间的配合关系。
随着设计的进行,我们发现它越来越像一个“组合大柜”,承载着我们和房主共同完成的一次关于城市与乡村、工作与生活是否可以兼容的建设实验。
The project is situated in Xueshan Village, Changping District, Beijing, at the junction between urban and rural areas. It only takes about 30 minutes to drive to the city’s Second Ring Road from here. This location is considered conveniently accessible in Beijing, a megacity. The homeowner is a fellow alumni of mine. His building plot in the suburban area of Beijing had been left unused for many years. In 2022, he conceived the idea of utilizing it, though the specific manner of how to do so remained uncertain. I remember during our first discussion, he mentioned three possibilities: (1) using it as a second residence for himself, with the possibility of his parents occasionally staying there; (2) converting it into his company’s office space after three years; or (3) renting it out if no concrete plans were finalized. Therefore, our design process began by systematically analyzing the corresponding relationships between these three different functional requirements and the spatial layout.
As the design progressed, we found it increasingly reminiscent of a piece of Chinese furniture from the 1980s: the handcrafted combination cabinet. This building is a joint experiment between us and the homeowner. It explores the compatibility of urban and rural life, as well as the integration of work and living.
▼雪山村住宅,A House in Xueshan Village© 朱雨蒙
实验一:复合功能
Experiment 1: Integrating Multiple Functions in One Building
如何将看起来各不相关的三种功能复合进同一空间,让主人回转于居住、办公、展示与商业等使用状态之间,并达到自洽,是我们在这里展开的第一个实验,与建筑学有关。
The building’s first experiment is architectural: how to integrate three seemingly unrelated functions into the same architectural space, allowing the owner to seamlessly transition between residential, office, exhibition, and commercial uses.
1.居住需求
1. Residential
项目位于村庄东北角,与另外几户住宅共处于同一地块,地块毗邻村庄东侧的城市道路。场地基地边界方正,北侧和西侧面向村庄内部道路,场地的东与南则紧挨邻居院墙。房主的空间需求类似传统的三室两厅,不同的是希望每一个房间都能直接进出院落,方便照料花草,但又保持与邻近院落相隔的私密性。
The project is situated at the northeastern corner of the village, sharing the same plot with several other residential buildings. The plot adjoins the urban road on the eastern side of the village. With a rectangular boundary, the site faces internal village roads to the north and west, while its eastern and southern sides are immediately adjacent to the neighboring courtyard walls. The homeowner’s spatial requirements are similar to a traditional three - bedroom, two - living - room layout, with some difference: he hopes that every room will have direct access to the courtyard, making it convenient for gardening while maintaining privacy from the neighboring yards.
▼项目基地与邻里空间关系,The relationship between the project site and the neighborhood space© 朱雨蒙
首先,我们将乡村住宅“房包院”的常规空间关系进行反转,集中建筑体量,令不同尺度的院落环绕于建筑四周,也为相邻的室内空间赋予更为模糊多变的可能性。与此同时,为了保证居住私密性,我们把建筑形体做成退台,为二层的卧室提供了露台空间,并将围墙提高到1.6米,避免与邻居视线互相干扰。居住功能的人行出入口被设定于场地西侧,紧邻村内道路,与南侧亲戚家大门临近,方便串门。
First, we reversed the conventional spatial relationship of rural housing, in which “the building surrounds the courtyard.” Instead, we concentrated the structure in the center of the site, allowing courtyards of varying scales to surround the building on all sides. This arrangement also enables more adaptable use of the interior spaces. Meanwhile, to ensure residential privacy, we designed the building in a stepped form, providing terraces for the second-floor bedrooms, and raised the perimeter walls to 1.6 meters to avoid visual interference with neighbors. The pedestrian entrance for residential functions is located on the west side of the site, adjacent to the village road and close to the main gate of the relative’s home to the south, facilitating easy visits.
▼院落环绕建筑,The building surrounds the courtyard© 朱雨蒙
在日常工作之外,房主热衷于车辆机械,需要至少三个车位的车库,这一需求也几乎确定了临主路的一侧必须留给车库功能。于是,三车位车库以平移门的形式面向北侧村路展开,大门可整面打开,既可满足办公等对外空间的出入功能,又以开放的姿态打破乡村街面的封闭惯常。
Outside of his professional life, homeowner has an interest in automotive mechanics which created a requirement for a garage with at least three parking spaces. This requirement essentially predetermined that the side of the plot facing the main road had to be allocated for the garage function. Consequently, the three-car garage, featuring a sliding door, opens towards the northern village road. The sliding door can be fully opened, not only providing access for outward-facing functions like the office but also opening up the enclosed rural streetscape with a welcoming gesture.
▼向北侧村路展开的车库,The garage extends towards the village road on the north side© 朱雨蒙
▼三车位车库,Garage with at least three parking spaces© 朱雨蒙
▼北侧车库平移门,Sliding door opens towards the northern village road © 朱雨蒙
同时,街面空间也与内部庭院在两个方向上贯通连接,结合院墙的开放与封闭,为院落提供了内外属性转换的可能。庭院、露台与屋顶平台最大程度地将建筑与自然环境融合,每个房间均可直接通往室外,因使用功能不同造成的空间感受差异,在共同追求景观渗透性的过程中得以消减。
Simultaneously, the street-facing space is interconnected with the interior courtyard in two directions. Combined with the strategic opening and closing of courtyard walls, the spatial attributes of the courtyard can be modulated between enclosed and open. Through courtyards, terraces, and rooftop platforms, the building is maximally integrated with the natural environment. Every room has direct access to the outdoors, and the spatial perception differences caused by varying functional uses are dissolved in the pursuit of landscape permeability.
▼内部庭院与街面空间在两个方向上的贯通,The street-facing space is interconnected with the interior courtyard in two directions© 朱雨蒙
▼庭院、露台与屋顶平台,Courtyards, terraces, and rooftop platforms© 朱雨蒙
▼一层庭院和二层露台,First floor courtyard and second terrace© 朱雨蒙
再者,房主及其父亲则都喜好手作加工,需要一间手工坊,我们将手工坊与车库相结合,兼作3D打印加工空间,用于木作加工和雨水节能配件的设计与制作。如此一来,在缩短操作流线的同时,又令其独立于房屋主体之外,确保操作过程中产生的灰尘与噪音仅与户外交换。
In addition, both the homeowner and his father enjoy manual craftsmanship, so a workshop was also required. We integrated the workshop with the garage, doubling as a 3D printing space for woodworking and the design and production of rainwater energy-saving components. This approach not only shortens operational workflows but also keeps the workshop separate from the main living quarters, ensuring that dust and noise generated during operations do not contaminate the living areas and are only exchanged with the outdoors.
▼车库与手工坊结合,Integrated the workshop with the garage© 朱雨蒙
▼与车库结合的手工坊,Workshop integrated with the garage © 朱雨蒙
随着房子建成,这个手工坊几乎是最先投入使用的房间,房主做了非标的排水配件,房主父亲亲手做了实木门牌,甚至为房子设计了logo。
Upon the completion of the house, this workshop was among the first rooms to be put into use. Here, the homeowner produced custom drainage fittings, and his father handcrafted the solid wood nameplate, even designing a logo for the house.
2.办公需求
2.Work-Related
房主从事景观水系统相关设计及研发工作,之前的主要办公地点位于二环内中心城区,但由于同事天南海北分散各地远程办公,办公室的使用率并不高,因此,结合雪山村相对便捷的交通条件,他便有了将本项目作为第一办公室,承担日常办公事务的想法。虽然最开始只是一种设想,但设计却要顾全。
室内以流畅的大空间为主,方便根据需要自如地定义使用场景。
一层公共空间与庭院组合相伴,将空间的流动性从室外延伸至室内。灵活的大空间目前作为展示空间,也可扩展为办公空间或起居室。在二层东南角保留居住功能,其余开敞空间则为可容纳十几人的开放办公室。临街北侧设置办公独立出入口、庭院门厅、独立楼梯和卫生间,如此一来,保证跟居住功能互不干扰的同时,也留了一道门来转换办公和居住的分离或连通。
The homeowner is engaged in the design and development of landscape water systems. His primary office was previously located in the central urban area within the Second Ring Road. However, as his colleagues were spread across different regions working remotely, the office space was underutilized. Therefore, considering the relatively convenient transportation conditions of Xueshan Village, he conceived the idea of using this project as his primary office for handling daily work tasks. Although this was initially just a concept, the design needed to fully incorporate this possibility.
The interior is primarily designed as a fluid, open space to facilitate the flexible definition of usage scenarios based on functional needs.
The public space on the first floor is combined with the courtyard, allowing spatial fluidity to extend seamlessly from outdoors to indoors. The flexible, open space currently serves as an exhibition space but can also be adapted into office space or a living room. The southeast corner of the second floor retains residential functions, while the remaining open area functions as a workspace for over ten people. The north side, facing the street, is equipped with an independent office entrance, a courtyard foyer, a separate staircase, and a restroom. This configuration ensures no interference with the residential functions while maintaining the option to either separate or connect the office and living areas through a door.
▼一层公共空间与庭院,The public space on the first floor is combined with the courtyard© 朱雨蒙
▼二层开敞空间,The second floor open space© 朱雨蒙
▼独立楼梯,Separate staircase© 朱雨蒙
经过一年多的设计和建造,房主已经决定在城里仅保留一间办公室用于接待洽谈,其他办公皆迁至本项目。除办公外,同时兼顾一部分展示功能,用以展示科研设计成果,相应地,原来居住功能的起居室便转换为展厅。并且,房子本身也是一座展示雨水收集再处理技术成果的展品,地面和屋顶的花园更是其景观种植的实验地。
After over a year of design and construction, the homeowner has decided to retain only one office in the central urban area for client meetings and receptions, while relocating all other office functions to this building. In addition to its office function, the building also incorporates exhibition capabilities to showcase research and design achievements. Accordingly, the original residential living room has been transformed into a display area. Moreover, the house itself serves as an “exhibit,” showcasing its rainwater harvesting and recycling technology. The gardens on the ground and roof also function as experimental grounds for the homeowner’s landscape planting research.
▼使用中的建筑,Buildings in use© 雨人润科
3.经营需求
3.Income-Generating
原初房主出于投资建设回报和场地周边需求的测算分析,认为该项目在临街商业、办公及居住等方面具有长期租赁潜力。事实也是如此,在建筑刚刚完工时,房主曾临时放出招租广告试验,得到的反馈证明确有此类需求。而在设计过程中,房主对环境更加熟悉后,想法也逐渐发生了变化——从整栋长租转变为自主经营。因此设计的重心也随之发生变化,希望此建筑能够作为样板间,以点带面,为雪山村增加公共文化和商业空间,形成城乡结合部一种可复制的自主建设开发模式,试着把独立建设变为系统开发,为乡村带来更多价值的同时,也可获得长期利润。
与之相应的,建筑在材料构造和型体节能等方面也整合得更经济有效,减少了一些个性化的造型表达。在未来的村庄规划中,东侧市政路将拓宽,建筑东立面因此直接临街,故此扩大此处对外玻璃幕的面积,为之后开展临街经营提供条件。同时,在目前实际使用中,将原本首层卧室调整为社区图书室,面向邻里与街道开放,出入便利。
Initially, the homeowner conducted a feasibility analysis based on investment returns and surrounding area demands, concluding that the project held long-term leasing potential for various uses such as street-level commerce, office space, and residential purposes. This assessment proved accurate: when the building was first completed, the owner experimentally posted temporary rental listings, and the positive market response confirmed a genuine demand for these diverse options. During the design process, as the homeowner grew more familiar with the environment, his perspective gradually shifted—from leasing the entire property to others toward self-operation. As a result, the focus of the design evolved. We envision this building as a prototype for rural residences—one that adds public cultural and commercial spaces to the village and establishes a replicable template for self-developed construction at the urban-rural fringe. By using this project as a catalyst, we aim to transform standalone construction into systematic, large-scale development, thereby generating lasting value for the countryside and securing long-term profitability.
Correspondingly, the design also intentionally reduced personalized formal expressions, favoring solutions that are economical and effective in terms of materials, construction, and building form, among other considerations. According to future village planning, the municipal road on the east side of the village will be widened, which will make the building’s east elevation directly face the street. Therefore, the area of glazed openings on the east facade was increased to accommodate potential street-facing commercial activities. Meanwhile, in its current use, the original ground-floor bedroom has been repurposed into a community library, open to both neighbors and the street.
▼面向东侧开放的大面积窗口,A large window facing east© 朱雨蒙
▼社区图书室,Community library© 朱雨蒙
实验二:适用控制
Experiment 2: Controlling Energy-Saving Applicability
由于上述提到的未来经营设想,我们希望这是一栋姿态中性、场地适应性强、易于复制的建筑,并且低成本且低能耗。从最终专业能耗分析的评定结果来看,本建筑基本达到了被动节能的预期。
建筑外观低调型体实用,施工工法尽量可靠普适,试着减少些我们过往常用的审美惯性和个体叙事。希望能系统批判地对待这个设计,这对于我们也是一次新的尝试。
Based on the aforementioned operational vision, we aimed to create a building with a neutral architectural character, high contextual adaptability, ease of replication, and low demands for both cost and energy consumption. According to the final professional energy consumption assessment, the building has largely achieved the expectations for passive energy conservation.
The building features an understated appearance and a utilitarian form, employing construction methods that prioritize reliability and broad applicability. We made a conscious effort to move away from the aesthetic conventions and personal narratives that frequently characterized our past work. We aimed to design this project through the lens of systemic critical consideration. This represented a new foray for us.
▼低调的建筑外观使其隐匿于村落,The low-key architectural appearance makes it hidden in the village© 朱雨蒙
建筑采取了被动式节能方案。除基本的体型系数考量和墙地顶保温隔热作法的选择之外,也反复比较推敲了其他因素:例如室内空间门窗开闭形成的微环境变化,屋顶种植屋面的隔热性能,各个空间中外窗的形式、大小和方位等等。结合院墙高度位置的设置,最终实现夏季通过穿堂风对流促进自然通风,同时在冬季有效阻隔西北风对建筑和庭院的冷侵袭。
The building employs a passive energy-saving strategy. In addition to the fundamental considerations of the building’s form factor and the insulation of its walls, floor, and roof, we also conducted an in-depth evaluation of other factors: for instance, the micro-environmental shifts created by the opening and closing of doors and windows, the thermal insulation performance of the green roof, and the form, size, and orientation of external windows in various spaces. Furthermore, the strategy incorporates courtyard walls of varying heights. This configuration promotes cross-ventilation during summer while providing protection from cold northwesterly winds in winter.
▼门窗开闭形成的小环境,The micro-environmental shifts created by the opening and closing of doors and windows© 朱雨蒙
▼不同开窗形式与院墙高低差异,Different window opening forms and the height difference of the courtyard walls© 朱雨蒙
▼节能计算分析,Energy-saving calculation and analysis© 朱雨蒙
结合房主的雨水节能专业经验,景观设计则由我们共同完成。庭院中及院墙下预留种植池,石块铺装根据雨水流程分为渗水区和不渗水快速排流区,并留一半屋顶覆土作为屋顶绿化种植实验区,寻找土壤与雨水之间的微妙关联,将庭院景观与屋顶绿化作为雨水回收处理设施,完成雨水收集、渗透、再利用等一系列的雨水资源有效管理。
The design scheme incorporates the homeowner’s professional expertise in rainwater energy conservation, therefore, the landscape design was completed collaboratively by us and the homeowner. Planting plots are situated within the courtyard and along the base of the walls. The stone paving is divided into permeable zones and rapid impermeable drainage zones based on the rainwater flow path. Additionally, half of the roof is covered with soil to serve as an experimental green roof area, exploring the subtle relationship between soil and rainwater. The courtyard landscape and green roof function as integrated rainwater recycling and treatment facilities, accomplishing a series of effective stormwater management processes including collection, infiltration, and reuse.
▼石块铺装与种植池,The stone paving and the stone paving© 朱雨蒙
实验三:生活范式
Experiment 3: Lifestyle Prototype
办公与居住,展示与加工,商业和出租,在一栋小房子里相互容纳,这里是房主可以同时触碰工作与生活的空间媒介。通过一个独立的建筑项目创造一种生活范式,为我们的大胆构想提供了勇气——在雪山村建设一个承载更多内容的、容易复制的自主开发住宅样本,这便是第三种实验的源头。
Office and residential, exhibition and workshop, commerce and rental—all coexist within this small house. This building is a spatial medium that allows the homeowner to simultaneously embrace both work and life. The creation of a living paradigm through a single, independent architectural project has given us the courage to pursue our bold vision: building a replicable, adaptable, self-developed residential prototype in Xueshan Village. This very aspiration constitutes the origin of the third experiment.
▼新的生活范式,A new lifestyle© 朱雨蒙
位于城市边缘区域的便捷交通条件,让房价更为低廉的雪山村拥有了得天独厚的区位优势,城市的便利,乡村的便宜,向自由拓展职业发展的群体散发着源源不断的吸引力,同时也为乡村带来新的活力引擎,把人留住、把人带来是我们的目标。
在村庄建设层面上,自由度和规划手续的可行性,使得房屋租赁与改建工作具备了化繁为简的基础条件,也给自主小规模开发带来了可能性。此建筑相邻的地块因为多隶属于亲戚邻居,他们中的许多人都有类似的建设愿望,因此随着逐步扩散开发,院墙拆除,住宅便不单是若干个独立个体,也是有机生长的小型社区聚落。
Xueshan Village, situated in the urban fringe, enjoys high accessibility transportation and more affordable housing, granting it a unique locational advantage. The convenience of urban amenities combined with the low rental costs of the rural setting creates a sustained appeal for professionals seeking flexible career development. This dynamic also acts as a new engine of vitality for the village. Our goal is twofold: to retain those who have already arrived in Xueshan Village, and to attract more freelancers to settle here.
On the village scale, construction flexibility and feasible planning formalities procedures have simplified the processes for house leasing and renovation, thereby paving the way for small - scale, self - initiated development. Since the adjacent plots mostly belong to relatives or neighbors who share similar construction aspirations, a phased development approach will see the gradual dissolution of dividing walls. Consequently, the residences will evolve from individual houses into an organically growing, small - scale community.
▼发展小型社区聚落的空间潜力,Space potential to grow a small-scale community© 朱雨蒙
▼雪山村住宅鸟瞰,Bird ‘s-eye view ofHouse in Xueshan Village© 朱雨蒙
在建设过程中,房主与我们便谋划着能为这里配以更多产业支持:因从西直门到昌平北站的火车线路已经开通,所以我们计划在车站和村庄之间运营通勤班车,使火车通勤变得可行;又比如在村庄中置入供原住民和新移民相互切换使用的市集小菜场和咖啡小酒馆等等,使村中生活体验与城市生活接轨。以上策划都在规划推进中,为乡村的有机生长铺垫更多可能。
During the construction process, the homeowner and we began planning to introduce more supporting industries to Xueshan Village. For instance, since the train route from Xizhimen to Changping North Station has been inaugurated, we plan to operate a commuter shuttle between the station and the village to facilitate train commuting. Additionally, we aim to integrate amenities such as a local market and a café-bar that can be used by both original residents and new arrivals, thereby aligning the living experience with urban standards. These initiatives are currently under planning and development, laying the groundwork for the organic growth of the village.
未来实验
An Experiment for the Future Society
如上,这是一个私人住宅,也是一个设计公司办公室,还是一个乡间公共活动空间。作为基于生活方式与未来构想之上的实验,它既隶属于建筑学范畴,亦横跨在社会学界限之内。我们期望,这栋小房子的落地,可以为更多人提供一种新的生活模板与框架,最终走入新的人生时态里。
As outlined, this building is simultaneously a private home, a design office, and a community space in the countryside. As an experiment that transcends conventional lifestyles and visions for the future, this project operates within the realm of architecture while simultaneously entering that of sociological discourse. We hope this building will offer a new model for living, enabling more people to transition into new phases of their lives there.
▼未来实验,An Experiment for the Future© 朱雨蒙
故此,我们把这个建筑作为某种批判性提案,而非解决方案;把这个建筑作为某种当代艺术行动,而非浪漫乡村的审美怀旧;把这个建筑作为某种未来社会实验,而非集体记忆想象。
Therefore, we regard this building not as a definitive solution, but as a form of critical proposition; not as an aesthetic nostalgia for a romanticized countryside, but as a contemporary act of art; and not as an imagination rooted in collective memory, but as a tangible experiment concerning future society.
▼总平面图,Site plan© 大料建筑
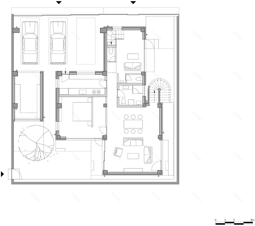
▼一层平面图,First floor plan© 大料建筑
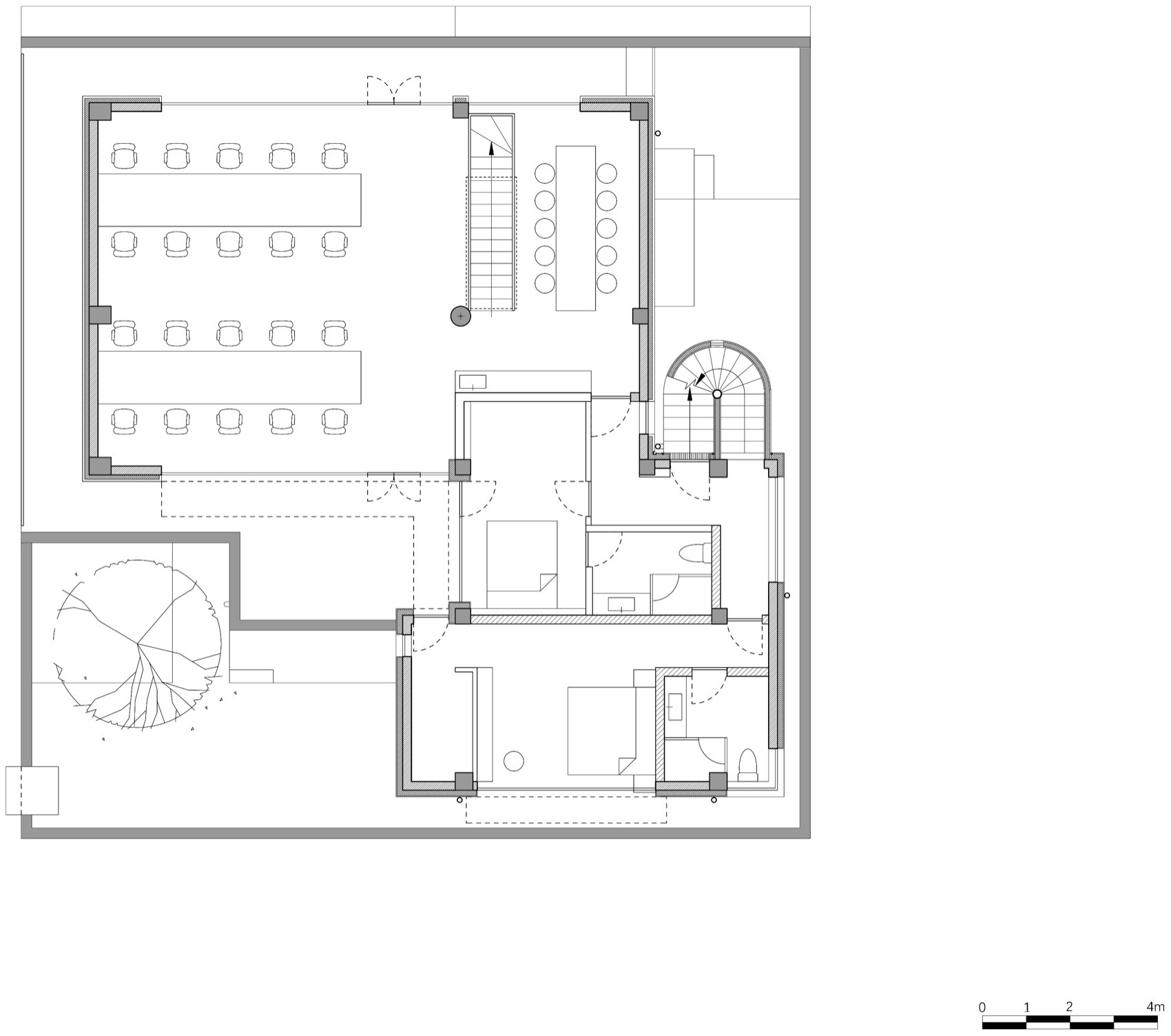
▼二层平面图,Second floor plan© 大料建筑
▼屋顶平面图,Rooftop plan© 大料建筑
▼北立面图,North elevation drawing© 大料建筑
▼西立面图,West elevation drawing© 大料建筑
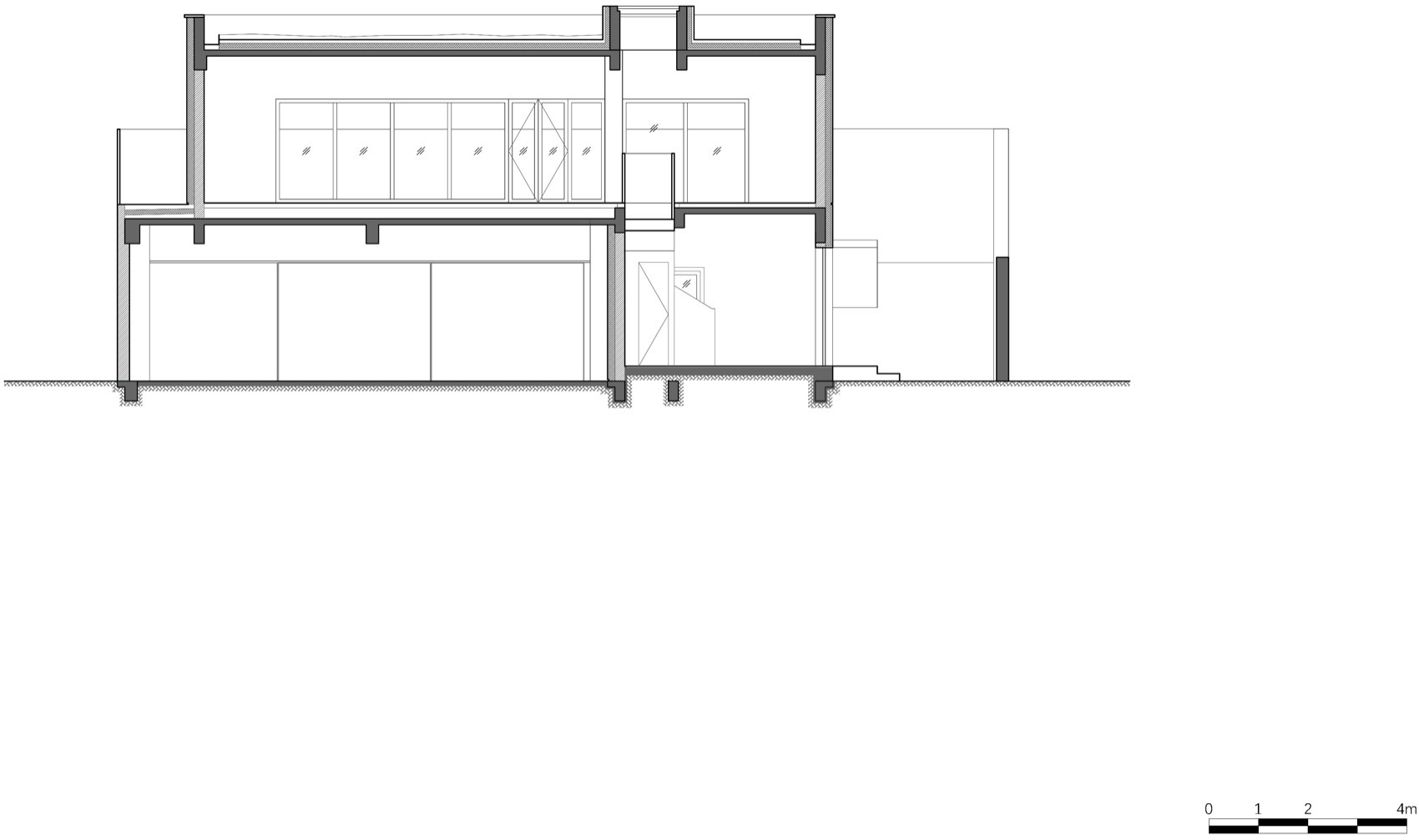
▼剖面图1,Sectional View 1© 大料建筑
▼剖面图2,Sectional View 2© 大料建筑
项目信息:
位置:北京,昌平区
时间:2022.8-2024.1
建筑面积:350㎡
业主:赵先生
建筑: 大料建筑 (刘阳,蔡卓群)
结构:高雪梅
水暖:果海凤
景观&雨水节能设计:北京雨人润科生态技术有限责任公司
摄影:朱雨蒙
Project Information:
Location: Beijing, Changping
Date:2022.8-2024.1
Area: 350㎡
Client: Mr.Zhao
Architecture: DL Atelier (Liu Yang, Cai Zhuoqun)
Structure: Gao Xuemei
HVAC: Guo Haifeng
Landscape & Rainwater Energy Conservation Design: Beijing Yuren Runke Ecological Technology Co., Ltd.
Photography: Zhu Yumeng
客服
消息
收藏
下载
最近

















































