查看完整案例

收藏

下载
位于广东省中心、蓬勃发展的粤港澳大湾区(广东—香港—澳门)之内,佛山是一座历史与文化底蕴深厚的活力城市,并以高科技产业与智能制造不断演进。在这样一座充满动态能量的城市中,上海金港集团开发了全新的 MAX Zone 科技园,这是区域快速扩张的智能制造领域的核心枢纽,尤其聚焦机器人与新能源技术。IFG 受委托为园区内 600 平方米的销售中心与 1,850 平方米的展示办公室设计室内空间。
Situated in the heart of Guangdong Province within the thriving Greater Bay Area (Guangdong-Hong Kong-Macao), Foshan is a vibrant city steeped in history and culture, continually evolving through high-tech industries and intelligent manufacturing. In this dynamic city, Shanghai Gold Concord Group has developed the new MAX Zone Technology Park, a hub for the region’s rapidly expanding smart manufacturing sector, which focuses in particular on robotics and new energy technologies. IFG was commissioned to design the interiors of the 600-square-metre Sales Centre and the 1,850-square-metre Show Office within the park.
▼项目概览,Aerialview of the project © ZhuDi
旅程始于销售中心,其核心灵感来自岭南文化(或更具体地说为粤文化)。岭南文化以因应气候的建筑、精湛的工艺,以及武术和舞狮等充满活力的传统而闻名,这些特质塑造了建筑设计的每一个转折。一层大堂以当代视角重构岭南传统拱门。轻盈的水幕环绕接待区,反映出立面所描绘的舞龙图案。地面铺装借鉴岭南传统拼花图案,通过多样纹理与材料的融合营造空间深度。编织毯、木雕与雕塑等手工艺品,向该地区丰富的文化遗产致敬。
The journey begins at the Sales Centre, where Lingnan (or more narrowly Cantonese) culture is the core inspiration. Known for its climate-responsive architecture, refined craftsmanship and lively traditions such as martial arts and lion dancing, Lingnan culture shapes the building’s design at every turn. The ground-floor lobby reimagines Lingnan archways through a contemporary lens. A delicate veil of water encircles the reception area, reflecting the dancing dragon motif depicted on the façade. The flooring, inspired by traditional Lingnan parquet designs, blends varied textures and materials to create spatial depth. Handcrafted artefacts, including woven blankets, wood carvings and sculptures, pay homage to the region’s rich cultural heritage.
▼一层大堂,The ground-floor lobby © ZhuDi
▼大厅,Hall © ZhuDi
▼地面铺装借鉴岭南传统拼花图,The flooring, inspired by traditional Lingnan parquet designs © ZhuDi
展示办公室以“聚合的能量”为主题贯穿五个楼层,并从一层入口开始。接待台与天花开洞的流动曲线鼓励动感与活力,促进动态的企业文化。入口处的圆形展示区陈列着旗舰产品,并配有互动屏幕呈现公司的愿景。一座雕塑般的楼梯作为垂直连接装置,促进自发的交流,并鼓励以步行作为楼层之间健康的移动方式。
The Show Office carries the theme of exploring the energy of gathering through its five floors, beginning at the ground-floor entrance. The fluid curves of the reception desk and ceiling cut-outs encourage a sense of movement and vitality, fostering a dynamic corporate culture. A circular display at the entrance showcases flagship products, accompanied by interactive screens that narrate the company’s vision. A sculptural staircase acts as a vertical link, promoting spontaneous encounters and encouraging walking as a healthy alternative for moving between floors.
▼圆形展示区,A circular display © ZhuDi
▼楼梯间,Stairwell © ZhuDi
▼楼梯细部,Stairwell details© ZhuDi
二层设有一间先进的会议舱,其周围布置着符合人体工学的工作站与研讨区域,并配备高端办公家具,以支持舒适性与员工福祉。若干开口借用中国传统视觉取景框的意象,框选出机器人车间,强调公司在技术创新与卓越方面的传承。建筑的上层以灵活方式回应工作中的四项核心原则——专注、沟通、协作与沉思——通过空间布局激发创造力与团队合作。灵活的办公空间、模块化家具与可调整隔断可适配多种讨论与会议形式。
The second floor features a state-of-the-art conference capsule surrounded by ergonomic workstations and seminar areas, all equipped with high-end office furniture to support comfort and employee well-being. Openings recalling traditional Chinese visual framing motifs highlight a robotic workshop and underscore the company’s legacy of technological innovation and excellence. The upper floors embrace an agile understanding of the four principles of work – concentration, communication, collaboration and contemplation – through layouts designed to stimulate creativity and teamwork. Flexible workspaces, modular furniture and adaptable partitions cater to various discussion and meeting formats.
▼会议舱,conference capsule © ZhuDi
▼办公空间,workspaces © ZhuDi
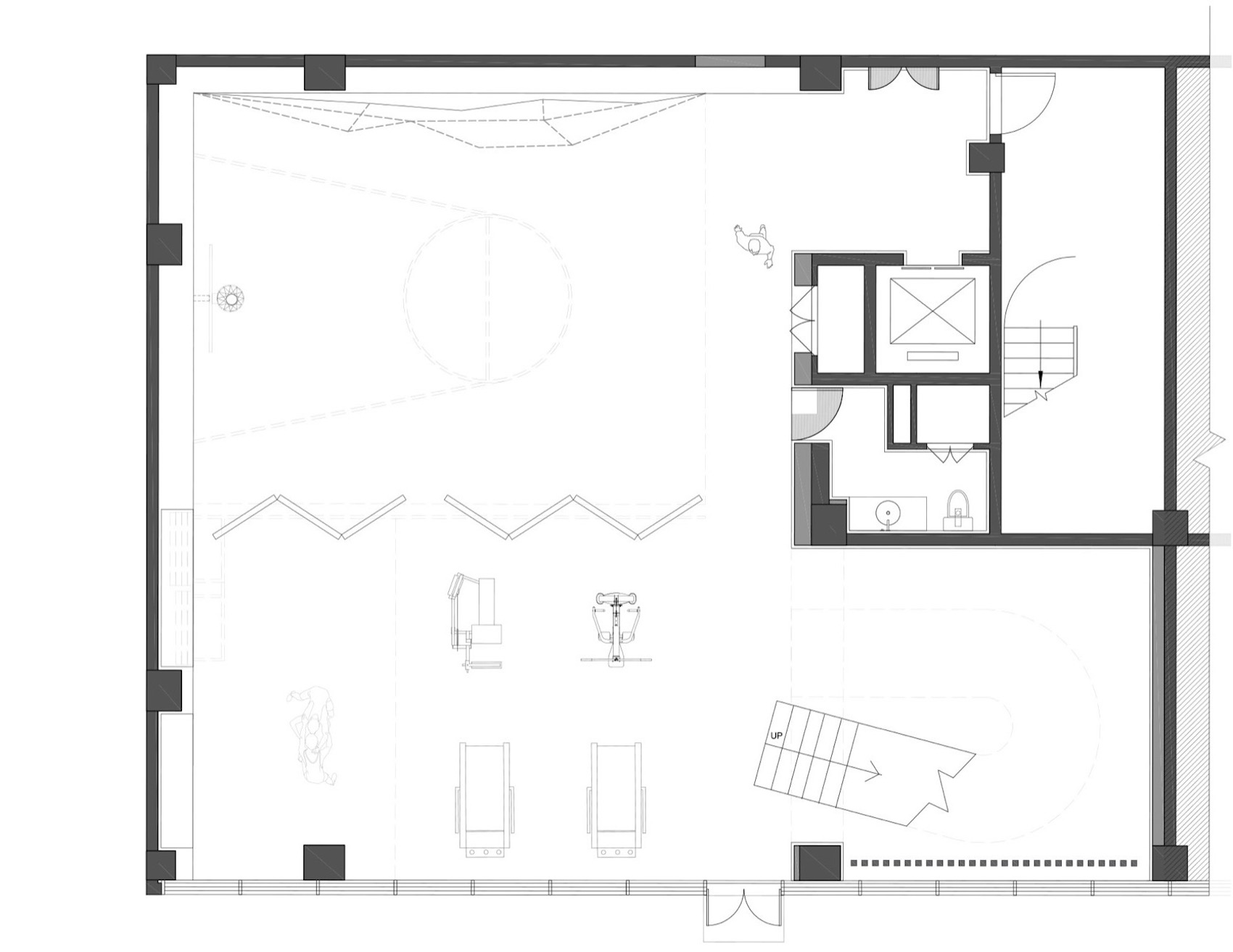
员工福祉是地下层(souterrain)的核心内容,该层包含一系列完善的运动设施,包括篮球场、攀岩墙以及以放松和减压为目的的健身房。本层的夹层空间致敬岭南的待客传统,提供以仿皮草帘幕围合的私人宴会包间。沿着此空间进入的用餐区以天然大理石餐桌为中心,是在重视款待氛围中进行小型聚会的理想场所。
Employee well-being is at the heart of the souterrain, which houses extensive sports facilities, including basketball courts, climbing walls and a gym designed for relaxation and stress relief. A mezzanine on this level celebrates Lingnan’s tradition of hospitality, offering private banquet spaces enclosed by faux fur curtains. These lead to a dining area centred around a natural marble table, perfect for intimate gatherings in a hospitality driven environment.
▼篮球场,basketball courts © ZhuDi
▼健身房,gym © ZhuDi
▼健身空间细部,gym space deatils© ZhuDi
▼私人宴会包间,private banquet spaces © ZhuDi
▼地下二层平面,floorplan 2UG© Ippolito Fleitz Group
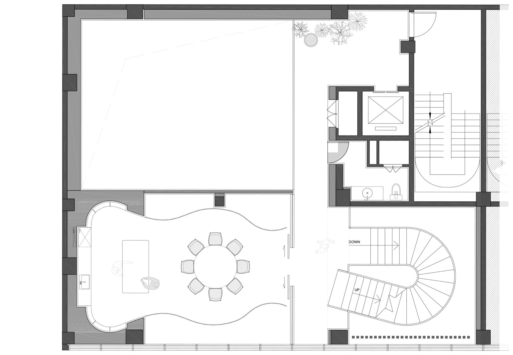
▼地下一层平面,floorplan 1UG© Ippolito Fleitz Group
▼一层平面,floorplan GF© Ippolito Fleitz Group
▼二层平面,floorplan 1OG© Ippolito Fleitz Group
▼三层平面,floorplan 2OG© Ippolito Fleitz Group
▼四层平面,floorplan 3OG © Ippolito Fleitz Group
▼五层平面,floorplan 4OG © Ippolito Fleitz Group
▼六层平面,floorplan 5OG © Ippolito Fleitz Group
CLIENT
Shanghai Gold Concord Group Co., Ltd
LOCATION
Foshan, China
YEAR
2024
FACTS & FIGURES
Total area Sales Centre: 6oo sqm
Total area Show Offce: 15oo sqm
Number of desks: 51 Desks
Additional workplace offerings: 15
Number of employees: 40
TEAM
Peter lppolito
Senem Cennetoglu
Halil Dogan
Samma Sun
Steven Shangguan
Aaron Ye
Jill Yang
Leo Luo
Chen Dong
Patrick Wu
PARTNER
Furniture: Prime Works Group
FF&E: Zero Dot Studio
PHOTOGRAPHY
ZhuDi
客服
消息
收藏
下载
最近































