查看完整案例

收藏

下载
Abby Kortrijk项目延展并改造了具有重要历史价值的Groeninge修道院建筑群,将其转变为一个用于特定场地的临时展览和公共活动的艺术空间。Abby Kortrijk是一种全新的博物馆形态:它对所有人开放、具有高度的可变性,位于科特赖克市中心Begijnhof公园中一个供公众使用的城市生活场所。
The project for Abby Kortrijk extends and transforms the historically significant complex of Groeninge Abbey into an arts space for site-specific temporary exhibitions and public events. Abby Kortrijk is a new kind of museum: a place for everyone, open and versatile, an urban living space in the wonderful setting of Begijnhof Park in the centre of Kortrijk.
▼位于Begijnhof公园中,In the setting of Begijnhof Park © Simone Marcolin
设计聚焦于对“身份”这一主题的广义解读,将延续、修复与转化等概念谨慎平衡,从而为这一整体重新发现一种深深扎根于现存建筑的新身份。
The design focused on a broad interpretation of the theme of identity, where concepts like persistence, restoration and transformation have been carefully balanced to rediscover a new identity for the ensemble, deeply rooted in the existing.
▼建筑概览,Building overview© Simone Marcolin
方案揭示了修道院礼拜堂与宿舍原有结构中极为美妙的空间特质,恢复了原有庭院,并新增了一个先进的地下展厅。每一个“空间”都拥有不同的氛围,以各自独特的方式容纳艺术与共享活动。
The proposal reveals the beautiful spatiality of the original structure of the abbey chapel and dormitories, restores the former courtyard and adds a state-of-the-art subterranean exhibition space. Each of these ‘rooms’ has a different atmosphere, creating space for art and shared activities in their own specific ways.
▼建筑立面,Building facade © Simone Marcolin
▼礼拜堂近景,Chapel close view© Simone Marcolin
地下展区位于整体建筑之下,而新建的公园展馆以其鲜明的存在感与历史建筑展开对话,无论是在形态上呼应其坡屋顶的垂直感,还是在正交的布局逻辑上。新建筑以可辨识的姿态融入现有建筑语境,成为延续城市构成历史的又一座展馆。其立面覆以深色砖材,使其作为历史建筑群中独立要素的特质更加突出。
While the exhibition area is located below the complex, the distinctive presence of the new park pavilion establishes a dialogue with the historic structures, both through its form, which evokes the verticality of their sloping roofs, and through the logic of its orthogonal arrangement. The new building comes as a clearly recognizable element in dialogue with the existing architecture; one more pavilion that continues the history of the urban composition. Its facades, covered in dark-coloured brick, give it the character of an independent element within the historical complex.
▼展馆远观,Pavilion view from a distance© Simone Marcolin
▼展馆近景,Pavilionclose view © Simone Marcolin
新的建筑介入克制而严谨,通过细腻且深思熟虑的方式处理,使新旧之间取得平衡,在强化场地历史的同时,也为未来提供了新的空间。
The new architecture is restrained and reasoned, defined by subtle and well-considered interventions that create a balance between the new and the existing, enhancing the history of the site and providing new spaces for the future.
▼展馆立面覆以深色砖材,Pavilion facadecovered in dark-coloured brick© Simone Marcolin
设计介入说明
Description of the intervention
从城市设计角度来看,项目移除了并非源自修道院原始布局的部分构筑物,并新增一座展馆,其正交布置于现有体系之上,并朝向Begijnhof公园探出。此举重新界定了原有回廊,并创建了从Groeningestraat通向公共花园的路径。
From an urban design perspective, the project removes elements that were not part of the original abbey layout and introduce a new pavilion, positioned orthogonally to the existing composition and peeking out towards the Begijnhof Park. This intervention redefines the original cloister and creates a passage from the Groeningestraat to the public garden.
▼展馆入口,Pavilion entrance© Simone Marcolin
▼展馆窗户,Pavilion window© Simone Marcolin
展馆通过原宿舍建筑与整体相连,内部设有酒吧与餐厅。其倾斜的立面营造了友好、庇护性的氛围,同时最大化内部空间。在这里可以布置一张长桌,呼应修道院中集体食堂的传统。
The pavilion, connected to the complex through the former dormitory building, houses a bar and restaurant. Its inclined facades create a welcoming, sheltered atmosphere while maximizing space inside. Here a long table can be arranged, referencing the communal refectory of an abbey.
▼展馆内部,Pavilion interior© Simone Marcolin
对原宿舍建筑的介入极为克制,原有的窗户、天花板与红陶地面得到了修复。同时新增了一整面长展柜,用以展示科特赖克市的馆藏作品,也邀请艺术家与该收藏展开创作互动。
Minimal interventions were made to the former dormitory building, restoring the original windows, ceiling, and red terracotta floor. A long display case was added to showcase works from the city of Kortrijk, inviting artists to engage with the collection.
▼展廊,Gallery © Simone Marcolin
修道院作为艺术之家,访客可以在其各个房间中体验艺术。从宿舍到展馆,公众无需购票即可欣赏这些展品。宿舍上方是会客室,与原礼拜堂相邻。
The abbey serves as an art house, where visitors experience art throughout its rooms. From the dormitory to the pavilion, one can enjoy the exhibits without needing a ticket. Above the dormitory is the parlour, adjacent to the former chapel.
▼室内望向庭院,View from interior towards the courtyard © Simone Marcolin
▼走廊,Corridor© Simone Marcolin
原礼拜堂是构成中的最古老的建筑之一。通过拆除附加的连廊和夹层,项目恢复了礼拜堂原有的庄严尺度;在没有中间楼层的情况下,这座 16 世纪的建筑重新获得其最初的氛围,成为一个新的垂直展览空间。
The former chapel is one of the oldest elements in the composition. By removing the existing attached corridors and mezzanines, the project reinstates the abbey’s original grandeur; without intermediate floors, the sixteenth-century building regains its original atmosphere and provides a new vertical space for exhibitions.
▼礼拜堂室内,Chapel interior© Simone Marcolin
▼展览陈列,Exhibits on display© Simone Marcolin
为了避免对公园造成额外负担并给现有建筑留出呼吸空间,项目在地下增设展厅。这些中性的、先进的博物馆级展览空间提供了灵活的展示画布。礼拜堂、宿舍与亭阁为项目带来历史层次,而地下的“白盒子”则提供了与其互补的中性背景。多样且协调的空间序列具备清晰的内部逻辑与功能性。
To avoid overburdening the park and to give the existing building breathing space around, the project includes an underground expansion for exhibition areas. These neutral, state-of-the-art museum-quality rooms, providing a flexible canvas for exhibitions. The chapel, dormitory, and pavilion buildings bring historical richness to the project, whereas the ‘white boxes’ below offer a neutral space that complements this historic context. The sequence of spaces, diverse yet cohesive, is functional with an internal logic.
▼窗户细部,Window details© Simone Marcolin
原有立面在尊重其图纸的前提下被修复。至于新的构筑,亭阁的立面采用由回收建筑材料制成的定制砖块,构成具有纪念性与表现力的结构,强化了其在城市肌理中的存在感。
The original facades were restored respecting their original drawing. As for the new element, the pavilion’s facade features custom-made bricks—made of recycled construction components—that conform a monumental and expressive structure, reinforcing its presence in the urban fabric.
▼场地平面图,Site plan © Barozzi Veiga + Tab Architects
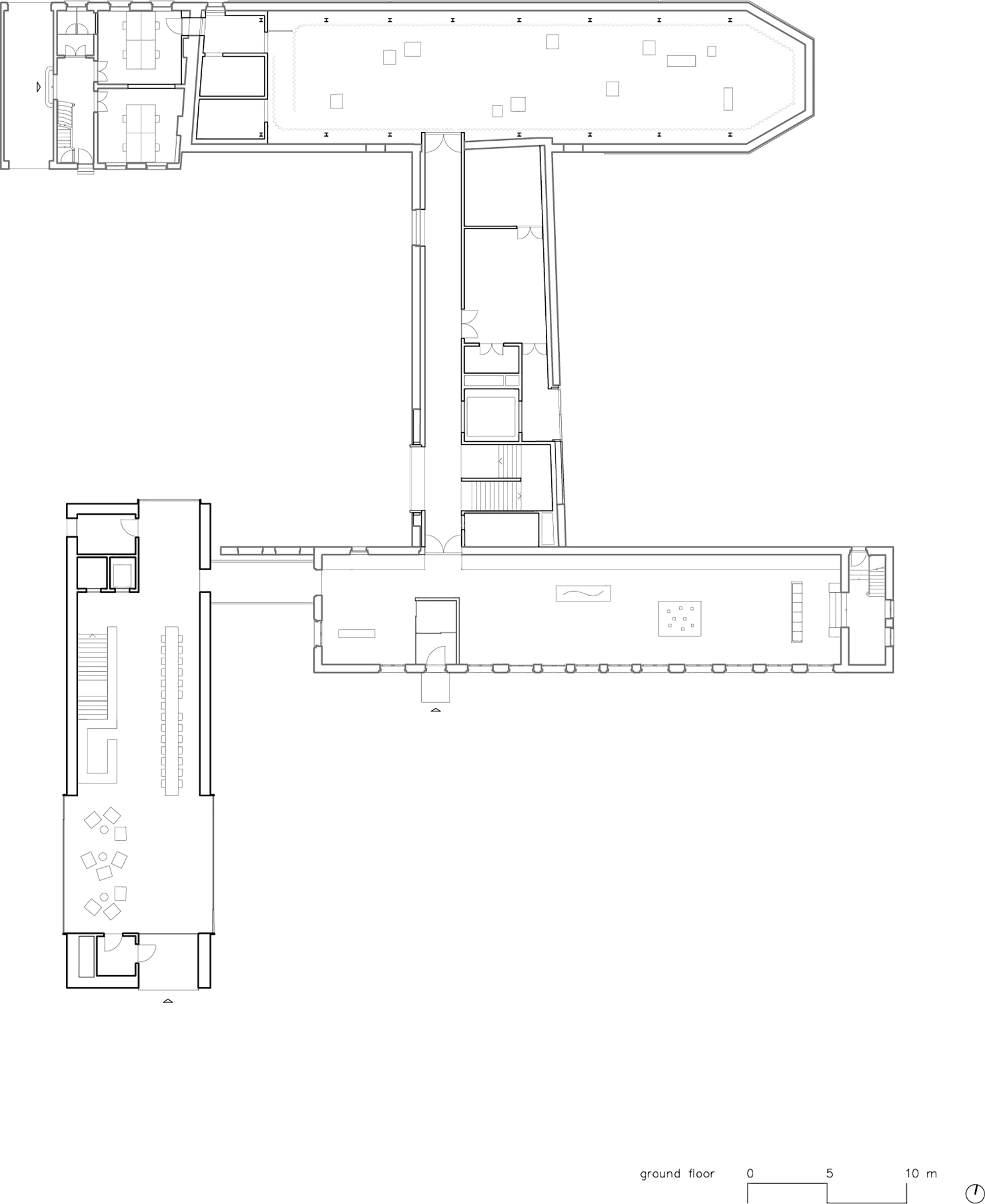
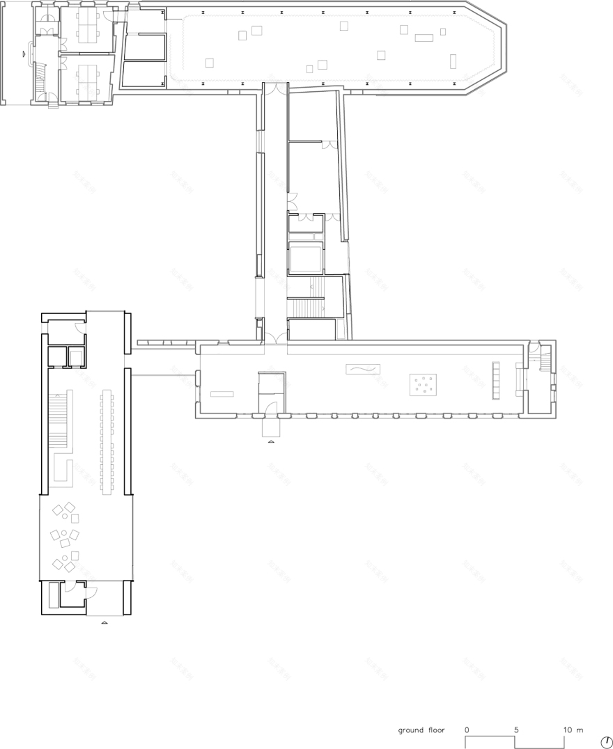
▼一层平面图,Ground floor plan © Barozzi Veiga + Tab Architects
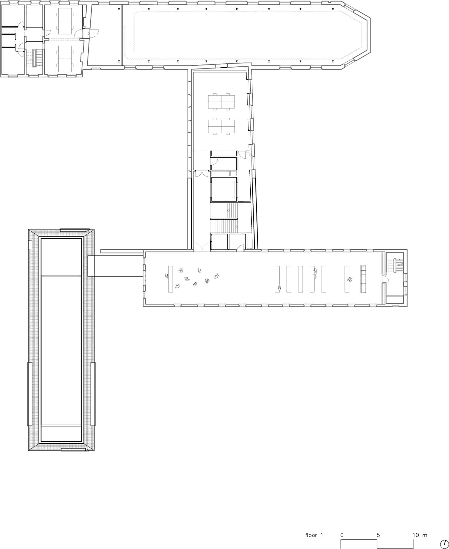
▼二层平面图,Floor 1 plan © Barozzi Veiga + Tab Architects
▼地下层平面图,Basement floor plan © Barozzi Veiga + Tab Architects
▼立面图,Elevation © Barozzi Veiga + Tab Architects
▼礼拜堂剖面图,Chapel section © Barozzi Veiga + Tab Architects
▼展廊剖面图,Galleries section © Barozzi Veiga + Tab Architects
▼亭阁剖面图,Pavilion section © Barozzi Veiga + Tab Architects
Abby Kortrijk
Kortrijk, Belgium 2020–2025
Client: Stad Kortrijk
Architects: Barozzi Veiga, Fabrizio Barozzi & Alberto Veiga; Tab Architects, Tom Debaere & Bert Bultereys
Competition team: (Barozzi Veiga) Yorgos Apostolopoulos, Jonghyun Choi, Pieter Janssens, Alessandro Lussignoli, Tea Marta, Toni Poch; (Tab Architects) Eva De Bels, Lando De Keyzer, Jonathan Toye, Ilja De Pelsmaeker
Project team: (Barozzi Veiga) Pieter Janssens; Chen-Hsin Chang, Tomás Mesquita, Ivanna Sanjuán, Guillermo Sidrach, Antonis Tasoulis, Maria Ubach; (Tab Architects) Jonathan Toye, Bert Lescouhier, Bert Devos, Pieter Frantzen, Ilja De Pelsmaeker, Lotte Engelborghs, Maxime Honoré, Luisa Soares
Heritage architect: Koplamp Architecten
Structural engineer: Sileghem & Partners Architecten en Ingenieurs
Services engineer: Studiebureau Boydens Engineering
Building physics and acoustic consultant: Daidalos Peutz bouwfysisch ingenieursbureau bvba
Façade consultant: Xmade
Gross floor area: 4037 m2
客服
消息
收藏
下载
最近










































