查看完整案例

收藏

下载
颐韵生华 · 春和景明
“颐和春天”设计以“时空对话”为核心理念,将现代艺术表现手法与东方传统美学相结合,旨在打造一个既具视觉冲击力又蕴含文化底蕴的空间。设计通过解构传统建筑元素、提炼自然意象,并运用当代材料与工艺,营造出庄重而不失灵动的氛围,为宾客开启一段沉浸式的美学体验之旅。
设计师秉承“简约而不简单”的设计理念,通过精心挑选的材料、色彩和布局,营造出一种温馨而放松的氛围。整个设计旨在让每一位入住的客人都能感受到家的温暖和舒适。
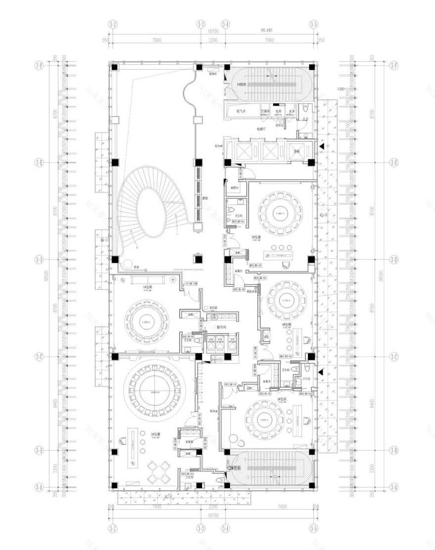
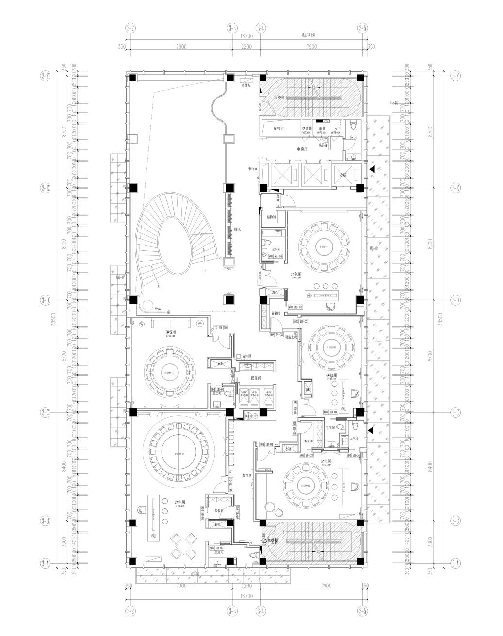
平面图
△ 一层平面图
△ 二层平面图
△ 三层平面图
△ 四层平面图
左右滑动,查看更多
01接待大厅
入口中庭以巨型红色旋转楼梯为空间锚点,其流动形态既似传统书画中“一笔成势”的写意笔触,又暗合现代参数化设计的精密逻辑。雕塑自挑空层垂落,引导视线纵向延伸,与黑白几何地砖的横向韵律形成张力,构建戏剧化的空间叙事节奏。
水韵花艺的东方隐喻
镜面水池与红色花艺的组合,构成“静水映繁花”的当代诠释。水体涟漪弱化硬质界面的冷峻感,红色花团以饱满姿态呼应螺旋装置的热烈色调,同时暗喻“春生”主题。青花瓷器作为传统符号的点睛之笔,在现代语境下重释东方雅韵。
“和静清寂”转化为空间语法——水景的动态平衡、器物的精妙排布、材质的肌理对话,皆在入口瞬间传递品牌对生活美学的深刻理解。此处既是功能性的待客前奏,更是文化意象的凝萃展厅,让宾客在踏入餐厅前便完成从都市喧嚣到雅致宴饮的精神过渡。
玻璃的通透、金属的精致、石材的温润与黑白瓷砖的经典构成材质交响。屏风式格栅借鉴传统窗棂比例,以铜色金属重构,在光影变幻中投射规律性阴影,形成动态视觉韵律。
02外摆区
外摆就餐区以“通透的诗意栖居”为设计愿景,将自然意象与建筑语言交织成一幅现代东方画卷。全高玻璃幕墙消弭了室内外界限,引光入室、借景成画,让食客在享受美食的同时,与四季晴雨展开直观对话。弧形黑色金属顶棚以几何韵律重构传统屋檐意象,其上镶嵌的透明采光板如碎玉铺陈,光影游走间为空间注入动态韵律。
03过渡空间
过渡厅作为空间序列的华彩纽带,以“流动的时空诗篇”为设计主题,将功能转化与美学体验凝练为一场视觉叙事。
弧形天花板以有机曲线破除传统梁柱结构的僵直感,金属包边在温润与冷峻间觅得平衡,恰似传统檐口在现代语系下的优雅转译,引导视线如水流般自然延展。反光黑色地面构建镜像维度,虚实相映间使物理空间获得双重延展,步履所至皆成画境。
04包厢
以形写意,以光塑境
包厢设计以“时空凝萃”为核心理念,将现代艺术审美与东方礼序精神相融合,通过几何构型、光影叙事与材质交响,构建一个既具戏剧张力又不失私密雅致的宴饮场域。设计打破传统包厢的封闭感,以艺术化手法重新诠释空间的比例与韵律,让每一次宴聚成为视觉与感官的双重盛宴。
05 宴会区
过渡区域的走廊,犹如传统建筑中的廊道,是引导宾客从外界喧嚣步入宴饮雅境的过渡空间,营造出“犹抱琵琶半遮面”的含蓄之美,蕴含着东方文化中“藏”与“露”的哲学智慧。而黑色容器摆件置于其间,恰似古代青铜重器,在柔和灯光映照下,散发着古朴而神秘的气息,仿佛在诉说着古老的故事,为宾客开启一场穿越时空的文化之旅。
宴会厅设计以“典韵新绎”为核心理念,深度撷取东方文化精髓,将其与现代设计手法精妙糅合,旨在打造一个既承载千年文化厚重感,又彰显当代时尚格调的宴饮空间,为宾客带来一场跨越时空的文化盛宴。END.
项目信息
项目名称:颐和春天餐厅
项目地点:浙江,杭州
项目面积:3400㎡
设计时间: 2024年 12月
完工时间: 2025年 10月
设计机构:由走空间设计实验室
创意总监:任迪
项目负责人:王康
参与设计人员:陈婧思、张自有、田达广、范紫琼、徐辰
施工单位:浙江迈亚装饰工程有限公司
软装设计:娴室艺术空间
灯光设计:杭州乐翰照明设计
项目摄影:图派视觉
任迪 由走空间设计实验室/主理人 杭州欧塬建筑设计有限公司/创意总监 CIID中国建筑学会室内设计学会/会员 高级室内设计师
荣获奖项:
CIID学会奖酒店类优秀奖;2014年CIID双年大奖赛最佳新秀奖、方案类铜奖、方案类银奖、工程奖优秀奖。2014年师客莱德最佳酒店空间设计师;2015年师客莱德最佳娱乐空间设计师;2017年国际环艺创新设计大赛(华鼎奖)酒店类金奖;2017年IDS国际设计先锋榜酒店空间金奖提名;2017年金堂奖年度优秀酒店空间设计;2017年台湾六艺奖商业空间类提名奖;2017年国际空间设计大奖(艾特奖)最佳商业空间设计入围奖;2015年艾特奖浙江赛区最佳样板房设计师入围奖;CIID第三届室内设计大奖二等奖;2020金堂奖年度杰出别墅空间设计-《新湖18号》;2020第十八届国际设计传媒奖-年度家居空间大奖-《新湖18号》;2021第16届金外滩奖-最佳居住空间奖 -《新湖18号》;2021金堂奖-年度杰出展示空间设计奖 -《泥土家涂料展厅设计》;2021第十九届国际设计传媒奖-年度办公空间大奖-铂金奖-《玖墨服饰办公空间设计》;2022第二十五届中国室内设计大奖赛-办公工程类-优秀奖-《玖墨服饰办公空间设计》;2022第17届金外滩奖-最佳办公空门奖 (银奖)-《玖墨服饰办公空间设计》;2022第十八届中国国际建筑装饰及设计艺术博览会 国际环艺创新设计作品大赛金奖-《泥土家展厅空间的宁静与材质的优雅》展览空间;2022第二十五届中国室内设计大奖赛-文化、展览工程类 优秀奖-《泥土家展厅空间的宁静与材质的优雅》;2022第17届金外滩奖-最佳商业空间奖(铜奖)《泥土家展厅空间的宁静与材质的优雅》;2022第十八届社博会-国际环艺创新设计作品大奖金奖 华鼎杯;2022中国(杭州)设计杰出青年;2023中国室内设计年鉴-作品入围证书《白大师品牌中心》;2024先锋设计NEW100(杭州由走空间设计有限公司);2024当代文旅人居空间设计评选(餐饮板块.top30)。
由走设计研究室由任迪先生成立于2019年。任迪先生从事室内设计行业十于年,专注于酒店、销售中心、样板房、会所、办公楼......空间打造。始终坚持“精于心、简于形”的设计理念,力求给客户提供全方位优质的设计服务,用激情和灵感赋予产品更高的价值。公司的生命力源于核心创造力,也是公司发展创新的原动力,是公司的核心竞争力,只有保持设计作品的原创性,才能保持设计思维的鲜活性,帮助业主激发更多的社会效应和价值。
客服
消息
收藏
下载
最近


























