查看完整案例

收藏

下载

翻译
Architects:AR Studio d'Architectures
Area:9025m²
Year:2025
Photographs:Florent MICHEL_©11h45
Landscape:Atelier Moabi
Concrete Structure:I+A
Category:Educational Architecture,Extension
Architects:Adrien RAOUL, Mélodie BRUILLON
Facade:VP & Green
CSSI:CSD & Associés
Acoustic:Néo DB
City:Paris
Country:France
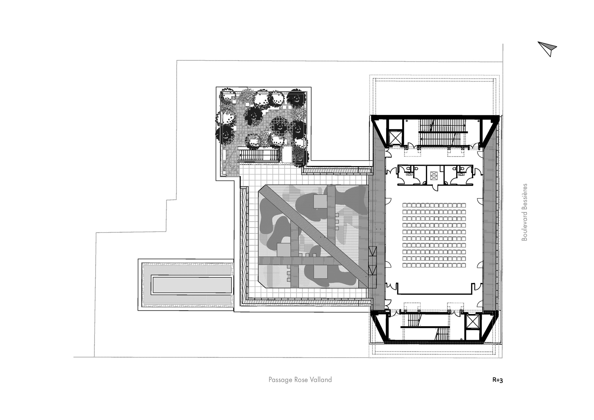
Text description provided by the architects. 42UP: A Vertical Campus in Paris Redefining Educational Architecture. In the heart of Paris's 17th arrondissement, AR Studio d'Architectures has completed 42UP, a radical extension of École 42 that doubles its capacity while minimizing its footprint. The project transforms 3,600 m² into a 9,025 m² vertical campus, accommodating 1,400 workstations in an institution operating 24/7, without teachers, without courses, and completely free.
Architectural Strategy: Building Upon the Existing. Rather than starting from scratch, the architects preserved the existing building, adding four base volumes and a five-story metal superstructure rising 18 meters above. This approach embodies architectural frugality - doing more with less - while respecting the site's history. The original structure, built in 1962 on land cleared from Paris's demolished fortifications, specifically Bastion 42, adds symbolic resonance to the digital campus.
The most striking element is this metal building-bridge suspended above the existing structure, supported by vertical circulation towers containing double Chambord staircases and a 42-meter beam. The third floor, beneath this beam, is column-free, creating a spectacular balcony overlooking the city. This volumetric play combines architectural delicacy with structural boldness, allowing construction while the school remained operational - accomplished by temporarily relocating students to NOC42 dormitories during critical phases.
A Perforated White Lace. A white perforated metal skin unifies old and new, contrasting with the original black facade while creating visual harmony with neighboring NOC42 dormitories. The 1.17 x 1.17-meter grid transforms into triangular modules on the superstructure, generating dynamic relief evolving throughout the day. Double-height glazing units measuring 2.34 x 2.34 meters punctuate this metallic veil, establishing rhythmic architectural language.
This micro-perforated envelope provides essential solar protection for a building housing 1,400 heat-generating computers, while flooding interiors with natural light. The facade becomes alive, its transparency varying with weather and time, creating ever-changing dialogue between interior and exterior spaces. This performative skin significantly contributes to summer comfort, crucial for maintaining optimal conditions in this data-intensive environment.
An Urban Ecosystem. 42UP functions symbiotically with the NOC42 complex - a Réinventer Paris competition winner - offering 700 beds across Boulevard Bessières. Together, they form a genuine urban campus integrated into the neighborhood, conceived as a unified vision since 2015. This interconnected ecosystem represents a new model for urban educational infrastructure, where living, learning, and leisure spaces coexist seamlessly within the city fabric.
Optimizing Every Square Meter. The architecture combats chronic underuse of educational facilities through spatial efficiency and chronotopy - leveraging continuous operation to maximize utilization. Vast open floors replace enclosed classrooms, with peripheral circulation and alcoves behind staircases offering intimate spaces for concentration or collaboration. Acoustic absorption is achieved through wood wool ceiling panels and textile coverings, while each level features distinct chromatic identity - red, green, or blue - facilitating intuitive navigation.
Street art, orchestrated by curator Nicolas Laugero Lasserre, animates four main staircases, transforming vertical circulation into artistic journeys. Each stairwell showcases different artist universes, creating distinct spatial identities serving aesthetic and wayfinding functions. These interventions provide intuitive orientation while enriching student experience, turning necessary movement through the building into moments of discovery and inspiration.
Project gallery
客服
消息
收藏
下载
最近


























































