查看完整案例

收藏

下载
时间,是空间最忠实的盟友,也是最严苛的雕琢者。本设计,便是一场以空间为媒介、以生活为刻刀的时光雕琢之旅。它超越了风格的表象,旨在营造一个能与时间共融、随岁月生长的居所,让每一刻的停留都沉淀为记忆的瑰宝,真正实现“雕琢时光”的深层意涵。
Time is space’s most loyal ally, and its most exacting sculptor. This design is a journey of carving time, using space as the medium and life as the chisel. It transcends the superficiality of style, aiming to create a dwelling that coexists with time and grows with the years—where every moment of stay settles into a treasure of memory, truly fulfilling the profound meaning of "sculpting time."
设计的起点,是对原始建筑结构进行大胆而精准的优化再造。这不仅是物理形态的改造,更是为未来漫长岁月中的生活轨迹铺设优雅的轨道。通过重新规划动线、加盖与功能重组,极大地提升了空间的利用率与未来的适应性,使建筑骨架本身便能从容应对家庭结构随时间的变化。
The starting point of the design lies in the bold yet precise optimization and reconstruction of the original architectural structure. This is not merely a physical transformation but an effort to lay an elegant foundation for life’s trajectory over the long years to come. By reconfiguring circulation paths, incorporating additions, and reorganizing functions, the design significantly enhances spatial efficiency and future adaptability, enabling the architectural framework itself to gracefully accommodate changes in the family structure over time.
一层作为宅邸的礼仪核心,采用经典对称布局,以雅士白石材与罗马柱定义空间的恢弘尺度。这里雕琢的是家族对外展示的辉煌时刻,是庆典与聚会的舞台,每一处精致的细节都如同被时光定格的法式宫廷画卷,记录着生活中最为璀璨华丽的篇章。
The ground floor, serving as the ceremonial heart of the residence, adopts a classic symmetrical layout defined by Statuario marble and Roman columns that articulate the grandeur of the space. Here, the design sculpts moments of familial splendor presented to the outside world—a stage for celebrations and gatherings. Every refined detail, like a frozen tableau from a French court painting, immortalizes the most radiant and magnificent chapters of life.
地下一层被塑造为家庭娱乐与文化的核心,一个集社交、休闲与收藏于一体的沉浸式空间。这里,时光的流速仿佛变得缓慢而深邃。深色木质的温润、茶香氤氲的静谧,共同构筑了一处能让人忘却外界纷扰、专注于内心对话的“时光容器”。它与地上层的璀璨光华形成鲜明对比,诠释了时光的不同密度——既有欢聚时的热烈,亦有独处时的沉静。
The basement level has been crafted as the epicenter of family entertainment and culture, an immersive space integrating social interaction, leisure, and collection. Here, the passage of time seems to slow and deepen. The warmth of dark wood and the tranquility infused with the aroma of tea together form a "vessel of time," allowing one to forget the distractions of the outside world and focus on inner dialogue. In stark contrast to the radiant brilliance of the upper floors, it interprets the varying densities of time—both the warmth of gatherings and the serenity of solitude.
垂直而上,二至四层的私享区域则转向内敛与温情。这里是时光雕琢出的温情归宿,专注于私密、舒适与功能性。
Ascending vertically, the private areas spanning the second to fourth floors transition into a realm of understated elegance and warmth. Here, time itself has been sculpted into a haven of intimacy, meticulously crafted to prioritize privacy, comfort, and functionality.
主卧套房、子女房、家庭厅与书房,每一处空间都围绕着家庭成员个体的成长与休憩需求展开。在此,设计不再追求瞬间的震撼,而是致力于营造一种能随岁月沉淀、愈发温润包容的日常氛围,让家的记忆在日复一日的使用中,深深嵌入空间的肌理。
The master suite, children’s bedrooms, family lounge, and study—each space is thoughtfully arranged around the growth and repose of every family member. Here, the design no longer seeks to create instant visual impact, but strives to cultivate an everyday atmosphere that grows warmer and more embracing with the passage of time, allowing the memories of home to embed themselves deeply into the very fabric of the space through daily use.
设计师刻意选择了能与时间友好相处的材料:雅士白石材将随着氧化泛出温暖的微黄,记录下光阴的足迹;沉稳的黑胡桃木会在触摸中愈发油润,散发出历久弥新的光泽;乃至地下室东方茶室中的粗陶与竹木,也将在使用中沉淀出独一无二的包浆与纹理。
The designer intentionally selected materials that age gracefully with time: the Statuario marble will develop a warm, yellowish patina through oxidation, chronicling the passage of the years; the rich walnut wood will grow increasingly lustrous and smooth to the touch, acquiring an enduring sheen; even the rough-textured pottery and bamboo wood in the basement’s Oriental tea room will accumulate a unique glaze and texture through use.
这些材质在东西方美学的对话中,共同承担起“雕琢时光”的使命——它们不仅是空间的装饰,更是时光流逝的实体记载,使家成为一个真正“活”的、有生命力的有机体。
These materials, in a dialogue between Eastern and Western aesthetics, collectively undertake the mission of "sculpting time"—they are not merely decorative elements of the space, but tangible records of the passage of time, transforming the home into a truly "living," vibrant organism.
院子
院子
项目信息/Project Information
项目地址 | 洛阳半山溪谷
项目面积 | 600m²
设计单位 | 洛阳那里布凡设计工作室
设计风格 | 法式混搭
设计主创 | 王丽娜
完工时间 | 2024年
软装设计 | 王丽娜
摄 影 师 | 赵 玮
主要材料 | 石材、墙板、石膏线、复古金属
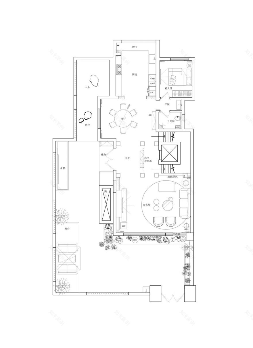
平面图 ▽
左右滑动→
设计主创/Lead Designer
王丽娜 那里布凡设计事务所 设计总监
2004年从事室内设计行业,2013年成立那里布凡空间设计工作室。设计理念:偏执于毫米,升温于人情;您闭眼享受结果,剩下的我来较真。
个人荣誉
2025洛阳首届女性当代艺术展参展人
2025年担任洛阳市涧西区美术家协会设计艺委会委员
2024 - 2025年金梁设计奖
2024年度龍承奖
2024当代文旅人居空间设计 餐饮WINNER
2024城市设计名片《佛光》
IDEAT理想家 非凡设计奖
2023城市智能豪宅新势力 IS智能空间设计奖
金堂奖2022年度杰出作品奖
2020金住奖—中国(洛阳)十大居住空间设计师
40UNDER40中国(河南)设计杰出青年(2020 - 2021)
2019中国国际空间设计养生会所设计类银奖
40UNDER40中国(河南)设计杰出青年(2018 - 2019)
2018年中国手绘国际行业协会高级手绘师
2018青岛设计核共享 设计之星
2018中国国际空间设计大赛办公空间工程类银奖
第七届中国国际空间设计大赛洛阳赛区二等奖
2016老板电器杯 - 建筑装饰设计师总平榜 - 最受欢迎设计师、新锐设计师
客服
消息
收藏
下载
最近

































