查看完整案例

收藏

下载
一场色彩、几何与味觉融合的感官盛宴
在餐饮空间设计中,色彩并非单纯的视觉装饰,而是塑造空间情绪、引导社交行为与传递情感深度的重要媒介。这些色彩以沉静却饱满的姿态渗透开来,不仅调动味蕾感知,更在无形中编织出促进互动与交流的社交脉络,使空间本身成为情感连接与体验共享的载体。
餐厅外观 ©山间影像
餐厅外观 ©山间影像
高饱和暖色 ©山间影像
在混KHAOS餐厅的设计中,FLIP studio番番營作将多巴胺色彩与孟菲斯趣味结合,通过高饱和度暖色、几何语言与材料肌理的融合与碰撞,回应川湘赣创意融合菜丰富的“辛、香、烈”的味觉体验,并延续Bistro小酒馆轻松与趣味的氛围,以戏剧性的方式构建成一道“色彩、几何与味觉交织的感官盛宴”。
多巴胺色彩的长条形餐桌©️山间影像
Bistro 空间©山间影像
整体的空间布局暗藏功能与情绪的对话逻辑。设计以纯白墙体作为空间框架,通过质感粗粝的肌理白墙隔断划分出“开放”与“内敛”的双重情绪场景:餐厅一端是沿玻璃幕墙展开的开放式厨房与长条形大餐桌,厨师烹饪的烟火气与街景交融,形成Bistro特有的社交张力;另一端则通过白色陶土砖砌筑的隔断,在保持通透感的同时引入适度的私密性。这种布局既保持了空间在视觉上的连贯性,利用隔断形成框景和视线互动,更通过虚实界面的转换实现了用餐空间节奏的收放自如。
白色陶土砖隔断©FLIP studio
富有张力的色彩背景©山间影像
色彩作为空间的味觉底色,主导着整个空间的视觉情绪。粉、黄、橙、橘四种暖色,如同川湘赣菜中那浓郁而热烈的味觉基调,被大胆地运用于墙面与地面,构成了餐厅统一而富有张力的色彩背景。在这一片温暖的“味觉画卷”上,不同材质的肌理被赋予叙事的角色:粗粝的艺术墙面与朴拙的陶土砖,隐喻着菜系中源自乡野的原始生命力;而光滑的釉面瓷砖与高光手工彩绘树脂桌面,则呼应着烹饪中的现代技法与创新酱汁。粗犷与精致、质朴与摩登的强烈对比,进一步丰富了这层“底色”的深度与层次。
餐厅色彩构成©FLIP studio
光滑的釉面瓷砖©山间影像
艺术手绘高光树脂长桌©FLIP studio
受到孟菲斯风格启发的家具与灯具,则扮演着类似融合菜中“配菜”与“趣味调味料”的角色。不同色彩与形式的座椅、充满玩心与几何感的灯具,巧妙地穿插于主色调之间。几何的设计语言进一步延伸至细节:陶土砖、瓷砖的网格肌理与彩色勾缝,地面铺贴中镶嵌的马赛克,这些都如同撒在菜品上的香料末,于细微处增添惊喜。定制的手绘高光树脂艺术桌,如同一场盛大宴席的核心,其凝聚的光彩与能量,与开放式厨房的鼎镬之气遥相呼应。桌面流动的笔触与高光反射,宛如一场味觉与视觉酣畅淋漓的交响,将整个体验的趣味性与艺术性推至高潮。
色彩与灯具©FLIP studio
地面铺贴中镶嵌的马赛克 ©山间影像
艺术手绘高光树脂长桌细节©FLIP studio
混KHAOS餐厅通过色彩、几何与材质的戏剧化编排,让空间叙事与餐饮哲学产生共振,使得川湘赣菜的炽烈情感在孟菲斯式的趣味表达中得以绽放。在此,色彩不仅是情绪的底色,更是促进社交发生的温柔背景;而在空间中的每一次驻足与交谈,都成为了这场设计实验中最生动且持续回响的篇章,使得KHAOS成为一个能容纳味觉、触觉与视觉的完整感官场域。
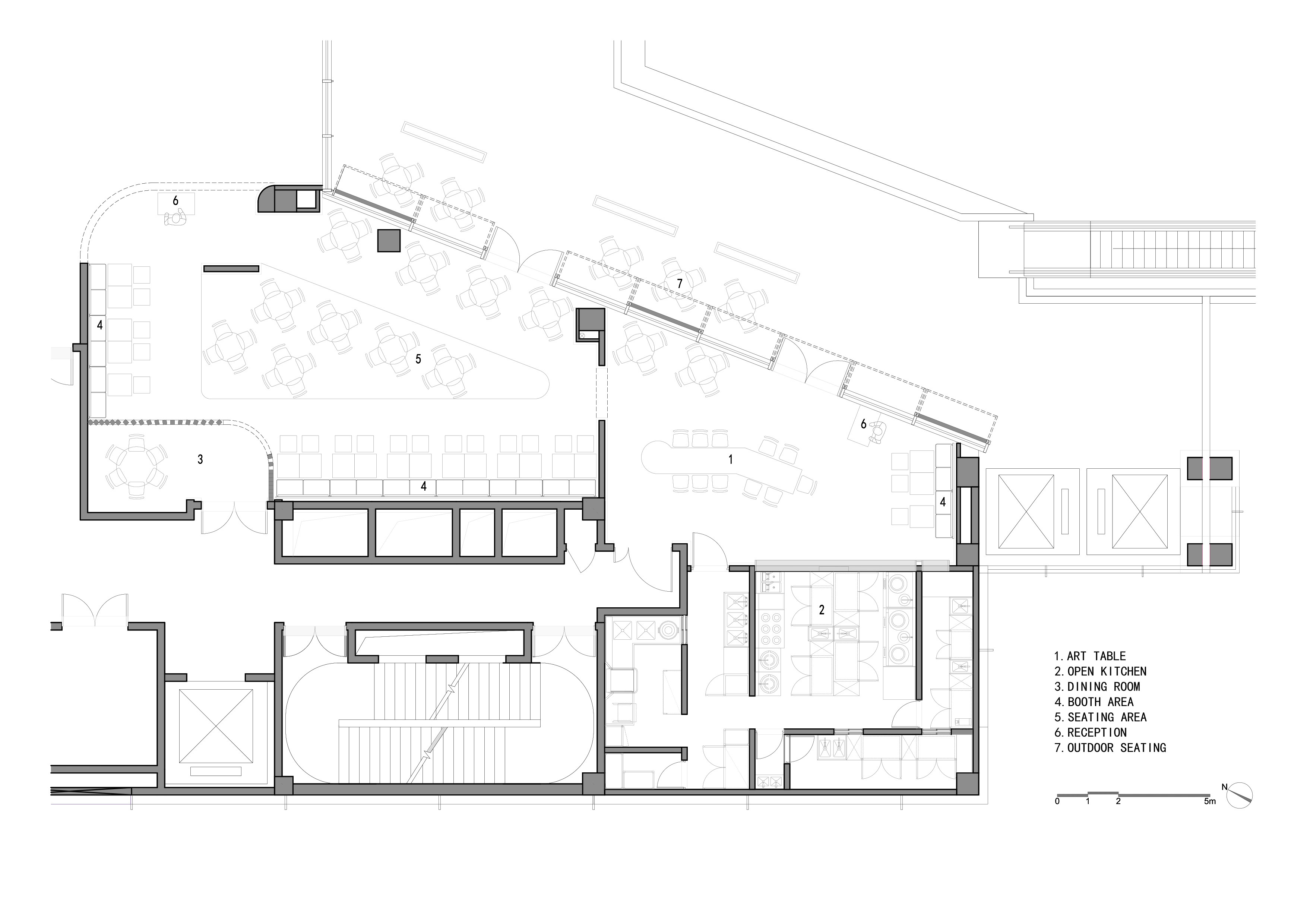
平面图
项目信息
项目名称:混KHAOS餐厅
项目地点:上海浦东
业主: 混KHAOS餐厅
设计单位:FLIP studio 番番營作
主持设计师: 孙凯伦、王志明
设计团队:张旨脉
摄影师:山间影像、FLIP studio
空间面积:217㎡
设计时间:2025.02-2025.08
完工时间:2025.08
客服
消息
收藏
下载
最近


















