查看完整案例

收藏

下载
在城市的版图上,建筑从来不是孤立的存在,而是与场地、人群、城市精神深度对话的空间载体,建筑早已超越其物理功能,成为承载城市精神的容器。
© DONG建筑影像
On the urban landscape, architecture is never an isolated entity, but rather a spatial vehicle that engages in a profound dialogue with its site, its people, and the spirit of the city. It has long transcended its physical functions to become a vessel containing the city’s soul.
▼项目鸟瞰,Aerial view of the project © 张哲鹏、徐晓通
位于北京海淀区清河镇的青核INNNG国际人才社区,便是这一理念的生动体现。其建筑生成的背景,正是北京海淀青核INNNG项目所在地的特殊性,这特殊性源于对多种边界因素的应对策略进行综合考量的结果。这一复合型青年居住项目不仅直面特殊地形与复杂城市环境带来的挑战,更以“环抱共生”的建筑形态,构建出一处激发创新、促进交流、融入城市的活力地标。
▼方案生成,Concept generation © ZXD Architects + BIAD
Located in Qinghe Town, Haidian District, Beijing, the INNNG International Talent Community is a vivid embodiment of this philosophy. The design of its architecture stems precisely from the unique characteristics of the INNNG project site in Haidian, Beijing—a uniqueness born from comprehensively addressing various boundary factors. This multifaceted residential project for young people not only confronts the challenges posed by the special terrain and complex urban environment but also, through an architectural form that “embraces and coexists,” creates a vibrant landmark that stimulates innovation, fosters interaction, and integrates into the city.
▼建筑“环抱共生”,Embracing symbiosis © 张哲鹏、徐晓通
场地应答:城市节点的青年聚落
Site Response: A Youth Community at an Urban Nod
项目东临京藏高速,北接小营西路,是城市空间的重要节点。被城市道路与绿地挤压而成三角形用地,空间非常局促,不适合常规的规划布局;紧邻的高架京藏高速对场地产生空间压迫和噪音干扰;场地的南侧和北侧,地铁19号线与昌平线南延线的站点之间,存在着大量的地面换乘人流,对公寓的长租人群可能形成干扰。
▼内部空间组织,Spatial organization © ZXD Architects + BIAD
The project is situated adjacent to the Beijing–Tibet Expressway to the east and Xiaoying West Road to the north, serving as a key urban node. Constrained by urban roads and green spaces, the site is shaped into a triangular plot with limited space, making it unsuitable for conventional planning layouts. The elevated Beijing–Tibet Expressway, running in close proximity, imposes spatial pressure and generates noise interference on the site. To the south and north, heavy pedestrian traffic flows between the stations of Subway Line 19 and the extended southern section of the Changping Line, which may pose disturbances to long-term residents of the apartments.
▼南立面,South elevation © 张哲鹏、徐晓通
方案将上述制约因素转化为独特的规划策略。对于东北侧的城市绿地,设计成逐渐升高的斜坡景观,既面向城市道路形成立体展示的界面,同时最终形成的6米的高差也为公寓提供了主要的入口平台。而地铁换乘的人流可以在地面自由通行,互不干扰。地面与高速公路的高架桥之间的尴尬被巧妙化解,形成错落有致的台地式布局。在建筑首层可以布置商业配套,既服务住户日常需要,也激活场地商业价值。
The design transforms the aforementioned constraints into unique planning strategies. For the urban green space on the northeast side, a gradually rising sloped landscape is introduced. This not only creates a three-dimensional display interface facing the city road but also utilizes the resulting 6 - meter height difference to provide the main entrance platform for the apartments. Pedestrian flow from subway transfers can move freely at ground level without interference. The awkward space between the ground level and the elevated expressway bridge is ingeniously resolved, forming a staggered, terraced layout. Commercial amenities can be arranged on the ground floor of the building, serving both the daily needs of residents and activating the site’s commercial value.
▼东北立面,Northeast elevation © 张哲鹏、徐晓通
▼东北入口,Northeast Entrance © DONG建筑影像
形态生成:科技基因的空间表达
Form Generation: Spatial Expression of Technological DNA
项目摒弃传统密集塔楼公寓的呆板布局,连续“反N”的建筑造型,如同激情跳跃的轨迹一般,塑造崭新的建筑形象和城市轮廓。三座塔楼斜向延伸、彼此衔接,形成三个巨大的三角形开口,既打破高层公寓的单调感,也构建出通透的立体庭院。几何形态的力量感,以明确且富于动感的形象面向城市,既呼应中关科技企业的现代气质,也隐喻着科技人群敢于创新的精神内核。
The project abandons the rigid layout typical of traditional dense tower apartments. Instead, its continuous “C-N” architectural form resembles the trajectory of a passionate leap, shaping a fresh architectural identity and urban silhouette. The three towers extend diagonally and connect with one another, forming three massive triangular openings. This not only breaks the monotony often associated with high-rise apartments but also creates transparent, three-dimensional courtyards. The geometric form, with its sense of power and clarity, presents a dynamic face to the city. It echoes the modern ethos of Zhongguancun’s tech enterprises while metaphorically reflecting the innovative spirit of the technological community.
▼一层室外,First-floor outdoor area © 张哲鹏、徐晓通
▼二层室外,Second-floor outdoor area © 张哲鹏、徐晓通
建筑内部通过清晰的功能分区构建起空间秩序。为满足消防规范,将连续的建筑体量划分为三个部分,分别成为一个独立的消防分区。从门厅到电梯厅,从走廊进入公寓,形成从公共到私密的递进的关系。
The building’s interior establishes spatial order through clearly defined functional zoning. To comply with fire safety regulations, the continuous building volume is divided into three sections, each forming an independent fire compartment. The progression from the entrance lobby to the elevator lobby, and from the corridors into the apartments, creates a layered transition from public to private spaces.
▼电梯门厅,Elevator lobby © 北京建院装饰
10层以上退台提供观景露台,西山与城市景观一览无余。户型从单身公寓至复式套房,均采用可拆卸隔断与模块化家具系统,支持居住与办公的自由切换,适配科技创业者的多元需求。
Starting from the 10th floor, setback terraces provide viewing decks that offer panoramic views of Xishan Mountain and the cityscape. Unit types range from studio apartments to duplex suites, all featuring removable partitions and modular furniture systems that allow flexible switching between living and working modes, catering to the diverse needs of tech entrepreneurs.
▼屋顶露台,Rooftop terrace © 张哲鹏、徐晓通
▼公寓室内,Apartment interior © 北京建院装饰
▼公寓走廊,Hallway © 北京建院装饰
空间对话:连接人与故事的容器
Spatial Dialogue: A Vessel Connecting People and Stories
三个方向的三角形开口被塑造为不同主题的活动场所,让建筑成为青年文化与城市生活的“缝合剂”。空间在这里呈现出更多维度,建筑三角形的内庭面向天空,形成起伏的轮廓,在二层、首层和地下一层又演变为相互连接的空间网络。建筑立面中三个方向三个巨大的、三角形开洞伴随着光影将城市景观引入其中。
The triangular openings in three directions are designed as activity spaces with distinct themes, allowing the building to act as a “stitching agent” between youth culture and urban life. Here, space unfolds across multiple dimensions. The building’s triangular inner courtyard opens toward the sky, creating undulating contours, while evolving into an interconnected spatial network across the second floor, ground floor, and basement level. The three massive triangular apertures on the building’s façade, oriented in different directions, bring city views into the interior, accompanied by dynamic plays of light and shadow.
▼三角空间立面,Triangular elevation © 张哲鹏、徐晓通
▼活动大堂入口,Community center entrance © 张哲鹏、徐晓通
▼一层与二层扶梯,L1–L2 escalator © 张哲鹏、徐晓通
▼地下一层下沉广场,B1 sunken plaza © DONG建筑影像
东北侧“城市画廊”,应对京藏高速,成为一个向城市展示的窗口,未来这里艺术装置和灯光投影将成为不断演绎的青年文化剧场。
The “Urban Gallery” on the northeast side addresses the Beijing–Tibet Expressway, serving as a window to the city. In the future, art installations and light projections here will transform the space into a continuously evolving theater of youth culture.
▼东北入口,Northeast entrance © DONG建筑影像
▼光影,Light and shadow © DONG建筑影像
西侧“共享台阶”,连接二层平台的大台阶,自然形成户外沙龙区,适合即兴讨论、午后阅读或小型音乐会。
The “Shared Staircase” on the western side connects to the second-floor platform, naturally forming an outdoor salon area suitable for impromptu discussions, afternoon reading, or small concerts.
▼西侧“共享台阶”,Western shared steps © DONG建筑影像
南侧“创新大堂”,悬索玻璃幕墙围合的室内空间,打破内外界限。这里不仅是归家的第一站,更是社区客厅,承载创意市集、项目路演与社群活动。
The “Innovation Lobby” on the southern side features an interior space enclosed by a suspended glass curtain wall, breaking the boundaries between inside and outside. This area serves not only as the first stop upon returning home but also as a community living room, hosting creative markets, project pitches, and social events.
▼门厅入口 A,Lobby entrance A © 北京建院装饰
▼门厅入口 C,Lobby entrance C © 北京建院装饰
精神赋能:一种可生长的创业文化
Spiritual Empowerment: A Cultivable Culture of Innovation
对居住于此的科技人群而言,青核INNNG不仅是居所,更是创新的“孵化器”。开放的公共空间鼓励跨领域交流,庭院、步道、大堂中,随时可能碰撞出思想火花;理性严谨的建筑形态与灵活多元的空间设计,共同传递着突破常规、持续探索的创新精神。
For the tech community residing here, Qinghe INNNNG is more than just a residence—it serves as an incubator for innovation. Its open public spaces encourage cross-disciplinary interaction, where sparks of ideas may ignite at any moment in its courtyards, pathways, and lobbies. The rational architectural form and flexible spatial design together convey a spirit of innovation that breaks conventions and embraces continuous exploration.
▼室内外关系,Indoor–outdoor relationship © 张哲鹏、徐晓通
▼活动公共空间,Community center © 张哲鹏、徐晓通
贯穿社区的休闲步道,将东北侧绿地、内部庭院与西南方向的体育公园串联为一条完整的“活力轴”,鼓励人们运动、散步与不期而遇的交流。“破土新生”的景观理念,为城市植入一片生态绿洲,让建筑真正融入公共生活。
The leisure pathway running through the community connects the green space on the northeast side, the inner courtyards, and the sports park to the southwest, forming a complete “vitality axis” that encourages exercise, walks, and spontaneous interactions. Guided by the landscape concept of “Breaking Ground, Embracing New Life,” an ecological oasis is integrated into the urban fabric, allowing the architecture to truly become part of public life.
▼步道景观,Trail landscape © DONG建筑影像
在这里,居住、工作、社交与休闲的界限被柔化,建筑以包容的姿态,承载年轻人对创新生活的全部想象。它既是面向城市的形象节点,也是扎根日常的生活港湾。设计重新定义集体租赁住房的价值,为新时代城市建筑如何兼具辨识度、社区感与人本关怀,提供了生动的诠释。
Here, the boundaries between living, working, socializing, and leisure are gently blurred. The architecture, with its embracing stance, carries the full spectrum of young people’s aspirations for an innovative lifestyle. It serves not only as a visual landmark facing the city but also as a harbor for daily life, anchored in the everyday. The design redefines the value of collective rental housing, offering a vivid demonstration of how urban architecture in the new era can harmonize distinct identity, a sense of community, and human-centered care.
▼南侧幼儿园,South building kindergarten © 张哲鹏、徐晓通
▼城市线,City line © 张哲鹏、徐晓通
▼总平面图,Master plan © ZXD Architects + BIAD
▼首层平面图,First-floor plan © ZXD Architects + BIAD
▼地下1层平面图,B1 floor plan © ZXD Architects + BIAD
▼2层平面图,Second-floor plan © ZXD Architects + BIAD
▼10层平面图,Tenth-floor plan © ZXD Architects + BIAD
▼东北立面图,Northeast elevation © ZXD Architects + BIAD
▼西立面图,West elevation © ZXD Architects + BIAD
▼南立面图,South elevation © ZXD Architects + BIAD
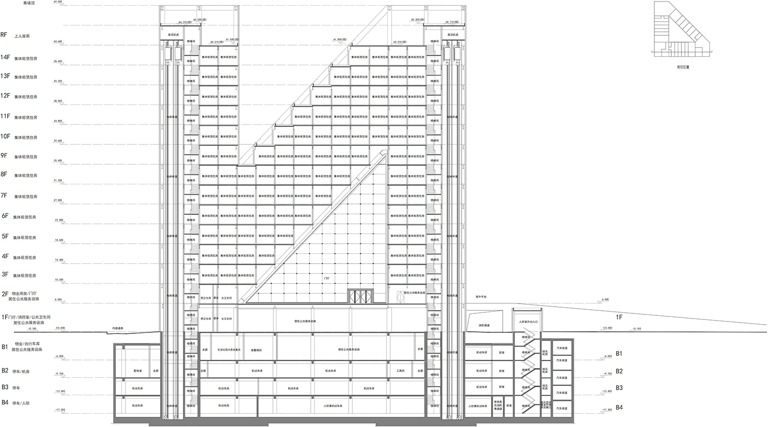
▼东北剖面图,Northeast section © ZXD Architects + BIAD
▼南剖面图,South section © ZXD Architects + BIA
项目名称|青核INNNG国际人才社区
项目地点|北京市,海淀区
建筑面积| 48156平方米
建成时间|2024年11月
建设单位|北京市海淀区清河农工商公司
设计单位| 朱小地工作室、北京市建筑设计研究院股份有限公司
主持建筑师|朱小地
建筑方案、景观设计| 朱小地工作室、北京市建筑设计研究院股份有限公司
施工图设计|北京市建筑设计研究院 第七建筑建筑设计院
精装设计|北京建院装饰工程设计有限公司 设计八所
泛光照明顾问|北京光湖普瑞照明设计有限公司
幕墙顾问|中国建筑设计研究院有限公司帷幕中心
摄影|张哲鹏、徐晓通、DONG建筑影像、北京建院装饰
文案|朱小地、周怡汝
Project Name| Qinghe INNNNG International Talent Community
Location| Haidian District, Beijing, China
Gross Floor Area| 48,156 ㎡
Completion Date| November 2024
Developer| Beijing Haidian Qinghe Agricultural-Industrial-Commercial Company
Design Team| Zhu Xiaodi Architects, Beijing Institute of Architectural Design Co., Ltd.
Principal Architect| Zhu Xiaodi
Architectural Design & Landscape Design| Zhu Xiaodi Architects, Beijing Institute of Architectural Design Co., Ltd.
Construction Documents Design| No.7 Architectural Design Institute, Beijing Institute of Architectural Design
Interior Design| Design Division 8, Beijing Institute of Architectural Design Decoration Engineering Design Co., Ltd.
Lighting Consultant| Beijing Guanghu Purui Lighting Design Co., Ltd.
Curtain Wall Consultant| Curtain Wall Center, China Architecture Design & Research Group
Photography| Zhang Zhepeng, Xu Xiaotong, DONG Architectural Imagery, Beijing Institute of Architectural Design Decoration
Copywriting| Zhu Xiaodi, Zhou Yiru
客服
消息
收藏
下载
最近









































