查看完整案例

收藏

下载
屋内是昏暗的,透过暖色的灯光,散发着慵懒的气息,雨水打在黑色的石子路面,带着些许声响,人穿行于廊下,坐望处,雨渐小,远山泛起了雾。
The interior of the house is dim, exuding a languid atmosphere through the warm lighting. Raindrops hit the black stone pavement, creating a faint sound. As one walks through the corridor, sitting and gazing out, the rain gradually subsides, and mist rises from the distant mountains.
▼项目鸟瞰,Aerial view of the project © 滑雪涛
▼建筑远观,Distant view of the project © 滑雪涛
▼项目立面概览,Elevation overview © 壹高
关于场所的构思
Regarding the conception of the venue
项目地处于浙江安吉县山川乡,漫山的竹林与连绵的山体构成这一区块独特的自然环境。▼场地区位图,Site Plan © 偏离设计
▼场地平面图,Master Plan © 偏离设计
The project site is located in Shanchuan Township, ANJI, Zhejiang, where the bamboo forests covering the mountains and the rolling hills together create a unique natural environment for this area.
▼通往建筑的行车道,Road to the building © 滑雪涛
车子驶出隧道,经由山脚下的一个村庄盘山而上,远山随着海拔的上升开始显现,路过半山腰的一个拐弯处,整片竹林置于眼前,风吹竹林带来沙沙声响,场地的选址正处于这一拐弯处的洼地。
The car exited the tunnel and wound its way up the mountain through a village at the foot of the mountain. As the altitude rose, distant mountains began to emerge. Passing a bend halfway up the mountain, a vast bamboo forest came into view. The wind rustled through the bamboo, creating a rustling sound. The chosen site for the venue was located in a depression at this bend.
▼建筑隐于竹林中,Hidden in bamboo forest © 滑雪涛
场地北面为一条穿山而过的行车道,南面为一条通往村里养鸡场的小路,下面为一片农田,像是很久没打理,整个处于一种无序混乱的状态,建设用地刚好为两条路中间的一片竹林地。
To the north of the site lies a road that cuts through the mountain, while to the south is a narrow path leading to the village’s chicken farm. Below the site is a stretch of farmland, seemingly neglected for a long time, in a state of disorder and chaos. The construction land falls right in the middle of the two roads, within a bamboo forest.
▼后院,Backyard © 滑雪涛
▼通往农田的小路,Path to Farmland © 滑雪涛
从人的视角望去,东面,西面与北面均为山坡,南面有较好的景观面,但现有的竹林遮蔽下面农田的同时,也遮蔽了远山的景观,使视野受到局限。好在地块南北高差近7米,利用高差,在高处平整出基础地块,保留下方竹林,构建以远山近林为主体景观的旅宿度假空间,设计也以此作为依据展开。
From a human perspective, the east, west, and north sides are all hillsides, while the south side boasts a better view. However, the existing bamboo forest not only obscures the farmland below but also blocks the distant mountain scenery, limiting the view. Fortunately, the elevation difference between the north and south of the plot is nearly 7 meters. By utilizing this elevation difference, a basic plot can be leveled at a higher elevation, preserving the bamboo forest below and creating a lodging and vacation space with the distant mountains and nearby forest as the main landscape. The design is also based on this.
▼以远山近林为主体景观的度假空间,Vacation space with distant mountains and nearby forest © 壹高
▼观景露台,View terrace © 滑雪涛
建筑主体为3栋10米*13米的方形体块,利用场地东西近60米长的条件,建筑横向水平拉开,通过连廊,串起各个功能区块,高度上的错层与一个巨大的倾斜屋面,构筑起建筑的基本视觉形象。空间上,由西往东匀质铺开,通过层层递进的方式,延长整个游进路线。▼设计草图,Sketch © 偏离设计
The main body of the building consists of three square blocks measuring 10 meters by 13 meters. Leveraging the nearly 60 - meter - long east - west space, the building is horizontally extended. Various functional blocks are connected through corridors, and the height variation and a large inclined roof form the basic visual image of the building. Spatially, the space unfolds evenly from west to east, extending the entire circulation route through a layered progression.
▼巨大的倾斜屋面,A large inclined roof © 壹高
▼中庭景观,Courtyard landscape © 壹高
▼中庭天井,Courtyard Atriume © 壹高
行车道以下3.4米作为建筑基础标高,将接待,书吧,茶室,餐厅这些公共空间置于底层,以半地下室的状态呈现,建筑中庭与南面巨大的开窗消减条形空间带来的冗长感,将景观最大限度的引入建筑内部,3米悬挑长廊作为应对山区多雨气候的同时建立空间内外的模糊性与灵活性,鼓励人们自由穿梭分享自身的感受。
The elevation 3.4 meters below the roadway serves as the foundation level for the building. Public spaces such as the reception area, reading lounge, tea room, and restaurant are located on the ground floor, presented in a semi-basement configuration. The atrium and the large windows on the south side mitigate the sense of length brought by the strip-shaped space, maximizing the introduction of scenery into the interior of the building. The 3-meter cantilevered corridor serves to adapt to the rainy climate of the mountainous area while establishing ambiguity and flexibility between the interior and exterior spaces, encouraging people to freely move around and share their feelings.
▼接待大堂,Reception lobby © 壹高
▼大堂望向庭院,Lobby © 壹高
▼书吧,Reading lounge © 壹高
▼餐厅,Reading lounge © 壹高
整个建筑在作为度假产品这一功能属性下,以3.2米的单层高度作为基本标高单元,在一个大体量的建筑空间内,保证尺度是宜人的,舒适的。材料上以木材,石材,灰泥涂料等自然质感材质为主,避免材料的过渡使用,深色调的控制也使整个空间内部呈现一种内敛的状态。压低空间内部的明度目的是将视线更聚焦于外部的风景。
Under the functional attribute of being a vacation product, the entire building adopts a single-story height of 3.2 meters as the basic elevation unit, ensuring that the scale is pleasant and comfortable within a large architectural space. The materials are primarily natural textures such as wood, stone, and plaster paint, avoiding excessive use of materials. The control of dark colors also gives the entire interior space a restrained appearance. The purpose of reducing the brightness within the space is to focus the gaze more on the external scenery.
▼大体量的建筑空间内,A large architectural space © 壹高
▼室内以深色调为主,Dark tone interior space © 壹高
▼将视线更聚焦于外部的风景,focus the gaze on the scenery © 壹高
外立面深色灰泥的拉毛处理,几何化的建筑形态,明确场所的此时此地,同时强化建筑作为物质这一特性的稳定性。建筑前方预留近11米宽的戏水池,留建筑与景观一个观望的距离,场所在整片竹林中有了一个向心力,也给民宿提供一个巨大的户外活动场地,抵达这个动词有了具象的画面。
The textured treatment of dark-colored plaster on the facade, coupled with the geometric architectural form, clearly defines the place and time, while reinforcing the stability of the building as a physical object. A nearly 11-meter-wide pool for water play is reserved in front of the building, creating a distance for observation between the building and the landscape. The site has a centripetal force within the entire bamboo forest, and also provides a huge outdoor activity space for the guesthouse. The verb “arrive” now has a concrete image.
▼深色灰泥的拉毛处理,Dark-colored plaster on the facade © 壹高
▼戏水池,Water play pool © 滑雪涛
将客房置于上部,三栋建筑各自独立,减少房间因密度而带来的干扰。高度的提升使景观有了更好的呈现。应对度假类空间的特性,我们尽量保证内部空间的简洁性,舒适性,同时避免过渡化设计所带来的视觉干扰,设置每个窗户的朝向,给房间提供最佳的观景视野。
Placing the guest rooms on the upper floors, with each of the three buildings standing independently, reduces disturbances caused by room density. The increase in height enhances the presentation of the scenery. In response to the characteristics of vacation spaces, we strive to ensure the simplicity and comfort of the interior spaces, while avoiding visual disturbances caused by overly complex designs. We carefully orient each window to provide the best view from the room.
▼客房,Guest room © 壹高
▼泡池,Bathtub © 壹高
▼洗漱台,Washing area © 壹高
此案是我们尝试将建筑即独立于环境又相互渗透的一次尝试,通过解构建筑的局部,构建一个由物质、氛围、以及使用者空间体验为核心的旅宿度假场所。
This project represents our attempt to create a building that is both independent from the environment and interconnected with it. By deconstructing the local aspects of the building, we aim to construct a lodging and vacation space centered around materiality, ambiance, and the spatial experience of the users.
▼夜览,Nightview © 壹高
▼总平面图,Master plan © 偏离设计
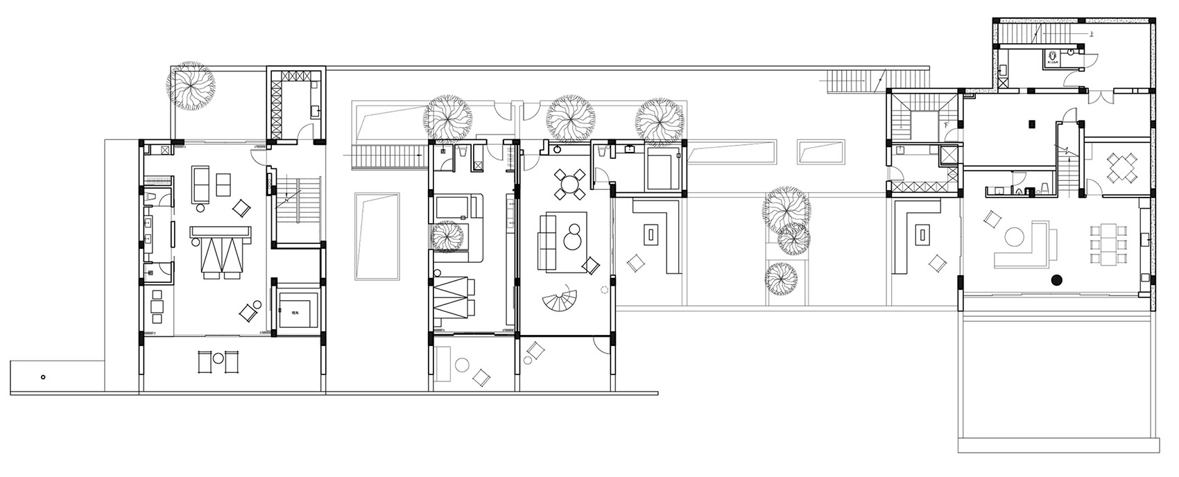
▼首层平面图,First floor plan © 偏离设计
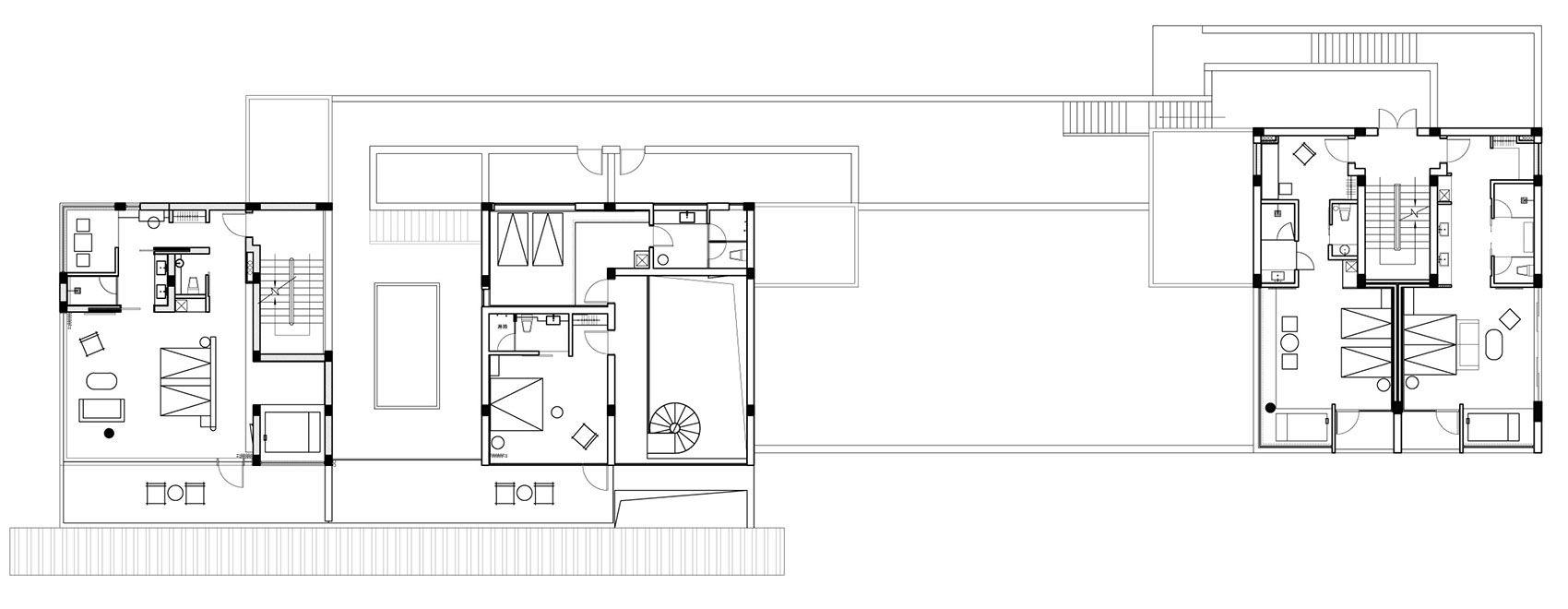
▼二层平面图,First floor plan © 偏离设计
▼三层平面图,First floor plan © 偏离设计
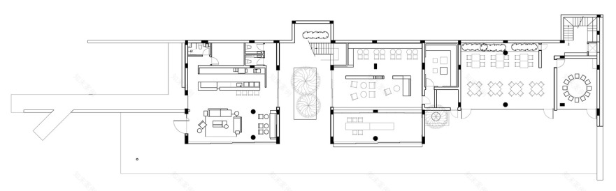
▼地下平面图,First floor plan © 偏离设计
▼剖立面图,Section & Elevation © 偏离设计
▼细部节点,Details draeing © 偏离设计
项目信息
项目名称 来野 . 山川里
项目业主 湖州来野酒店管理有限公司
设计公司 偏离设计
设计时间 8/2023—12/2023
施工时间 3/2024—9/2025
主持设计 小岛、戚帅奇
设计团队 付冬冬、李明思、赵英凯、郑梦青
软装设计 潘昕欣、熊良洁
景观设计 又见设计
结构设计 飞鱼设计
项目面积 2000sqm
建筑工程 信辉建设工程有限公司
装饰工程 浙江拾叙装饰工程有限公司
景观工程 常春藤景观庭院
灯光设计 科尚照明
项目摄影 壹高(翰墨视觉),滑雪涛(直觉建筑空间摄影)
主要材料 老木板,水洗石,灰泥涂料
Project name: Come Wild · Mountain Bamboo | The Black House
Project type: Space design
Design: DEPARTURE DESIGN STUDIO
Design year: 08/2023—12/2023
Completion Year:2025
Leader designer & Team: Xiao dao,Qi Shuaiqi , Li siming, Fu dongdong,Zhao yingkai,Zheng mengqing
Project location: Shanchuan Township, Anji County, Zhejiang Province
Gross built area: 2000sqm
Photo credit: Yigao (Calligraphy Vision),Huaxue Tao (Intuition Architectural Space Photography)
客服
消息
收藏
下载
最近




















































