查看完整案例

收藏

下载
建筑的“元素”不是视觉单元或格式塔,它们是和记忆互动的碰撞与抗衡。
-《肌肤之目》
项目背景
近几年,中医养生的生活方式慢慢深入人心,受众群体趋于年轻化,中医馆经营模式除了传统的中医问诊、身体理疗之外,可零售的药食同源便携产品也逐渐成为一种贴近日常的刚需。
由H Design Studio 汤鑫设计的姬芸堂国医馆位于西安市高新区木塔寨一栋社区商业的一层,甲方是中医世家,经过长期探索,创立了全新中医馆品牌,定位为新型中医馆,希望区别于传统中医馆的刻板印象,为客人带来全新的空间体验。
在考察了诸多同类型的项目之后,我们发现新型中医馆对设计的需求有着看似冲突的矛盾点,即传统与现代的碰撞,如何用设计师一直秉承的现代设计语言去解这道“中式命题”,同时,在相对有限的预算下,轻量化的适度介入,是项目的核心设计立意。
功能与形式
空间的设计脉络,围绕一个可感知传统意蕴的当代空间而展开,首先,一个自然、质朴的现代“基底”,意味着空间的纯粹与留白,设计在材质的表达上更直观的回应了这个构想,整个墙面选用了白色艺术涂料,并掺杂少量草木,呼应中药的天然选材,产生有质感的肌理,这也是承载流动光影的绝佳介质。
天然洞石接待台,兼具存储药物的功能,洞石材质也延伸至墙面的搁架、抽屉柜,串联起整个动线,形成有节奏的线条、韵律变化。
橡木打造的传统中药柜,放置在入户的第一视线点上,作为中医馆的标志性元素,昭示出空间的中医意涵,中药柜的方格子井然有序,排列出秩序感,与空间中的线条、体块相协调,点线面的组合单元构成了平衡、稳定的空间感受。克制的色彩体系,真实的材质触感,营造出自然、本真的场域特质。
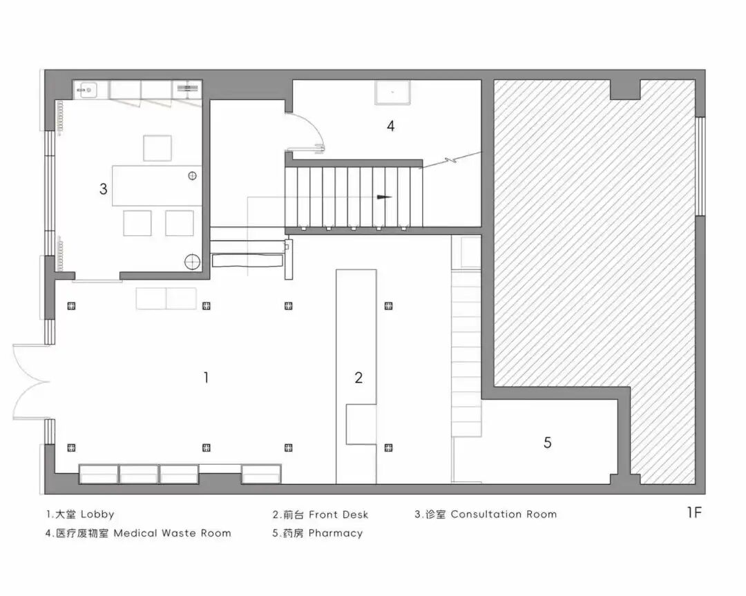
基于场地条件、功能需求、合理动线以及私密性的综合考量,中医馆一层空间主要承载接待、零售功能,将注重隐私的诊疗室和理疗室放置在二层,煮药设备间则位于二层紧邻楼梯的位置,原本部分隔墙被打开,通过嵌入玻璃将自然光和景色引进室内,将煎煮中药的场景释放给客人,传递中医药领域的相关信息。
“梁柱”重塑空间体验
木梁、柱是中国传统建筑中的元素,在项目中,我们选用了一种现代空间中常见的建筑构件-镀锌方管,利用榫卯的传统构造方式,在一、二层建构起“梁柱装置”,柱础与地面相同材质,形成统一的“联结”。
4公分直径的方管极为轻巧,覆以深红色漆面则更显明快与活力,成为空间中鲜明的记忆点。建构起的梁柱结构,与空间的顶、立面产生多维的层次关系,丰富了观看视角,释放出强烈的秩序感和稳定感,重构了空间的多维感知。
这样一来,榫卯结构的“梁柱装置”,将中国传统建筑的意韵抽象化,成为一种文化符号的转译,回应了中医馆传统与现代的碰撞,又作为激发想象的隐喻,完成场所精神的表达。
爆炸图
然而,更为有意义的是,这个项目带给我们一些启发和思考:由4公分镀锌方管单元组件到梁柱结构,再到重塑空间体验,是一次低成本、高效率的尝试,从结果来看,在控制造价的前提下,达到了预期效果,相信在未来,这样的设计策略会多多助益我们对项目的落地和完成度的把控。
平面图
▼
项目名称:
姬芸堂国医馆
项目地址:中国西安
项目面积:300㎡
竣工时间:2025.11
设计机构:H Design Studio
主创设计:汤鑫
设计团队:董朋号、吴梓畅、赵青
软装设计:屈苗、方芳
家具陈列:U⁺家具
项目摄影:刘南南
汤 鑫
H DESIGN STUDIO 创始人(主持设计师)
A NEW DESIGN LAB 主理人
发现中国好设计 发现 100 年度设计师
The Oscars of the Interior Design World
THE SUNDAY TIMES
—
作品征集中!
客服
消息
收藏
下载
最近














































