查看完整案例

收藏

下载
从北京的喧闹,回归固安的宁静,一个三口之家完成了一次向往已久的“逆向迁徙”。在北京都市的奔忙节奏中奔走多年,快节奏高压力的城市生活让他们更加向往自由和远方,他们决定为自己寻找一处能够“慢下来”的生活锚点。最终将目光投向了河北廊坊的固安,既紧邻北京,享有“京南一小时通勤圈”的便利,又保留着乡野自然的静谧。这里是女主人从小生活居住的地方,他们希望在这片宅基地上,打造一个真正“可呼吸、有记忆、能生长”的家。这个家,不仅是偶尔逃离都市的疗愈空间,也是孩子可以亲近自然、未来老人能够安享晚年的长久居所。
原始房屋现状
老宅位于固安县的彭村乡,原有的房屋因岁月的侵蚀,年久失修设施陈旧不堪,无法满足现代生活的基本需求;老房子的结构和布局十分不合理,存在着安全隐患;房屋内缺乏水电、暖气等现代设施,生活极为不便,需要通过极大规模的改造去提升在此生活的居住条件。对于习惯了现代化城市生活的家庭来说,目前的房屋状况距离梦想中的“诗和远方”有着相当大的落差,热爱美食烹饪的妈妈需要超大厨房施展厨艺,热爱运动的爸爸能够在户外健身锻炼,喜欢小动物的孩子可以拥有与小动物玩耍的地方......
受到节目组和业主的委托,设计师黄全和刘姮,从整栋房屋的建筑开始着手,以“在地性 轻自然 ”融合的设计理念,重新规划布局。设计围绕“在地共生”展开,既要满足三口之家的日常,也要为未来老人同住预留可能。空间里既有全家共享、相聚的客厅与庭院,也为父母预留工作阅读的书房、孩子玩耍的动物角等 “独立领地”,空间预留可生长的弹性,让每个家庭成员都能在空间中找到归属感。
在乡土与城市间生长的家
改造后的房屋分为上下两层,设计摒弃了城市别墅的复制模式,以硬朗的手法重塑建筑形态,使其扎根于固安的地域文化之中。为适应北方冬季多风雪的气候,保留传统坡屋顶的实用功能,采用不对称坡屋顶结合中心水平构造带的设计。倾斜的屋顶高效排水排雪,不对等的坡面打破视觉平衡,形成动态而富有张力的建筑体量,凸显个性与现代感。整座建筑以水平舒展的姿态融入乡野,如同从土地自然生长,消弭了现代建筑与自然的隔阂。
空间布局上,将建筑拆解为三个紧密关联的模块:承载卧室与餐客厅的主居住模块、作为枢纽的庭院模块,以及容纳车库与储藏的辅助模块。三模块围绕庭院形成环绕格局,实现功能分区的同时,强化家庭互动——孩子在庭院玩耍的身影可被客厅内的家人轻易捕捉,家人围坐闲谈时,风与草木香气自然渗入。
这一布局是对传统“合院”的当代演绎:以半开放格局替代封闭院落,既保留围合带来的安全感,又适应北方干燥多风的气候,促进室内外通风采光。一层以实墙围合保障私密,墙上的窗洞如取景框,将庭院绿意与光影筛入室内,实现风景的自然渗透。
入口处的内退设计更是暗藏巧思,形成专属过渡空间。这一设计如同家递出的第一份温暖问候,消解了入户的仓促感,让归家的仪式感在踏进门之前便已悄然酝酿。从形态到布局,建筑完成了在地性与现代性的共生,实现了功能需求与美学表达的统一。
外墙砖 | 唯美
建筑立面以“一层面砖筑基,二层涂料筑梦”为核心逻辑,让材质与色彩成为对话土地与情感的媒介。设计师之所以选用红砖外立面与粉灰色的外墙色彩来进行搭配,灵感源于他们对当地环境色彩的一种观察,红色的砖墙,红色的屋顶,粉色的晚霞。他们希望能将这种环境色彩进行抽象提纯。不是复制,而是对地域色彩基因的一种 “记忆性表达”。
建筑立面选材兼顾气候适应与情感表达。一层采用坚固面砖抵御北方风沙雨雪,局部缀以取自土地底色的红砖,既唤醒地域记忆,又减轻了体量厚重感。二层运用低饱和粉色涂料,褪去甜腻,营造复古柔和氛围,呼应业主对温暖居所的向往。其浅色调夏季反射强光,与下层硬朗质感对比,令建筑更显轻盈。这一色彩组合突破了乡村建筑的常见色调,以温暖视觉张力融入乡野,成为兼具识别度与情感温度的家之标志。材质对话亦隐喻家庭轨迹:粗粝面砖唤起乡村记忆,温润涂料对接都市审美,恰似“从乡野走出,又向生活归巢”的生活缩影。
轻自然:低干预设计,让自然成为“空间主角”
涂料 | 立邦、地面砖 | 白兔瓷砖
设计师以“尊重自然、低干预”为核心原则,摒弃对宅基地原有地形的生硬改造,设计师遵循了北方传统的合院式设计,同时进一步丰富了空间的层次,将院落和室内相互融合,设计了6处庭院,每处庭院的呈现方式也不尽相同,而业主的生活、居住区域,就围绕着这6个庭院铺陈开来。
前院作为入户的第一道空间,承担着“氛围转换”的关键作用。从乡野道路步入这片专属区域,喧嚣被自然隔绝,归家的仪式感油然而生,自然衔接外部环境与家庭生活。
中院采用半开放设计,巧妙串联起客餐厅与西厨两大核心生活空间,设计时特意将场地内的原生老树完整保留,打造出独一无二的“树下客厅”。这棵老树不仅是庭院的视觉焦点,更将随着家庭生活的沉淀,成为承载美好回忆的情感符号。
中院的户外平台配备了桌椅与火炉,周末家人围坐在此聚餐烧烤,孩子在院中肆意嬉戏,家长在室内透过玻璃便能清晰捕捉室外动态,完美兼顾了亲子互动与安全看护的双重需求。
门窗 | 米兰之窗、SLEEK
针对华北地区冬季严寒、夏季酷暑的气候特征,建筑融入了被动式节能设计,实现生态与实用的平衡。南向采用大面积玻璃窗,最大化引入自然光以实现采光蓄热,为冬季室内增添暖意;北向则减少窗洞口开启,有效阻隔寒风入侵,降低热量流失。
屋顶铺设的太阳能板为建筑提供稳定电力支持,大幅减少了对空调、暖气等设备的依赖,不仅让室内在冬夏两季都能维持舒适温度,更显著降低了长期使用成本,践行绿色居住理念。
设计师充分考量三口之家的“成长型需求”,打破传统住宅空间的固化局限,通过预留可变性设计,让建筑能够随家庭生命周期的推进同步“生长”,始终贴合家庭的实际使用需求。
动静分区:一层烟火,一层静谧
室内的部分设计师希望打破传统空间的边界,以 “通透联动、分区明确”来规划平面布局,让每个区域既独立成章,又相互呼应。
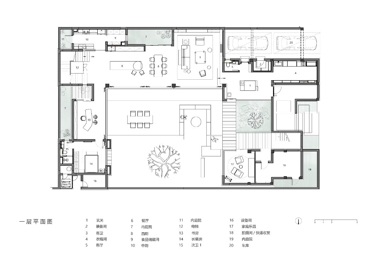
房屋以功能区分为上下两层空间,一层为入户玄关、内庭院、客餐厅、中西厨、花房、书房和老人房,适合聚会、共享,二层主要为休息区域,包含:主卧、衣帽间、主卫、茶室、健身房,是更为私密区域。
入口玄关、衣帽间作为空间的第一序章,承担着过渡与收纳的双重使命。
边几、休闲椅、沙发 | JIJIAN几间家居
核心生活区
客餐厅以开放式的布局消弭了空间的界限,使得风可以自由穿梭,也让家人间的互动毫无阻碍。室内的色调与建筑的外立面区分开,以中性色系的米白、浅灰、原木棕表达舒适柔和的氛围。光滑的大理石茶几冷冽精致,棉麻质感的沙发柔软亲和,木质柜体温润自然,不同材质的碰撞与融合,在触觉与视觉上形成丰富的层次。地面的编织地毯则为空间增添了一份细腻的温度,弱化了硬质地面的冰冷感。
米色的沙发围合出日常休憩的场景,闲暇时在此静享阅读时光,或是与家人分享彼此的日常,都十分惬意。木质收纳柜兼具实用与美观,里面陈列着主人的藏品与书籍,每一件物品背后都有着独特的故事。墙上的艺术挂画为空间增添了艺术氛围,让客厅不止是生活的场所,更成了艺术的小小展厅。壁炉在秋冬季节散发着温暖的火光,为客厅镀上一层温馨的滤镜,让这里成为家人团聚、朋友小聚的暖心角落。
客餐厅与分布在各个区域的内庭院形成开放式联动格局,庭院的自然景致穿透玻璃界面,让室内外空间相互渗透。
餐桌、餐椅 | JIJIAN几间家
餐厅以跨层的挑高形成通透的视觉感,自然垂落的吊灯为空间赋予一丝艺术和温暖的氛围。
中西厨 | FotileStyle方诗得、电器 | COLMO
设计师为热爱烹饪美食的女主人打造了一处开敞式的西式厨房,超大面宽的岛台便于准备菜品,木纹拼花的饰面设计极具设计感,台面上的圆形转盘可自由旋转,满足不同的摆放需求。岛台下方集合了蒸烤箱、洗碗机及收纳空间,也为女主人在准备美食时提供便利。
客餐厅
通过大面积落地玻璃移门打通室内外空间,让自然光与户外景致自然渗透,模糊了客餐厅与露台的边界。
电梯 | 弗朗茨电梯
设计师考虑到后续有老人同住,在此设置了电梯和楼梯,为往返上下楼提供便利。
木作 | TATA、休闲椅 | JIJIAN几间家居、灯具 | 摩根花灯
书房中浅木色的定制收纳墙占据了视觉中心,规整地收纳着书籍与艺术摆件,每一格都藏着主人的兴趣与故事。原木色的长桌简约大气,闲暇时,可在此阅读,感受内心的宁静;或是伏案处理工作,让休闲度假与日常工作两不误。桌上的绿植是空间的活力点缀,让木质的沉静中多了一丝自然的鲜活。
二楼走廊以极简留白营造松弛的过渡氛围,借助自然元素柔化空间的冷硬感,让功能性走廊兼具自然生机。二楼主要为私密居住空间,希望每个家庭成员都能找到自己的个性化、舒适性、安全性领域。
地板 | 圣象地板、木作 | TATA
主卧
如同将度假酒店搬回了家,环绕式的设计让动线功能更为清晰。以自然温润的木质元素贯穿始终,细腻的木质肌理为空间呈现出宁静平和的基调,带来一种包裹身心的疗愈氛围。卧床居于房间中央,搭配浅米色柔软床品,两侧摆放着简约台灯,入夜后灯光亮起,便成为睡前阅读或静思的温馨角落。
空间布局兼顾功能与美感:一侧设置了木质书桌与简约座椅,构成一个舒适的工作区。另一侧的休闲区则倚靠大幅玻璃窗,将室外景致引入室内,让人在休憩时能远眺自然、放松身心。墙面上的艺术灯具造型别致,赋予空间独特的艺术气息,使主卧不仅是安眠之所,更成为滋养精神的美学场域。
木作 | TATA
女孩房以开放式的一体化设计,很好地延展了空间的界面与采光,也给孩子营造了一个粉色浪漫的的童年。连通的卫浴间以透明玻璃隔断,干湿分离,另设了推拉移门,可以将卫生间完全隐藏。房间里的每一处装饰,从艺术挂件到地毯,都透着精致与用心,既满足了女孩对童话感的向往,又兼顾了成长过程中的实用需求,打造出一个可以肆意做梦、安心成长的温柔角落。
墙面是柔和的浅粉色,像给空间裹上了一层甜蜜的糖衣。独特造型的床头软包温馨又别致,上方悬挂的编织吊灯如童话里的魔法装饰,轻轻摇曳间仿佛能点亮少女的绮梦。一侧的休闲区,圆润的沙发与小桌色彩清新,是女儿和朋友分享秘密、摆弄玩偶的小天地。
龙头洁具、镜柜台盆 | 玫瑰岛
落地大窗户将室外的阳光与绿意引入,让整个空间明亮又充满生机。另一侧的学习区配备整洁书桌与舒适座椅,墙面的置物架可陈列书籍与心爱之物,陪伴她在知识海洋中探索成长。
设计师黄全与刘姮以“在地共生、轻自然、全生命周期”为核心理念,为这户从北京回归固安的三口之家重塑了理想居所。他们从建筑本体着手,通过模块化布局、嵌套式庭院和弹性空间设计,既回应了北方乡村的气候特征,又满足了家庭成长需求。建筑以红砖与低饱和粉墙对话土地记忆,以现代手法重构坡屋顶与合院格局,将自然光、老树与四季景致融入日常生活。以精细的空间规划、考究的材质美学,让乡村私宅既呈现出自然肌理,又具有当代好房子的舒适与格调,重新定义了乡村人居标准,满足家庭多元需求和精神需求,这个庭打造出兼具都市舒适与乡村诗意的栖居之地。
ABOUT PROJECT
项目信息
项目名称:梦改第12期河北廊坊项目
项目地址:河北省廊坊市固安县
设计机构:WJID 维几设计
主创设计:黄全、刘姮
项目面积:500.67㎡
完工时间:2025.11
项目施工:北京中盛国业建设有限公司
涂料:立邦
门窗:米兰之窗、SLEEK
智能:易来智能
地板:圣象地板
墙地砖:白兔瓷砖
木作:TATA
中西厨:FotileStyle方诗得
洁具龙头:玫瑰岛
给排水:吉博力
机电:约克
太阳能:海尔新能源
家具:JIJIAN几间家居
电器:COLMO
特别鸣谢:JIJIAN几间家居、TATA、方太、易来智能、圣象地板、海尔新能源、米兰之窗、SLEEK、白兔瓷砖、企一照明、玫瑰岛、COLMO、吉博力、约克、立邦、弗朗茨电梯、瀚振家具、摩根花灯、沃潇灯饰、富立地毯、帛言窗帘、十八几花木研究所(排名不分先后)
项目摄影:BIJISPACE边界
项目视频:HUUUASTUDIO 花生工作室
WJID PROJECTS
客服
消息
收藏
下载
最近


















































