查看完整案例

收藏

下载

翻译
FOUR-ROOM APARTMENT
Place: Moscow, Russia | 2025
Area: 139 m2
The design project is executed in a contemporary style, reflecting current trends and emphasizing functionality, simplicity, and aesthetic harmony. The main idea is to create a space that combines clean lines and minimalism, creating a cozy and modern atmosphere.
____
Дизайн - проект выполнен в стиле контемпорари, который отражает современные тенденции и акцентирует внимание на функциональности, простоте и эстетической гармонии. Основная идея заключается в создании пространства, которое сочетает в себе чистые линии и минимализм, создавая уютную и современную атмосферу.
Master BedroomNeutral palette, brass lighting accents, soft textile layers for tactile comfort.
Мастер спальняНейтральная палитра, латунные акценты освещения, мягкие текстильные элементы для тактильного комфорта.
Living RoomFloating TV panel, layered lighting, soft textiles, accent brass geometry.
Гостиная
Подвесная телевизионная панель, многоуровневое освещение, мягкий текстиль, акцентная латунная геометрия.
Lunch Group
Accent chairs paired with brass elements add brightness and mood.
____
Обеденная группа
Акцентные стулья в сочетании с латунными элементами добавляют яркости и настроения.
Kitchen AreaCombination of matte cabinetry with warm illuminated glass modules and marble texture.
Зона кухниСочетание матовых шкафов с теплой подсветкой стеклянных модулей и мраморной фактуры.
Children’s Room
In our case, the gender of the unborn child was unknown, so we chose soft, neutral tones with wood accents. The room is perfect for either a boy or a girl.
____
Детская комната
В нашем случае пол будущего ребёнка был неизвестен, поэтому мы выбрали мягкие, нейтральные тона с деревянными акцентами. Комната идеально подойдет как для мальчика, так и для девочки.
Work Room
The room combines a work and sewing area. The client works from home and enjoys sewing.
____
Рабочая комната
Комната совмещает в себе рабочую и швейную зоны. Клиентка работает из дома и любит шить.
Master bathroom
Matte and textured facades combined with marble and brass.
____
Главная ванная комната
Матовые и фактурные фасады в сочетании с мрамором и латунью.
Kitchen-living Room
The overall concept of the kitchen-living room. The room is divided into three zones using furniture and lighting, keeping it spacious.
____
Кухня-гостиная
Общая концепция кухни-гостиной. Комната разделена на три зоны с помощью мебели и освещения, что позволяет сохранить простор.
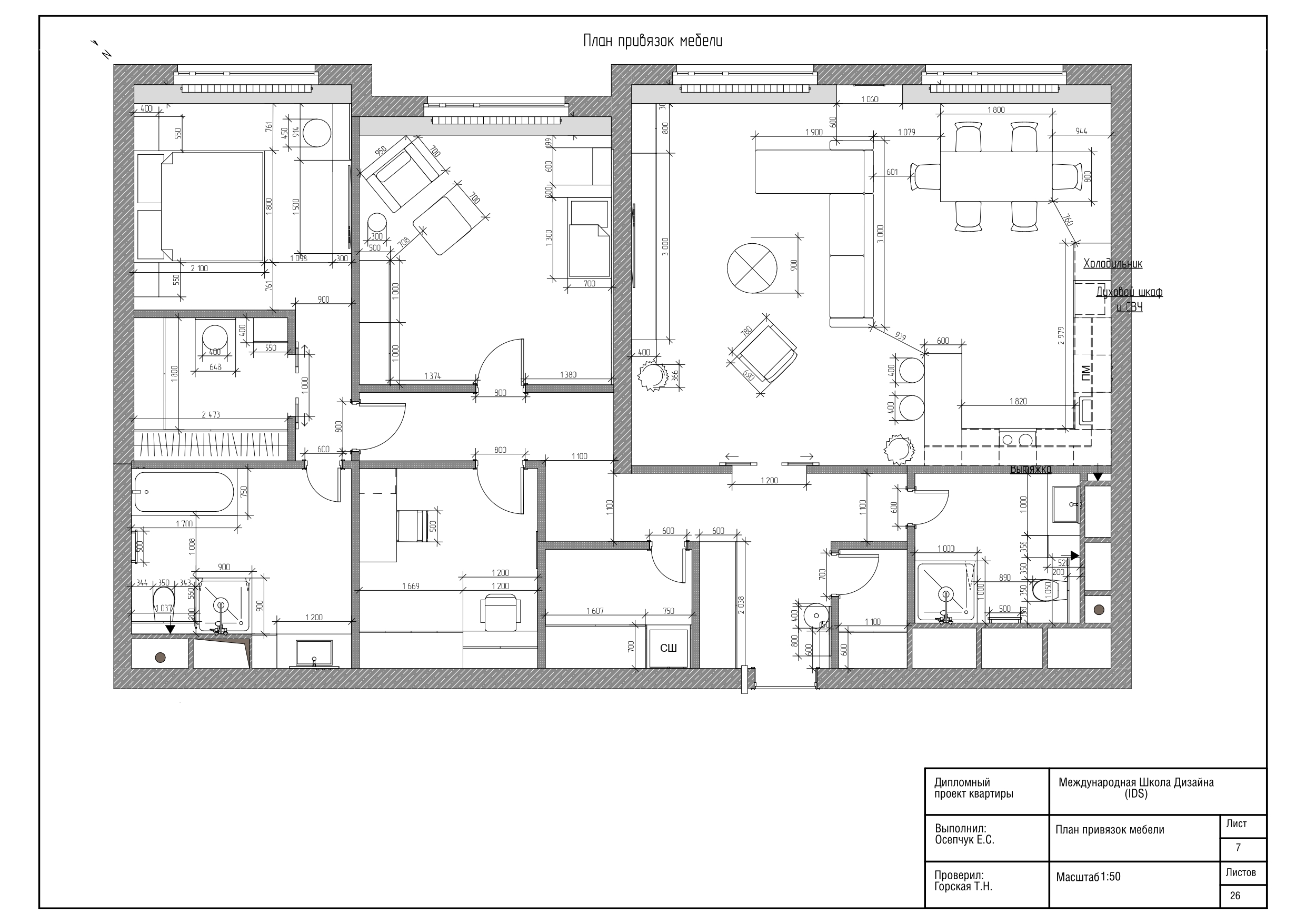
General plan of furniture arrangement and selected materials for the entire apartment.
____
Общий план расстановки мебели и выбранных материалов для всей квартиры.
The original version, an apartment with an open layout, is divided in the middle by a load-bearing wall. Первоначальный вариант — квартира со свободной планировкой — разделена посередине несущей стеной.
Designed layout with furniture arrangement.
Спроектированная планировка с расстановкой мебели.
Kitchen layout
____
Развертка кухни
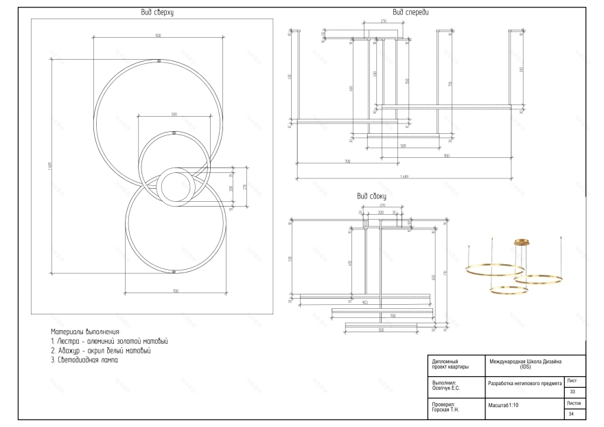
Development of a non-standard part, in this case a chandelier. Разработка нестандартной детали, в данном случае люстры.
THANK YOU FOR WATCHING!
DESIGNER INTERIOR: EKATERINA OSEPCHUK / WHATSAPP/ TELEGRAM
客服
消息
收藏
下载
最近


















