查看完整案例

收藏

下载
“空港云”展示中心坐落于成都双流机场旁的运动公园内,是一座融合科普、体验与互动功能的航空主题科技展馆。由于场地南侧距离T1航站楼跑道仅约300米,该展示中心亦成为公众观赏飞机起降壮观场景的绝佳观景平台。建筑概念以“云”为意象灵感,通过对城市空间环境的回应,在“云起”、“云落”的形态意象与工程创新中,塑造具有区域标志性的建筑形体与场所体验。
The “Konggang Cloud” Exhibition Center is located in the Sports Park adjacent to Chengdu Shuangliu International Airport. It is an aviation-themed science and technology museum integrating popular science, experience and interactive functions. Since the southern side of the venue is only about 300 meters away from the runway of Terminal T1, the exhibition center has also become an excellent viewing platform for the public to watch the spectacular scenes of airplanes taking off and landing. The architectural concept draws inspiration from the imagery of “clouds”. By responding to the urban spatial environment, it creates a regionally iconic architectural form and site experience through the morphological imagery of “cloud rising” and “cloud falling” as well as engineering innovations.
▼项目鸟瞰,Overview of the site © 404NF STUDIO
▼项目概览,Overview of the site © 404NF STUDIO
云起
Cloud Rising
抬升 / 塑地标建筑形态
Lifting / Shaping Landmark Architectural Form
本项目地处成都市双流区临空商务组团,作为双流国际机场站后片区的核心发展板块与门户形象展示区,具有重要的城市区位价值。在项目启动初期,空港商务区整体建设尚处初步发展阶段,周边建成环境以形态各异的低层建筑为主,空间形态较为零散,景观环境复杂。同时,用地紧邻的城市主干道具有较大尺度,对场地形成较强的空间压迫感。▼周边建筑形态分析,Surrounding built environment analysis © 西南设计院
This project is situated in the Airport Business Cluster of Shuangliu District, Chengdu. As a core development sector and a gateway image display area in the post-terminal zone of Shuangliu International Airport, it boasts significant urban location value. At the initial stage of the project, the overall construction of the Airport Business District was still in its preliminary development phase. The surrounding built environment was dominated by low-rise buildings of various forms, with a rather fragmented spatial pattern and a complex landscape setting. Meanwhile, the urban arterial road adjacent to the site is of a large scale, exerting a strong sense of spatial oppression on the venue.
▼从公园看向展厅,View of the exhibition center from the park © 404NF STUDIO
为在有限的用地范围内打造具有标志性的展示空间,使其从周边建成环境中脱颖而出,并进一步强化区域城市发展的核心意象,设计采取了“抬升”的形体策略。通过将展厅主体结构抬高至11米标高,使其凌驾于周边环境之上,形成沿城市中轴线方向上的视觉焦点,有效提升了建筑的空间昭示性与地标感。
To create a landmark exhibition space within the limited land area, making it stand out from the surrounding built environment and further strengthen the core image of regional urban development, the design adopts a “lifting” form strategy. By elevating the main structure of the exhibition hall to an elevation of 11 meters, making it tower over the surrounding environment, a visual focus along the direction of the urban central axis is formed, which effectively enhances the spatial prominence and landmark sense of the building.
▼提升建筑的地标感,Enhances the landmark sense of the building © 404NF STUDIO
消隐 / 造活力地景公园
Obscuring / Creating a Vibrant Landscape Park
在“抬升”的形态生成逻辑下,设计通过地景化策略对单层裙房基座进行视觉消隐,将其转化为覆土草坡形态,形成舒缓起伏的开放式市民公园。有机形态的覆土基座在南北两侧围合出市民广场与多处景观庭院,其流畅轮廓与周边绿地系统自然衔接,延续了城市公园的肌理。草坡下部空间整合了主题书店、展廊、轻食餐饮与咖啡休闲等复合功能,共同构建了一处服务于市民的文化休闲聚落。基座的消隐处理进一步强化了主体展厅的视觉表现力,而地景化的草坡屋顶不仅引导观景、休憩与集会等公共行为,更通过承载露天电影、夏日音乐会等城市活动,将建筑的“第五立面”转化为具有社会凝聚力的活力公共节点。
▼场地规划,Site analysis © 西南设计院
Under the form-generation logic of “lifting”, the design employs a landscape-oriented strategy to visually obscure the single-story podium base, transforming it into a grass-covered slope shape and creating a gently undulating open public park. The organically shaped earth-covered base encloses a public square and multiple landscape courtyards on the north and south sides. Its smooth contours naturally connect with the surrounding green space system, continuing the texture of the urban park. The space under the grass slope integrates mixed functions such as a theme bookstore, exhibition gallery, light food dining, and coffee leisure, jointly forming a cultural and leisure hub serving the citizens. The obscuring treatment of the base further enhances the visual expressiveness of the main exhibition hall. Moreover, the landscape-oriented grass slope roof not only guides public behaviors such as viewing, resting, and gathering but also, by hosting urban activities like open-air movies and summer concerts, transforms the “fifth facade” of the building into a vibrant public node with social cohesion.
▼草坪上活动的市民,Citizens active on the lawn © 404NF STUDIO
云中漫步 / 沉浸式观展游线
Strolling in the Clouds / Immersive Exhibition Viewing Tour Route
空间动线的核心策略,在于构建内外场景的持续性对话。设计以“云中漫步”作为沉浸式游走路径串联各功能节点,使观展行为与城市景观的体验紧密交织。主展厅由全视野CAVE数字沙盘和开放式展区两大功能构成,不同于常规展厅的“黑盒子”空间,整个展陈设计结合外围城市风光与中央庭院景观,充分融入自然光影,使参观者在观展行进过程中,仿若置身云端。建筑二层及夹层设置的观景平台,作为路径中的重要节点,在观展流线中巧妙植入驻足远眺飞机起落的间歇时刻,强化了场所的独特禀赋。展厅内部借由流动的立体环廊,营造出一个融合展览、交流与表演的沉浸式场所。
The core strategy of the spatial circulation lies in establishing a continuous dialogue between internal and external scenes. The design adopts “strolling in the clouds” as an immersive walking path to connect various functional nodes, closely interweaving the experience of exhibition viewing with that of urban landscapes. The main exhibition hall consists of two major functions: a full-view CAVE digital sand table and an open exhibition area. Unlike the “black box” space of conventional exhibition halls, the entire exhibition design integrates the peripheral urban scenery and the central courtyard landscape, fully incorporating natural light and shadow. This allows visitors to feel as if they are wandering in the clouds while moving through the exhibition. The viewing platforms set up on the second floor and the mezzanine of the building, as important nodes in the path, subtly intersperse moments of pausing to look out at airplanes taking off and landing within the exhibition viewing flow, enhancing the unique endowment of the venue. Inside the exhibition hall, a flowing three-dimensional circular corridor creates an immersive space that integrates exhibition, communication, and performance.
▼展厅室内视角,interior view of exhibition center © 404NF STUDIO
浮云细雨 / 抽象化形态演绎
Floating Clouds and Drizzle / Abstract Form Interpretation
如何体现“云朵”的轻柔漂浮之势,是造型设计的关键。外立面设计将二层景观大平台纳入整体考量,运用横向金属百叶系统强化建筑的水平延展性。基于参数化方法,设计对云朵形态进行图像与数据之间的转译,并据此控制百叶板的出挑宽度,使其沿立面呈现细腻的渐变韵律。这种虚实交织的构造处理,以抽象的建筑语言重新诠释了“云”的轻盈与漂浮感。与此同时,横向金属百叶也发挥着积极的遮阳作用,有效降低太阳辐射热,提升建筑的整体节能性能。▼设计概念,Design diagram © 西南设计院
How to embody the gentle floating posture of “clouds” is the key to the form design. The facade design takes the large landscape platform on the second floor into overall consideration, and adopts a horizontal metal louver system to enhance the horizontal extension of the building. Based on parametric methods, the design translates the cloud form between images and data, and accordingly controls the overhanging width of the louver panels, making them present a delicate gradient rhythm along the facade. This interplay of solid and void in structural treatment reinterprets the lightness and floating sense of “clouds” in abstract architectural language. Meanwhile, the horizontal metal louvers also play an active role in sunshading, effectively reducing solar radiant heat and improving the overall energy-saving performance of the building.
▼雪山与展厅,Snow mountains and the exhibition center © 刘伟
为强化二层主展厅的漂浮感,设计对入口架空区的支撑体系进行“化整为零”的视觉处理:将承重钢柱分散布置,并与装饰杆件整合,以此削弱结构体量感。这些零星错落的杆件,最终成为立面构成中的积极要素,隐喻云层之下疏落的雨丝,赋予技术构件以诗意的表达。
To enhance the sense of floating of the main exhibition hall on the second floor, the design adopts a “breaking the whole into parts” visual treatment for the supporting system in the overhead entrance area: the load-bearing steel columns are arranged in a scattered manner and integrated with decorative rods, thereby reducing the sense of structural mass. These scattered and irregular rods eventually become positive elements in the facade composition, metaphorically representing the scattered raindrops beneath the clouds, endowing the technical components with a poetic expression.
▼漂浮感的屋檐,Floating eave © 404NF STUDIO
云落 Cloud Falling
落地完成度控制 Control over the Degree of Implementation Completion
外立面材料的控制核心,在于诠释“云”的洁白与润泽质感,每一种材料的特性都直接决定了建筑整体意象的最终呈现。为强化云层水平延展的漂浮态势,外层金属幕墙采用渐变的横向挑板系统,最大出挑距离达8米。为整合排水功能,多数板材采用双曲面造型,相较于常规铝板,铝复合板在大跨度条件下更能保证板面的平整度。每块挑板的端部收边均以半圆弧截面铝型材处理,进一步强化了“云朵”圆润的形态特质。▼细部节点,details drawing © 西南设计院
The core of controlling facade materials lies in interpreting the whiteness and moist texture of “clouds”; the characteristics of each material directly determine the final presentation of the building’s overall imagery. To emphasize the floating posture of clouds’ horizontal extension, the outer metal curtain wall adopts a gradient horizontal cantilever plate system, with a maximum cantilever distance of 8 meters. To integrate drainage functions, most panels feature a double-curved shape. Compared with conventional aluminum plates, aluminum composite panels can better ensure the flatness of the panel surface under large-span conditions. The edge of each cantilever plate’s end is treated with aluminum profiles with a semi-circular cross-section, further enhancing the rounded morphological characteristics of “clouds”.
▼空中观景台,Sky viewing platform © 404NF STUDIO
主展厅玻璃选用彩釉超白玻,使其与白色金属挑板在视觉上融为一体。这些釉点依据立面线条分层,自下而上按5%至40%的梯度,设置八种疏密变化,形成单向的虚实渐变效果。这一策略在保障室内观景视野不受遮挡的同时,营造出细腻而柔和的视觉过渡层次。
The glass used in the main exhibition hall is colored glazed ultra-clear glass, allowing it to visually blend into one with the white metal cantilever plates. These glaze dots are layered according to the facade lines, with eight variations in density set from bottom to top at a gradient of 5% to 40%, creating a one-way gradient effect of solid and void. This strategy, while ensuring unobstructed viewing visibility from the interior, creates delicate and soft layers of visual transition.
▼层层变化的形体,Layered and shifting forms © 404NF STUDIO
为最大限度地削弱板材分缝对整体立面的视觉干扰,设计借助参数化方法,对玻璃与铝复合板的分格进行统一规划,确保二者模数对应。此外,在充分考量生产加工、施工周期与造价等实际因素的基础上,通过各标高不同曲率板面的模数化控制,最终实现了建筑效果、构造逻辑与工程经济性之间的平衡。
To minimize the visual disruption caused by panel joints to the overall facade, the design employs parametric methods to conduct unified planning on the grid divisions of glass and aluminum composite panels, ensuring their modular correspondence. Furthermore, on the basis of fully considering practical factors such as production and processing, construction period, and cost, through the modular control of panel surfaces with different curvatures at various elevations, a balance between architectural effect, construction logic, and engineering economy has finally been achieved.
▼夜景,Nightview © 404NF STUDIO
“空港云”展示中心超越了传统展陈建筑的范畴,它作为一处融合文化传播与日常生活的城市公共客厅,成功植入了市民的日常图景。项目投入运营后,已成为广受当地居民喜爱的休闲目的地,吸引人们于此观览飞机起降、进行亲子活动与日常散步游玩,焕发出持续的城市活力。与此同时,对于从T1航站楼起飞的旅客而言,当从高空俯瞰,这朵静卧于跑道尽头的“云”,以其柔和的形态为大地景观增添了诗意的一笔,仿若飞行的诗意注脚,用柔和的曲线告诉每个旅人:从此地出发,皆是轻盈的旅程。
The “Konggang Cloud” Exhibition Center goes beyond the scope of traditional exhibition buildings. As an urban public living room integrating cultural communication and daily life, it has successfully embedded itself into the daily life landscape of citizens. Since its operation, the project has become a popular leisure destination among local residents, attracting people to watch planes take off and land, engage in parent - child activities, and take daily walks, exuding sustained urban vitality. Meanwhile, for passengers taking off from Terminal T1, when viewed from high above, this “cloud” lying quietly at the end of the runway, with its soft form, adds a poetic touch to the landscape of the earth. Like a poetic footnote to the flight, it uses its soft curves to tell every traveler: every journey starting from here is a light and graceful one.
▼总平面图,Master plan © 西南设计院
▼首层平面图,First floor plan © 西南设计院
▼草坪层平面图,Lawn level plan © 西南设计院
▼二层平面图,Second level plan © 西南设计院
▼二层夹层平面图,Second floor mezzanine plan © 西南设计院
▼立面图,Elevation © 西南设计院
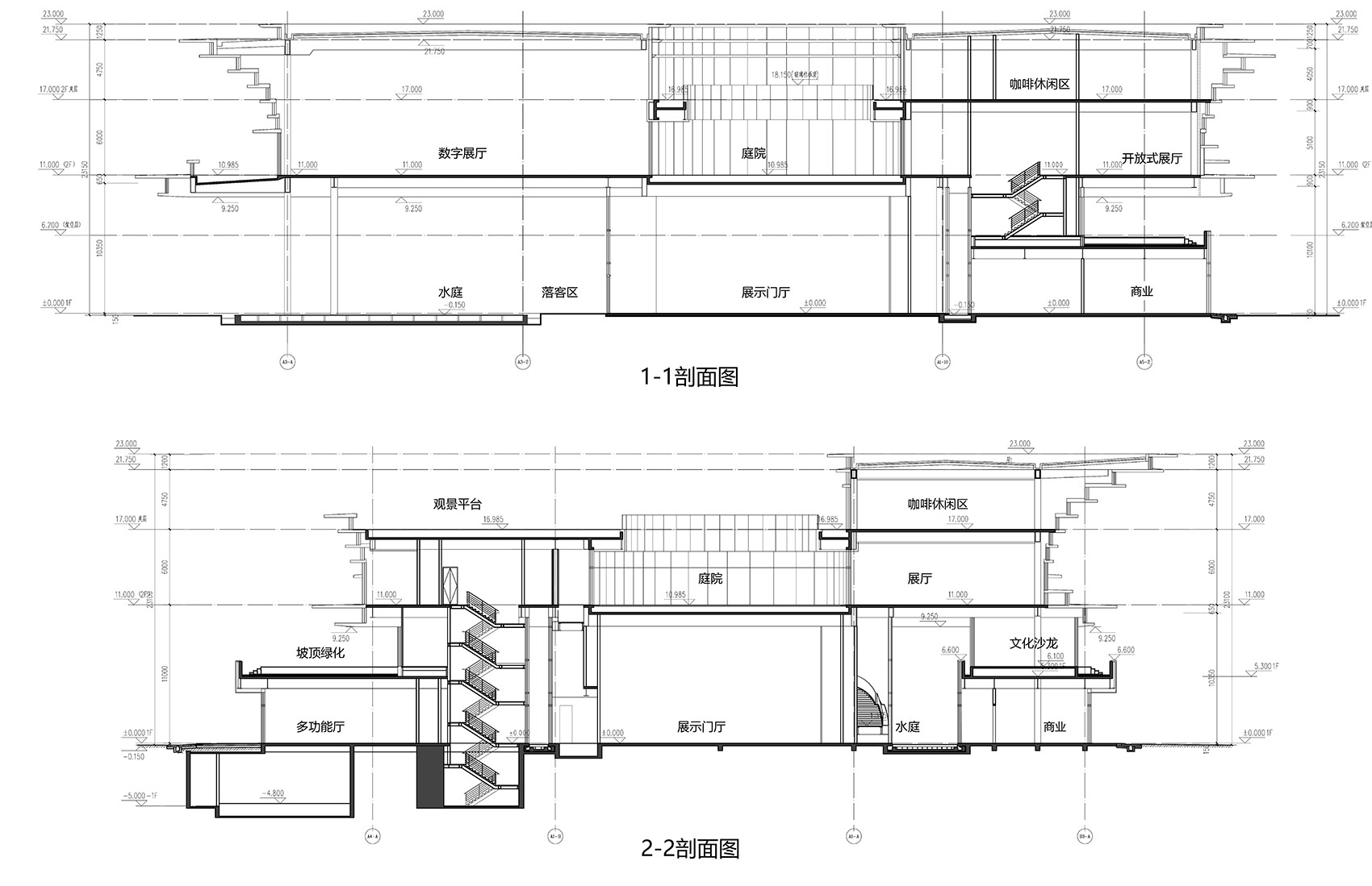
▼剖面图,Section © 西南设计院
项目完整信息
项目名称:”空港云”展示中心
项目类型:建筑
项目地点:四川成都
建成状态:建成
设计时间:2019年6月-2019年11月
建设时间:2019年12月-2021年6月
用地面积:38180平方米
建筑面积:12159平方米
设计单位:中国建筑西南设计研究院有限公司
设计团队:中国建筑西南设计研究院有限公司郑勇工作室、设计九院
设计总负责人:郑勇、肖迪佳
完整名单:
建筑专业:陈艳妍、李国熊、金秋平
结构专业:蒋朝志、王诺思、曾学悠
给排水专业:胡永基
暖通专业:张立文、邱灏
建筑电气专业:梁维坤、张凯力
建筑智能化专业:关怀、罗伟航
幕墙专业:蔡红林、董兴斌、孟晓明
景观专业:刘乔、伍贤强、杨珺涵、周靖涛
建筑技术专业:邱雁玲、罗臣佑
造价专业:郑燕玮、杨婷婷、袁永超
摄影师:404NF STUDIO、刘伟
客服
消息
收藏
下载
最近


























