查看完整案例

收藏

下载
位于西安的三口三层阁楼住宅,以“纯粹“为设计基底,为家庭成员营造一个清爽有趣的共享居所。
A three-story townhouse for a family of three in Xi’an, designed with the principle of “purity” as its foundation, creating a refreshing and engaging shared living space for the family.
▼室内空间概览,Interior space overview @ Leo
▼一层从入户看至客厅,Sightline from the entry to the living room @ Leo
▼入户首先看到有洞洞板的展示区域,
Upon entering, one is first greeted by a display area featuring a perforated panel @ Leo
▼中间的廊道用来丰富动线,The corridor is designed to enrich the circulation path @ Leo
在纯白色空间中,置入由染色桦木板制作而成的体块,每面都具有有特定的功能,与白色部分搭配形成功能区域划分,即营造了空间的视觉效果,也让日常使用合理有效。
In the pure white space, stained birch plywood volumes are inserted, with each facet serving a specific function. Paired with the white surfaces, these volumes define functional zones, creating both a striking visual effect and ensuring practical, efficient daily use.
▼西厨区域,Western kitchen area @ Leo
▼二层望向厨房,Second floor view to kitchen @ Leo
▼中厨,Chinese kitchen @ Leo
建筑本身有一个采光天井,将部分楼板拆除后将天光引入岛台,得到舒服的自然光照。
The building features an interior light well. By removing a section of the floor slab, natural light is directed down to the kitchen island, achieving a comfortable level of natural illumination.
▼南向的钢琴收纳,Piano alcove @ Leo
▼一楼客餐厅,Ground floor living and dining area @ Leo
▼通往二层的楼梯,Stairs to second floor @ Leo
二楼围绕天井,将双卧室与衣帽间、盥洗室打通,并用移门分隔,在孩子年龄尚小的阶段与主卧联通,培养亲子关系互动,让三口之家没有“实墙“带来的隔阂。
The second floor is organized around the light well. The two bedrooms are connected to the walk-in closet and bathroom, with sliding doors providing flexible separation. While the child is still young, this area is linked to the master bedroom, fostering parent-child interaction and ensuring that physical walls do not create a sense of separation within the family of three.
▼小孩房与楼梯,Children’s room & stairs @ Leo
▼盥洗室,bathroom @ Leo
三层阁楼为共享娱乐空间,结合屋主三人兴趣喜好,设计大量开放式收纳。大家在相同的空间内各自做自己的事情,互不打扰,又能同时望向对方,是亲子关系最好的相处模式。
The third-floor loft serves as a shared entertainment space. Designed around the interests of the family of three, it features extensive open storage. This layout allows everyone to pursue their own activities within the same space without disturbance, while still being able to glance over at one another—representing an ideal model for parent-child bonding.
▼三楼阁楼概览,Third-floor loft overview @ Leo
▼书桌,Study table @ Leo
▼楼梯与天井,Staircase and Light well @ Leo
书桌墙面用软木装饰,也能将灵感保留在墙上,线性插座可以随意搭配,方便使用。
The wall behind the desk is clad in cork, which also serves as a surface for pinning up inspiration. Linear power tracks allow for flexible configuration of outlets, ensuring convenient access to power.
▼一层平面图,Ground floor plan @ 7F设计工作室
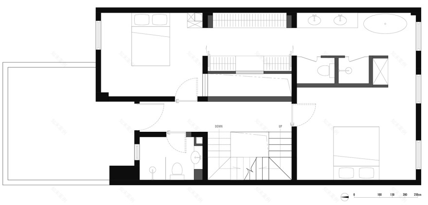
▼二层平面图,Second floor plan @ 7F设计工作室
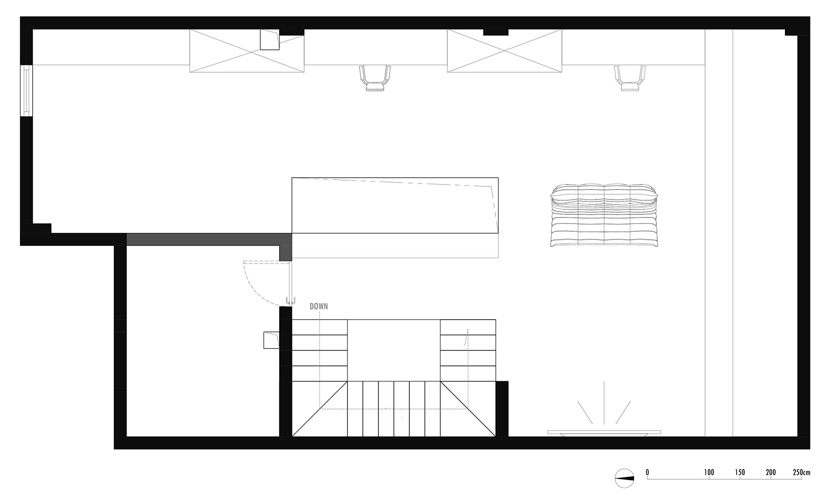
▼三层平面图,Third floor plan @ 7F设计工作室
项目名称:白的白宅
项目地点:陕西西安
设计方:7F设计工作室
设计师:王烨
摄影师:Leo
Project Name: House White
Location: Xi’an, Shaanxi
Interior:7F Design Studio
Interior designer: Wang ye
Photos: Leo
客服
消息
收藏
下载
最近




























