查看完整案例

收藏

下载
项目位于北京南五环沿线,希望打造兼具行业标杆意义与实际使用价值的高品质复合型地产项目。设计通过高度融入科技技术并具有前瞻性的使用与形式判断,通过功能模块的有机整合、形式设计的多元创新等方法实现设计目标。
有未来感的立面形式 摄影:建筑译者姚力
项目创新性地对城市办公与人才公寓并置,及其在公共使用与社群居住在功能与资源上的联动、共享进行探索,实践创造一个集合 “办公-生活-休闲” 于一体的高品质混合社区。
社区与办公间的园区花园 摄影:建筑译者姚力
项目以城市办公空间 “围合” 人才公寓,连续、舒展的水平向办公界面最大化与城市的互动,也自然成为社区与城市的 “隔离”,在繁华的城市中形成相对稳定、静谧的社区环境。办公与住区以大尺度共享绿地形成空间与功能上的过渡,两者高效、紧密相连又保持相对独立性。
办公连续的城市与园区立面 摄影:建筑译者姚力
建筑立面用材极简,以玻璃幕墙结合棕红色铝板打造整体形象。水平向办公空间结合室内使用需求,通过空间折角结合材料虚实的方式,形成有节奏、有标识性的竖向立面 “肌理”,有序 “打断” 横向尺度的连续性,改善连续长界面的视觉比例。人才公寓则以棕褐色铝板勾勒横向线条,增强公寓的舒展感。
简单的材质,简洁的设计手法,让园区具有形式印象的统一性及极强的现代美学质感。
办公立面细节 摄影:建筑译者姚力
住宅立面细节 摄影:建筑译者姚力
综合考虑北京夏热多雨、冬寒干燥的气候特征,项目办公楼通过多个拔风中庭的设置优化空间内通风,而围合的园区空间形式也自然形成冬季 “避风港”,园区植物选择本地耐候植物,改造生态微环境。
在技术上,建筑选用高气密、低能耗围护结构,借助透水铺装与节水器具高效利用水资源,再辅以高效暖通、能耗检测、太阳能热水系统,实现全节能适配。
社区环境 摄影:建筑译者姚力
项目为大型复合型园区项目的开发、建设、使用提供了可借鉴的设计方式。其高品质的落地与后续使用,将提升大兴西红门区域的城市形象与商务服务能级,进一步增强区域对高端人才和优质产业的吸引与集聚。
技术图纸
总平面图 © gad
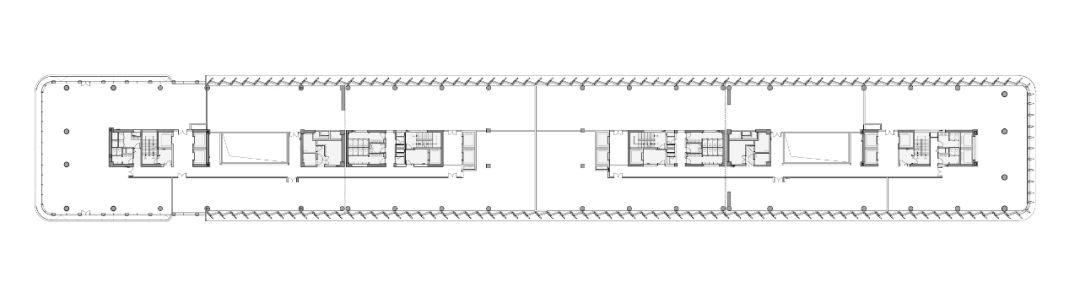
办公楼AB平面图 © gad
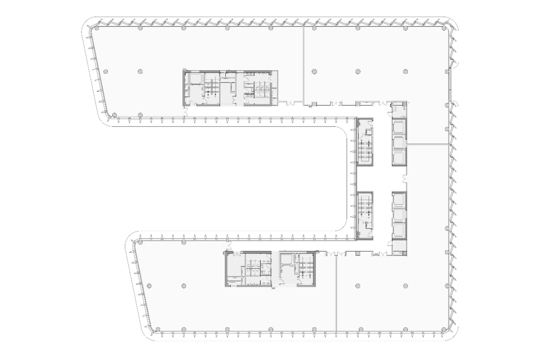
办公楼C平面图 © gad
住宅标准平面图 © gad
办公楼AB立面图 © gad
办公楼C立面图 © gad
住宅立面图 © gad
办公楼AB/住宅剖面图 © gad
住宅墙身大样 © gad
客服
消息
收藏
下载
最近


























