查看完整案例

收藏

下载

翻译
Architects:Memola Estúdio
Area:350m²
Year:2023
Photographs:Fran Parente
Manufacturers:Construverde,Deca,Labluz,Ladrilar,Lepri,Parquet União,Prataria Fontana,REKA,Raul Duarte,São Domingos Marmoraria
Category:Residential Architecture,Houses
Project Team:Vitor Penha, Simone Balague, Giuliana Bello, Renan Bussi, Nina Sivalli, Giovana Almice
Coordination:Veronica Molina
City:São Paulo
Country:Brazil
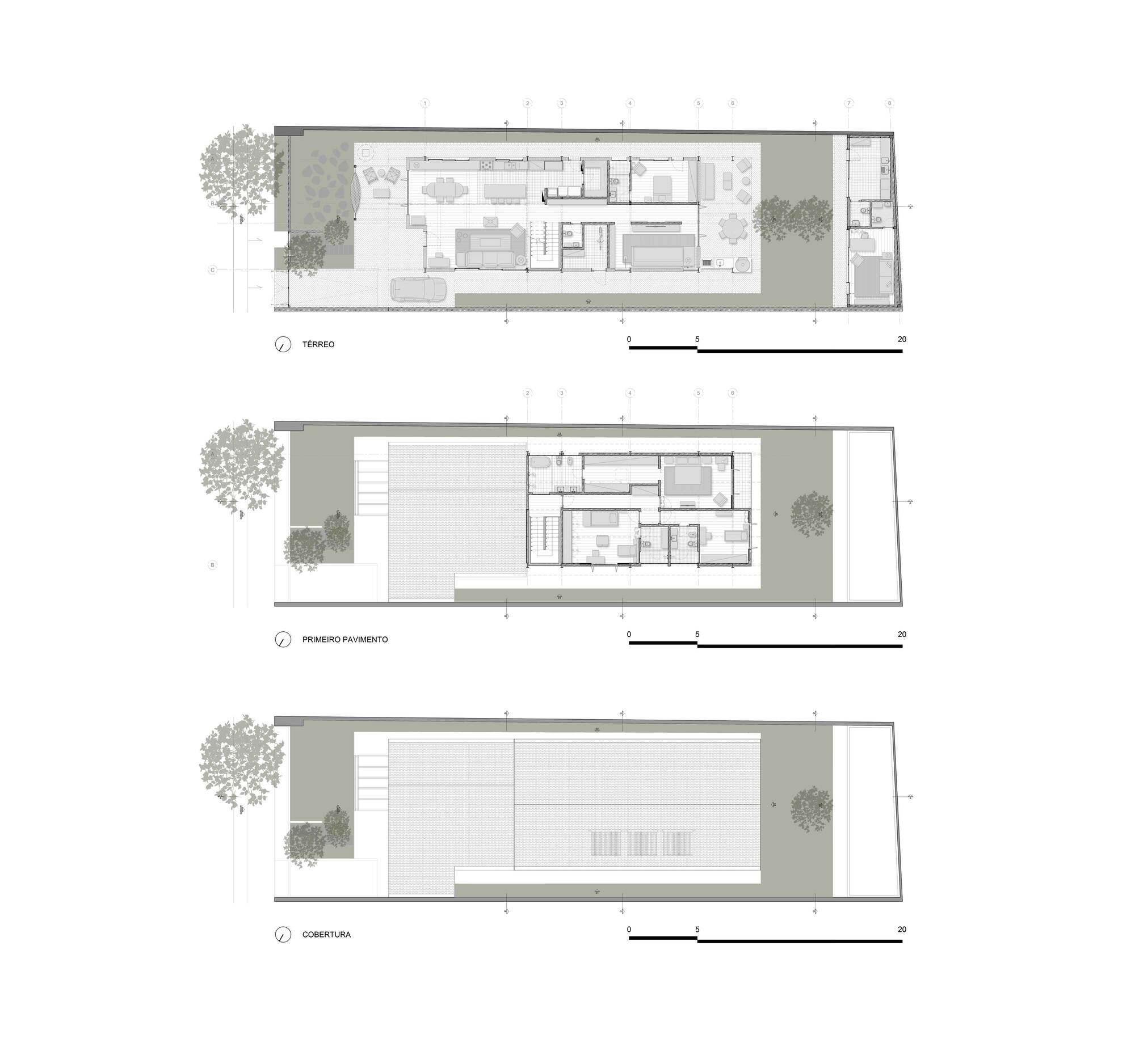
Text description provided by the architects. Initially envisioned as a renovation of an existing house, this project evolved into the creation of a new residence, located on the same lot as the old construction. The underlying question of the architectural concept, therefore, is the balance between the new and the memory of the qualities of the old, so as to make the new house a fulfillment of the clients' desires while also establishing a connection with the past life at the site. The challenge was to achieve more space and better conditions for the interaction of residents and their guests, both inside and outside the house, while maintaining familiarity with the land and its shelter.
A large integrated space encapsulates the spatial comfort brought by the design. Situated at the front of the building, it accommodates an open kitchen, dining room, and living area, all fully interconnected, yet each with its own character. The welcoming environment is already noticeable from outside the house, with its volume shaped by the gable roof standing out from the volume that follows it.
Natural light filters through the side façades, with floor-to-ceiling windows in the living area located between the entrance, which is adorned by a piano, and the metal staircase that leads to the upper floor of the bedrooms. On the opposite side, the tall window is positioned above the kitchen counter that runs the full depth of the space. Wooden sliding doors, specially designed for the project as well as all the frames, connect the kitchen to the front porch defined by a wooden pergola, welcoming conversations around meal preparations.
The absence of structural supports in the middle of the spacious front area enhances the integration of the environments, a quality harmoniously complemented by the materials: the walls are made of exposed brick, with wooden plank flooring predominating, whose tone is echoed in the ceramic of the kitchen floor. The fixed cabinetry, also designed by the studio, is primarily composed of wood, highlighting the linearity of the composition. This scenario is visually completed by the wooden trusses of the roof and the slats made from the same material, with an emphasis on the zenithal light coming through the skylight in the slope between the roof waters.
This level of spatial integration in the front half of the house contrasts with the careful compartmentalization of the environments in its rear section, on the ground floor, where the central corridor laterally sectors functional and intimate living areas. Noteworthy is the ample natural light flowing from the living area to the central corridor, coming from both the façade and above. The white wall next to the staircase, which signals the presence of the bedrooms on the upper floor, has a textured finish that softens the presence of the exposed metal structure.
At the back of the building, a cozy porch takes advantage of the shade created by the overlap of the bedrooms along the back façade. Brick flooring - just like in the front porch - wood, and the presence of vegetation qualify the space, from which the small apartment of the outbuilding at the end of the lot can be seen.
Project gallery
客服
消息
收藏
下载
最近























