查看完整案例

收藏

下载
01项目概况PROJECTOVERVIEW__
设计殿堂项目用地位于广州市白云区设计之都一期核心区AB2901062地块,用地北部为广州设计之都产业园区东西向最重要的景观中轴线云谷公园,西侧隔路为规划建设的大师工作室,东接建设中的景观绿化广场地块。设计之都规划定位为“创新引领的国际设计之都,活力多元的都会创意云谷”,设计之都一期包括了定制型办公总部、设计大厦、商业服务综合体、设计酒店、设计家公寓等各功能。设计殿堂是广州设计之都最重要的文化建筑,用于举行大型文化展览与文化沙龙的城市客厅。
项目总用地面积10157平方米,可建设用地面积7598平方米,总建筑面积26802平方米,其中地上13208平方米,地下13594平方米,容积率2.12,建筑基底面积3646平方米,建筑高度34.65米,绿地率20.11%,机动车停车数162个,非机动车停车位118个。
设计殿堂内除了展示设计之都园区规划成就的展厅和建筑模型博物馆展区外,也包含艺术剧院、临时展厅、设计企业办公活动区、设计产品发布中心、餐饮等功能,同时为设计之都的入驻企业和市民提供服务。设计艺术展览,设计产业、学术交流活动都可以在这里举行。设计殿堂与两侧的景观绿化广场和大师工作室相结合,成为广州设计之都最前卫最时尚的设计窗口,最亲民最具特色的会客厅。
02设计理念DESIGN CONCEPT__
简洁时尚 开放共享
建筑整体着重打造简洁大方的公共建筑形象,同时又结合设计之都的艺术气质,在设计中融入创新时尚的建筑元素;将公共建筑空间需求与岭南建筑特色完美结合,营造开放通透、共享互动的建筑空间。
方案生成
西北侧鸟瞰
大道至简 联结融合的公共建筑
设计殿堂以悬浮的“设计宝盒”姿态屹立在复杂的场地中,外形简洁大方,内部变化丰富,凸显殿堂的分量和核心地位。
大道至简的设计宝盒
打破原规划设计各自为政的地块设计,通过控制车速、道路景观化等方式将设计殿堂等公共建筑周边尽量步行化,让公共建筑首层与城市绿轴云谷公园相联通,形成一个更大的更整体的核心绿轴,让设计殿堂成为核心绿轴的一部分。
示意图
东北鸟瞰
开放通透的岭南建筑
主体体量架空悬挑,将首层二层空间打造为亲民友好的开放花园,成为市民共享的空间场所,将绿化轴线上的人流自然的引入建筑内部。纯洁的水面、架空的底层空间既适应了岭南气候特征,同时也创造了通透亲民的公共建筑形象。
示意图
首二层开放通透,将周边景观人流引入建筑。
时尚的晶体宝盒
建筑外轮廓是简洁的方体,但是当夜幕降临,内部大大小小的展览盒子结合绚丽的夜景灯光,变换成为一个具有设计感和互动感的“晶体宝盒”,悬浮在周边城市广场和公园之上,成为整个核心片区的视觉及活动焦点,为设计之都最重要的公共建筑打造强烈的时尚感和设计感。
夜晚变身灯光绚丽的时尚宝盒,共享互动的空中花园。
设计将底层通透开放的花园空间延续到上面“设计宝盒”体量中。在设计殿堂的实体展览盒子与朦胧通透的金属管幕墙立面之间穿插布置高低错落的花园平台,为市民的参观和休闲活动提供更丰富的空间体验,展厅与花园穿插,让市民在“花园”中观展。置身于不同高度、开放共享的花园平台上,在观展间隙舒适的休憩交流,背后是展厅,面前是阳光微风和城市美景,感受设计之都时尚气息,开放共享的空中花园为市民提供一种全新的观展体验。
示意图
共享互动的空中花园
艺术与技术结合的创新幕墙
为打造外部简洁大方,内部丰富多变的建筑形体效果,设计殿堂外层立面创新性的设计了一套既有围合感又朦胧通透的金属圆管幕墙系统。
北立面金属幕墙
常规:通透类杆件幕墙,通常只是简单的在平面上依次排列杆件,但是由于竖向长度大,结构较不稳定,易摇摆晃动,并且其后支撑的龙骨系统会极大的破坏美感和立面的纯净朦胧效果,减弱表皮通透的特色。
优化STEP1:使用直径为69mm、102mm、146mm的三种金属圆管在宽度为500mm的平面内错位排列,产生厚度,同时使表皮更具立体感。
优化STEP2:三条圆管为一组,通过水平连接杆件形成稳定的三角形体系,三角形的外接圆直径大约500-600mm。
优化STEP3:连接杆以4m间距等距排布在金属圆管细杆上,保证圆管细杆的稳定性,形成自承重结构。
示意图
三种直径的金属圆管,通过组合、旋转的方式,形成了12个基本组合单元;结合不同方向观景需求和造型虚实特点,12个单元又排列组合成4个立面。通过有限的单元和合理的造价,创造出了丰富多变、创新又具有设计感的外立面效果。
金属圆管幕墙与展览盒子之间的空中花园
三种杆件组成的丰富多变,具有设计感的金属圆管幕墙
高效灵活的空间组织平面采用圈层式空间结构,在高效组织交通的同时,提供了灵活可变的功能空间:内部——共享中庭、交通核心;中部——灵活联通的使用空间;外部——休闲开放的观景平台
二层门厅内景照片
三层看中庭实景照片
三层展厅内景照片
03设计图纸
DRAWINGS
__
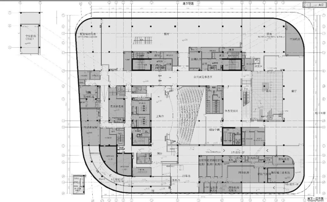
地下一层平面图 BASEMENTFLOOR PLAN
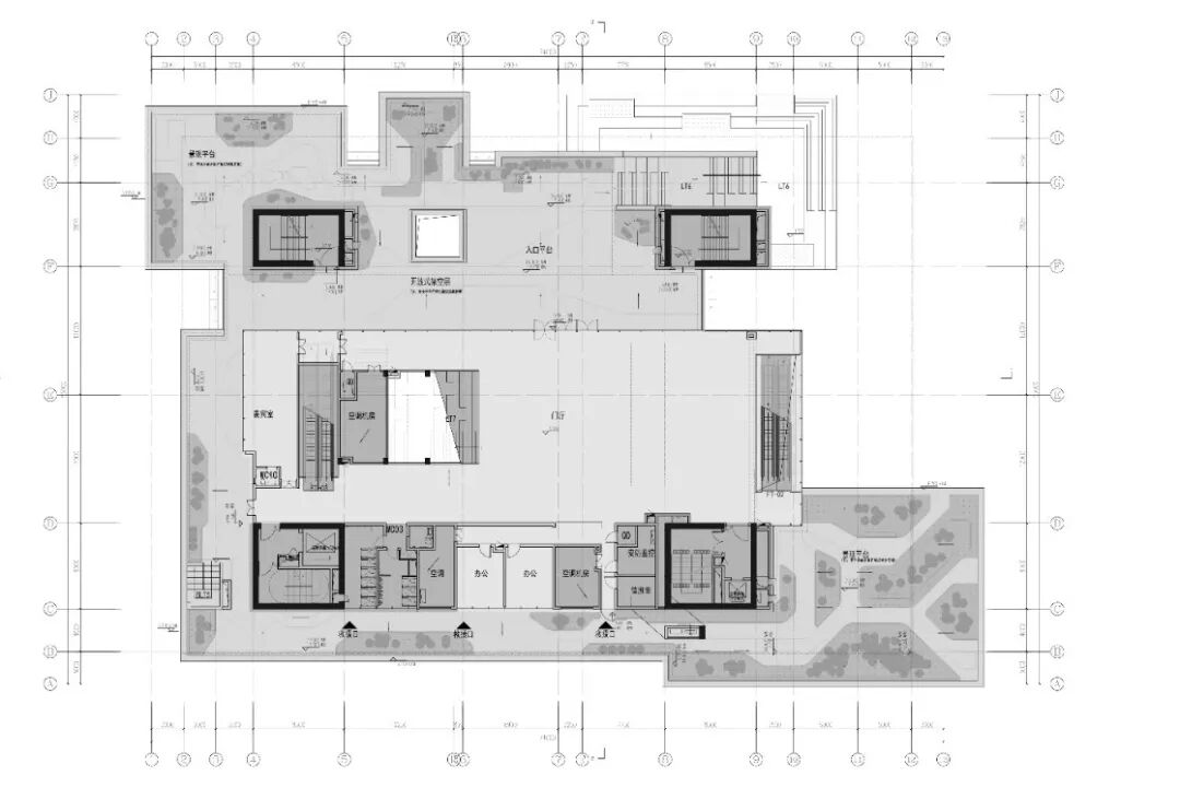
首层平面图 FIRSTFLOOR PLAN
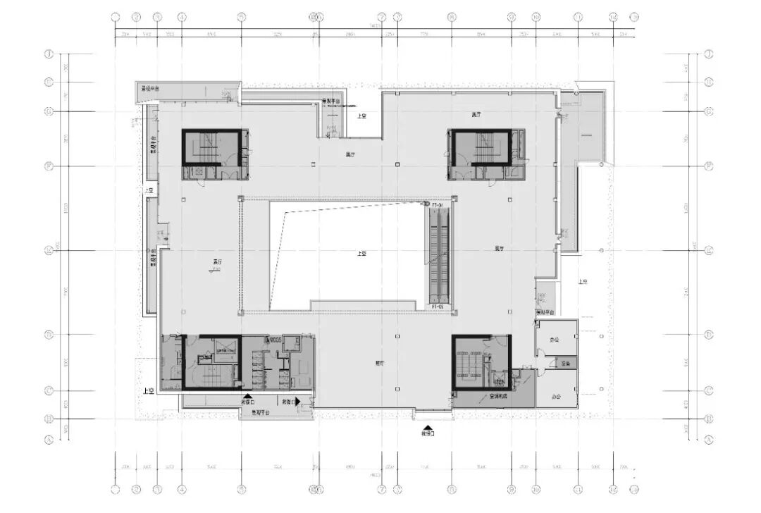
二层平面图 SECOND FLOOR PLAN
三层平面图 THIRDFLOOR PLAN
四层平面图 FOURTHFLOOR PLAN
五层平面图 FIFTHFLOOR PLAN
立面图ELEVATION
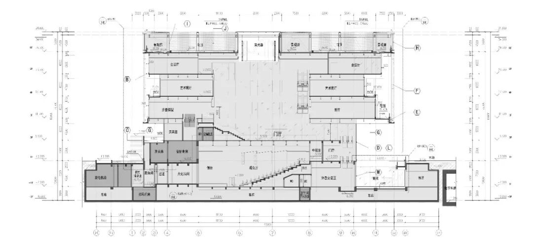
剖面图SECTION
▎项目档案
项目名称:广州设计之都设计殿堂
项目位置:广东省广州市
总建筑面积:26802㎡(地上13208㎡,地下13594㎡)
设计单位:华南理工大学建筑设计研究院有限公司
项目总负责:何镜堂、吴中平、陈晓虹
建筑:何正强、李绮霞、黄鹏、陈鹏、林孟蓉、郑旭光、辛晓柯、吴张豪
结构:江毅、易伟文、杨万、洪洲、吴伟丰、黄勇、范明炜
景观:罗韵姍、黄雪莹、邱俞婷、段学文
暖通空调:杜京京、陈飞洋
给排水:岑洪金、陈燕桃、岑晓云
电气:莫理莉、王一平
智能化:耿望阳、范细妹、吴浠
▎项目获奖
2025年度广东省优秀工程勘察设计成果公共建筑设计组 二等成果
客服
消息
收藏
下载
最近


































