查看完整案例

收藏

下载
© Walker Workshop
CARLAHOUSE
Beverly Hills, CA
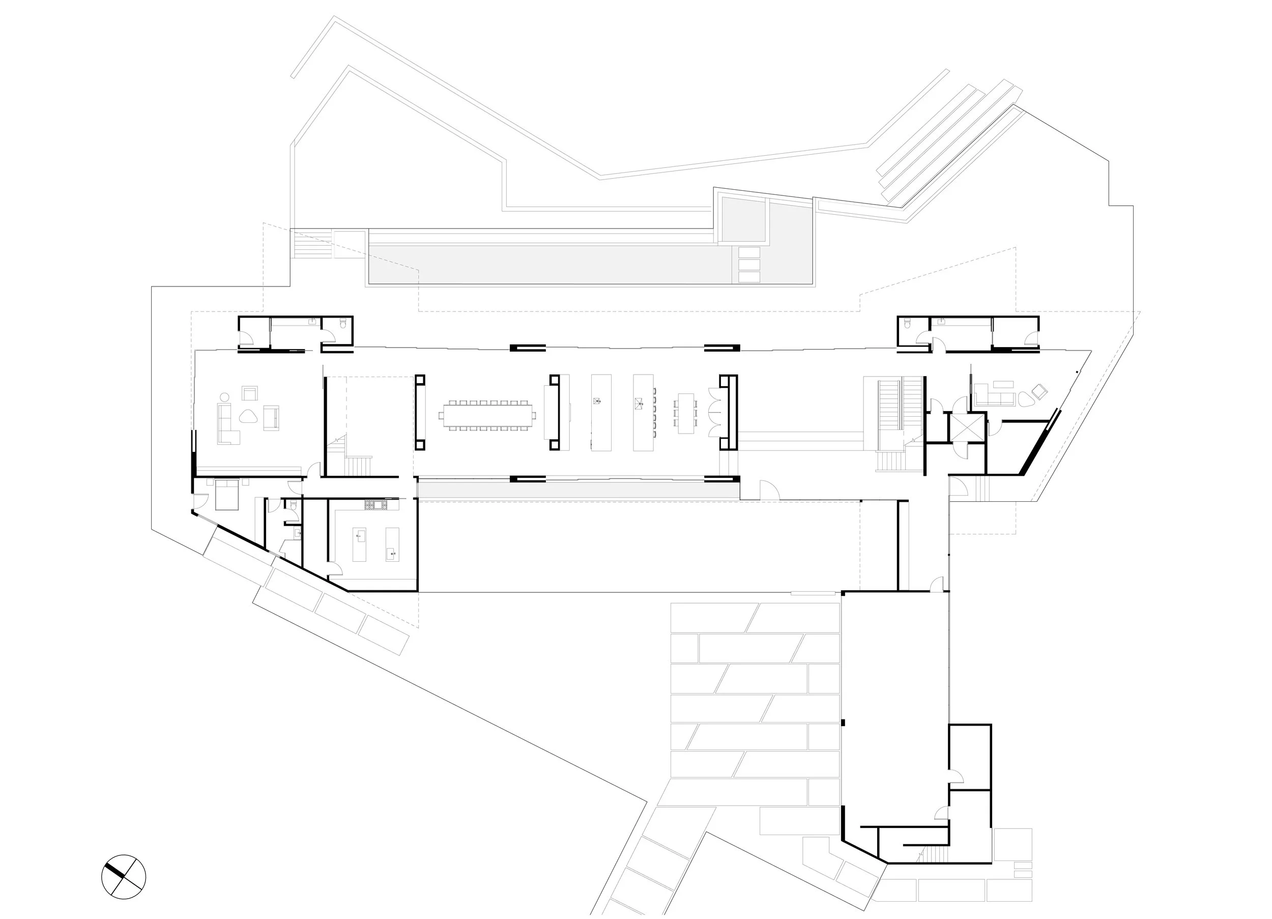
The Carla Ridge house started with a primary design goal to maximize the dramatic and extensive views of Los Angeles to the east of this hilltop parcel. Rather than spread a sprawling, twenty-thousand square foot house across the entirety of the lot, we designed the residence as layers stacked on top of itself in opposing directions. This opposition layering aligned the upper residence into a parallel pair of dwellings, rotated wings, whose ends jut outwards into the views, while their longer Earth-bound axes established a horizontal visual frame. We placed the most lived-in parts of the project, the kitchen, dining room, and entrance in the main body between the parallel wings. This main body frames the landscape and horizon creating a sense of infinite openness. Just as the infinity pool drops off at the skyline, so does the view upon walking in. One isn’t merely standing in the kitchen, but standing in an unobstructed panoramic view of Los Angeles, dotted with unmistakably familiar landmarks: the rolling hills of Los Angeles, the iconic Hollywood sign, the Griffith Observatory, and even the larger humbling Angeles mountains not so far off in the distance.
These overhanging jutted wings can be reached by ascending heavily exposed, esthetically simple, concrete walls. These walls capture the natural light cascading in through a skylight. The movement of light throughout the day acts in concert with the raw surface of the concrete, illuminating the complimentary nature of opposing textures on display. The stairs themselves are clad in oak, with a seamlessly embedded oak handrail, which aims to showcase our heightened sense of consideration for detail. Once at the top, it becomes apparent that both wings that feature large cantilevers, though entirely separate living spaces, hover over the hillside as companions.
This lower section, the base of the home is clad in western red cedar siding, provides a warm touchstone of unassuming balance to the overall magnitude of the home and gives an unexpected twist in the materials expected to be used for a project of this magnitude. The red cedar siding that outlines the levels of the house are pronounced, splicing through the visual plain. The second story appears hoisted upwards through contrast, while the basement remains harmoniously stationed, embedded within the sheltered Earth.
Atop the center of the body is a connecting space. We placed a two-thousand square footbridge, a deck, which can function in various ways. The residents can: walk across the deck to get from wing to wing, garden if they so choose, entertain, watch outdoor movies on a projector, or stargaze. The utilization of pocket and motorized sliding doors throughout the property creates a dramatic unobstructed sense of openness all around the house when the doors are pocketed. In the front yard, upon entry to the house, we placed a four-foot reflecting pool that encircles the front entrance. The light from that pool during golden hour and the afternoon bounces into the Western Red Cedar clad ceilings of the middle plain of the roof. This sunlight, emphasizes the reds in the Cedar, flushing out colors only produced by nature. On the reverse side of the house, which also happens to be the horizons’ panoramic view side, we placed an extensive deck, as well as an eighty-four-foot infinity-edge lap pool. This infinity pool also defines the edge of usable land the project occupies. Nothing more, except a smaller outcrop of grass on a lower level just near the pool a few steps down, where dogs and kids play, was included.
Project Role: Architect
Completion: 2019
Project Size: 20,000 s.f.
Project Team: Noah Walker, Will Pyatt
Image © Walker Workshop
Image © Walker Workshop
Image © Walker Workshop
© Walker Workshop
© Walker Workshop
© Walker Workshop
© Walker Workshop
© Walker Workshop
© Walker Workshop
© Walker Workshop
© Walker Workshop
© Walker Workshop
© Walker Workshop
© Walker Workshop
© Walker Workshop
© Walker Workshop
© Walker Workshop
© Walker Workshop
© Walker Workshop
© Walker Workshop
© Walker Workshop
客服
消息
收藏
下载
最近
























